6686官方版app - 24小时咨询电话
027-82411111
首页 > 找设计师 > 刘慧设计师户型解析
户型解析 (6686官方版app)
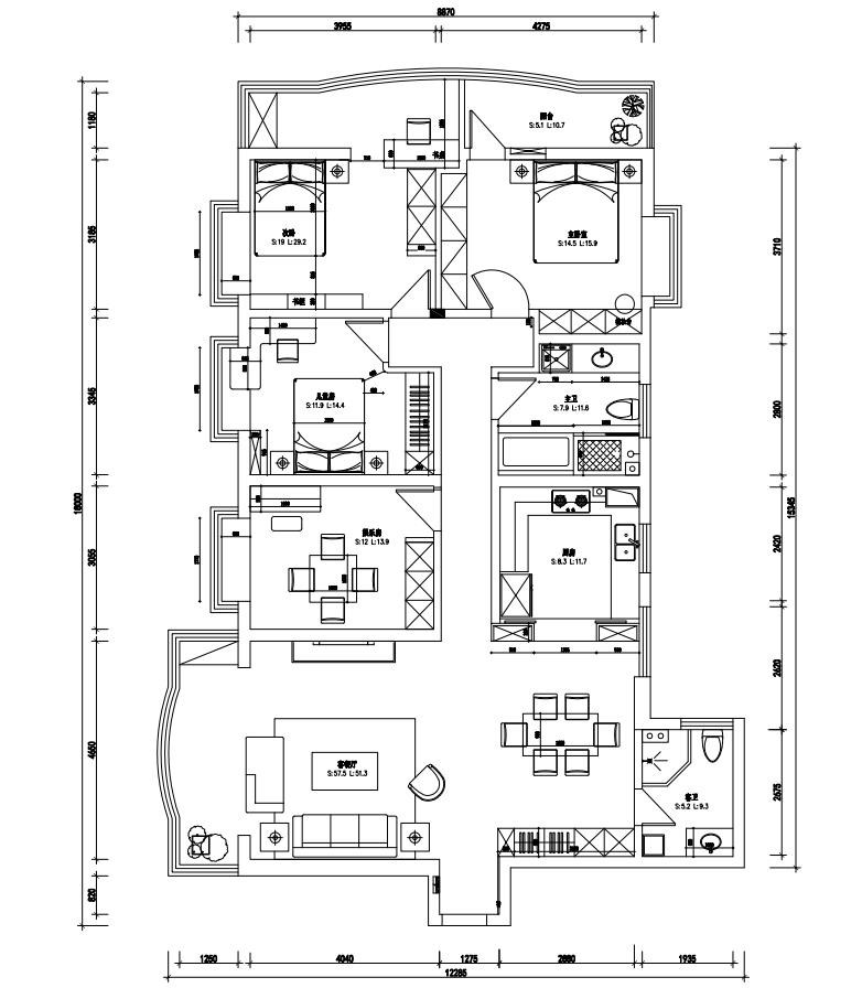
城市大厦130㎡三居室现代风住宅户型解析
三居室
130m²
"6686官方版app" 现代黑白灰


昏暗的光线,老旧的设施,杂乱的物品堆放,狭小的卫生间……这些都是老房子亟待解决的问题,因此 6686官方版app,屋主毅然决定进行全面的翻新改造,以期用全新的面貌来迎接更加高品质的生活。


简洁 6686官方版app,时尚,耐看,通透,是屋主对新居的首要期待,经过深入交流,我们迅速在设计理念上达成一致,决定以随性自然的黑白灰作为主色调,对空间布局进行精心重组,旨在扩大生活区域,让自由无拘的气息充盈于整个居家空间之中。





城市大厦130㎡现代黑白灰


城市大厦130㎡现代黑白灰


①入户门直面次卫门,隐私性不佳


②主卫局促,阳台、走道空间浪费多


③各个空间收纳不足,利用率低


城市大厦130㎡现代黑白灰


优化改造


①优化次卫布局,借用厨房空间嵌入洗漱区 6686官方版app,并调整门向,规避大门与次卫门直对。


②扩大主卫,借主卧空间设洗手台 6686官方版app,分割卧室旁走道与阳台,分别融入室内空间。


③承重墙不动,两侧定制衣柜餐边柜,增强收纳并巧妙遮挡承重柱,美化空间 6686官方版app




城市大厦130㎡现代黑白灰



城市大厦130㎡现代黑白灰


在黑白灰的主色调下,客厅弥漫着一股纯粹而高雅的气息 6686官方版app,这种色调凭借其强大的包容性和可塑性,勾勒出了一幅和谐而宜居的生活画卷。


线条,作为这幅画卷的灵魂笔触 6686官方版app,以精准而富有韵律的比例分割,不仅强化了画面的结构美,更赋予其震撼人心的视觉冲击力,使每一处细节都跃然纸上,立体而鲜活。


城市大厦130㎡现代黑白灰


十字线条勾勒悬浮电视背景,强化轮廓 6686官方版app,木色格栅点缀其间,深化空间纵深感,整体设计层次分明,尽显雅致与立体美学。


城市大厦130㎡现代黑白灰


将目光聚焦于沙发背景 6686官方版app,其设计以简练线条搭配温馨的暖光灯带,仅仅几笔勾勒,便展现出非凡的艺术韵味与格调。


城市大厦130㎡现代黑白灰


城市大厦130㎡现代黑白灰


过多的白色或许会显得单调,但摆放一款线条圆润的黑色沙发,不仅引领视觉下沉 6686官方版app,还融入了静谧与安宁的氛围,一旁蓬勃生长的植物,更为空间增添了一抹清新与生机。


城市大厦130㎡现代黑白灰


客厅与阳台融合后,顶面梁体曾略显突兀,但通过巧妙的斜面设计,现已与顶面流畅衔接。


笔直的线性灯则如同精致的纽带,将阳台、客厅与餐厅三个空间无缝串联,营造出连贯而和谐的视觉体验。


城市大厦130㎡现代黑白灰


城市大厦130㎡现代黑白灰


城市大厦130㎡现代黑白灰


卓越的收纳能力,是构建舒适生活的基础。


入户门旁的两组玄关柜,为居者出门入户提供了极大的便利。它们不仅承载着收纳鞋履、衣物、包包等日常用品的功能,还能兼任餐边柜的角色,使空间利用更高效。


城市大厦130㎡现代黑白灰


餐桌的另一侧,矗立着真正的餐边柜。白色柜体融合黑玻酒柜,黑白之间,有藏有露,尽显简约而不失格调的生活美学,实用与美观并存。


城市大厦130㎡现代黑白灰


餐边柜背景选用大理石,与端景台和谐统一,其天然纹理交织冷峻质感,为用餐区域平添一份高贵与典雅,让每次用餐都成为视觉与味觉的双重享受。


城市大厦130㎡现代黑白灰



城市大厦130㎡现代黑白灰



主卧空间,一袭纯白优雅铺陈,宛如初雪覆盖,静谧且圣洁。整体设计没有多余杂色侵扰,仅余纯净与安详,悄然拉开每个夜晚甜蜜梦境的序幕。


城市大厦130㎡现代黑白灰


阳台无缝融入室内,巨幅落地窗化作自然画框,将外界风光温柔引入,让自然光线肆意流淌,瞬间点亮室内,营造出一种既开放通透又兼顾私密性的生活享受。


城市大厦130㎡现代黑白灰


城市大厦130㎡现代黑白灰


扩容后的儿童房,不仅宽敞舒适,完美契合休憩之需,更巧妙融入学习区域,激发孩子无限探索欲。同时,增设了丰富的收纳空间,让每一样物品都能井然有序。


城市大厦130㎡现代黑白灰


由阳台改造的学习区,既蕴含趣味性又兼备浓厚的书卷气息。学习之余,偶尔眺望远景,既护眼又让身心得到放松。


城市大厦130㎡现代黑白灰


一体式书柜与书桌规划出简致的收纳体系,功能与美感维持着平衡。这里是学习小天地,也是展示个人手办收藏的趣味空间,学习与兴趣爱好和谐共存。

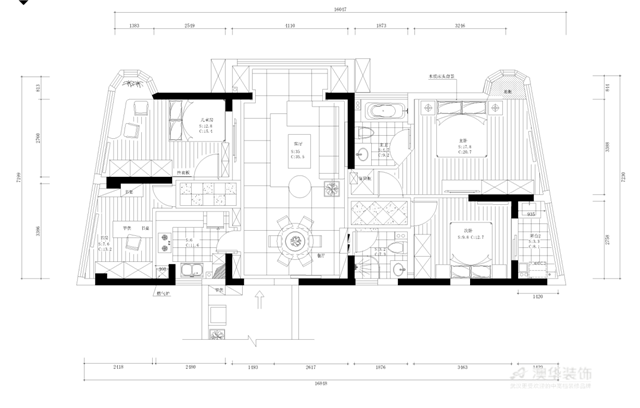
东湖风光174㎡四居室现代风住宅户型解析
四居室
"6686官方版app" 174m²
现代风 (6686官方版app)

这个家,足以容纳三代共聚一堂


开阔的布局、通透的视野、温馨的氛围、精致的细节……这些元素共同构筑了这个家的独特魅力。


设计之初,我们细致考量居者的需求、喜好与生活方式,精心优化重组空间布局,力求实现多功能一体化。同时,巧妙打造“隐形”收纳空间,确保空间通透开阔,为居者打造舒适宜人的生活环境。




东湖风光174㎡现代风


户型解析


1、入户无独立玄关,收纳稍显不足


2、厨房空间小,做不了中西厨分区


3、走道较为狭长,空间有些浪费


东湖风光174㎡现代风


优化改造


1、入户门右侧设半高玄关柜,长辈房外定制通顶鞋柜,增强入户收纳功能,优化空间布局。


2、整合餐厅、阳台与厨房,新布局容纳中西厨、储物空间,并与餐厅融合,实现多功能一体化。


3、公卫内移创造拖地机空间,部分走道融入主卧套间,并借次卧走道定制储物柜,优化收纳。





东湖风光174㎡现代风



这个家进门的位置是没有独立玄关的,进门就是客餐厅。


东湖风光174㎡现代风


这里将右侧墙体延伸,将长辈房外侧定制的通顶鞋柜完全嵌入,实现“完美隐形”。


半高鞋柜与摆件、绿植巧妙融合,共同打造出充满艺术气息的精致端景。




东湖风光174㎡现代风


东湖风光174㎡现代风


东湖风光174㎡现代风


柔和的日光透过玻璃窗,轻抚宽敞的客厅,温暖的光辉弥漫每一个角落,为居室披上宁静温暖的华裳。


随着日光铺洒,视野无限延伸,通透的公区宛如居者内心的宽广天地。这里,静谧与喧嚣并存,既能容纳个人的沉思,也能承载全家的欢聚。


东湖风光174㎡现代风


东湖风光174㎡现代风


天然石材作为地台,与悬浮电视背景及灯线精妙融合,于静谧中流露艺术韵味,巧妙平衡休闲与雅致,构筑出别具一格的生活美学空间。


东湖风光174㎡现代风


侧边岩板黑白交织,绿意盎然伫立其前,虚实相生间绘就一幅诗意盎然的水墨图景,赋予平凡日常诗意之美。


东湖风光174㎡现代风


阳台一角,黑玻书柜巧妙嵌入,与电视背景和谐相融。随手翻阅一本心仪的书籍,悠然落座于柔软的懒人沙发,尽享宁静的阅读时光。


东湖风光174㎡现代风


经线条与色块精心勾勒的沙发背景墙,彰显出别具一格的简约与高雅,它完美融入整体家居环境,营造出和谐统一的视觉美感。


东湖风光174㎡现代风


梦幻的纱帘将洗衣晾晒区隐藏,确保各功能区间互不干扰,使家居生活更静谧有序。




东湖风光174㎡现代风


东湖风光174㎡现代风


改造后的餐厨,不仅空间更大,功能也更齐全。


东湖风光174㎡现代风


东湖风光174㎡现代风


定制高柜嵌入冰箱,形成一体化设计,既整洁美观又实用。餐边柜兼顾西厨功能,顶部增设酒柜,为日常生活增添6686体育趣味与便利。


东湖风光174㎡现代风


餐桌旁并非仅有一面墙,实际上这里藏着隐形门,门后则是一个杂物间,家里不常用的物品都可以妥善收纳于此。




东湖风光174㎡现代风


东湖风光174㎡现代风

东湖风光174㎡现代风


无需复杂设计,深色系的半墙护墙板,就将卧室的氛围渲染得愈发宁静深邃,让人不自觉地放松身心,回归内心的平静。


东湖风光174㎡现代风


次卧经过改造,蜕变为时尚衣帽间,与主卧、主卫融合,共同构筑起一个奢华大套间,为品质生活增添无尽魅力与舒适。


东湖风光174㎡现代风


利用窗台位置定制转角办公区,墙体两侧定制满墙衣柜,实现工作与收纳的完美融合。


东湖风光174㎡现代风


卫浴干湿分离,采用墙地一体式铺贴设计,尽显高级质感,同时带来清透舒适的洗浴体验。


客房.jpg


东湖风光174㎡现代风


毗邻阳台的房间,专为长辈休憩打造,淡雅色调营造出宁静优雅的氛围,每一寸空间都流淌着对长辈的深情关怀与深深尊重。


东湖风光174㎡现代风


儿童房的设计,既注重实用性也兼顾趣味性。


东湖风光174㎡现代风


床头背景墙选用清新的淡蓝色,营造出静谧而雅致的氛围,同时也为孩子的世界增添了童趣与梦幻的色彩。


东湖风光174㎡现代风


窗前设有悬浮书桌,专为孩子阅读学习而设计。书桌旁是满墙书柜,转角处采用弧形设计,有效降低磕碰风险,尽显父母对孩子细致入微的关爱。


方园小区120㎡三居室酒店风格住宅户型解析
三居室
120m² (6686官方版app)
酒店风

    案例解析:该房为业主改善住房,男主人经常出差,比较喜欢酒店风格,女主喜欢健身,喝茶,故在客厅阳台处设计留了健身区,吧台区。该房主儿子和父母会偶而来居住,所以另外两间房都以卧室设计为主,并设置了书桌功能。虽然设计整体很简单,却可以满足自己喜好的同时也满足了一家人居住的需求。


    户型解析:


1.jpg


    方园小区三居室酒店风格住宅的面积是120平方米,经典的三室户型两个卫生间保障了居住的便捷性。房间的唯一缺憾便是客厅是比较狭长的,不过电视墙的空间范围是很大的,完全可以满足日常中使用的需要。两个卧室距离比较近,而另外一个卧室则确保了私密性,居住的体验感很好。


    玄关:


2.jpg


    现代的鞋柜设计满足了衣服鞋子的摆放空间,入户和玻璃之间采取了隔空玻璃的设计,既满足了隔离感又不会觉得很闷。


    客厅:




    动静结合的客厅设计效果理想,沙发椅满足了日常生活中休闲的需要。客厅阳台放入了健身器材,在家里便可以随时健身具有理想体验。


    卧室:




    卧室和书写功能融合为一体,休息之后可以完成自己的工作,床铺背景墙符合酒店风格,每一天都能够感受居住酒店的快乐。


中建大厦160㎡四居室轻奢婚房住宅户型解析
四居室
6686官方版app - 160m²
6686官方版app - 轻奢风

   案例简介:该房主为年轻有为的地大教授,孩子上小学,一家三口都非常喜欢看书学习,故卧室里都设置了书柜书桌。业主比较喜欢时尚流行的风格元素,也要求有6686体育的收纳空间,故推荐现代轻奢风格。轻奢的风格融合了一些独特的设计之后,完全可以满足业主对于房屋独特的居住要求。


    户型解析:


1.jpg


    中建大厦160平方米四居室是160平方米,整体四居室完全满足了居住的需要。户型内部的大客厅窗户呈现U型,一个简单的设计便增加了客厅的时尚感。不过这套户型有一个缺点便是各个卧室距离比较近,卧室的私密性不是很好,只能够通过装修的隔音处理来增强每个房间的私密性。


    客厅:



    客厅餐厅是开放连接并且分布在门的两旁,使用起来确保便利的同时也实现了理想的空间划分,现代的布艺沙发和时尚的现代餐桌凸显了房间的轻奢风格。


    餐厅:




    白色风格简单时尚,酒柜和灶台浑然一体,桌子上绿植使得房屋生机勃勃。


    卧室:




    飘窗床铺搭配时尚,主卧儿童房大衣柜满足了储物的功能,白色轻奢风格舒适安心。


    书房:


QQ截图20220127173636.jpg


    大教授平日里工作紧张,空闲时候在自己家里书房和好友玩上几圈麻将令日子更丰富。


新华联青年城160㎡四居室舒适美式格调住宅户型解析
四居室
160m²
"6686官方版app" 美式

    案例简介:本案例的业主是一对在大城市打拼多年的白领夫妻,两人对于房屋有着自己的理解,希望设计师能够帮助自己打造出一个清新优雅而又不失现代时尚气息的住宅。而根据业主的生活习惯、审美等,在装修风格上选择了自由感较强的美式风,而材料的选择上则更偏向于质感与色彩兼具的,以达到在无形之中装饰空间的作用。


    户型解析:


未命名.jpg


    舒适的四房两卫,160平米空间充足,厨房阳台扩充到厨房,形成一个非常敞亮的厨房,保留客厅阳台,各区域功能分明。衣帽间拆除,扩充厨房与次卧面积,让其更宽敞。因是一家三口居住,仅保留两间卧室,其它次卧均分别改为多功能房与书房。


    客厅:


客厅.jpg

    设计感十足的艺术大理石背景墙搭配上简约木质储物柜,清冷与温润之间的碰撞为空间注入了一抹结构层次美。


    厨房:

厨房2.jpg

    大面积的推拉窗户能够确保厨房油烟尽快释放,简约的黑白配色耐看而又不失时尚气息。


    卧室:

卧室.jpg

    带有纹理设计的木板贴纸温润而又不失自然感,搭配上柔软的床具,强调舒适惬意感。


    卫生间:

卫生间.jpg

    圆形镜子搭配上镂空木质背景墙,简约而又不失禅意美。


楚天都市雅园120㎡三居室现代简约雅居户型解析
686官方版app - 三居室
"6686官方版app" 120m²
6686官方版app - 现代简约

    案例简介:


    现代风的时尚气息与美式风的浪漫风情都是业主都偏爱的,也因此在进行该房屋装修的时候,融入了两种装修风格的设计元素,让空间在风格的碰撞中呈现出不一样的美感,让幸福生活得到更进一步的提升。而色彩的搭配选择上,则是选用了经典且保守的灰白搭配作为主基调色,以避免空间出现多种装修风格而显得过于凌乱。


    户型分析:


1.jpg

2.jpg


    位于楚天都市雅园的这套120㎡三居室房屋,空间并非传统的方正格局,需要将犄角空间进行更加合理的规划设计,才能保证每一寸空间都不会被浪费。软隔断与硬隔断的搭配使用,让不同功能空间的划分有了主次之分,而儿童区域则使用了靓丽的色彩进行装饰,营造童心韵味。卧室区域则将外墙直接打通设计为落地窗,彰显空间的明亮格调美。


    客厅:


3.jpg


    客厅区域使用了经典的灰白色搭配,强调素雅洁净气息。几何放射形图案的背景墙面则为客厅注入了一抹律动气息,避免空间看起来过于的素雅单调。


    餐厅:


4.jpg


    灰色的墙面搭配上山水画,为餐厅区域奠定了清新氛围。大面积的置物柜既提升了空间利用率,又可巧妙利用各类物件装饰点缀空间。


    卧室:


5.jpg


6.jpg


    淡暖黄色的墙面搭配上几何图形地毯,强调一种素雅柔和气息。大面积的落地窗则确保阳光能够直接撒落在床上,让空间多一抹温暖自然美。


刘慧
设计总监
从业年限 : 2003
擅长风格 : 现代简约,极简风,法式,意式风,奶油风
设计案例 : 泛海国际、新华联青年城、绿地金融国际城、中建大厦、保利中央公馆、复地东湖国际、绿地金融国际、龙湖天玺、琨瑜府、百瑞景、中建大公馆、橡树湾、城投璞岸、碧桂园桃花源、水蓝湾香榭东沙、融侨滨江城、正荣紫阙台、金沙泊岸。
预约数量 : 128
找TA设计
算一算我家装修需要多少钱
    • 张女士
      132****178
      200m²
    • 成先生
      134****4856
      83m²
    • 董先生
      137****2569
      95m²
    • 成先生
      133****7485
      130m²
    • 李先生
      150****4475
      220m²
    • 张先生
      139****5050
      187m²
    • 王女士
      178****4563
      168m²
    "6686官方版app" 预约设计师
    姓名*
    楼盘*
    电话*
    *为了您的权益, 您的隐私将严格保密
    6686官方版app - 预约成功
    您已报名成功, 稍后会有客服人员联系您。 您的隐私将被严格保密。
    关注二维码了解6686体育装修知识
    6686登录我们 (6686官方版app)
    澳华历程
    官方微博 (6686官方版app)
    联系我们
    装修咨询电话 : 027-82411111
    售后服务电话 : 027-82866788
    公司地址 : 6686平台市江岸区澳门路232号金冠大厦 (6686官方版app)
    6686官方版app - 6686登录我们
    友情链接 :
      66866686官方版app下载官方版-6686官方版app下载2025最新 页面版权所有 jingyu-design.cn

      686官方版app - 算一算,您家装修需要花多少钱?

      知精准报价 避装修深坑

      01/03

      选择您喜欢的风格 (6686官方版app)

      • 现代轻奢

      • 现代美式

      • 北欧

      • 新中式

      • 欧式

      • 其他

      算一算,您家装修要花多少钱?

      知精准报价 避装修深坑

      02/03

      选择房屋面积区间 (6686官方版app)

      • 80-100㎡
      • 100-140㎡
      • 140-200㎡
      • 200-300㎡
      • 300㎡以上

      "6686官方版app" 03/03

      您的户型

      • 两居室

      • 三居室

      • 四居室

      • 五居室

      • 六居室

      算一算,您家装修要花多少钱?

      知精准报价 避装修深坑

      0%

      稍等片刻,您的报价正在生中......

      "6686官方版app" 算一算,您家装修要花多少钱?

      知精准报价 避装修深坑

      您的完整报价已经生成

      报名成功享抢订优惠名额

      每日仅限前10名用户