24小时咨询电话 (6686官方版app)
027-82411111
当前位置 : 首页 > 户型解析 > 方园小区120㎡三居室酒店风格住宅户型解析
方园小区120㎡三居室酒店风格住宅户型解析 (6686官方版app)
发布时间 : 2022-03-15 13:16
查看数 :

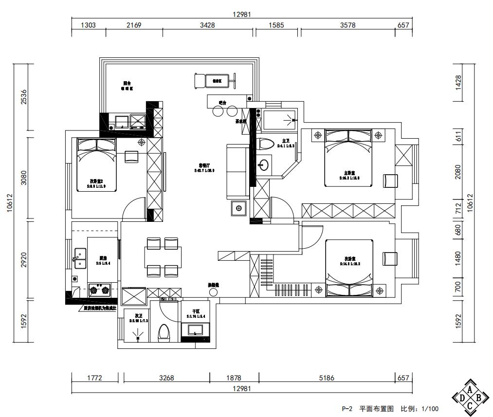
    案例解析:该房为业主改善住房,男主人经常出差 6686官方版app,比较喜欢酒店风格,女主喜欢健身,喝茶,故在客厅阳台处设计留了健身区,吧台区,该房主儿子和父母会偶而来居住,所以另外两间房都以卧室设计为主,并设置了书桌功能,虽然设计整体很简单,却可以满足自己喜好的同时也满足了一家人居住的需求。


    户型解析:


1.jpg


    方园小区三居室酒店风格住宅的面积是120平方米,经典的三室户型两个卫生间保障了居住的便捷性,房间的唯一缺憾便是客厅是比较狭长的,不过电视墙的空间范围是很大的,完全可以满足日常中使用的需要,两个卧室距离比较近 6686官方版app,而另外一个卧室则确保了私密性,居住的体验感很好。


    玄关:


2.jpg


    现代的鞋柜设计满足了衣服鞋子的摆放空间,入户和玻璃之间采取了隔空玻璃的设计,既满足了隔离感又不会觉得很闷 6686官方版app


    客厅:




    动静结合的客厅设计效果理想,沙发椅满足了日常生活中休闲的需要,客厅阳台放入了健身器材 6686官方版app,在家里便可以随时健身具有理想体验。


    卧室:




    卧室和书写功能融合为一体 6686官方版app,休息之后可以完成自己的工作,床铺背景墙符合酒店风格,每一天都能够感受居住酒店的快乐。


"6686官方版app" 预约设计师
海量行家, 抢订6686注册设计服务
每日前20名申请用户, 获3D装修设计图
推荐相关案例
6686注册获取同款设计方案
姓名*
楼盘*
电话*
*为了您的权益, 您的隐私将严格保密
预约成功
您已报名成功, 稍后会有客服人员联系您。 您的隐私将被严格保密。
关注二维码了解6686体育装修知识
联系我们 (6686官方版app)
"6686官方版app" 装修咨询电话 : 686官方版app - 027-82411111
售后服务电话 : 027-82866788
6686官方版app - 公司地址 : 6686平台市江岸区澳门路232号金冠大厦
"6686官方版app" 6686登录我们
友情链接 :
    66866686官方版app下载官方版-6686官方版app下载2025最新 页面版权所有 jingyu-design.cn

    算一算,您家装修需要花多少钱?

    知精准报价 避装修深坑 (6686官方版app)

    "6686官方版app" 686官方版app - 01/03

    选择您喜欢的风格

    • 现代轻奢

    • 现代美式

    • 北欧

    • 新中式

    • 欧式

    • 其他

    算一算,您家装修要花多少钱?

    知精准报价 避装修深坑

    "6686官方版app" 02/03

    选择房屋面积区间

    • 80-100㎡
    • 100-140㎡
    • 140-200㎡
    • 200-300㎡
    • 300㎡以上

    686官方版app - 686官方版app - 03/03

    您的户型

    • 两居室

    • 三居室

    • 四居室

    • 五居室

    • 六居室

    算一算,您家装修要花多少钱?

    知精准报价 避装修深坑

    0%

    稍等片刻,您的报价正在生中......

    "6686官方版app" 算一算,您家装修要花多少钱?

    知精准报价 避装修深坑

    您的完整报价已经生成

    报名成功享抢订优惠名额

    每日仅限前10名用户