24小时咨询电话
027-82411111
当前位置 : 首页 > 户型解析 > 金桥庭院135㎡三居室轻奢风格住宅户型解析
"6686官方版app" 金桥庭院135㎡三居室轻奢风格住宅户型解析
发布时间 : 2022-03-16 10:29
查看数 :

    案例简介:装饰的灵魂是设计,设计的灵魂是文化,业主是多子家庭 6686官方版app,为了可以居住的很舒适便购买了三居室的房屋,在房屋的设计中采取了业务喜欢的轻奢风格,在每一个卧室设计中根据业主以及孩子的喜好来进行,宽敞的客厅作为一家人休闲娱乐的理想选择,对于多子家庭而言,每一个空间都得到充分利用并且不拥挤。


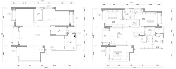
    户型解析:


1.jpg


    金桥同源三居室轻奢风格住宅的面积是135平方米,户型整体是很方正的,三个卧室大小符合居住的要求,户型内部的客厅空间足够大,厨房以及卫生间的分布都可以满足多子家庭的需要,为了确保更好的享受阳光 6686官方版app,阳台的光线也是很充足的,户型设计达到了四面通风的要求,居住中很舒适。


    客厅:


2.jpg


    白色为主色调搭配深色的家具 6686官方版app,不仅仅看起来简单,又可以感受到浓浓的轻奢风格。


    餐厅:


3.jpg


    餐厅和洗手台连接,用餐之前洗手很方便 6686官方版app,餐桌餐椅颜值高,餐椅使用舒适度很高。


    卧室:


4.jpg


    卧室和办公融合为一体,家长孩子互相不会影响工作以及学习,工作完后便可以上床可以得到充足的休息 6686官方版app


"6686官方版app"
"6686官方版app" 预约设计师
海量行家, 抢订6686注册设计服务
每日前20名申请用户, 获3D装修设计图
6686注册获取同款设计方案
姓名*
楼盘*
电话*
*为了您的权益, 您的隐私将严格保密
"6686官方版app" 预约成功
您已报名成功, 稍后会有客服人员联系您。 您的隐私将被严格保密。
关注二维码了解6686体育装修知识
"6686官方版app" 联系我们
装修咨询电话 : 027-82411111 (6686官方版app)
售后服务电话 : 027-82866788
6686官方版app - 公司地址 : 6686平台市江岸区澳门路232号金冠大厦
6686官方版app - 6686登录我们
友情链接 :
    66866686官方版app下载官方版-6686官方版app下载2025最新 页面版权所有 jingyu-design.cn

    算一算,您家装修需要花多少钱?

    知精准报价 避装修深坑

    "6686官方版app" 01/03

    选择您喜欢的风格

    • 现代轻奢

    • 现代美式

    • 北欧

    • 新中式

    • 欧式

    • 其他

    算一算,您家装修要花多少钱?

    知精准报价 避装修深坑

    02/03

    选择房屋面积区间

    • 80-100㎡
    • 100-140㎡
    • 140-200㎡
    • 200-300㎡
    • 300㎡以上

    "6686官方版app" 686官方版app - 03/03

    您的户型

    • 两居室

    • 三居室

    • 四居室

    • 五居室

    • 六居室

    算一算,您家装修要花多少钱?

    知精准报价 避装修深坑

    0%

    稍等片刻,您的报价正在生中......

    算一算,您家装修要花多少钱?

    知精准报价 避装修深坑

    您的完整报价已经生成 (6686官方版app)

    报名成功享抢订优惠名额

    每日仅限前10名用户