"6686官方版app" 24小时咨询电话
027-82411111
当前位置 : 首页 > 户型解析 > 金科城96㎡三居室现代简约风格住宅户型解析
金科城96㎡三居室现代简约风格住宅户型解析
686官方版app - 发布时间 : 2022-03-16 10:46
查看数 :

    案例简介:惬意,和生活一样,看似暗淡,却蕴藏着美的无限隽永,温润淡朴的基调,把空间平铺成一张偌大的画布,沙发是柔美的弧形,契合了想表达的柔美与优雅,朴实,纯粹的材质与简约,自然,不带一丝造作的中性配色,赋予宁静的惬意氛围,作为婚房而言 6686官方版app,每一处设计都独具特色,送给新人很美好的祝福。


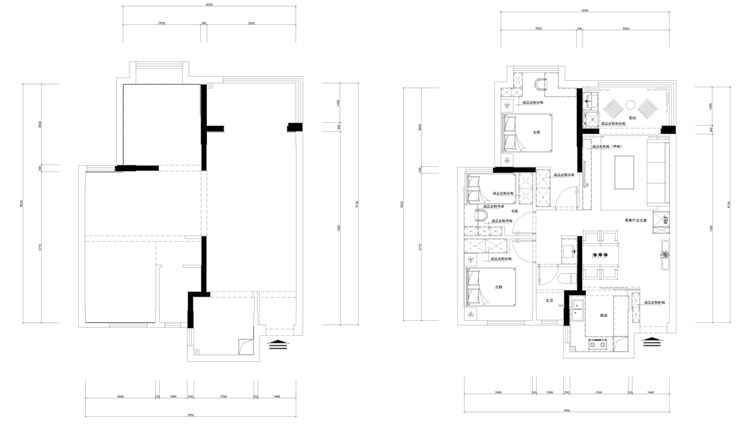
    户型解析:


1.jpg


    金科城三居室现代简约风格住宅面积是96平方米,96平方米的面积设计成为了三居室,每一处的面积都得到了充分的利用,个别卧室虽然空间小却可以满足居住的需要,房屋客厅的面积很大 6686官方版app,完全满足了一家人饭后茶余的休闲时光,南北通透的户型做到了冬暖夏凉,居住的体验很理想。


    客厅:



    暖色调的设计搭配独特的沙发椅以及茶几别具风味 6686官方版app,柜子上的饰品也充满了现代感,每一处都突出现代简约的风格。


    餐厅:


5.jpg


    餐厅和客厅开放式的设计,特色吊灯搭配木头餐椅别具一番风味 6686官方版app


    卧室:


6.jpg


    既满足了大床铺的要求,又满足了储物的需要,柜子侧面也得到了充分的利用 6686官方版app


"6686官方版app"
预约设计师 (6686官方版app)
海量行家, 抢订6686注册设计服务
每日前20名申请用户, 获3D装修设计图
推荐相关案例
6686官方版app - 6686注册获取同款设计方案
姓名*
楼盘*
电话*
*为了您的权益, 您的隐私将严格保密
预约成功
您已报名成功, 稍后会有客服人员联系您。 您的隐私将被严格保密。
关注二维码了解6686体育装修知识
"6686官方版app" 客户服务
在线预约
滴滴专车
售后服务
6686官方版app - 联系我们
"6686官方版app" 装修咨询电话 : 027-82411111
售后服务电话 : 027-82866788
6686官方版app - 公司地址 : 6686平台市江岸区澳门路232号金冠大厦
6686登录我们
友情链接 : (6686官方版app)
    66866686官方版app下载官方版-6686官方版app下载2025最新 页面版权所有 jingyu-design.cn

    算一算,您家装修需要花多少钱?

    知精准报价 避装修深坑

    01/03

    选择您喜欢的风格

    • 现代轻奢

    • 现代美式

    • 北欧

    • 新中式

    • 欧式

    • 其他

    算一算,您家装修要花多少钱?

    知精准报价 避装修深坑

    02/03 (6686官方版app)

    选择房屋面积区间

    • 80-100㎡
    • 100-140㎡
    • 140-200㎡
    • 200-300㎡
    • 300㎡以上

    03/03

    您的户型

    • 两居室

    • 三居室

    • 四居室

    • 五居室

    • 六居室

    算一算,您家装修要花多少钱? (6686官方版app)

    知精准报价 避装修深坑

    0%

    稍等片刻,您的报价正在生中......

    6686官方版app - 算一算,您家装修要花多少钱?

    知精准报价 避装修深坑

    您的完整报价已经生成

    "6686官方版app" 报名成功享抢订优惠名额

    每日仅限前10名用户