6686官方版app - 24小时咨询电话
027-82411111
当前位置 : 首页 > 户型解析 > 琨御府118㎡词三居室轻奢风格住宅户型解析
6686官方版app - 琨御府118㎡词三居室轻奢风格住宅户型解析
"6686官方版app" 发布时间 : 2022-03-16 10:48
查看数 :

    案例简介:轻是一种优雅的态度,低调舒适,但不损害高贵的优雅,奢是一种既不让人有压力,又追求品质和精致生活的状态,三居室房主喜欢轻奢的风格,对于高贵优雅却有着直接 6686官方版app,房屋设计中将两种因素充分融合进入,并且设计中充分的考虑到房主多子这样的一个因素,在每一个卧室设计都别出心裁。


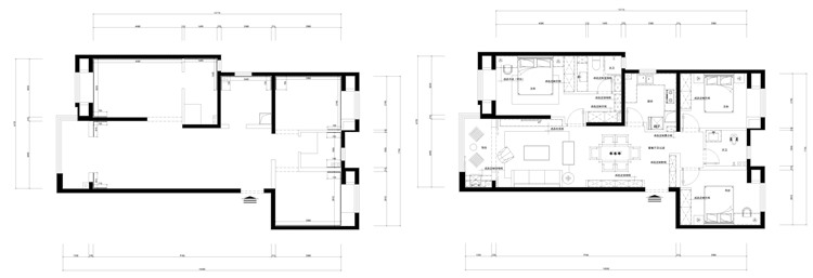
    户型解析:


1.jpg


    琨御府三居室轻奢风格住宅面积是118平方米,房屋做到了四面通风的效果,房屋的卧室空间足够,一个主卧两个次卧 6686官方版app,并且主卧内部具有卫生间,观察房屋的客厅,客厅的空间也是足够的,对于多子家庭而言,无论是卧室居住还是客厅活动都满足了日常生活中的需求,并且厨房卫生间位置分布都很合理。


    客厅:


2.jpg


    现代布艺沙发和简约背景墙搭配简单 6686官方版app,白色和灰色的色调搭配感觉很舒适。


    卧室:


    卧室的设计同样简单,每一个卧室都保障了床铺的舒适度以及大衣柜的设计,居住和储物都很方便 6686官方版app


预约设计师
海量行家, 抢订6686注册设计服务
每日前20名申请用户, 获3D装修设计图
推荐相关案例
6686注册获取同款设计方案
姓名*
楼盘*
电话*
*为了您的权益, 您的隐私将严格保密
预约成功
您已报名成功, 稍后会有客服人员联系您。 您的隐私将被严格保密。
关注二维码了解6686体育装修知识
6686官方版app - 联系我们
装修咨询电话 : 027-82411111
"6686官方版app" 售后服务电话 : 027-82866788
公司地址 : 6686平台市江岸区澳门路232号金冠大厦 (6686官方版app)
6686登录我们
友情链接 :
    66866686官方版app下载官方版-6686官方版app下载2025最新 页面版权所有 jingyu-design.cn

    "6686官方版app" 算一算,您家装修需要花多少钱?

    知精准报价 避装修深坑

    "6686官方版app" 01/03

    选择您喜欢的风格

    • 现代轻奢

    • 现代美式

    • 北欧

    • 新中式

    • 欧式

    • 其他

    "6686官方版app" 算一算,您家装修要花多少钱?

    知精准报价 避装修深坑

    686官方版app - 02/03

    选择房屋面积区间

    • 80-100㎡
    • 100-140㎡
    • 140-200㎡
    • 200-300㎡
    • 300㎡以上

    "6686官方版app" 03/03

    您的户型

    • 两居室

    • 三居室

    • 四居室

    • 五居室

    • 六居室

    686官方版app - 算一算,您家装修要花多少钱?

    知精准报价 避装修深坑

    0%

    稍等片刻,您的报价正在生中......

    算一算,您家装修要花多少钱?

    知精准报价 避装修深坑

    "6686官方版app" 您的完整报价已经生成

    报名成功享抢订优惠名额

    每日仅限前10名用户