"6686官方版app" 24小时咨询电话
027-82411111
当前位置 : 首页 > 户型解析 > 中建大厦160㎡四居室轻奢婚房住宅户型解析
中建大厦160㎡四居室轻奢婚房住宅户型解析 (6686官方版app)
发布时间 : 2022-03-15 13:09 (6686官方版app)
查看数 : (6686官方版app)

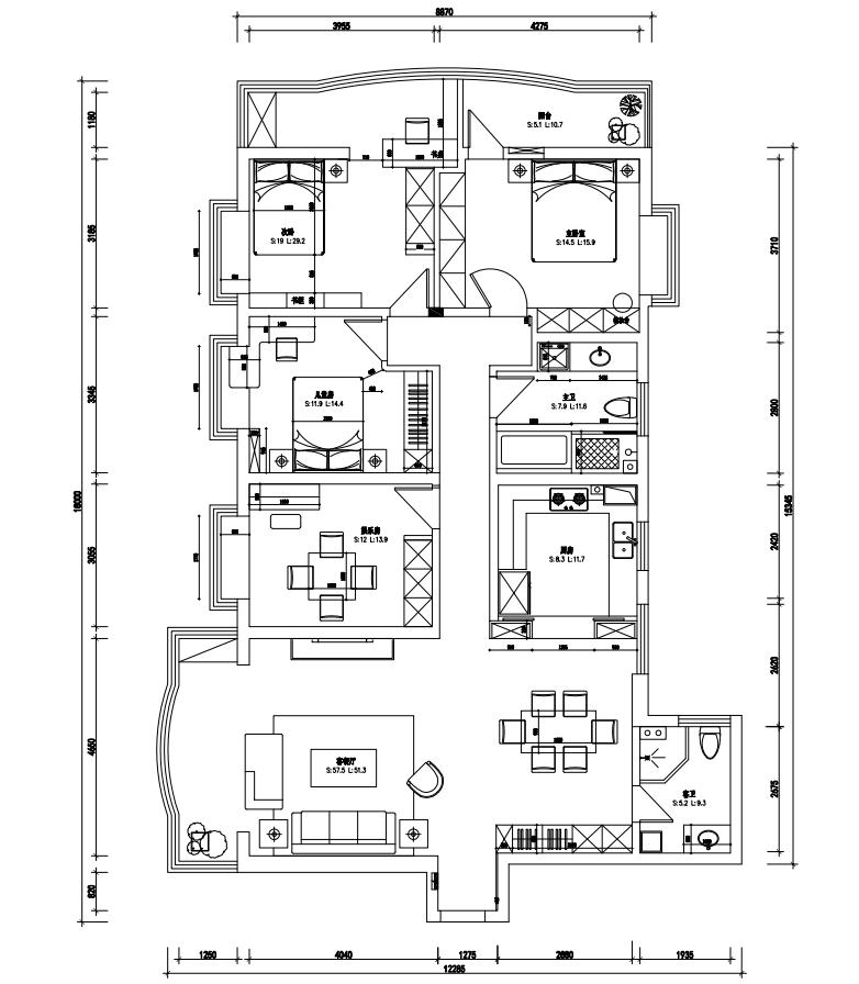
   案例简介:该房主为年轻有为的地大教授 6686官方版app,孩子上小学,一家三口都非常喜欢看书学习,故卧室里都设置了书柜书桌,业主比较喜欢时尚流行的风格元素,也要求有6686体育的收纳空间,故推荐现代轻奢风格,轻奢的风格融合了一些独特的设计之后,完全可以满足业主对于房屋独特的居住要求。


    户型解析:


1.jpg


    中建大厦160平方米四居室是160平方米,整体四居室完全满足了居住的需要,户型内部的大客厅窗户呈现U型,一个简单的设计便增加了客厅的时尚感,不过这套户型有一个缺点便是各个卧室距离比较近,卧室的私密性不是很好 6686官方版app,只能够通过装修的隔音处理来增强每个房间的私密性。


    客厅:



    客厅餐厅是开放连接并且分布在门的两旁 6686官方版app,使用起来确保便利的同时也实现了理想的空间划分,现代的布艺沙发和时尚的现代餐桌凸显了房间的轻奢风格。


    餐厅:




    白色风格简单时尚,酒柜和灶台浑然一体,桌子上绿植使得房屋生机勃勃 6686官方版app


    卧室:




    飘窗床铺搭配时尚,主卧儿童房大衣柜满足了储物的功能 6686官方版app,白色轻奢风格舒适安心。


    书房:


QQ截图20220127173636.jpg


    大教授平日里工作紧张,空闲时候在自己家里书房和好友玩上几圈麻将令日子更丰富 6686官方版app


"6686官方版app"
"6686官方版app"
"6686官方版app" 预约设计师
海量行家, 抢订6686注册设计服务
每日前20名申请用户, 获3D装修设计图
"6686官方版app" 推荐相关案例
"6686官方版app" 6686注册获取同款设计方案
姓名*
楼盘*
电话*
*为了您的权益, 您的隐私将严格保密
"6686官方版app" 预约成功
您已报名成功, 稍后会有客服人员联系您。 您的隐私将被严格保密。
关注二维码了解6686体育装修知识
联系我们
装修咨询电话 : 027-82411111 (6686官方版app)
售后服务电话 : 686官方版app - 027-82866788
公司地址 : 6686平台市江岸区澳门路232号金冠大厦
6686登录我们
友情链接 :
    66866686官方版app下载官方版-6686官方版app下载2025最新 页面版权所有 jingyu-design.cn

    算一算,您家装修需要花多少钱?

    知精准报价 避装修深坑

    01/03

    选择您喜欢的风格

    • 现代轻奢

    • 现代美式

    • 北欧

    • 新中式

    • 欧式

    • 其他

    "6686官方版app" 算一算,您家装修要花多少钱?

    知精准报价 避装修深坑

    "6686官方版app" 02/03

    选择房屋面积区间

    • 80-100㎡
    • 100-140㎡
    • 140-200㎡
    • 200-300㎡
    • 300㎡以上

    03/03

    您的户型

    • 两居室

    • 三居室

    • 四居室

    • 五居室

    • 六居室

    "6686官方版app" 算一算,您家装修要花多少钱?

    知精准报价 避装修深坑

    0%

    稍等片刻,您的报价正在生中......

    "6686官方版app" 算一算,您家装修要花多少钱?

    知精准报价 避装修深坑

    您的完整报价已经生成

    "6686官方版app" 报名成功享抢订优惠名额

    每日仅限前10名用户