6686官方版app - 24小时咨询电话
027-82411111
当前位置 : 首页 > 户型解析 > 晋合世家130平米三居室现代简约风格住宅户型解析
"6686官方版app" 晋合世家130平米三居室现代简约风格住宅户型解析
686官方版app - 发布时间 : 2022-03-15 13:05
查看数 :

    案例简介:装饰的灵魂是设计,设计的灵魂是文化,老年人对于自己的生活品质有很高的要求,在房屋装修方面现代简约的风格不仅仅很干净,打扫卫生也是很方便的,与此同时布艺的一些家装居中也具有很高的舒适度,由于风格很现代 6686官方版app,在儿女来访的时候也是喜欢这种风格,不会出现房屋风格审美方面的差异。


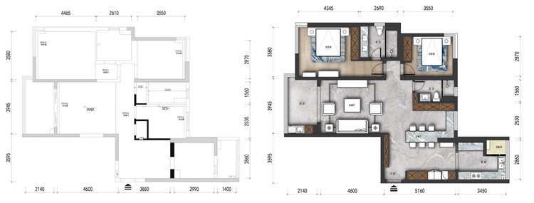
    户型解析:


1.jpg


    晋合世家三居室现代简约风格住宅的面积是130平方米 6686官方版app,三居室的空间设计不仅仅私密性好,可以满足退休人群日常的居住,即便是节假日儿女带着孩子来摆放也可以居住的很舒适,整体户型中两个卫生间的设计符合了居住生活中的便捷,厨房和餐厅的位置安排也符合居住要求。


    客厅:


2.jpg


    现代的布艺沙发和简单的背景墙简约时尚 6686官方版app,卡通的小人使得客厅充满了现代感。


    餐厅:


    合理的利用了两个窗户中间的位置,吧台风格的桌子和整体装修风格达到了匹配,餐桌两边都具有窗户,用餐同时可以保持空气流通 6686官方版app


    卧室:


5.jpg


    简单的床铺和现代的画艺融合为一体 6686官方版app,左右两个床头柜不仅仅不使得卧室拥挤,无论住在床铺的哪一段生活起居都足够方便。


"6686官方版app" 预约设计师
海量行家, 抢订6686注册设计服务
每日前20名申请用户, 获3D装修设计图
推荐相关案例
"6686官方版app" 6686注册获取同款设计方案
姓名*
楼盘*
电话*
*为了您的权益, 您的隐私将严格保密
6686官方版app - 预约成功
您已报名成功, 稍后会有客服人员联系您。 您的隐私将被严格保密。
关注二维码了解6686体育装修知识
"6686官方版app" 联系我们
装修咨询电话 : 027-82411111
售后服务电话 : 027-82866788
公司地址 : 6686平台市江岸区澳门路232号金冠大厦
6686登录我们
"6686官方版app" 友情链接 :
    66866686官方版app下载官方版-6686官方版app下载2025最新 页面版权所有 jingyu-design.cn

    "6686官方版app" 算一算,您家装修需要花多少钱?

    知精准报价 避装修深坑

    686官方版app - 01/03

    选择您喜欢的风格

    • 现代轻奢

    • 现代美式

    • 北欧

    • 新中式

    • 欧式

    • 其他

    "6686官方版app" 算一算,您家装修要花多少钱?

    知精准报价 避装修深坑

    686官方版app - 02/03

    选择房屋面积区间

    • 80-100㎡
    • 100-140㎡
    • 140-200㎡
    • 200-300㎡
    • 300㎡以上

    "6686官方版app" 03/03

    您的户型

    • 两居室

    • 三居室

    • 四居室

    • 五居室

    • 六居室

    算一算,您家装修要花多少钱? (6686官方版app)

    知精准报价 避装修深坑

    0%

    稍等片刻,您的报价正在生中......

    6686官方版app - 算一算,您家装修要花多少钱?

    知精准报价 避装修深坑

    您的完整报价已经生成

    报名成功享抢订优惠名额

    每日仅限前10名用户