24小时咨询电话 (6686官方版app)
027-82411111
当前位置 : 首页 > 户型解析 > 招商公园1872小区350㎡大三层现代简约别墅户型解析
招商公园1872小区350㎡大三层现代简约别墅户型解析
"6686官方版app" 发布时间 : 2022-03-15 13:01
查看数 : (6686官方版app)

    案例简介:艺术源于生活,而生活是艺术的来源 6686官方版app,在生活中追求艺术之美的存在,房屋设计选择现代简约的格式不仅仅是简单,而是房屋风格具有一种独特的时尚感,别墅上下一共三层,每一层都保持现代简约的格调,在保障大气的同时也不会失去时代感,对于多子的家庭而言,也不会出现房屋选择方面的困难。


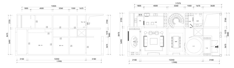
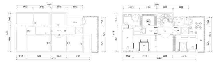
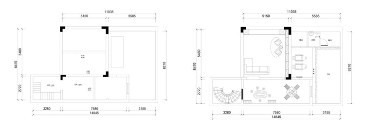
    户型解析:



    招商公园1872小区这套大三层的别墅是350平方米 6686官方版app,别墅分为负一层和地面两层,每一层户型设计都方正规整,卧室卫生间厨房设计应有尽有,上下三层空间很大,对于多子家庭非常合适,不仅仅可以满足每一个人居住的空间要求,还可以保持在一个别墅内部生活的情谊。


    玄关:


4.jpg


    正方形的玄关宽敞大方 6686官方版app,吊灯吊灯的椭圆形设计和地面瓷砖图案相辅相成,朴素的灰色确保了居住的生活宁静。


    客厅:


5.jpg



    用心的吊顶设计凸显了独特性以及房屋举架的高度,灰色和红色椅子的搭配不仅仅很时尚,闲暇在客厅休息能够感受到浓浓的时尚感 6686官方版app


    餐厅:


6.jpg


    和客厅连接的餐厅虽然呈现长方形,摆放一张六人桌也是空间足够的,餐厅举架超级高 6686官方版app,用餐完全不会感受到任何的压迫感。


    卧室:


151627320137.jpg


    卧室不仅仅满足了居住的舒适度 6686官方版app,卧室内部都搭配了学习放松空间,即便是一整天窝在卧室里也不会感觉无聊。


"6686官方版app"
"6686官方版app" 预约设计师
海量行家, 抢订6686注册设计服务
每日前20名申请用户, 获3D装修设计图
"6686官方版app" 推荐相关案例
6686注册获取同款设计方案
姓名*
楼盘*
电话*
*为了您的权益, 您的隐私将严格保密
预约成功 (6686官方版app)
您已报名成功, 稍后会有客服人员联系您。 您的隐私将被严格保密。
关注二维码了解6686体育装修知识
联系我们
"6686官方版app" 装修咨询电话 : 027-82411111
"6686官方版app" 售后服务电话 : 027-82866788
公司地址 : 6686平台市江岸区澳门路232号金冠大厦
6686登录我们
友情链接 :
    66866686官方版app下载官方版-6686官方版app下载2025最新 页面版权所有 jingyu-design.cn

    算一算,您家装修需要花多少钱?

    知精准报价 避装修深坑 (6686官方版app)

    "6686官方版app" 01/03

    选择您喜欢的风格

    • 现代轻奢

    • 现代美式

    • 北欧

    • 新中式

    • 欧式

    • 其他

    6686官方版app - 算一算,您家装修要花多少钱?

    知精准报价 避装修深坑

    02/03

    选择房屋面积区间

    • 80-100㎡
    • 100-140㎡
    • 140-200㎡
    • 200-300㎡
    • 300㎡以上

    03/03 (6686官方版app)

    您的户型

    • 两居室

    • 三居室

    • 四居室

    • 五居室

    • 六居室

    "6686官方版app" 算一算,您家装修要花多少钱?

    知精准报价 避装修深坑

    0%

    稍等片刻,您的报价正在生中......

    6686官方版app - 算一算,您家装修要花多少钱?

    知精准报价 避装修深坑

    "6686官方版app" 您的完整报价已经生成

    报名成功享抢订优惠名额

    每日仅限前10名用户