24小时咨询电话
027-82411111
当前位置 : 首页 > 户型解析 > 东湖风光174㎡四居室现代风住宅户型解析
东湖风光174㎡四居室现代风住宅户型解析
发布时间 : 2024-06-29 09:53
"6686官方版app" 查看数 :

这个家,足以容纳三代共聚一堂


开阔的布局,通透的视野,温馨的氛围 6686官方版app,精致的细节……这些元素共同构筑了这个家的独特魅力。


设计之初 6686官方版app,我们细致考量居者的需求,喜好与生活方式,精心优化重组空间布局,力求实现多功能一体化,同时,巧妙打造“隐形”收纳空间,确保空间通透开阔,为居者打造舒适宜人的生活环境。




东湖风光174㎡现代风


户型解析


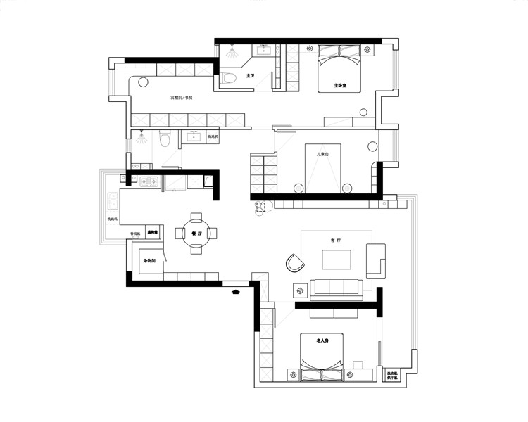
1、入户无独立玄关,收纳稍显不足


2、厨房空间小,做不了中西厨分区


3、走道较为狭长,空间有些浪费


东湖风光174㎡现代风


优化改造


1 6686官方版app,入户门右侧设半高玄关柜,长辈房外定制通顶鞋柜,增强入户收纳功能,优化空间布局。


2,整合餐厅,阳台与厨房,新布局容纳中西厨,储物空间,并与餐厅融合 6686官方版app,实现多功能一体化。


3 6686官方版app,公卫内移创造拖地机空间,部分走道融入主卧套间,并借次卧走道定制储物柜,优化收纳。





东湖风光174㎡现代风



这个家进门的位置是没有独立玄关的,进门就是客餐厅 6686官方版app


东湖风光174㎡现代风


这里将右侧墙体延伸 6686官方版app,将长辈房外侧定制的通顶鞋柜完全嵌入,实现“完美隐形”。


半高鞋柜与摆件 6686官方版app,绿植巧妙融合,共同打造出充满艺术气息的精致端景。




东湖风光174㎡现代风


东湖风光174㎡现代风


东湖风光174㎡现代风


柔和的日光透过玻璃窗,轻抚宽敞的客厅 6686官方版app,温暖的光辉弥漫每一个角落,为居室披上宁静温暖的华裳。


随着日光铺洒,视野无限延伸,通透的公区宛如居者内心的宽广天地,这里,静谧与喧嚣并存 6686官方版app,既能容纳个人的沉思,也能承载全家的欢聚。


东湖风光174㎡现代风


东湖风光174㎡现代风


天然石材作为地台,与悬浮电视背景及灯线精妙融合,于静谧中流露艺术韵味,巧妙平衡休闲与雅致,构筑出别具一格的生活美学空间。


东湖风光174㎡现代风


侧边岩板黑白交织,绿意盎然伫立其前,虚实相生间绘就一幅诗意盎然的水墨图景,赋予平凡日常诗意之美。


东湖风光174㎡现代风


阳台一角,黑玻书柜巧妙嵌入,与电视背景和谐相融。随手翻阅一本心仪的书籍,悠然落座于柔软的懒人沙发,尽享宁静的阅读时光。


东湖风光174㎡现代风


经线条与色块精心勾勒的沙发背景墙,彰显出别具一格的简约与高雅,它完美融入整体家居环境,营造出和谐统一的视觉美感。


东湖风光174㎡现代风


梦幻的纱帘将洗衣晾晒区隐藏,确保各功能区间互不干扰,使家居生活更静谧有序。




东湖风光174㎡现代风


东湖风光174㎡现代风


改造后的餐厨,不仅空间更大,功能也更齐全。


东湖风光174㎡现代风


东湖风光174㎡现代风


定制高柜嵌入冰箱,形成一体化设计,既整洁美观又实用。餐边柜兼顾西厨功能,顶部增设酒柜,为日常生活增添6686体育趣味与便利。


东湖风光174㎡现代风


餐桌旁并非仅有一面墙,实际上这里藏着隐形门,门后则是一个杂物间,家里不常用的物品都可以妥善收纳于此。




东湖风光174㎡现代风


东湖风光174㎡现代风

东湖风光174㎡现代风


无需复杂设计,深色系的半墙护墙板,就将卧室的氛围渲染得愈发宁静深邃,让人不自觉地放松身心,回归内心的平静。


东湖风光174㎡现代风


次卧经过改造,蜕变为时尚衣帽间,与主卧、主卫融合,共同构筑起一个奢华大套间,为品质生活增添无尽魅力与舒适。


东湖风光174㎡现代风


利用窗台位置定制转角办公区,墙体两侧定制满墙衣柜,实现工作与收纳的完美融合。


东湖风光174㎡现代风


卫浴干湿分离,采用墙地一体式铺贴设计,尽显高级质感,同时带来清透舒适的洗浴体验。


客房.jpg


东湖风光174㎡现代风


毗邻阳台的房间,专为长辈休憩打造,淡雅色调营造出宁静优雅的氛围,每一寸空间都流淌着对长辈的深情关怀与深深尊重。


东湖风光174㎡现代风


儿童房的设计,既注重实用性也兼顾趣味性。


东湖风光174㎡现代风


床头背景墙选用清新的淡蓝色,营造出静谧而雅致的氛围,同时也为孩子的世界增添了童趣与梦幻的色彩。


东湖风光174㎡现代风


窗前设有悬浮书桌,专为孩子阅读学习而设计。书桌旁是满墙书柜,转角处采用弧形设计,有效降低磕碰风险,尽显父母对孩子细致入微的关爱。


预约设计师
海量行家, 抢订6686注册设计服务
每日前20名申请用户, 获3D装修设计图
686官方版app - 推荐相关案例
6686注册获取同款设计方案
姓名*
楼盘*
电话*
*为了您的权益, 您的隐私将严格保密
预约成功
您已报名成功, 稍后会有客服人员联系您。 您的隐私将被严格保密。
关注二维码了解6686体育装修知识
联系我们
装修咨询电话 : 027-82411111
售后服务电话 : 027-82866788
"6686官方版app" 公司地址 : 6686平台市江岸区澳门路232号金冠大厦
6686官方版app - 6686登录我们
友情链接 :
    66866686官方版app下载官方版-6686官方版app下载2025最新 页面版权所有 jingyu-design.cn

    算一算,您家装修需要花多少钱?

    知精准报价 避装修深坑

    "6686官方版app" 01/03

    选择您喜欢的风格

    • 现代轻奢

    • 现代美式

    • 北欧

    • 新中式

    • 欧式

    • 其他

    算一算,您家装修要花多少钱?

    知精准报价 避装修深坑

    "6686官方版app" 02/03

    选择房屋面积区间

    • 80-100㎡
    • 100-140㎡
    • 140-200㎡
    • 200-300㎡
    • 300㎡以上

    686官方版app - 03/03

    您的户型

    • 两居室

    • 三居室

    • 四居室

    • 五居室

    • 六居室

    6686官方版app - 算一算,您家装修要花多少钱?

    知精准报价 避装修深坑

    0%

    稍等片刻,您的报价正在生中......

    算一算,您家装修要花多少钱?

    知精准报价 避装修深坑

    您的完整报价已经生成

    报名成功享抢订优惠名额

    每日仅限前10名用户