"6686官方版app" 24小时咨询电话
027-82411111
当前位置 : 首页 > 户型解析 > 城市大厦130㎡三居室现代风住宅户型解析
城市大厦130㎡三居室现代风住宅户型解析
发布时间 : 2024-07-06 10:50
查看数 :


昏暗的光线,老旧的设施,杂乱的物品堆放,狭小的卫生间……这些都是老房子亟待解决的问题 6686官方版app,因此,屋主毅然决定进行全面的翻新改造,以期用全新的面貌来迎接更加高品质的生活。


简洁,时尚,耐看,通透 6686官方版app,是屋主对新居的首要期待,经过深入交流,我们迅速在设计理念上达成一致,决定以随性自然的黑白灰作为主色调,对空间布局进行精心重组,旨在扩大生活区域,让自由无拘的气息充盈于整个居家空间之中。





城市大厦130㎡现代黑白灰


城市大厦130㎡现代黑白灰


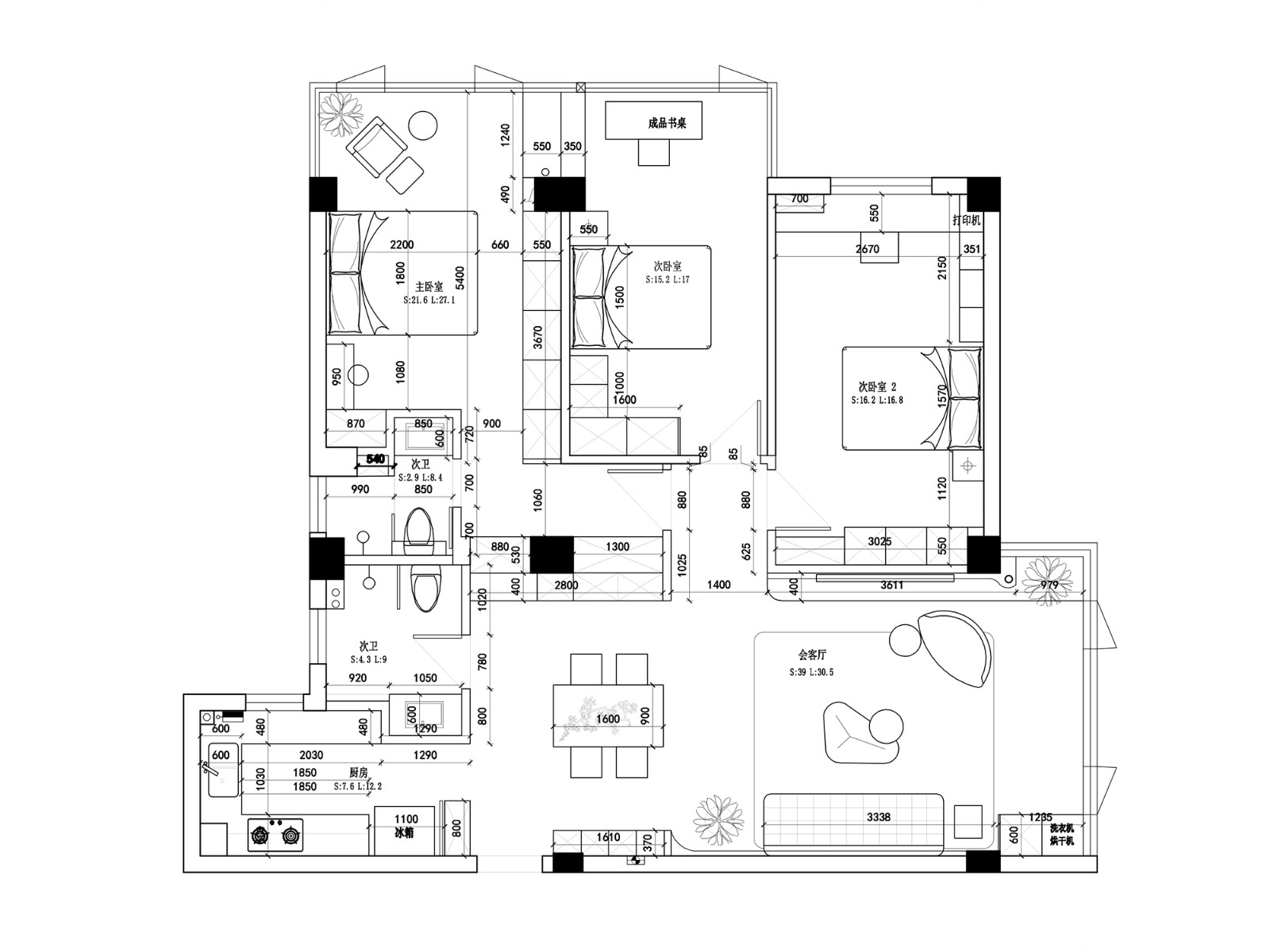
①入户门直面次卫门,隐私性不佳


②主卫局促,阳台、走道空间浪费多


③各个空间收纳不足,利用率低


城市大厦130㎡现代黑白灰


优化改造


①优化次卫布局,借用厨房空间嵌入洗漱区,并调整门向 6686官方版app,规避大门与次卫门直对。


②扩大主卫 6686官方版app,借主卧空间设洗手台,分割卧室旁走道与阳台,分别融入室内空间。


③承重墙不动 6686官方版app,两侧定制衣柜餐边柜,增强收纳并巧妙遮挡承重柱,美化空间。




城市大厦130㎡现代黑白灰



城市大厦130㎡现代黑白灰


在黑白灰的主色调下 6686官方版app,客厅弥漫着一股纯粹而高雅的气息,这种色调凭借其强大的包容性和可塑性,勾勒出了一幅和谐而宜居的生活画卷。


线条,作为这幅画卷的灵魂笔触 6686官方版app,以精准而富有韵律的比例分割,不仅强化了画面的结构美,更赋予其震撼人心的视觉冲击力,使每一处细节都跃然纸上,立体而鲜活。


城市大厦130㎡现代黑白灰


十字线条勾勒悬浮电视背景 6686官方版app,强化轮廓,木色格栅点缀其间,深化空间纵深感,整体设计层次分明,尽显雅致与立体美学。


城市大厦130㎡现代黑白灰


将目光聚焦于沙发背景,其设计以简练线条搭配温馨的暖光灯带,仅仅几笔勾勒,便展现出非凡的艺术韵味与格调 6686官方版app


城市大厦130㎡现代黑白灰


城市大厦130㎡现代黑白灰


过多的白色或许会显得单调,但摆放一款线条圆润的黑色沙发 6686官方版app,不仅引领视觉下沉,还融入了静谧与安宁的氛围,一旁蓬勃生长的植物,更为空间增添了一抹清新与生机。


城市大厦130㎡现代黑白灰


客厅与阳台融合后,顶面梁体曾略显突兀,但通过巧妙的斜面设计,现已与顶面流畅衔接。


笔直的线性灯则如同精致的纽带,将阳台、客厅与餐厅三个空间无缝串联,营造出连贯而和谐的视觉体验。


城市大厦130㎡现代黑白灰


城市大厦130㎡现代黑白灰


城市大厦130㎡现代黑白灰


卓越的收纳能力,是构建舒适生活的基础。


入户门旁的两组玄关柜,为居者出门入户提供了极大的便利。它们不仅承载着收纳鞋履、衣物、包包等日常用品的功能,还能兼任餐边柜的角色,使空间利用更高效。


城市大厦130㎡现代黑白灰


餐桌的另一侧,矗立着真正的餐边柜。白色柜体融合黑玻酒柜,黑白之间,有藏有露,尽显简约而不失格调的生活美学,实用与美观并存。


城市大厦130㎡现代黑白灰


餐边柜背景选用大理石,与端景台和谐统一,其天然纹理交织冷峻质感,为用餐区域平添一份高贵与典雅,让每次用餐都成为视觉与味觉的双重享受。


城市大厦130㎡现代黑白灰



城市大厦130㎡现代黑白灰



主卧空间,一袭纯白优雅铺陈,宛如初雪覆盖,静谧且圣洁。整体设计没有多余杂色侵扰,仅余纯净与安详,悄然拉开每个夜晚甜蜜梦境的序幕。


城市大厦130㎡现代黑白灰


阳台无缝融入室内,巨幅落地窗化作自然画框,将外界风光温柔引入,让自然光线肆意流淌,瞬间点亮室内,营造出一种既开放通透又兼顾私密性的生活享受。


城市大厦130㎡现代黑白灰


城市大厦130㎡现代黑白灰


扩容后的儿童房,不仅宽敞舒适,完美契合休憩之需,更巧妙融入学习区域,激发孩子无限探索欲。同时,增设了丰富的收纳空间,让每一样物品都能井然有序。


城市大厦130㎡现代黑白灰


由阳台改造的学习区,既蕴含趣味性又兼备浓厚的书卷气息。学习之余,偶尔眺望远景,既护眼又让身心得到放松。


城市大厦130㎡现代黑白灰


一体式书柜与书桌规划出简致的收纳体系,功能与美感维持着平衡。这里是学习小天地,也是展示个人手办收藏的趣味空间,学习与兴趣爱好和谐共存。

上一篇没有了
"6686官方版app"
预约设计师
海量行家, 抢订6686注册设计服务
每日前20名申请用户, 获3D装修设计图
推荐相关案例
6686官方版app - 6686注册获取同款设计方案
姓名*
楼盘*
电话*
*为了您的权益, 您的隐私将严格保密
预约成功
您已报名成功, 稍后会有客服人员联系您。 您的隐私将被严格保密。
关注二维码了解6686体育装修知识
"6686官方版app" 6686登录我们
"6686官方版app" 澳华历程
官方微博
联系我们
装修咨询电话 : 027-82411111
售后服务电话 : 027-82866788 (6686官方版app)
"6686官方版app" 公司地址 : 6686平台市江岸区澳门路232号金冠大厦
6686登录我们
"6686官方版app" 友情链接 :
    66866686官方版app下载官方版-6686官方版app下载2025最新 页面版权所有 jingyu-design.cn

    686官方版app - 算一算,您家装修需要花多少钱?

    知精准报价 避装修深坑

    686官方版app - 686官方版app - 01/03

    选择您喜欢的风格

    • 现代轻奢

    • 现代美式

    • 北欧

    • 新中式

    • 欧式

    • 其他

    算一算,您家装修要花多少钱?

    知精准报价 避装修深坑

    02/03

    选择房屋面积区间

    • 80-100㎡
    • 100-140㎡
    • 140-200㎡
    • 200-300㎡
    • 300㎡以上

    "6686官方版app" 03/03

    您的户型

    • 两居室

    • 三居室

    • 四居室

    • 五居室

    • 六居室

    算一算,您家装修要花多少钱?

    知精准报价 避装修深坑

    0%

    稍等片刻,您的报价正在生中......

    算一算,您家装修要花多少钱? (6686官方版app)

    知精准报价 避装修深坑

    您的完整报价已经生成

    报名成功享抢订优惠名额

    每日仅限前10名用户