24小时咨询电话
027-82411111
当前位置 : 首页 > 户型解析 > 楚天都市雅园120㎡三居室现代简约雅居户型解析
楚天都市雅园120㎡三居室现代简约雅居户型解析
686官方版app - 发布时间 : 2022-02-28 09:49
查看数 :

    案例简介:


    现代风的时尚气息与美式风的浪漫风情都是业主都偏爱的,也因此在进行该房屋装修的时候,融入了两种装修风格的设计元素 6686官方版app,让空间在风格的碰撞中呈现出不一样的美感,让幸福生活得到更进一步的提升,而色彩的搭配选择上,则是选用了经典且保守的灰白搭配作为主基调色,以避免空间出现多种装修风格而显得过于凌乱。


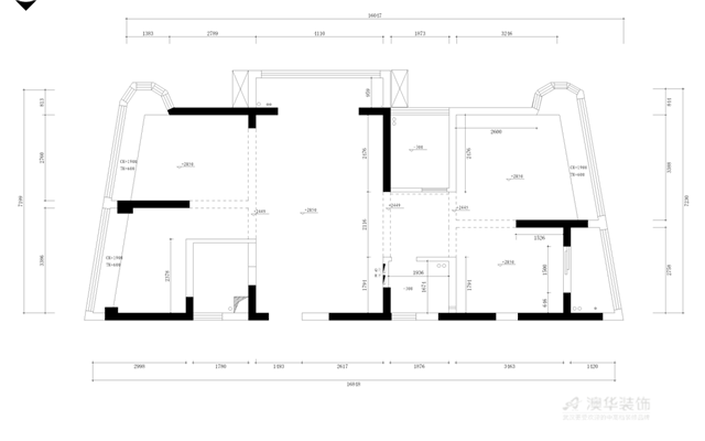
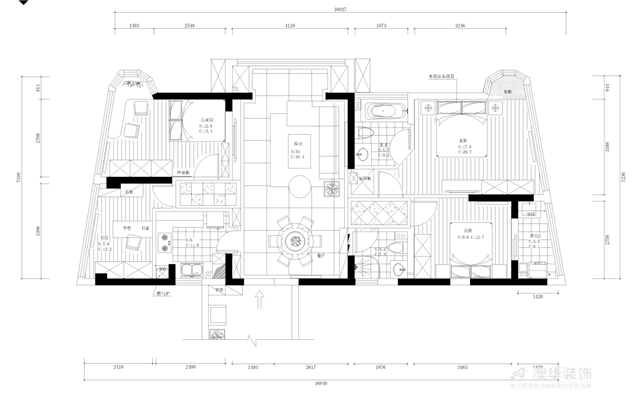
    户型分析:


1.jpg

2.jpg


    位于楚天都市雅园的这套120㎡三居室房屋,空间并非传统的方正格局,需要将犄角空间进行更加合理的规划设计,才能保证每一寸空间都不会被浪费,软隔断与硬隔断的搭配使用 6686官方版app,让不同功能空间的划分有了主次之分,而儿童区域则使用了靓丽的色彩进行装饰,营造童心韵味,卧室区域则将外墙直接打通设计为落地窗,彰显空间的明亮格调美。


    客厅:


3.jpg


    客厅区域使用了经典的灰白色搭配,强调素雅洁净气息 6686官方版app,几何放射形图案的背景墙面则为客厅注入了一抹律动气息,避免空间看起来过于的素雅单调。


    餐厅:


4.jpg


    灰色的墙面搭配上山水画,为餐厅区域奠定了清新氛围 6686官方版app,大面积的置物柜既提升了空间利用率,又可巧妙利用各类物件装饰点缀空间。


    卧室:


5.jpg


6.jpg


    淡暖黄色的墙面搭配上几何图形地毯,强调一种素雅柔和气息 6686官方版app,大面积的落地窗则确保阳光能够直接撒落在床上,让空间多一抹温暖自然美。


"6686官方版app"
"6686官方版app" 预约设计师
海量行家, 抢订6686注册设计服务
每日前20名申请用户, 获3D装修设计图
推荐相关案例
6686注册获取同款设计方案
姓名*
楼盘*
电话*
*为了您的权益, 您的隐私将严格保密
预约成功 (6686官方版app)
您已报名成功, 稍后会有客服人员联系您。 您的隐私将被严格保密。
关注二维码了解6686体育装修知识
6686登录我们 (6686官方版app)
澳华历程
"6686官方版app" 官方微博
联系我们
"6686官方版app" 装修咨询电话 : 027-82411111
售后服务电话 : 027-82866788 (6686官方版app)
公司地址 : 6686平台市江岸区澳门路232号金冠大厦
6686登录我们
友情链接 :
    66866686官方版app下载官方版-6686官方版app下载2025最新 页面版权所有 jingyu-design.cn

    6686官方版app - 算一算,您家装修需要花多少钱?

    知精准报价 避装修深坑

    01/03

    选择您喜欢的风格

    • 现代轻奢

    • 现代美式

    • 北欧

    • 新中式

    • 欧式

    • 其他

    算一算,您家装修要花多少钱?

    知精准报价 避装修深坑

    02/03

    选择房屋面积区间

    • 80-100㎡
    • 100-140㎡
    • 140-200㎡
    • 200-300㎡
    • 300㎡以上

    "6686官方版app" 03/03

    您的户型

    • 两居室

    • 三居室

    • 四居室

    • 五居室

    • 六居室

    算一算,您家装修要花多少钱?

    知精准报价 避装修深坑

    0%

    稍等片刻,您的报价正在生中......

    算一算,您家装修要花多少钱?

    知精准报价 避装修深坑

    您的完整报价已经生成

    报名成功享抢订优惠名额

    每日仅限前10名用户