24小时咨询电话
027-82411111
当前位置 : 首页 > 户型解析 > 新华联青年城160㎡四居室舒适美式格调住宅户型解析
新华联青年城160㎡四居室舒适美式格调住宅户型解析
发布时间 : 2022-03-05 19:28
查看数 : 686官方版app -

    案例简介:本案例的业主是一对在大城市打拼多年的白领夫妻,两人对于房屋有着自己的理解,希望设计师能够帮助自己打造出一个清新优雅而又不失现代时尚气息的住宅,而根据业主的生活习惯,审美等 6686官方版app,在装修风格上选择了自由感较强的美式风,而材料的选择上则更偏向于质感与色彩兼具的,以达到在无形之中装饰空间的作用。


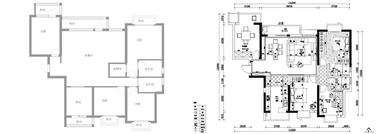
    户型解析:


未命名.jpg


    舒适的四房两卫,160平米空间充足,厨房阳台扩充到厨房,形成一个非常敞亮的厨房,保留客厅阳台,各区域功能分明,衣帽间拆除,扩充厨房与次卧面积,让其更宽敞,因是一家三口居住,仅保留两间卧室,其它次卧均分别改为多功能房与书房 6686官方版app


    客厅:


客厅.jpg

    设计感十足的艺术大理石背景墙搭配上简约木质储物柜 6686官方版app,清冷与温润之间的碰撞为空间注入了一抹结构层次美。


    厨房:

厨房2.jpg

    大面积的推拉窗户能够确保厨房油烟尽快释放,简约的黑白配色耐看而又不失时尚气息 6686官方版app


    卧室:

卧室.jpg

    带有纹理设计的木板贴纸温润而又不失自然感,搭配上柔软的床具,强调舒适惬意感 6686官方版app


    卫生间:

卫生间.jpg

    圆形镜子搭配上镂空木质背景墙,简约而又不失禅意美 6686官方版app


(6686官方版app)
6686官方版app - 预约设计师
海量行家, 抢订6686注册设计服务
每日前20名申请用户, 获3D装修设计图
推荐相关案例
6686注册获取同款设计方案
姓名*
楼盘*
电话*
*为了您的权益, 您的隐私将严格保密
预约成功
您已报名成功, 稍后会有客服人员联系您。 您的隐私将被严格保密。
关注二维码了解6686体育装修知识
6686官方版app - 6686登录我们
6686官方版app - 澳华历程
官方微博
6686官方版app - 联系我们
装修咨询电话 : 027-82411111
售后服务电话 : 686官方版app - 027-82866788
公司地址 : 6686平台市江岸区澳门路232号金冠大厦 (6686官方版app)
6686登录我们
"6686官方版app" 友情链接 :
    66866686官方版app下载官方版-6686官方版app下载2025最新 页面版权所有 jingyu-design.cn

    6686官方版app - 算一算,您家装修需要花多少钱?

    知精准报价 避装修深坑

    686官方版app - 01/03

    选择您喜欢的风格

    • 现代轻奢

    • 现代美式

    • 北欧

    • 新中式

    • 欧式

    • 其他

    算一算,您家装修要花多少钱?

    知精准报价 避装修深坑

    02/03

    选择房屋面积区间

    • 80-100㎡
    • 100-140㎡
    • 140-200㎡
    • 200-300㎡
    • 300㎡以上

    03/03

    您的户型 (6686官方版app)

    • 两居室

    • 三居室

    • 四居室

    • 五居室

    • 六居室

    "6686官方版app" 算一算,您家装修要花多少钱?

    知精准报价 避装修深坑

    0%

    稍等片刻,您的报价正在生中......

    6686官方版app - 算一算,您家装修要花多少钱?

    知精准报价 避装修深坑

    您的完整报价已经生成 (6686官方版app)

    报名成功享抢订优惠名额

    每日仅限前10名用户