6686官方版app - 24小时咨询电话
027-82411111
当前位置 : 首页 > 户型解析 > 汉阳世茂天胤 550㎡ 六居室港式轻奢豪宅户型解析
汉阳世茂天胤 550㎡ 六居室港式轻奢豪宅户型解析 (6686官方版app)
发布时间 : 2022-03-05 19:33
查看数 :

    案例简介:本案例的业主对于生活品质有着极高的要求,想要在自己的房屋中体现出低调而又轻奢的高级气息 6686官方版app,而由于阳台区域面积较大,因此业主希望能够将该区域空间进行合理的利用,能够满足自己与家人,朋友的休憩使用需求,基于此,设计师选择了相对比较稳妥的轻奢风装饰整体空间,同时借助材料本身的质感装饰房屋。


    户型解析:

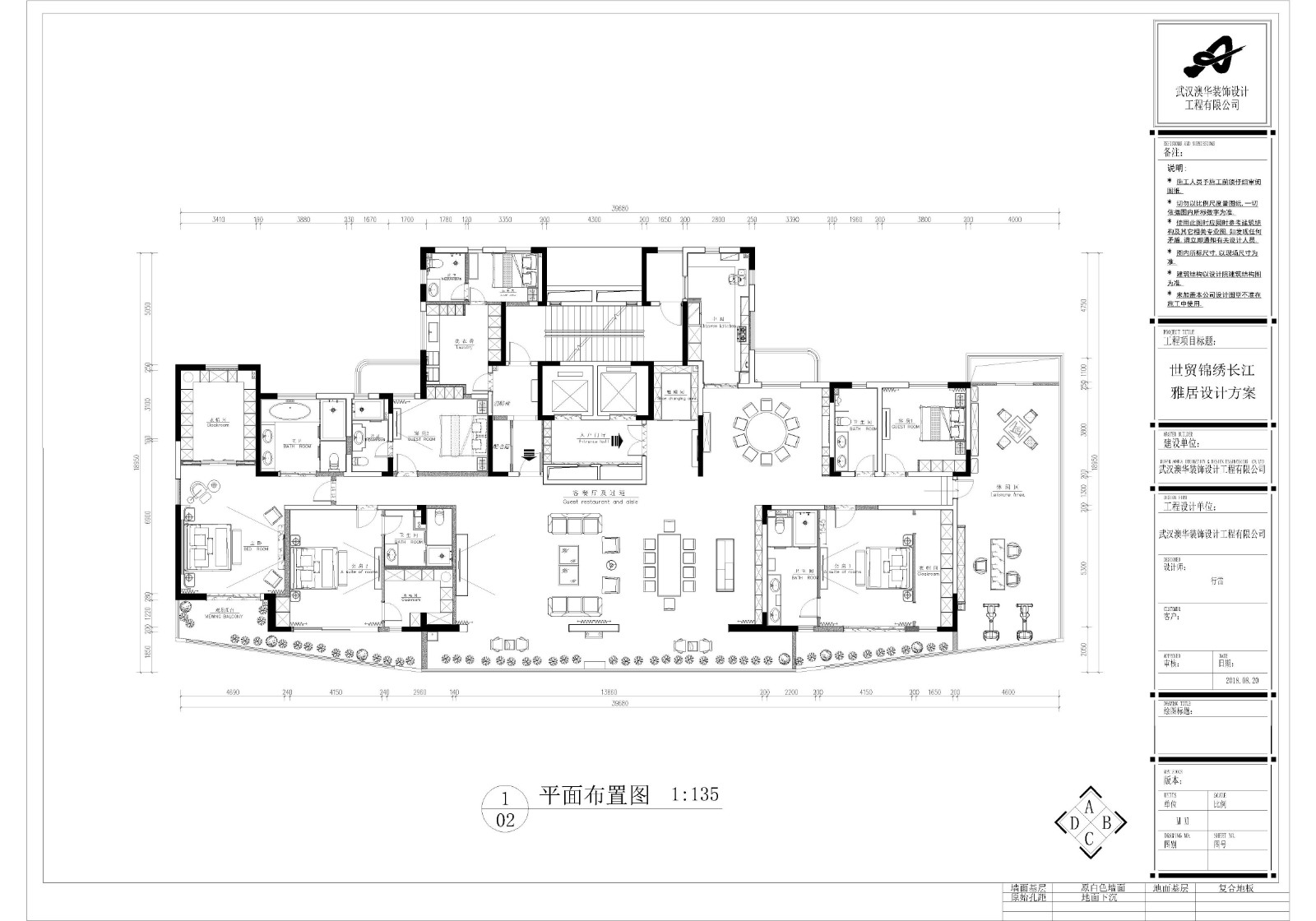
户型图.jpg

    汉阳世茂天胤这套550㎡的房屋面积较为宽敞,虽然整体结构四四方方,但是空间中存在着不少的零碎角落,因此需要设计师将这些空间进行合理的分配使用,在提升空间利用率的同时确保整个家居空间能够更好的为业主所服务,而就餐区域与入户门厅的狭小角落,就根据需求设计成一个小小的鞋帽间 6686官方版app,满足业主一家人出入替换衣物及放置物件的需求。


    客厅:




    皮质与玻璃 6686官方版app,木板等不同质感的材料让客厅的结构感更为丰富,同色系的色彩搭配简约而又不单调,有效提升空间质感。


    餐厅:




    对称式的挂画设计增添空间沉稳大气氛围 6686官方版app,大理石餐桌简约而又高贵,有效提升了就餐环境的氛围与格调。


    卧室:




    大面积的落地玻璃窗让阳光能够“肆无忌惮”的进入休憩空间,凹显式的吊灯设计搭配上镶边处理 6686官方版app,简单低调中又暗含着典雅贵气美。


    休闲区:




    三面落地窗搭配上各类木质家具就构成了休闲区的软装,此外再“借入”室外景观 6686官方版app,简单而又不失自然艺术感。


(6686官方版app)
预约设计师
海量行家, 抢订6686注册设计服务
每日前20名申请用户, 获3D装修设计图
686官方版app - 推荐相关案例
6686注册获取同款设计方案
姓名*
楼盘*
电话*
*为了您的权益, 您的隐私将严格保密
"6686官方版app" 预约成功
您已报名成功, 稍后会有客服人员联系您。 您的隐私将被严格保密。
关注二维码了解6686体育装修知识
联系我们
装修咨询电话 : 027-82411111
售后服务电话 : 027-82866788
公司地址 : 6686平台市江岸区澳门路232号金冠大厦
6686登录我们
友情链接 :
    66866686官方版app下载官方版-6686官方版app下载2025最新 页面版权所有 jingyu-design.cn

    686官方版app - 算一算,您家装修需要花多少钱?

    知精准报价 避装修深坑

    01/03

    选择您喜欢的风格

    • 现代轻奢

    • 现代美式

    • 北欧

    • 新中式

    • 欧式

    • 其他

    算一算,您家装修要花多少钱? (6686官方版app)

    知精准报价 避装修深坑

    02/03

    选择房屋面积区间

    • 80-100㎡
    • 100-140㎡
    • 140-200㎡
    • 200-300㎡
    • 300㎡以上

    686官方版app - 03/03

    您的户型 (6686官方版app)

    • 两居室

    • 三居室

    • 四居室

    • 五居室

    • 六居室

    "6686官方版app" 算一算,您家装修要花多少钱?

    知精准报价 避装修深坑

    0%

    稍等片刻,您的报价正在生中......

    算一算,您家装修要花多少钱?

    知精准报价 避装修深坑

    "6686官方版app" 您的完整报价已经生成

    报名成功享抢订优惠名额

    每日仅限前10名用户