24小时咨询电话 (6686官方版app)
027-82411111
首页 > 找设计师 > 方瑞哲设计师户型解析
户型解析
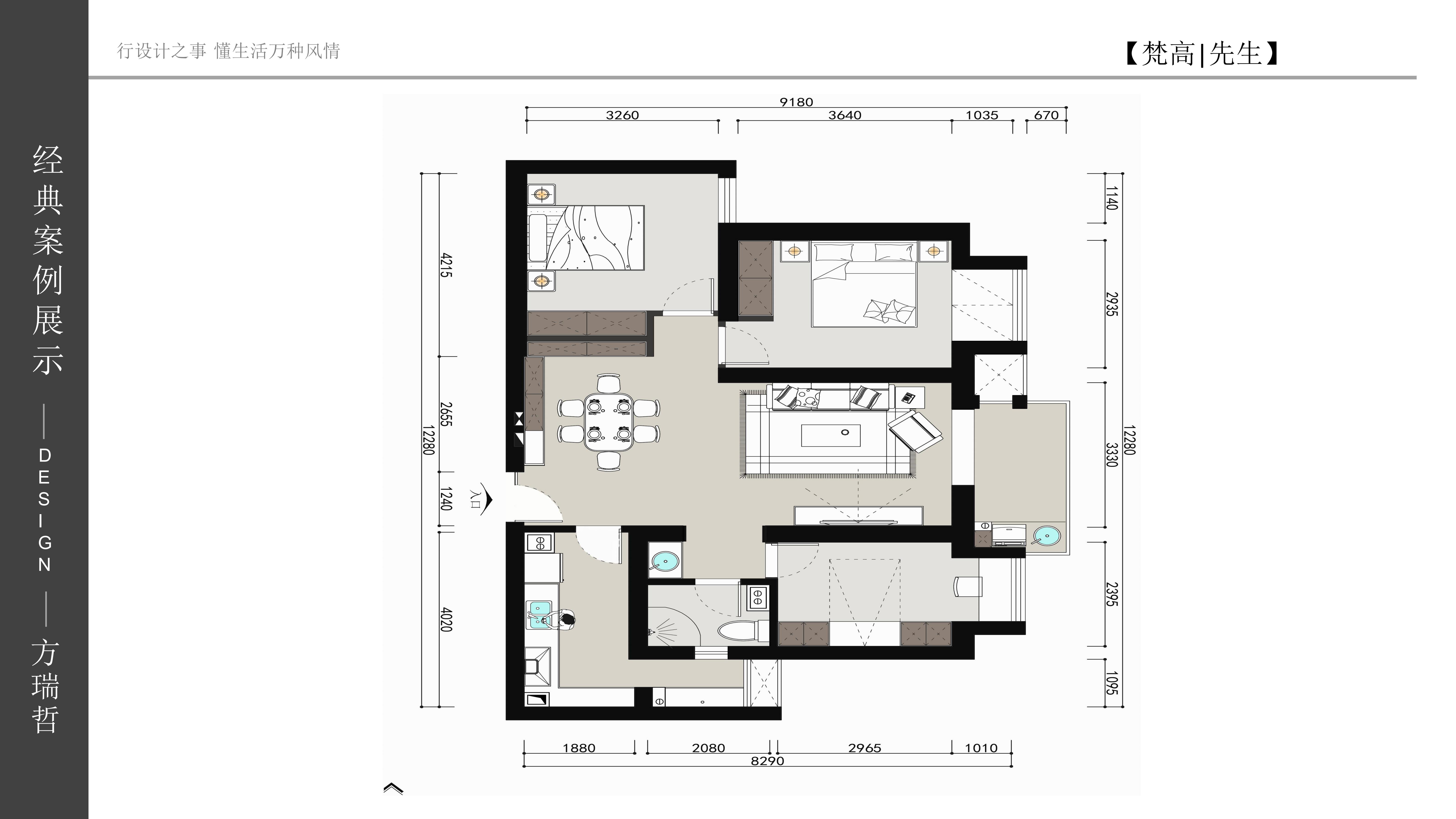
爱家88㎡二居室美式田园清新小窝户型解析
二居室
"6686官方版app" 88m²
6686官方版app - 美式

    案例简介:本案例的业主是一个热爱田园风光的独居女白领,她希望自己的家中能够引入一些自然化元素,让自己在休憩时感受到自然的美好与舒适 6686官方版app,而由于房屋一般就只有自己居住,父母会偶尔过来探望自己,所以希望设计师能够为偶尔来探望自己的父母预留出一个空间,根据业主的想法,设计师选择了美式田园风作为空间软装方向,搭配以各种清新的色彩及自然化元素,让室外美景“走”入家居空间。


    户型解析:


梵高先生 6686官方网站作品集 第二章_94(1).jpg

    爱家的这套二居室的房屋占地面积约为88㎡,整个的房屋结果相对比较方正,但是由于房屋面积不算宽敞,想要设计出两个独立的休憩空间存在着一定难度,为了满足业主及其父母的起居使用需求,设计师舍弃主卧的卫生间设计 6686官方版app,同时将客厅区域进行放大,以提升整个家居空间的宽敞度,而由于整个家居空间面积不大,因此家具的选择上,设计师优先选用了造型简单且体量较小的,以起到视觉平衡效果。


    客厅:





    大面积的淡蓝色让人仿佛窥见蓝天的清新烂漫,做旧处理的方形瓷砖装饰性强而又不会显得过于突兀 6686官方版app


    卧室:

卧室.jpg

    木色低的花鸟画壁画墙面清新而又不失韵味美,简单的蕾丝帘布文艺范十足,有效起到空间隔断作用 6686官方版app


    卫生间:

卫生间.jpg

    卫生间区域借用大面积的浅色瓷砖进行铺设,强调空间整洁清爽感,镂空式台面下置洗衣机,有效提升空间利用率 6686官方版app


世茂锦绣长江118㎡三居室简欧风优雅小窝户型解析
三居室
"6686官方版app" 118m²
简欧风

    案例简介:本案例的业主偏爱欧洲文化 6686官方版app,因此希望设计师在设计的过程中能够融入一些具有欧洲风情的元素,而由于本案例房屋面积并不算宽敞,如果选用传统欧式风进行软装,会显得突兀且违和,为了满足业主的审美同时兼顾空间结构特点,设计师选择了带有欧洲风情而又相对比较简约素雅的简欧风进行软装,通过少量欧式化元素与简约元素的碰撞组合,打造出业主梦想的起居环境。


    户型解析:


梵高先生 6686官方网站作品集 第二章_18(1).jpg

    世茂锦绣长江这套118㎡的三居室住宅外部户型结构平整,但是内部结构存在着一些难以处理的细小角落,如厨房区域向内延伸的区域与墙面形成了一个长条形空间 6686官方版app,该空间相对比较拥挤,如果不进行合理的规划就会导致空间被直接闲置,而设计师在充分考虑区域结构与业主使用需求的前提下,将该区域空间打造成一个“L”形的厨房收纳空间,有效提升了空间的利用率。


    客厅:


客厅.jpg

    大面积的白色搭配上暖黄色灯具,强调欧洲贵族风情,造型简约的家具搭配上细节处理 6686官方版app,在无形中增添空间的欧式贵族感。


    厨房:

厨房.jpg

    “L”形设计符合空间结构特点,且保障厨房使用者能够正常出入 6686官方版app


    书房:


书房.jpg

    榻榻米设计既可以满足收纳需求,又可满足客人短暂居住需求 6686官方版app


    卧室:


卧室.jpg

    带有暗纹处理的素色背景清新耐看又高级,搭配上造型华丽的床具,欧式贵族美展露无疑。


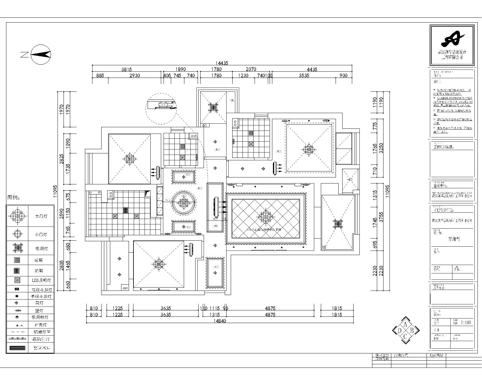
新城璟悦城123㎡三居室现代轻奢住宅户型解析
6686平台澳华装饰
123m²
轻奢风

    案例简介:本案例的房屋位于喧嚣的住宅区高层,有着绝佳的采光通风及观赏视角,设计师将阳台、会客区域与室外景色作为一个整体进行规划设计,有效提升了室内外的联系感,让室外景色能够“借”入会客区域,以提升整个客厅区域的格调感。而相同材质的穿插使用及不同类型块面的碰撞,则让整个家居空间更显丰富,搭配以质感元素,品质韵味呼之欲出。


    户型解析:


微信图片_20210913113846.jpg


微信图片_20210913113905.jpg


    新城璟悦城的这套三居室面积为123平方米,整体户型南北通透、采光较好,设计师在设计时将重点放在了功能配比与动静分区上,将休憩区域与会客区域、就餐区域隔开,以提升生活质感。为满足主人的办公、阅读需求,设计师将一块空间划分为迷你书房,搭配以简单的装饰,让空间兼具功能性与美观性。


    客厅:



    白色水泥墙搭配上镶金边处理的电视背景墙,一种典雅的轻奢氛围呼之欲出。绿色的丝绒沙发,则让空间的色彩感更为跳跃活泼。


    厨房:


厨房1.jpg

    厨房区域以暖黄色为主基调色,简约清新而又不会显得过于单调,核桃色的木质橱柜,则让空间更显高级品质。


    卧室:


卧室1.jpg


    卧室区域没有过多的装饰,仅以两幅简单艺术画的叠挂作为装饰点缀,简约而又不失浪漫格调。


世茂锦绣长江150㎡四居室简欧格调住宅户型解析
"6686官方版app" 6686平台澳华装饰
150m²
简欧风 (6686官方版app)

    案例简介:本案例的业主是一对80后夫妻,两个人在大城市打拼多年终于买了属于自己的房屋,对于这套来之不易的房屋两人格外重视,而装修上也十分上心。而设计师为了保障能够呈现出让业主满意的装修效果,在前提与这对夫妻进行了较为深入的沟通,在充分了解业主喜好、生活习惯后对空间进行了再规划设计,同时通过材料本身的质感与线条搭配来营造一种简欧轻奢的小资格调感。


    户型解析:



    世茂锦绣长江的这套150㎡的四居室主宰整体格局呈现一个大正方形,因此在规划设计上不适合将动静区域完全分隔开,而设计师则利用将就餐区域作为家居中心点,卧室、厨房、客厅则围绕就餐区域展开进行设计,有效提升空间利用率的同时有效提升了空间结构的层次感与丰富感。空间整体软装则以暖黄色为主基调色,与简欧风相契合,强调温和典雅氛围。


    客厅:


639A3983 z.jpg


    客厅区域使用了大量的欧式复古元素,在大面积暖黄色面的构造下点缀以造型设计,让空间的简欧华丽氛围得到从容表达。


    厨房:


厨房2.jpg


    简约的暗纹瓷砖搭配上大面积的橱柜,简约耐看而又不失实用性。


    卧室:

主卧3.jpg


    带有印花处理的白色墙纸搭配以简约的小清新挂灯就构成了卧室区域的整体软装,整体视觉效果清新简约而不单调。


    卫生间:


主卫4.jpg


    卫生间区域使用了大面积的淡黄色暗纹瓷砖铺设墙面,强调简欧风情。而橱柜处的浮雕处理,则让整个卫生间区域更具时尚感。



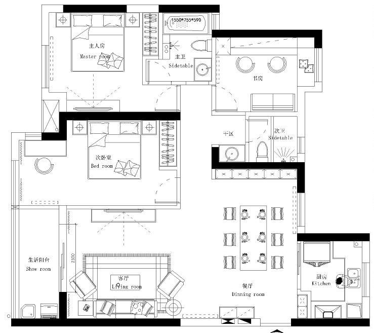
华侨城235㎡五居室轻奢风品质别墅户型解析
别墅
235m²
轻奢风

    案例简介:本案例是一个坐落于喧嚣都市的大户型别墅,业主希望设计师能够帮助自己打造出一个高品质的格调家居,设计师结合业主的审美与实际情况为其打造了一个集高雅颜值与实用相融合的现代轻奢住宅,借助各种高品质的材料来提升空间质感,同时借助线条的律动来增添空间的时尚个性氛围。


    户型解析:


梵高先生 6686官方网站作品集 第二章_68(1).jpg

    华侨城这套五居室的别墅占地面积誉为235㎡,户型结构四方且平整,空间劣势在于入户拐角区域的面积过于宽敞,且从风水的角度上分析该区域不适合作为休憩空间。本案例设计师则将该区域直接进行小隔断,将该区域的外部空间打造成厨房,内部区域则改造为一个迷你的储物间,收置各类零碎物件,以提升家居生活品质感。


    客厅:


客厅.jpg

    深褐色与灰色之间的碰撞,律动感十足的沙发混搭上线形背景墙,彰显空间包容高雅格调。


    书房:


书房.jpg

    大面积木色搭配上白色,强调温润清新的柔和静谧感。嵌入式木质橱柜收纳性强且具有一定空间点缀效果。


    衣帽间:


衣帽间.jpg


    主卧的部分区域被打造成一个迷你衣帽间,借助大面积的收纳强进行装饰点缀,强调功能实用性的同时不失优雅高级感。


方瑞哲
设计总监
从业年限 : 2010
擅长风格 : 现代简约,轻奢,法式,美式,新中式
设计案例 : 华侨城、世茂锦绣长江、万科滨江玉玺、融侨天域、招商公园1872
预约数量 : 156
找TA设计
算一算我家装修需要多少钱
    • 张女士
      132****178
      200m²
    • 成先生
      134****4856
      83m²
    • 董先生
      137****2569
      95m²
    • 成先生
      133****7485
      130m²
    • 李先生
      150****4475
      220m²
    • 张先生
      139****5050
      187m²
    • 王女士
      178****4563
      168m²
    "6686官方版app" 预约设计师
    姓名*
    楼盘*
    电话*
    *为了您的权益, 您的隐私将严格保密
    预约成功
    您已报名成功, 稍后会有客服人员联系您。 您的隐私将被严格保密。
    关注二维码了解6686体育装修知识
    联系我们
    装修咨询电话 : 027-82411111
    售后服务电话 : 027-82866788
    公司地址 : 6686平台市江岸区澳门路232号金冠大厦
    6686登录我们
    6686官方版app - 友情链接 :
      66866686官方版app下载官方版-6686官方版app下载2025最新 页面版权所有 jingyu-design.cn

      算一算,您家装修需要花多少钱?

      知精准报价 避装修深坑

      01/03

      选择您喜欢的风格

      • 现代轻奢

      • 现代美式

      • 北欧

      • 新中式

      • 欧式

      • 其他

      算一算,您家装修要花多少钱?

      知精准报价 避装修深坑

      "6686官方版app" 02/03

      选择房屋面积区间

      • 80-100㎡
      • 100-140㎡
      • 140-200㎡
      • 200-300㎡
      • 300㎡以上

      03/03 (6686官方版app)

      您的户型

      • 两居室

      • 三居室

      • 四居室

      • 五居室

      • 六居室

      "6686官方版app" 算一算,您家装修要花多少钱?

      知精准报价 避装修深坑

      0%

      稍等片刻,您的报价正在生中......

      686官方版app - 算一算,您家装修要花多少钱?

      知精准报价 避装修深坑

      您的完整报价已经生成

      报名成功享抢订优惠名额

      每日仅限前10名用户