<b dropzone="jja3t"></b>
24小时咨询电话
027-82411111
当前位置 : 首页 > 户型解析 > 新城璟悦城123㎡三居室现代轻奢住宅户型解析
6686官方版app - 新城璟悦城123㎡三居室现代轻奢住宅户型解析
发布时间 : 2022-03-03 10:26
查看数 :

    案例简介:本案例的房屋位于喧嚣的住宅区高层 6686官方版app,有着绝佳的采光通风及观赏视角,设计师将阳台,会客区域与室外景色作为一个整体进行规划设计,有效提升了室内外的联系感,让室外景色能够“借”入会客区域,以提升整个客厅区域的格调感,而相同材质的穿插使用及不同类型块面的碰撞,则让整个家居空间更显丰富,搭配以质感元素,品质韵味呼之欲出。


    户型解析:


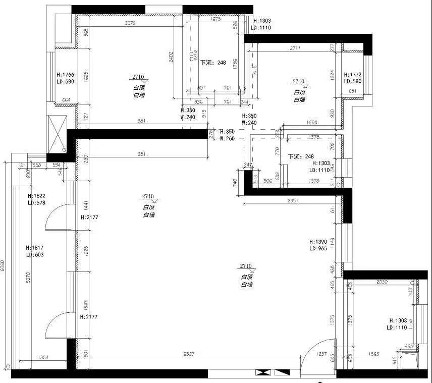
微信图片_20210913113846.jpg


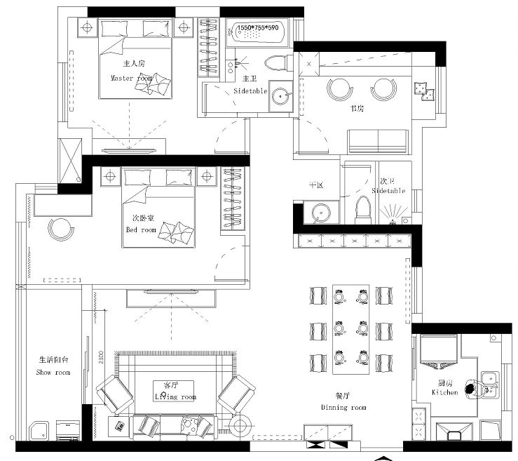
微信图片_20210913113905.jpg


    新城璟悦城的这套三居室面积为123平方米,整体户型南北通透,采光较好,设计师在设计时将重点放在了功能配比与动静分区上,将休憩区域与会客区域 6686官方版app,就餐区域隔开,以提升生活质感,为满足主人的办公,阅读需求,设计师将一块空间划分为迷你书房,搭配以简单的装饰,让空间兼具功能性与美观性。


    客厅:



    白色水泥墙搭配上镶金边处理的电视背景墙 6686官方版app,一种典雅的轻奢氛围呼之欲出,绿色的丝绒沙发,则让空间的色彩感更为跳跃活泼。


    厨房:


厨房1.jpg

    厨房区域以暖黄色为主基调色,简约清新而又不会显得过于单调,核桃色的木质橱柜,则让空间更显高级品质 6686官方版app


    卧室:


卧室1.jpg


    卧室区域没有过多的装饰,仅以两幅简单艺术画的叠挂作为装饰点缀 6686官方版app,简约而又不失浪漫格调。


6686官方版app -
6686官方版app - 预约设计师
海量行家, 抢订6686注册设计服务
每日前20名申请用户, 获3D装修设计图
推荐相关案例
6686官方版app - 6686注册获取同款设计方案
姓名*
楼盘*
电话*
*为了您的权益, 您的隐私将严格保密
预约成功 (6686官方版app)
您已报名成功, 稍后会有客服人员联系您。 您的隐私将被严格保密。
关注二维码了解6686体育装修知识
6686登录我们 (6686官方版app)
澳华历程 (6686官方版app)
官方微博
"6686官方版app" 联系我们
装修咨询电话 : 027-82411111
售后服务电话 : 027-82866788
公司地址 : 6686平台市江岸区澳门路232号金冠大厦
6686登录我们
"6686官方版app" 友情链接 :
    66866686官方版app下载官方版-6686官方版app下载2025最新 页面版权所有 jingyu-design.cn

    算一算,您家装修需要花多少钱?

    知精准报价 避装修深坑

    01/03 (6686官方版app)

    选择您喜欢的风格

    • 现代轻奢

    • 现代美式

    • 北欧

    • 新中式

    • 欧式

    • 其他

    算一算,您家装修要花多少钱?

    知精准报价 避装修深坑

    02/03

    选择房屋面积区间 (6686官方版app)

    • 80-100㎡
    • 100-140㎡
    • 140-200㎡
    • 200-300㎡
    • 300㎡以上

    03/03

    您的户型 (6686官方版app)

    • 两居室

    • 三居室

    • 四居室

    • 五居室

    • 六居室

    算一算,您家装修要花多少钱?

    知精准报价 避装修深坑

    0%

    稍等片刻,您的报价正在生中......

    算一算,您家装修要花多少钱?

    知精准报价 避装修深坑

    您的完整报价已经生成

    报名成功享抢订优惠名额 (6686官方版app)

    每日仅限前10名用户