24小时咨询电话 (6686官方版app)
027-82411111
当前位置 : 首页 > 户型解析 > 世茂锦绣长江150㎡四居室简欧格调住宅户型解析
世茂锦绣长江150㎡四居室简欧格调住宅户型解析
发布时间 : 2022-03-03 10:19 (6686官方版app)
查看数 : (6686官方版app)

    案例简介:本案例的业主是一对80后夫妻,两个人在大城市打拼多年终于买了属于自己的房屋,对于这套来之不易的房屋两人格外重视,而装修上也十分上心,而设计师为了保障能够呈现出让业主满意的装修效果,在前提与这对夫妻进行了较为深入的沟通,在充分了解业主喜好 6686官方版app,生活习惯后对空间进行了再规划设计,同时通过材料本身的质感与线条搭配来营造一种简欧轻奢的小资格调感。


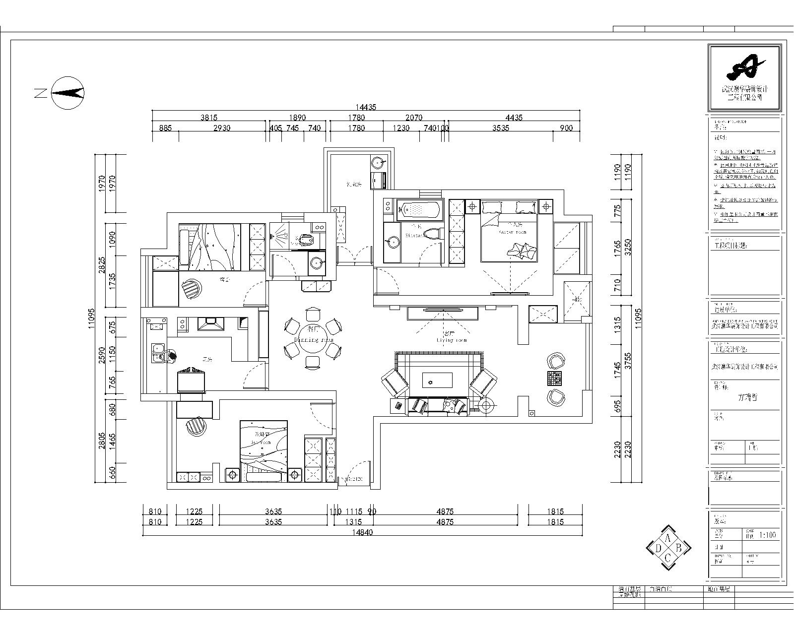
    户型解析:



    世茂锦绣长江的这套150㎡的四居室主宰整体格局呈现一个大正方形,因此在规划设计上不适合将动静区域完全分隔开 6686官方版app,而设计师则利用将就餐区域作为家居中心点,卧室,厨房,客厅则围绕就餐区域展开进行设计,有效提升空间利用率的同时有效提升了空间结构的层次感与丰富感,空间整体软装则以暖黄色为主基调色,与简欧风相契合,强调温和典雅氛围。


    客厅:


639A3983 z.jpg


    客厅区域使用了大量的欧式复古元素,在大面积暖黄色面的构造下点缀以造型设计 6686官方版app,让空间的简欧华丽氛围得到从容表达。


    厨房:


厨房2.jpg


    简约的暗纹瓷砖搭配上大面积的橱柜 6686官方版app,简约耐看而又不失实用性。


    卧室:

主卧3.jpg


    带有印花处理的白色墙纸搭配以简约的小清新挂灯就构成了卧室区域的整体软装 6686官方版app,整体视觉效果清新简约而不单调。


    卫生间:


主卫4.jpg


    卫生间区域使用了大面积的淡黄色暗纹瓷砖铺设墙面,强调简欧风情,而橱柜处的浮雕处理 6686官方版app,则让整个卫生间区域更具时尚感。



预约设计师 (6686官方版app)
海量行家, 抢订6686注册设计服务
每日前20名申请用户, 获3D装修设计图
686官方版app - 推荐相关案例
"6686官方版app" 6686注册获取同款设计方案
姓名*
楼盘*
电话*
*为了您的权益, 您的隐私将严格保密
预约成功
您已报名成功, 稍后会有客服人员联系您。 您的隐私将被严格保密。
关注二维码了解6686体育装修知识
6686官方版app - 联系我们
装修咨询电话 : 686官方版app - 027-82411111
售后服务电话 : 686官方版app - 027-82866788 (6686官方版app)
公司地址 : 6686平台市江岸区澳门路232号金冠大厦
6686登录我们
友情链接 :
    66866686官方版app下载官方版-6686官方版app下载2025最新 页面版权所有 jingyu-design.cn

    算一算,您家装修需要花多少钱?

    知精准报价 避装修深坑

    "6686官方版app" 01/03

    选择您喜欢的风格

    • 现代轻奢

    • 现代美式

    • 北欧

    • 新中式

    • 欧式

    • 其他

    686官方版app - 算一算,您家装修要花多少钱?

    知精准报价 避装修深坑 (6686官方版app)

    02/03 (6686官方版app)

    选择房屋面积区间

    • 80-100㎡
    • 100-140㎡
    • 140-200㎡
    • 200-300㎡
    • 300㎡以上

    03/03

    您的户型

    • 两居室

    • 三居室

    • 四居室

    • 五居室

    • 六居室

    算一算,您家装修要花多少钱?

    知精准报价 避装修深坑

    0%

    稍等片刻,您的报价正在生中......

    算一算,您家装修要花多少钱?

    知精准报价 避装修深坑

    您的完整报价已经生成

    报名成功享抢订优惠名额

    每日仅限前10名用户