24小时咨询电话
027-82411111
当前位置 : 首页 > 户型解析 > 星湖公馆108㎡三居室北欧格调住宅户型解析
星湖公馆108㎡三居室北欧格调住宅户型解析
发布时间 : 2022-03-03 10:39 (6686官方版app)
"6686官方版app" 查看数 : 686官方版app -

    案例简介:这套房屋的业主是一对80后夫妇,两个人作为都市白领对于北欧风情有独钟,也因此希望在进行房屋装修的时候能够打造出北欧所特有的清新浪漫风情,而设计师则是根据了房屋的空间特点,夫妻二人的喜好进行了空间设计,在空间规划上划分出主卧,次卧与书房 6686官方版app,满足来客居住使用需求,而色彩的选择上则借助原木色营造一种自然清新的韵味。


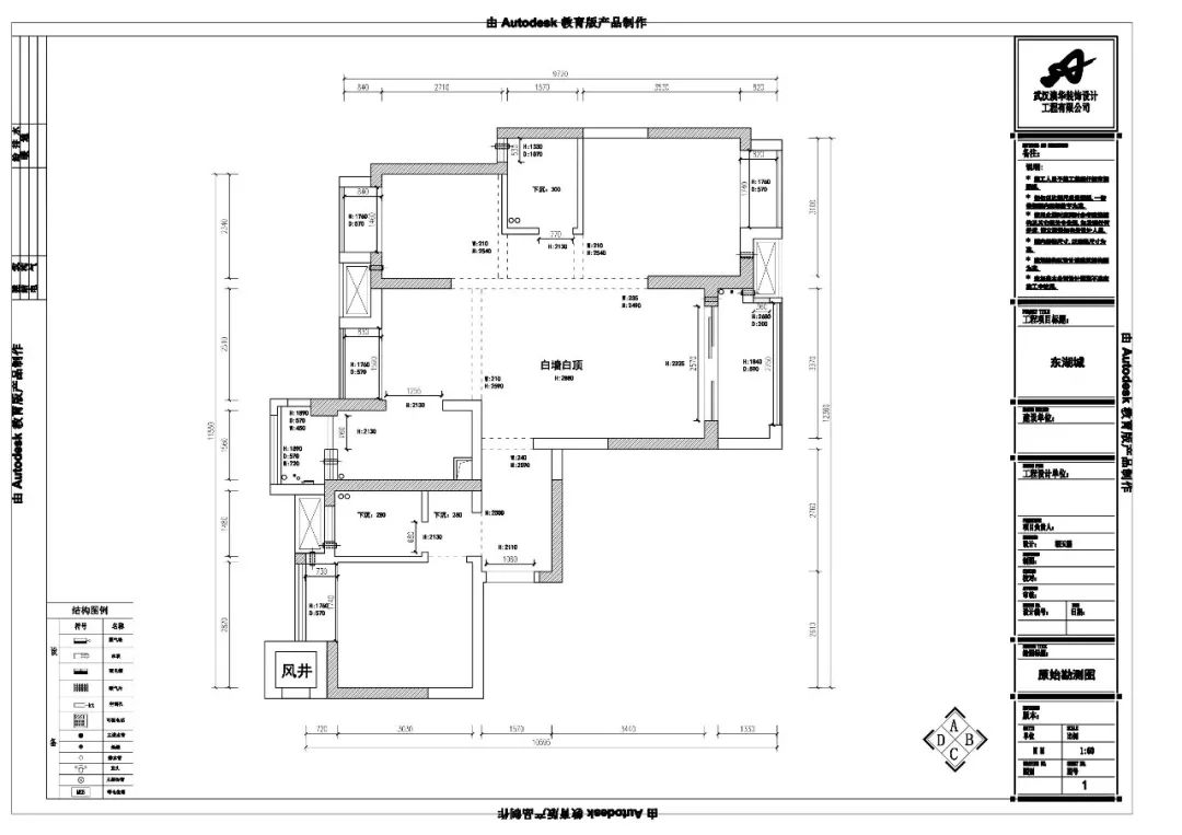
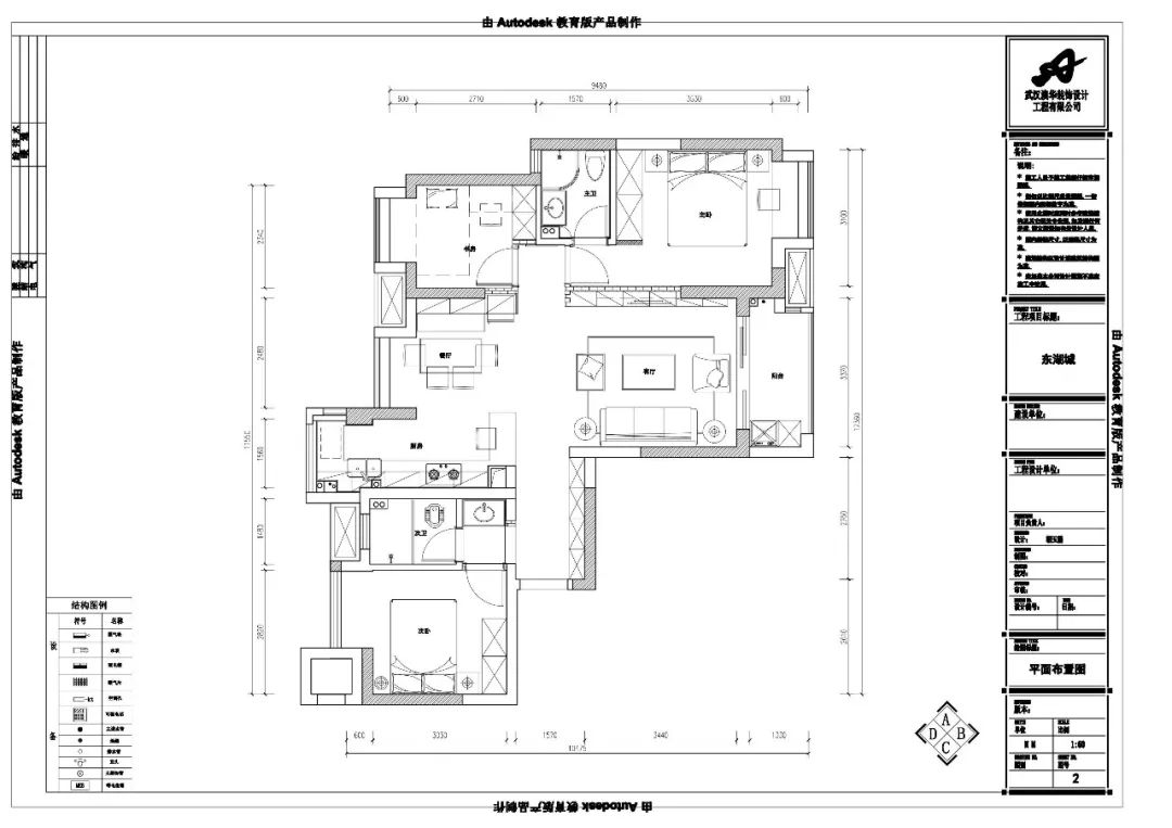
    户型解析:



    星湖公馆的这套108㎡的三居室房屋结构其实并不算方正,整体结构呈现为L形态,为了将空间进行更加合理的规划,设计师将主卧,书房设置在面积较广的左边空间,而半边区域则打造为次卧,以提升居住者的实密度,而就餐区域则设置在客厅的纵向线条处 6686官方版app,同时不做硬隔断,以避免空间显得压抑紧迫。


    玄关:

071A1524 z.jpg


    入户玄关选用了简约的白色作为主基调色,利用色彩的延伸起到空间引导作用 6686官方版app,而玄关尽头处则使用了一幅山水画作为点缀,提升空间精致格调。


    客厅:



    为了节省空间占用,客厅区域的电视背景墙巧妙的使用了一个原木混白色的储物柜作为装饰,简约而又不失实用性 6686官方版app


    餐厅:



    餐厅区域与半开放的厨房被摄制组爱同一个区域中 6686官方版app,如此即可有效节约使用面积,又能够确保上菜与就餐的时间得到缩减。


    卧室:



    卧室区域选用了给人静谧感的蓝色作为主基调色,以提升居住者的睡眠质量,而半隐形的白色衣柜既可以满足使用需求,又不会过于突兀 6686官方版app


    书房:



    由于书房区域面积不大,因此设计师没有对书房进行过多的装饰,而是选择“返璞归真”的设计手法 6686官方版app,借助大面积的木质材料搭配水泥材质,营造一种质朴清新的艺术氛围。


    卫生间:


卫生间3.jpg

    卫生间区域使用了大量菱形瓷砖贴墙 6686官方版app,以强调一种小而精致的氛围感,而透明的玻璃门则起到干湿分离的作用,提升生活品质。





6686官方版app - 预约设计师
海量行家, 抢订6686注册设计服务
每日前20名申请用户, 获3D装修设计图
推荐相关案例
6686注册获取同款设计方案
姓名*
楼盘*
电话*
*为了您的权益, 您的隐私将严格保密
6686官方版app - 预约成功
您已报名成功, 稍后会有客服人员联系您。 您的隐私将被严格保密。
关注二维码了解6686体育装修知识
联系我们
装修咨询电话 : 027-82411111
售后服务电话 : 686官方版app - 027-82866788
公司地址 : 6686平台市江岸区澳门路232号金冠大厦
6686登录我们
友情链接 : (6686官方版app)
    66866686官方版app下载官方版-6686官方版app下载2025最新 页面版权所有 jingyu-design.cn

    算一算,您家装修需要花多少钱?

    知精准报价 避装修深坑

    01/03

    选择您喜欢的风格

    • 现代轻奢

    • 现代美式

    • 北欧

    • 新中式

    • 欧式

    • 其他

    "6686官方版app" 算一算,您家装修要花多少钱?

    知精准报价 避装修深坑

    02/03

    选择房屋面积区间

    • 80-100㎡
    • 100-140㎡
    • 140-200㎡
    • 200-300㎡
    • 300㎡以上

    686官方版app - 03/03

    您的户型

    • 两居室

    • 三居室

    • 四居室

    • 五居室

    • 六居室

    算一算,您家装修要花多少钱?

    知精准报价 避装修深坑

    0%

    稍等片刻,您的报价正在生中......

    算一算,您家装修要花多少钱?

    知精准报价 避装修深坑

    "6686官方版app" 您的完整报价已经生成

    报名成功享抢订优惠名额

    每日仅限前10名用户