24小时咨询电话
027-82411111
当前位置 : 首页 > 户型解析 > 爱家88㎡二居室美式田园清新小窝户型解析
"6686官方版app" 爱家88㎡二居室美式田园清新小窝户型解析
发布时间 : 2022-03-08 10:44
"6686官方版app" 查看数 :

    案例简介:本案例的业主是一个热爱田园风光的独居女白领,她希望自己的家中能够引入一些自然化元素,让自己在休憩时感受到自然的美好与舒适,而由于房屋一般就只有自己居住,父母会偶尔过来探望自己,所以希望设计师能够为偶尔来探望自己的父母预留出一个空间,根据业主的想法,设计师选择了美式田园风作为空间软装方向 6686官方版app,搭配以各种清新的色彩及自然化元素,让室外美景“走”入家居空间。


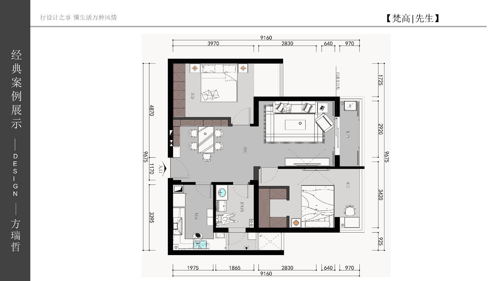
    户型解析:


梵高先生 6686官方网站作品集 第二章_94(1).jpg

    爱家的这套二居室的房屋占地面积约为88㎡,整个的房屋结果相对比较方正,但是由于房屋面积不算宽敞,想要设计出两个独立的休憩空间存在着一定难度,为了满足业主及其父母的起居使用需求,设计师舍弃主卧的卫生间设计,同时将客厅区域进行放大,以提升整个家居空间的宽敞度 6686官方版app,而由于整个家居空间面积不大,因此家具的选择上,设计师优先选用了造型简单且体量较小的,以起到视觉平衡效果。


    客厅:





    大面积的淡蓝色让人仿佛窥见蓝天的清新烂漫,做旧处理的方形瓷砖装饰性强而又不会显得过于突兀 6686官方版app


    卧室:

卧室.jpg

    木色低的花鸟画壁画墙面清新而又不失韵味美,简单的蕾丝帘布文艺范十足,有效起到空间隔断作用 6686官方版app


    卫生间:

卫生间.jpg

    卫生间区域借用大面积的浅色瓷砖进行铺设 6686官方版app,强调空间整洁清爽感,镂空式台面下置洗衣机,有效提升空间利用率。


"6686官方版app"
6686官方版app - 预约设计师
海量行家, 抢订6686注册设计服务
每日前20名申请用户, 获3D装修设计图
6686注册获取同款设计方案
姓名*
楼盘*
电话*
*为了您的权益, 您的隐私将严格保密
预约成功 (6686官方版app)
您已报名成功, 稍后会有客服人员联系您。 您的隐私将被严格保密。
关注二维码了解6686体育装修知识
6686官方版app - 联系我们
"6686官方版app" 装修咨询电话 : 027-82411111
售后服务电话 : 027-82866788 (6686官方版app)
"6686官方版app" 公司地址 : 6686平台市江岸区澳门路232号金冠大厦
6686官方版app - 6686登录我们
友情链接 :
    66866686官方版app下载官方版-6686官方版app下载2025最新 页面版权所有 jingyu-design.cn

    算一算,您家装修需要花多少钱?

    知精准报价 避装修深坑 (6686官方版app)

    01/03

    选择您喜欢的风格

    • 现代轻奢

    • 现代美式

    • 北欧

    • 新中式

    • 欧式

    • 其他

    算一算,您家装修要花多少钱?

    知精准报价 避装修深坑

    02/03

    选择房屋面积区间

    • 80-100㎡
    • 100-140㎡
    • 140-200㎡
    • 200-300㎡
    • 300㎡以上

    03/03

    您的户型 (6686官方版app)

    • 两居室

    • 三居室

    • 四居室

    • 五居室

    • 六居室

    算一算,您家装修要花多少钱?

    知精准报价 避装修深坑

    0%

    稍等片刻,您的报价正在生中......

    算一算,您家装修要花多少钱?

    知精准报价 避装修深坑

    您的完整报价已经生成 (6686官方版app)

    报名成功享抢订优惠名额

    每日仅限前10名用户