<kbd dir="pTVcHM7e"></kbd>
24小时咨询电话 (6686官方版app)
027-82411111
当前位置 : 首页 > 6686官网网页版 > 方瑞哲
找TA设计
细心耐心
"6686官方版app" DESIGNER
6686官方版app - 686官方版app - 方瑞哲 设计总监
从业时间 : 2010 作品数量 :17套
司 : 华中超级旗舰店
业主评价 :
    • 很有责任心
    • 设计实用
    • 谈话沉稳
    • 直观了解需求
    • 提前做预算规划
    • 效果和预想一致
    现代简约,轻奢,法式,美式,新中式
    • 个人简介
    • 设计理念
    • 经典楼盘
    • 2010年荣获6686平台市“金艺环境艺术手绘大赛”二等奖

      2013年荣获6686平台市“十佳优秀设计师”

      2014年荣获“诺贝尔全国设计师室内设计三等奖”

      2015年荣获“黄鹤杯”金奖

      2016-2020连续四年被评为“6686平台市优秀设计师”


    • 设计不但要引领潮流 6686官方版app,还要融入生活,设计灵感,是出自于生活但又高于生活的一种产物。

    • 华侨城. 世茂锦绣长江 6686官方版app. 万科滨江玉玺. 融侨天域. 招商公园1872.

    相关案例
    户型解析
    在施工地
    其他案例推荐
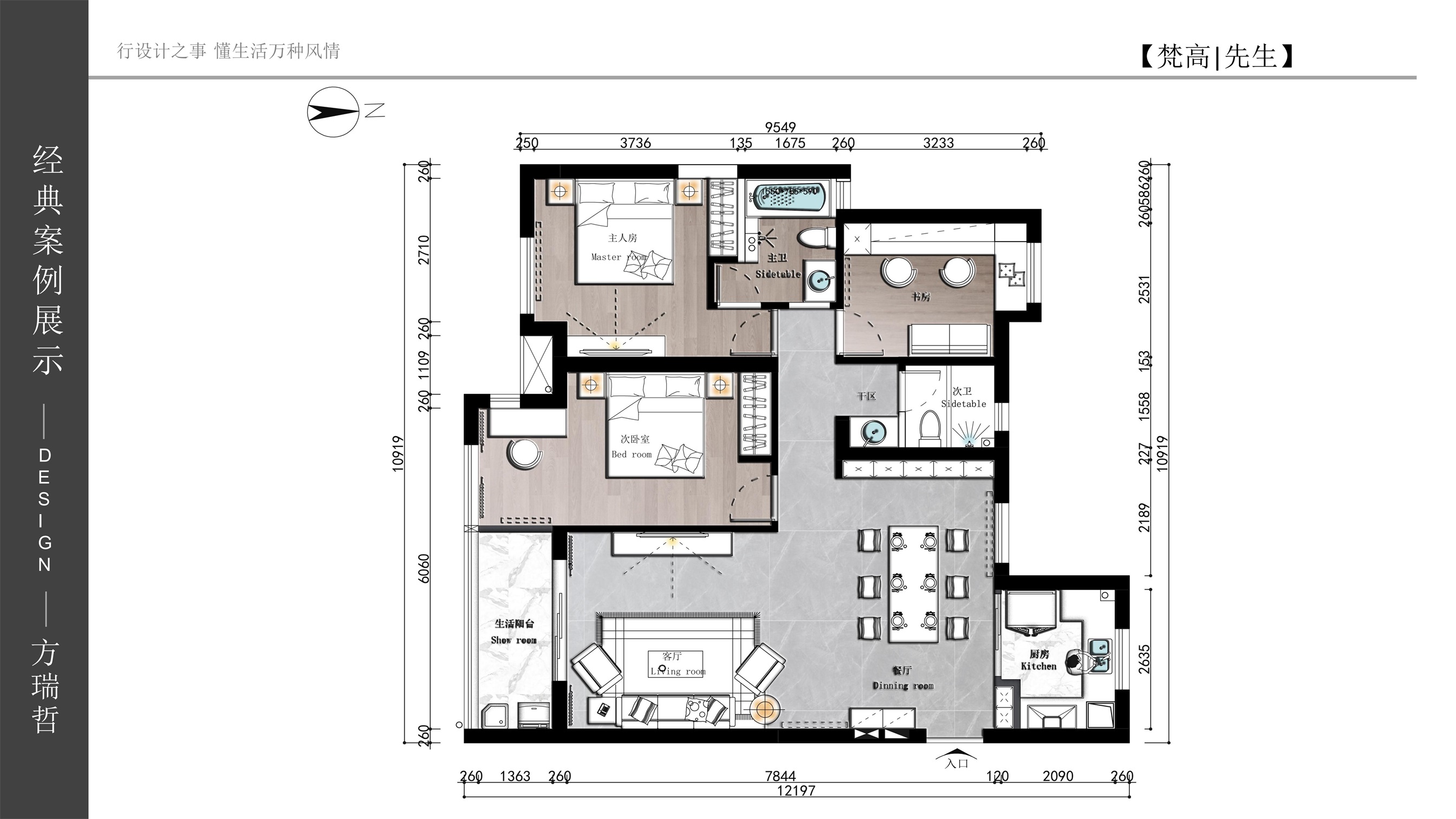
    万科滨江玉玺265㎡四居室轻奢品质住宅户型解析
    大平层
    265m² (6686官方版app)
    轻奢风

        案例简介:本案例的业主是企业高管,有着自己的品味与审美,因此希望在家装设计的过程中能够展示出自己的品味 6686官方版app,而设计师在与业主进行深入交流之后,为业主挑选了品质感较强的现代轻奢风进行整体装饰,借助简约的色彩与装饰赋予空间个性与格调感。


        户型解析:


    梵高先生 6686官方网站作品集 第二章_60(1).jpg


        万科滨江玉玺这套四居室的住宅占地面积约为265㎡,整个格局虽然较为宽敞,但是原有的户型结构中存在一些难以利用的小空间 6686官方版app,因此需要设计师将空间进行合理的规划利用,在保障室内和谐感的同时提升空间利用率,走廊处的一块带有犄角的小空间面积不大,且局限性较大,因此设计师将该区域直接打造为储物间,满足日常收纳需求,走廊尽头的小空间则直接与主卧空间打通,改造成一个迷你的衣帽间,提升主人生活的品质感。


        客厅:




        客厅以简约的浅色系色彩为主基调色 6686官方版app,强调冷静沉稳的氛围感,搭配以亮橘色沙发,为空间增添惊艳高级感。


        餐厅:


    餐厅.jpg


        不同深度的灰色赋予了就餐空间简约感与结构刊,搭配上大理石餐桌,给人优雅高级格调感 6686官方版app


        卧室:


    卧室.jpg

        衣柜与背景墙处的金色线条处理简约而又不失轻奢高级感,搭配以藕色床具,窗帘 6686官方版app,给予空间柔和温馨静谧感。


    新城锦瑞城136㎡三居室现代轻奢格调家居户型解析
    三居室
    136m² (6686官方版app)
    6686官方版app - 轻奢风

        案例简介:现代轻奢风借用了最为简洁的元素来展示一种由内向外的高级格调感,强调一种内敛的独特品味,这也是现代轻奢风的魅力所在 6686官方版app,而本案例的设计师借助材料丝绒材质,大理石材质等质感元素进行空间装饰,强调室内氛围的轻奢优雅感,同时,利用冷暖色系的搭配使用增添室内环境的视觉丰富感与层次感。


        户型解析:



    梵高先生 6686官方网站作品集 第二章_27(1).jpg




        新城锦瑞城这套136㎡的三居室住宅户型结构上相对比较规整,没有复杂且难以规划设计的空间,功能区也比较相近 6686官方版app,因此设计师需要权衡好空间的动静分区,而由于业主工作的性质,设计师单独划分出一个区域打造成书房,满足业主在家办公需求,同时借助灵活式设计满足客人休憩使用需求,阳台区域则借助大面积落地窗将室外阳光尽可能的引入室内,以提升室内采光。


        客厅:




        由于客厅宽度不够,因此设计师选择了长条形沙发,点缀以色彩清新跳跃的抱枕,从视觉上扩大空间宽敞度 6686官方版app


        餐厅:




        核桃色的木质橱柜与白色墙面反差感较大,给人以较强视觉冲击力。


        卧室:






        淡蓝色墙面奠定静谧柔和氛围,灰色地毯则平衡了空间的轻柔感,为空间增添一抹沉稳气息。


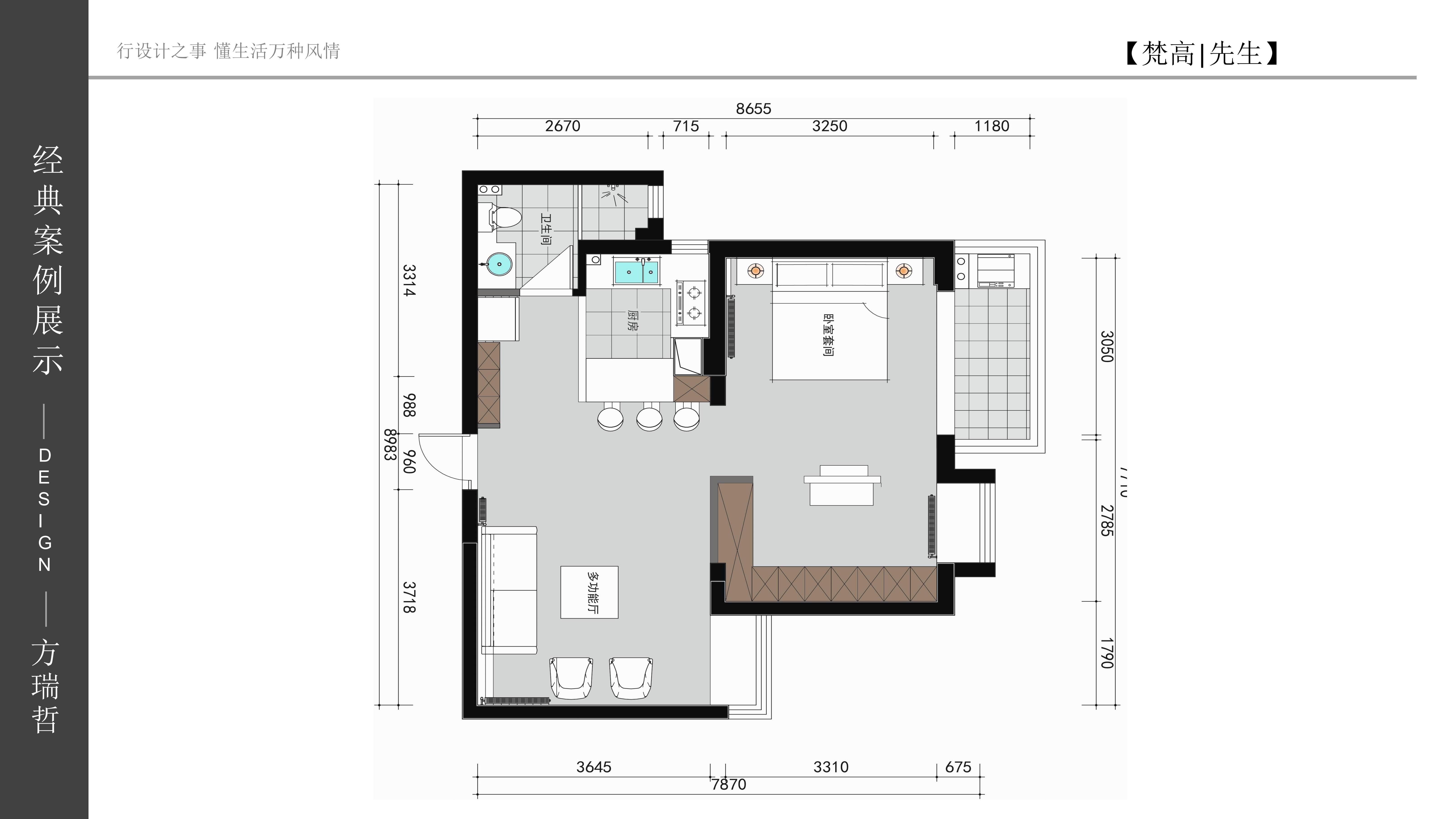
    银泰御华园80㎡一居室现代化个性小窝户型解析
    一居室 (6686官方版app)
    80m² (6686官方版app)
    现代

        案例简介:本案例的业主是一位独居人士且近期没有结婚的打算,因此房屋面积并不大,在与设计师交流时,业主明确的提出休憩空间一定要强调舒适,而整个住宅则要突出自己的个性与品位。设计师按照业主的想法将空间打造成半开放式设计,同时将约一半面积打造成为休憩空间,以满足业主日常休憩、办公需求。休憩空间以外的区域则打造成厨房与多功能空间,满足做饭、会客等多种需求。


        户型解析:


    梵高先生 6686官方网站作品集 第二章_37(1).jpg

        银泰御华园这套80㎡的公寓式住宅原有格局相对比较规整,而由于空间面积较小,因此设计师在进行规划设计的时候除了必要的卫浴空间借助硬隔断外,其他功能区域则借助软隔断进行空间分隔,以提升家居环境的通透感。装修风格的选择上,设计师则为业主选用了具有个性感与时尚感的现代风,同时借助各种自然系的色彩进行装饰点缀,为空间增添森系优雅美。


        客厅:




        绿色背景墙搭配上布艺沙发,营造清新的森系自然风情。


        多功能区:




        木质地板搭配上几个可收纳式的毯子就构成了多功能区,强调自由随意感。


        卧室:


    卧室.jpg

        简约白色水泥墙搭配上由色块点缀而成的床具,整体清新而又不失简约时尚美。


    在施工地
    • 开工
    • 前期
    • 中期
    • 后期
    • 竣工
    预约设计师 (6686官方版app)
    海量行家, 抢订6686注册设计服务
    每日前20名申请用户, 获3D装修设计图
    6686官方版app - 预约设计师
    姓名*
    楼盘*
    电话*
    *为了您的权益, 您的隐私将严格保密
    "6686官方版app" 推荐相关案例
    6686官方版app - 6686注册获取同款设计方案
    姓名*
    楼盘*
    电话*
    *为了您的权益, 您的隐私将严格保密
    预约成功
    您已报名成功, 稍后会有客服人员联系您。 您的隐私将被严格保密。
    关注二维码了解6686体育装修知识
    "6686官方版app" 6686登录我们
    6686官方版app - 澳华历程
    官方微博
    联系我们
    装修咨询电话 : 027-82411111
    售后服务电话 : 027-82866788 (6686官方版app)
    公司地址 : 6686平台市江岸区澳门路232号金冠大厦
    "6686官方版app" 6686登录我们
    友情链接 :
      66866686官方版app下载官方版-6686官方版app下载2025最新 页面版权所有 jingyu-design.cn

      "6686官方版app" 算一算,您家装修需要花多少钱?

      知精准报价 避装修深坑

      01/03

      选择您喜欢的风格

      • 现代轻奢

      • 现代美式

      • 北欧

      • 新中式

      • 欧式

      • 其他

      "6686官方版app" 算一算,您家装修要花多少钱?

      知精准报价 避装修深坑

      02/03

      选择房屋面积区间

      • 80-100㎡
      • 100-140㎡
      • 140-200㎡
      • 200-300㎡
      • 300㎡以上

      686官方版app - 03/03

      您的户型 (6686官方版app)

      • 两居室

      • 三居室

      • 四居室

      • 五居室

      • 六居室

      算一算,您家装修要花多少钱? (6686官方版app)

      知精准报价 避装修深坑

      0%

      稍等片刻,您的报价正在生中......

      算一算,您家装修要花多少钱?

      知精准报价 避装修深坑

      "6686官方版app" 您的完整报价已经生成

      报名成功享抢订优惠名额

      每日仅限前10名用户