"6686官方版app" 24小时咨询电话
027-82411111
当前位置 : 首页 > 户型解析 > 银泰御华园80㎡一居室现代化个性小窝户型解析
银泰御华园80㎡一居室现代化个性小窝户型解析
发布时间 : 2022-03-09 12:56
"6686官方版app" 查看数 : 686官方版app -

    案例简介:本案例的业主是一位独居人士且近期没有结婚的打算,因此房屋面积并不大,在与设计师交流时,业主明确的提出休憩空间一定要强调舒适,而整个住宅则要突出自己的个性与品位,设计师按照业主的想法将空间打造成半开放式设计 6686官方版app,同时将约一半面积打造成为休憩空间,以满足业主日常休憩,办公需求,休憩空间以外的区域则打造成厨房与多功能空间,满足做饭,会客等多种需求。


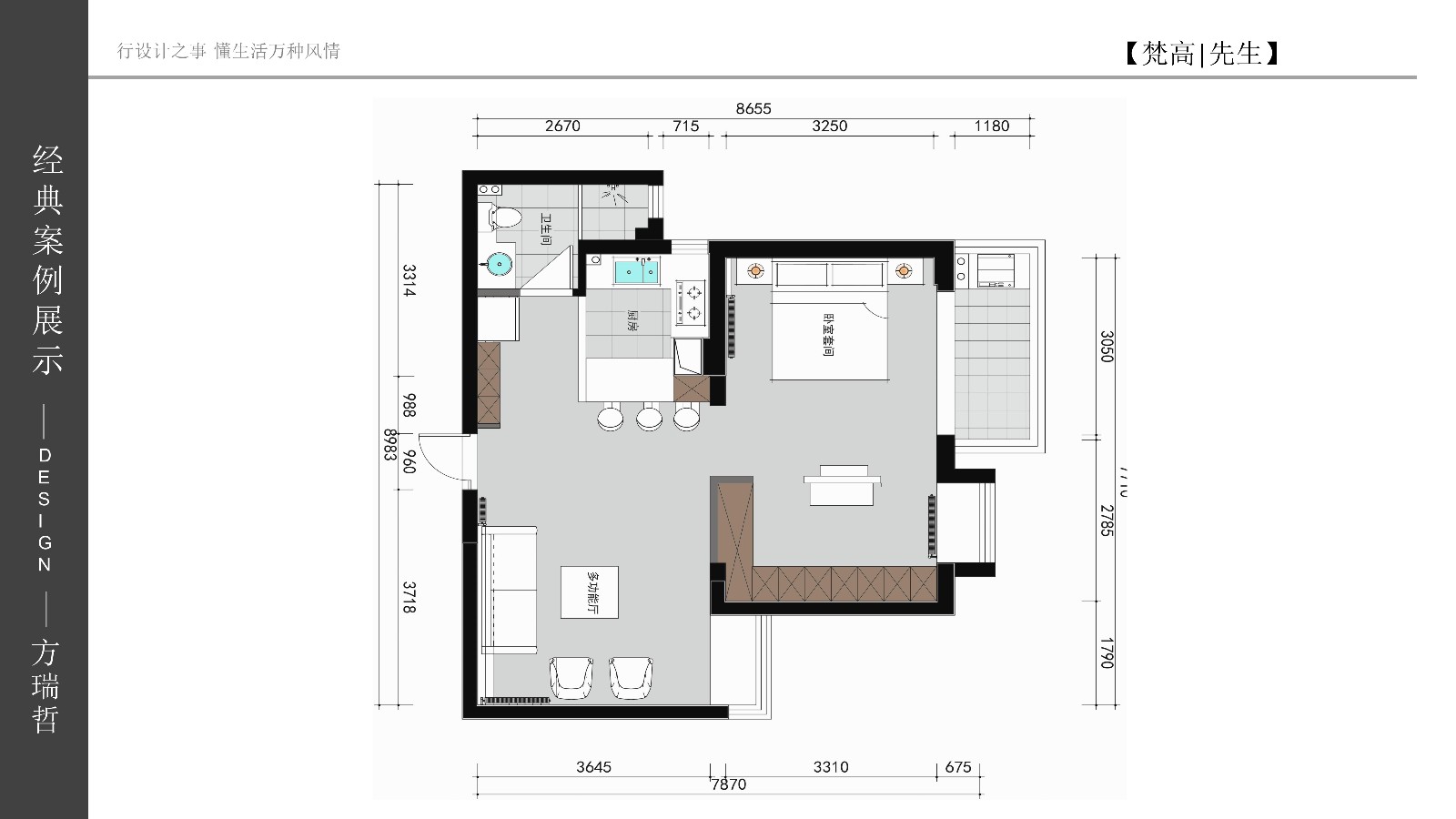
    户型解析:


梵高先生 6686官方网站作品集 第二章_37(1).jpg

    银泰御华园这套80㎡的公寓式住宅原有格局相对比较规整,而由于空间面积较小,因此设计师在进行规划设计的时候除了必要的卫浴空间借助硬隔断外,其他功能区域则借助软隔断进行空间分隔,以提升家居环境的通透感,装修风格的选择上,设计师则为业主选用了具有个性感与时尚感的现代风 6686官方版app,同时借助各种自然系的色彩进行装饰点缀,为空间增添森系优雅美。


    客厅:




    绿色背景墙搭配上布艺沙发,营造清新的森系自然风情 6686官方版app


    多功能区:




    木质地板搭配上几个可收纳式的毯子就构成了多功能区 6686官方版app,强调自由随意感。


    卧室:


卧室.jpg

    简约白色水泥墙搭配上由色块点缀而成的床具 6686官方版app,整体清新而又不失简约时尚美。


"6686官方版app"
预约设计师
海量行家, 抢订6686注册设计服务
每日前20名申请用户, 获3D装修设计图
686官方版app - 推荐相关案例
6686注册获取同款设计方案
姓名*
楼盘*
电话*
*为了您的权益, 您的隐私将严格保密
预约成功
您已报名成功, 稍后会有客服人员联系您。 您的隐私将被严格保密。
关注二维码了解6686体育装修知识
6686登录我们 (6686官方版app)
澳华历程 (6686官方版app)
官方微博
"6686官方版app" 联系我们
装修咨询电话 : 686官方版app - 027-82411111
售后服务电话 : 027-82866788 (6686官方版app)
公司地址 : 6686平台市江岸区澳门路232号金冠大厦
6686登录我们
"6686官方版app" 友情链接 :
    66866686官方版app下载官方版-6686官方版app下载2025最新 页面版权所有 jingyu-design.cn

    "6686官方版app" 算一算,您家装修需要花多少钱?

    知精准报价 避装修深坑

    01/03 (6686官方版app)

    选择您喜欢的风格

    • 现代轻奢

    • 现代美式

    • 北欧

    • 新中式

    • 欧式

    • 其他

    算一算,您家装修要花多少钱?

    知精准报价 避装修深坑 (6686官方版app)

    "6686官方版app" 02/03

    选择房屋面积区间

    • 80-100㎡
    • 100-140㎡
    • 140-200㎡
    • 200-300㎡
    • 300㎡以上

    "6686官方版app" 03/03

    您的户型

    • 两居室

    • 三居室

    • 四居室

    • 五居室

    • 六居室

    "6686官方版app" 算一算,您家装修要花多少钱?

    知精准报价 避装修深坑

    0%

    稍等片刻,您的报价正在生中......

    算一算,您家装修要花多少钱?

    知精准报价 避装修深坑

    您的完整报价已经生成

    6686官方版app - 报名成功享抢订优惠名额

    每日仅限前10名用户