24小时咨询电话
027-82411111
当前位置 : 首页 > 户型解析 > 同馨花园140㎡简约风三居室优雅住宅户型解析户型解析
同馨花园140㎡简约风三居室优雅住宅户型解析户型解析 (6686官方版app)
发布时间 : 2022-03-09 13:02 (6686官方版app)
查看数 :

    案例简介:在家装设计中有一种设计手法叫做留白,这指的是借助大面积的空白营造空间的韵味感 6686官方版app,给人以无限遐想,这是简约风中最为常见的设计手法,能够让人在家居空间中更好的放空自己,而本案例的业主不喜欢设计繁琐的家居空间,希望通过最为简洁的元素打造出干净舒适的休憩空间,因此最终设计师为业主敲定了带有留白设计的简约风软装,通过合理的点缀搭配大面积留白来营造一种独特的优雅高级感。


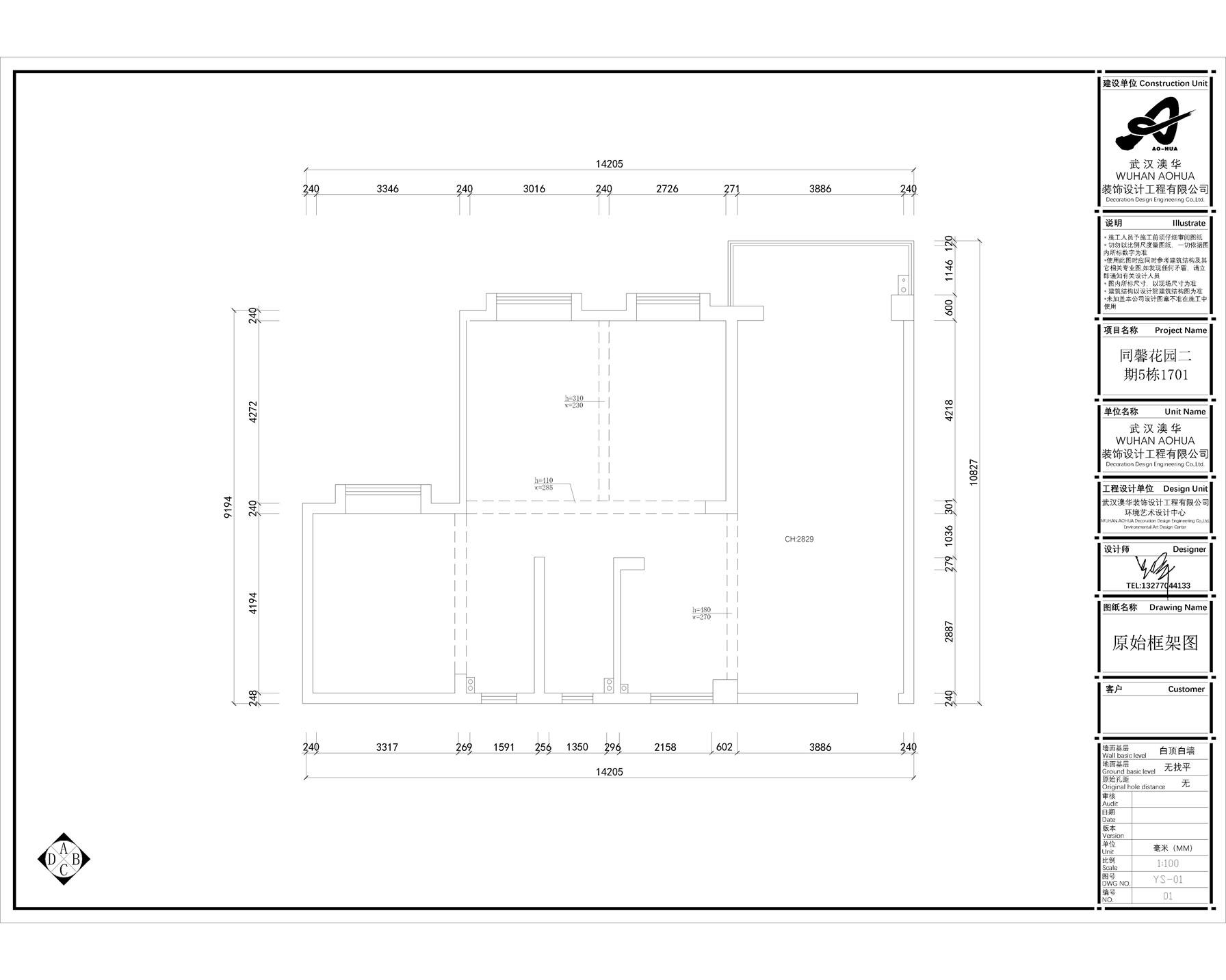
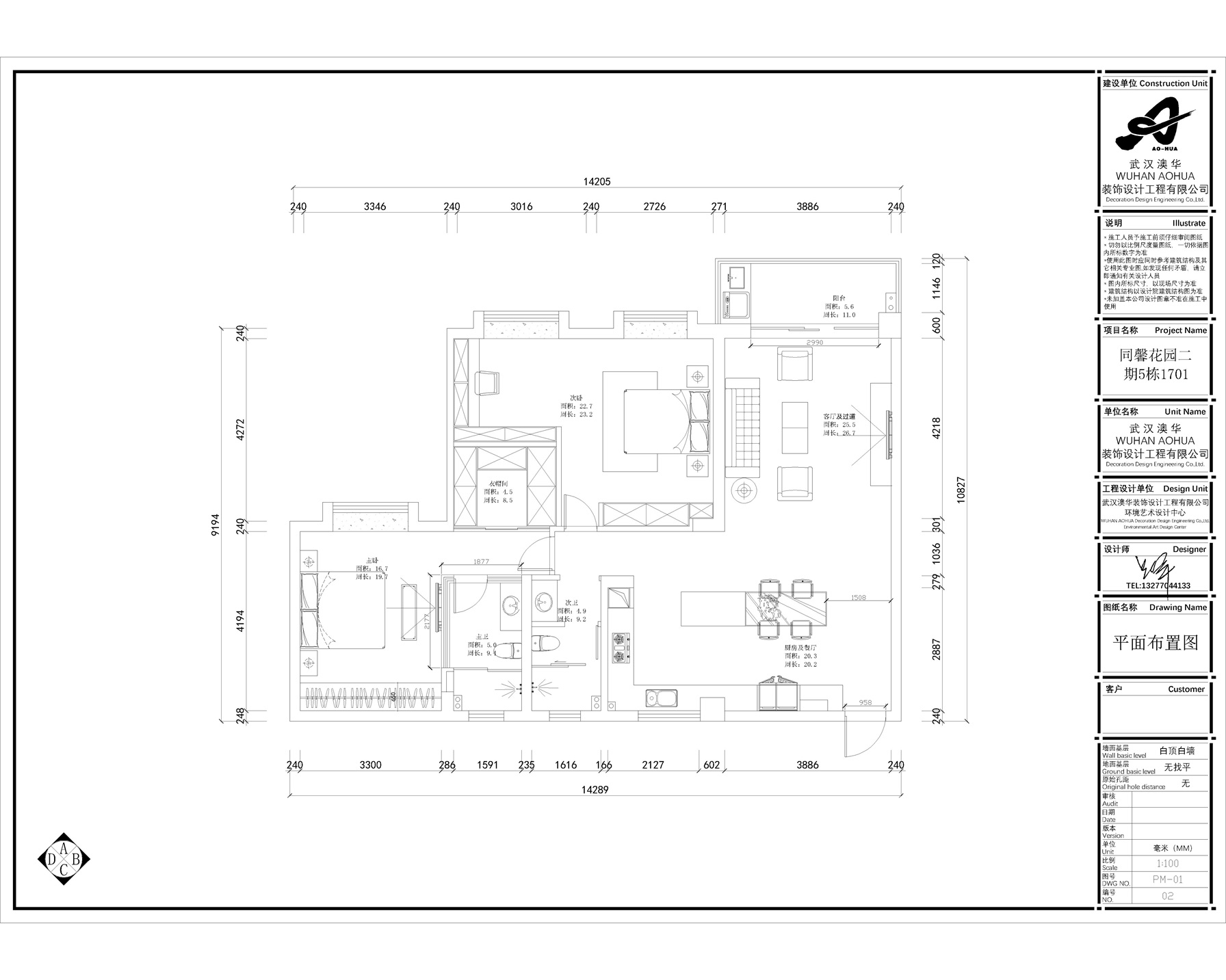
    户型解析:



    同馨花园这套140㎡的三居室虽然原有的户型结构较为平整四方,且已经完成了基本的分区规划,但是由于不能满足业主日常起居使用需求,因此设计师根据业主个人使用需求将内部次卧区域直接打通,其中一部分向主卧延伸打造成衣帽间,而另外一部分则用于扩大另外一个次卧的面积,以提升生活品质感 6686官方版app,厨房区域的墙面则直接打通,将厨房改造成为一个开放式设计,再借助软隔断融入就餐区域,提升空间的利用率。


    客厅:


客厅.jpg

 

   摒弃各种花里胡哨的设计,借助大理石材质本身的质感提升空间品味,嵌入式背景墙设计既可以节省一定室内空间,又有效保障室内时尚感 6686官方版app


    书房:

书房.jpg

    书房面积较小,因此仅摆放了简单的桌椅,再搭配上悬挂式收纳柜 6686官方版app,满足日常办公,阅读需求。


    卧室




    卧室背景墙借用线条抒发空间简约洁净氛围,舒适柔软的床具搭配上简洁大方的设计 6686官方版app,让人在素雅洁净中更好享受生活的宁静。


    卫生间:


客卫.jpg

    卫生间借用透明玻璃门进行干湿分离 6686官方版app,有效提升卫浴环境品质感。


预约设计师
海量行家, 抢订6686注册设计服务
每日前20名申请用户, 获3D装修设计图
推荐相关案例
6686注册获取同款设计方案 (6686官方版app)
姓名*
楼盘*
电话*
*为了您的权益, 您的隐私将严格保密
"6686官方版app" 预约成功
您已报名成功, 稍后会有客服人员联系您。 您的隐私将被严格保密。
关注二维码了解6686体育装修知识
"6686官方版app" 6686登录我们
澳华历程
"6686官方版app" 官方微博
联系我们
装修咨询电话 : 027-82411111 (6686官方版app)
售后服务电话 : 027-82866788 (6686官方版app)
6686官方版app - 公司地址 : 6686平台市江岸区澳门路232号金冠大厦
"6686官方版app" 6686登录我们
友情链接 :
    66866686官方版app下载官方版-6686官方版app下载2025最新 页面版权所有 jingyu-design.cn

    "6686官方版app" 算一算,您家装修需要花多少钱?

    知精准报价 避装修深坑

    01/03

    选择您喜欢的风格

    • 现代轻奢

    • 现代美式

    • 北欧

    • 新中式

    • 欧式

    • 其他

    算一算,您家装修要花多少钱?

    知精准报价 避装修深坑

    02/03

    选择房屋面积区间

    • 80-100㎡
    • 100-140㎡
    • 140-200㎡
    • 200-300㎡
    • 300㎡以上

    03/03 (6686官方版app)

    您的户型

    • 两居室

    • 三居室

    • 四居室

    • 五居室

    • 六居室

    算一算,您家装修要花多少钱?

    知精准报价 避装修深坑

    0%

    稍等片刻,您的报价正在生中......

    算一算,您家装修要花多少钱?

    知精准报价 避装修深坑

    您的完整报价已经生成

    报名成功享抢订优惠名额

    每日仅限前10名用户