24小时咨询电话
027-82411111
首页 > 找设计师 > 方瑞哲设计师户型解析
户型解析
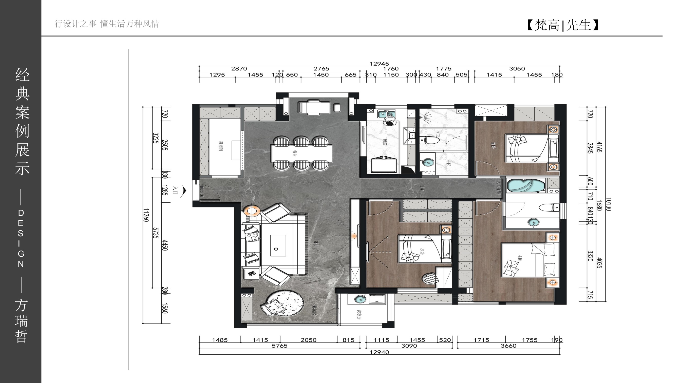
万科滨江玉玺265㎡四居室轻奢品质住宅户型解析
686官方版app - 大平层 (6686官方版app)
265m²
6686官方版app - 轻奢风

    案例简介:本案例的业主是企业高管,有着自己的品味与审美,因此希望在家装设计的过程中能够展示出自己的品味 6686官方版app,而设计师在与业主进行深入交流之后,为业主挑选了品质感较强的现代轻奢风进行整体装饰,借助简约的色彩与装饰赋予空间个性与格调感。


    户型解析:


梵高先生 6686官方网站作品集 第二章_60(1).jpg


    万科滨江玉玺这套四居室的住宅占地面积约为265㎡,整个格局虽然较为宽敞,但是原有的户型结构中存在一些难以利用的小空间,因此需要设计师将空间进行合理的规划利用,在保障室内和谐感的同时提升空间利用率,走廊处的一块带有犄角的小空间面积不大,且局限性较大,因此设计师将该区域直接打造为储物间,满足日常收纳需求,走廊尽头的小空间则直接与主卧空间打通 6686官方版app,改造成一个迷你的衣帽间,提升主人生活的品质感。


    客厅:




    客厅以简约的浅色系色彩为主基调色,强调冷静沉稳的氛围感,搭配以亮橘色沙发,为空间增添惊艳高级感 6686官方版app


    餐厅:


餐厅.jpg


    不同深度的灰色赋予了就餐空间简约感与结构刊,搭配上大理石餐桌 6686官方版app,给人优雅高级格调感。


    卧室:


卧室.jpg

    衣柜与背景墙处的金色线条处理简约而又不失轻奢高级感,搭配以藕色床具,窗帘,给予空间柔和温馨静谧感 6686官方版app


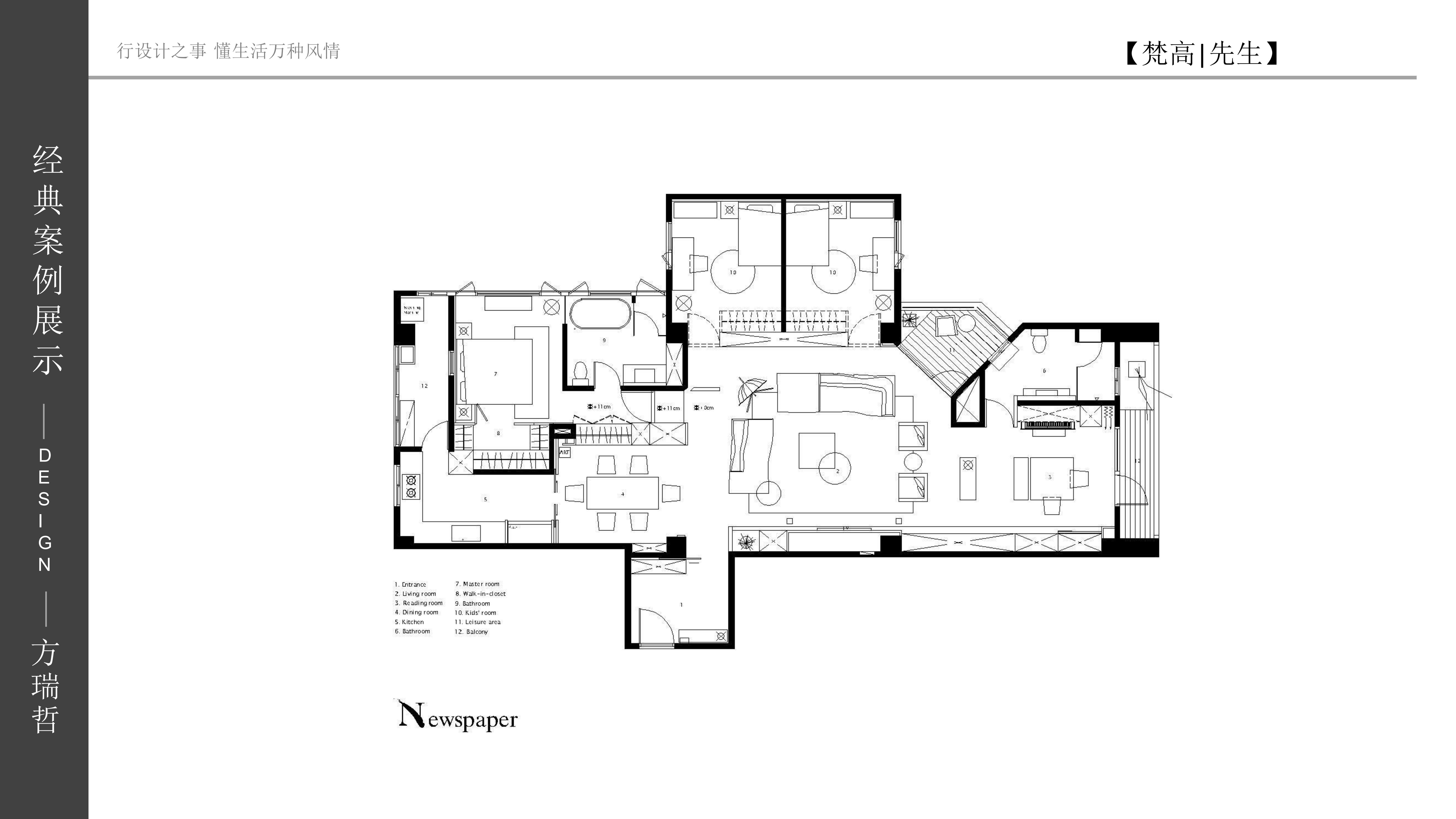
新城锦瑞城136㎡三居室现代轻奢格调家居户型解析
三居室
"6686官方版app" 136m²
"6686官方版app" 轻奢风

    案例简介:现代轻奢风借用了最为简洁的元素来展示一种由内向外的高级格调感,强调一种内敛的独特品味,这也是现代轻奢风的魅力所在,而本案例的设计师借助材料丝绒材质,大理石材质等质感元素进行空间装饰,强调室内氛围的轻奢优雅感,同时,利用冷暖色系的搭配使用增添室内环境的视觉丰富感与层次感 6686官方版app


    户型解析:



梵高先生 6686官方网站作品集 第二章_27(1).jpg




    新城锦瑞城这套136㎡的三居室住宅户型结构上相对比较规整,没有复杂且难以规划设计的空间 6686官方版app,功能区也比较相近,因此设计师需要权衡好空间的动静分区,而由于业主工作的性质,设计师单独划分出一个区域打造成书房,满足业主在家办公需求,同时借助灵活式设计满足客人休憩使用需求,阳台区域则借助大面积落地窗将室外阳光尽可能的引入室内,以提升室内采光。


    客厅:




    由于客厅宽度不够,因此设计师选择了长条形沙发,点缀以色彩清新跳跃的抱枕 6686官方版app,从视觉上扩大空间宽敞度。


    餐厅:




    核桃色的木质橱柜与白色墙面反差感较大,给人以较强视觉冲击力 6686官方版app


    卧室:






    淡蓝色墙面奠定静谧柔和氛围,灰色地毯则平衡了空间的轻柔感,为空间增添一抹沉稳气息 6686官方版app


银泰御华园80㎡一居室现代化个性小窝户型解析
一居室
80m²
现代

    案例简介:本案例的业主是一位独居人士且近期没有结婚的打算,因此房屋面积并不大,在与设计师交流时,业主明确的提出休憩空间一定要强调舒适,而整个住宅则要突出自己的个性与品位。设计师按照业主的想法将空间打造成半开放式设计,同时将约一半面积打造成为休憩空间,以满足业主日常休憩、办公需求。休憩空间以外的区域则打造成厨房与多功能空间,满足做饭、会客等多种需求。


    户型解析:


梵高先生 6686官方网站作品集 第二章_37(1).jpg

    银泰御华园这套80㎡的公寓式住宅原有格局相对比较规整,而由于空间面积较小,因此设计师在进行规划设计的时候除了必要的卫浴空间借助硬隔断外,其他功能区域则借助软隔断进行空间分隔,以提升家居环境的通透感。装修风格的选择上,设计师则为业主选用了具有个性感与时尚感的现代风,同时借助各种自然系的色彩进行装饰点缀,为空间增添森系优雅美。


    客厅:




    绿色背景墙搭配上布艺沙发,营造清新的森系自然风情。


    多功能区:




    木质地板搭配上几个可收纳式的毯子就构成了多功能区,强调自由随意感。


    卧室:


卧室.jpg

    简约白色水泥墙搭配上由色块点缀而成的床具,整体清新而又不失简约时尚美。


招商145㎡三居室极简品质住宅户型解析
"6686官方版app" 三居室
145m²
极简 (6686官方版app)

    案例简介:简约到极致是一种不同的格调与浪漫,它能让人更好的感受生活本真,也因此不少业主在进行家装设计的时候都会提出不需要过多的造型设计,希望通过最简洁的元素展示出空间该有的舒适感与格调感。本案例的设计师借助最经典简约的色彩搭配、最为常见的元素进行组合,营造出一种简约而不简单的高级格调感。


    户型解析:


梵高先生 6686官方网站作品集 第二章_81(1).jpg

    招商城这套145㎡的三居室住宅户型结构中存在着较多的细小角落,且空间走廊处过于拥挤,因此需要设计师对空间进行再次规划设计,化解空间劣势。设计师按照空间的结构特点,将处于犄角区域的小空间打造成一个迷你的储物间,同时借助素雅的设计降低该空间的存在感。走廊过道处则利用相对比较洁净的元素进行装饰,搭配以明亮灯具,从视觉上起到扩大走廊的作用。


    客厅:




    温润质感十足的木质地板搭配上简约的白色嵌入式背景墙,整体给人干净舒适的气息。


    卧室:




    卧室区域沿用与其他功能区域一致的简约白色,搭配上灰色背景墙,给人以沉稳柔和的独特静谧感。


    卫浴空间:




    简约的白色营造自然洁净感且易于打扫,玻璃推拉门设计则起到很好的干湿分离作用。


三和剑桥城150㎡轻奢风三居室优雅住宅户型解析
"6686官方版app" 三居室
150m²
轻奢风

    案例简介:轻奢风软装几乎不会出现各种造型华丽的元素,而是借助材料本身的质感进行装饰点缀,在无形之中起到提升空间质感的作用,这种低调而又高级的软装风格是目前大多都市白领所偏爱的。而本案例的业主在借助材料本身质感的同时,融入色彩对比、对称式等设计原理提升空间的艺术优雅氛围。


    户型解析:


梵高先生 6686官方网站作品集 第二章_10(1).jpg

    三和剑桥城这套三居室的住宅占地面积为150㎡,房屋外形相对比较四方,不存在各种难以处理的犄角及细小角落,因此设计师只需根据业主及家人的需求进行功能划分及软装设计即可。根据业主的生活习惯,设计师在主卧区域单独隔离出一个卫浴空间,以满足主人私密使用需求。


    客厅:



    大面积的浅褐色瓷砖强调沉稳氛围,对称式的背景墙设计则为空间增添优雅格调。


    餐厅:




    白色大理石餐桌搭配上不同色彩的曲线型椅子,简约而又不失跳跃律动美。


    卫生间:

卫生间.jpg

    卫生间区域使用大面积褐色瓷砖进行装饰铺设,同时搭配以长条形收纳台面,突出空间清新质感的同时有效提升空间利用率。


佳兆业滨江壹号146㎡四居室新中式清新优雅别苑户型解析
"6686官方版app" 四居室
"6686官方版app" 146m²
新中式

    案例简介:新中式风家装在设计上借助现代化元素来强调古韵美,同时运用各种简洁清秀的色彩装饰空间,让家居环境更具古韵时尚感,是当前许多文艺人士所偏爱的装修风格,本案例业主也不例外。设计师根据业主的个人审美及品位,借助大量古韵挂画装饰点缀空间,通过画“延展”空间,为空间增添古典艺术氛围美。


    户型解析:


梵高先生 6686官方网站作品集 第二章_02(1).jpg


    佳兆业滨江壹号这套146㎡的四居室住宅整体的结构相对比较方正平整,且南北通透、自带大体量阳台,能够满足业主基本起居使用需求。而设计师在进行规划设计时,将入户拐角处的次卧改造成一个休憩会客区域,满足业主招待客人使用需求。对称式的设计则将确保走廊处于同一直线上,有助于提升空间的古朴端庄大气感。


    客厅:




    木质栅栏式背景墙搭配上清新山水画,为空间增添一抹庄重典雅之美。


    卧室:


卧室.jpg

    仿明制床具搭配上清新典雅的花鸟壁纸,为空间营造一抹宁静闲适的优雅格调。


    卫生间:


卫生间.jpg


    深色暗纹瓷砖沉稳而又不失大气,玻璃隔断让卫生间区域干湿分离更为合理。


"6686官方版app" 方瑞哲
设计总监
从业年限 : 2010
擅长风格 : 现代简约,轻奢,法式,美式,新中式
设计案例 : 华侨城、世茂锦绣长江、万科滨江玉玺、融侨天域、招商公园1872
预约数量 : 156
找TA设计
算一算我家装修需要多少钱
    • 张女士
      132****178
      200m²
    • 成先生
      134****4856
      83m²
    • 董先生
      137****2569
      95m²
    • 成先生
      133****7485
      130m²
    • 李先生
      150****4475
      220m²
    • 张先生
      139****5050
      187m²
    • 王女士
      178****4563
      168m²
    6686官方版app - 预约设计师
    姓名*
    楼盘*
    电话*
    *为了您的权益, 您的隐私将严格保密
    "6686官方版app" 预约成功
    您已报名成功, 稍后会有客服人员联系您。 您的隐私将被严格保密。
    关注二维码了解6686体育装修知识
    联系我们
    装修咨询电话 : 027-82411111
    "6686官方版app" 售后服务电话 : 027-82866788
    公司地址 : 6686平台市江岸区澳门路232号金冠大厦
    6686登录我们 (6686官方版app)
    友情链接 :
      66866686官方版app下载官方版-6686官方版app下载2025最新 页面版权所有 jingyu-design.cn

      算一算,您家装修需要花多少钱?

      知精准报价 避装修深坑 (6686官方版app)

      "6686官方版app" 01/03

      选择您喜欢的风格

      • 现代轻奢

      • 现代美式

      • 北欧

      • 新中式

      • 欧式

      • 其他

      6686官方版app - 算一算,您家装修要花多少钱?

      知精准报价 避装修深坑

      686官方版app - 02/03

      选择房屋面积区间

      • 80-100㎡
      • 100-140㎡
      • 140-200㎡
      • 200-300㎡
      • 300㎡以上

      03/03

      您的户型

      • 两居室

      • 三居室

      • 四居室

      • 五居室

      • 六居室

      "6686官方版app" 算一算,您家装修要花多少钱?

      知精准报价 避装修深坑

      0%

      稍等片刻,您的报价正在生中......

      算一算,您家装修要花多少钱?

      知精准报价 避装修深坑

      您的完整报价已经生成 (6686官方版app)

      报名成功享抢订优惠名额

      每日仅限前10名用户