6686官方版app - 24小时咨询电话
027-82411111
当前位置 : 首页 > 户型解析
"6686官方版app" 户型解析
​融创玖玺臺119㎡-191㎡户型全解析
"6686官方版app" 四居室
140m²
现代简约


小区:融创玖玺臺


户型:119㎡ 6686官方版app. 131㎡. 140㎡. 143㎡. 191㎡.


融创玖玺臺


融创玖玺臺位于汉口的区域主轴,串联了中央商务区,建设大道金十字,衔接起武广国广 6686官方版app,天街,万达,花园道等商业节点,往前一步是城市繁华,往后一步是宁静平和,通达便利,进退自如。


为了给融创玖玺臺的业主带来更好的生活体验,澳华装饰的设计师全面解析建面119-191㎡的户型方案,从居住者出发,从场景入手,平衡视觉效果与居住功能 6686官方版app,扩展生活秩序。


119㎡户型解析

融创玖玺臺

△原始结构图


户型优点


√    户型方正,无长走道浪费,超长阳台视野好,空间利用率较高 6686官方版app


√    动静分离 6686官方版app,主卧和次卧公共区域各自分开,隐私性好,动线合理。


户型缺点


×    全南户型 6686官方版app,整体采光和通透性一般。


×    厨房空间有限收纳不够 6686官方版app,户型结构可改造空间不大。


方案

舒适三房,满足三代同堂家庭

融创玖玺臺

思路解析


1    入户处以鞋柜+嵌入式冰箱柜一体,在满足家里超大储物的同时解决了厨房放冰箱收纳不够问题 6686官方版app


2    保留原始结构 6686官方版app,舒适三房满足三代同堂的家庭。


3    客厅与餐厅一体设计,空间更加开阔通透 6686官方版app


4    客卫做干湿分离处理,同时使用互不打扰,增加卫生间实用性。


效果图展示


融创玖玺臺


融创玖玺臺


"6686官方版app" 131㎡户型解析


融创玖玺臺


△原始结构图


户型优点


√    客厅功能区域空间较大,有利于舒适性的布置,增加使用性和趣味空间。


√    功能区域划分清楚。


户型缺点


×    餐厅空间布局较小,使用率不高。


×    门厅收纳空间不够且狭长,采光不足。


×    厨房有效利用空间不足。


×    各个卧室的收纳空间不足。


×    大阳台利用率不高。


6686官方版app - 方案一

开放式厨房+奢华套卧 (6686官方版app)

融创玖玺臺


思路解析


1    客厅与阳台一体设计,提升视觉空间,增加了互动场所。


2    开放式厨房+餐厅设计,增设岛台,提升烹饪用餐体验。


3    主卧打造U型衣帽间,增加收纳;浴室纳入主卧,打造功能齐全的奢华套房。


4    一间次卧打造多功能书房,集收纳、办公、休闲为一体。


效果图展示


融创玖玺臺


融创玖玺臺


6686官方版app - 方案二

舒适三房,满足多人口家庭


融创玖玺臺


思路解析


1    客厅与阳台一体设计,提升视觉空间,增加了互动场所。


2    隔绝油烟的封闭式厨房+餐厅补充西厨台,打造多元烹饪用餐场景。


3    主卧打造L型衣帽间,增加收纳;浴室纳入主卧,打造功能齐全的奢华套房。


4    保留三房,满足多人口家庭居住需求。


效果图展示


融创玖玺臺


融创玖玺臺


140㎡户型解析

融创玖玺臺140㎡


△原始结构图


户型优点


√    采光通风非常理想,结构合理,动静分离。


√    每个区域尺寸都可以满足家用柜类储藏空间。


√    宽畅的门厅让客厅和餐厅之间有足够的缓冲区域。


√    客厅通长阳台可以让客户根据居住要求多元化设计选择。


户型缺点


×    客厅下方的卧室通风性稍差。


×    餐厅和厨房的进出接触面偏小。


×    客卫生间离公共区域及客厅下方卧室偏远。


方案一

开放式布局,打造通透互动公区

融创玖玺臺140㎡


思路解析


1    客餐厅阳台一体化设计,提升视觉空间,增加了互动场所。


2    两间卧室打通,形成了一个卧室+衣帽间的舒适套卧。


3    主卫纳入主卧,形成私密、便捷的舒适套卧。


4    三间卧室,满足多人口家庭;每间房间都设置了书桌,满足办公及学习需求。


效果图展示



融创玖玺臺140㎡


方案二

"6686官方版app" 独立衣帽间+舒适三房


融创玖玺臺140㎡


思路解析


1    客餐厅阳台一体化设计,提升视觉空间,增加了互动场所。


2    客厅下方的卧室做独立衣帽间,增加家庭的储物空间。


3    主卫纳入主卧,形成私密、便捷的舒适套卧。


4    保留三房,满足多人口家庭;每间房间都设置了书桌,满足办公及学习需求。


效果图展示


融创玖玺臺140㎡


融创玖玺臺140㎡


6686官方版app - 143㎡户型解析


融创玖玺臺143㎡


△原始结构图


户型优点


√    户型方正,采光通风都很不错。


√    户型功能区域划分清晰。


√    拥有开阔的观景大阳台。


户型缺点


×    厨房较小,活动受限。


×    卫生间无下沉,空间较小。


方案

6686官方版app - 岛台+对窗吧台,打造社交厨房


融创玖玺臺143㎡


思路解析


1    客厅与阳台联通,增大会客区域,提升大气视觉。


2    客餐厅一体化设计,提升视觉空间的同时,考虑充足储存空间,并且打造了岛台及对窗吧台,功能丰富多彩。


3    主卫纳入主卧,形成私密、便捷的舒适套卧。


4    一间卧室做独立衣帽间,提升生活品质。


5    三间卧室,满足多人口家庭居住。


效果图展示


融创玖玺臺143㎡


融创玖玺臺143㎡


191㎡户型解析


融创玖玺臺191㎡


△原始结构图


户型优点


√    户型方正,采光通风都很不错。


√    户型功能区域划分清晰。


√    拥有开阔的观景大阳台。


户型缺点


×    北面房间位置不适合独立使用。


×    大框架剪力墙结构固定,只能做小调整


方案

6686官方版app - 豪华主卧套间,尊享品质生活


融创玖玺臺191㎡


思路解析


1    客厅与阳台联通,增大会客区域,提升大气视觉。


2    餐厅厨房一体化设计,提升视觉空间的同时,考虑充足存储空间,并且打造了岛台及对窗吧台,功能丰富多彩。


3    餐厅餐边柜作为厨房功能的延伸,视觉层次富有变化,


4    主卧套间设计,致使南北更加通透大气。


5    北面卧室独立分区,改造一个功能型书房,加一个小孩房或者客卧营造豪华舒适的实用空间。


效果图展示


融创玖玺臺191㎡


融创玖玺臺191㎡


御江壹品青山樽140㎡-270㎡户型解析
四居室 (6686官方版app)
170m² (6686官方版app)
6686官方版app - 现代简约


小区:御江壹品青山樽


户型:140㎡;170㎡;196㎡;270㎡


御江壹品青山樽


御江壹品青山樽位于青山滨江商务区五大板块之一的滨江总部经济板块,凭借北侧的江景及青山江滩公园和南侧的铁路文化公园,打造多层次多维度的城市高端滨江生态华宅,带给业主高雅的居住氛围。


为了给御江壹品青山樽的业主带来更好的生活体验,澳华装饰的设计师全面解析建面140-270㎡的户型方案。从居住者出发,从场景入手,平衡视觉效果与居住功能,扩展生活秩序!


140㎡户型解析

御江壹品青山樽

△原始结构图


户型优点


√    南北通透采光性好,通风好。


√    客厅功能区域空间较大,有利于舒适性的布置,增加使用性和趣味空间。


√    局部拆改较少,不影响房间结构。


√    户型功能区域划分清晰。


户型缺点


×    餐厅和次卫空间较小,采光受限。


方案一

衣帽间+主卫,打造奢享套卧

御江壹品青山樽


思路解析


1    客厅与餐厅、阳台一体设计,空间更加开阔通透。


2    舒适套卧,更改卧室门位置,制造步入式衣帽间,丰富了主卧的层次和储物空间。


3    联通主卧和阳台,增加卧室采光,同时也制造了阳台休闲区。


4    卫生间做干湿分离处理,同时使用互不打扰,增加卫生间实用性。


效果图展示


御江壹品青山樽


御江壹品青山樽


方案二

阳光大客厅+舒适三房


御江壹品青山樽


思路解析


1    客厅与餐厅、阳台一体设计,空间更加开阔通透。


2    更改儿童房门位置,加强了对孩子的监护和互动。


3    主卧套房补充L型衣柜,增加收纳空间。


4    舒适三房设计,满足多人口家庭需求。


效果图展示


御江壹品青山樽


御江壹品青山樽


御江壹品青山樽


御江壹品青山樽


170㎡户型解析

御江壹品青山樽

△原始结构图


户型优点


√    客厅功能区域空间较大,有利于舒适性的布置,增加使用性和趣味空间。


√    功能区域划分清楚。


户型缺点


×    原始户型入户门正对着厨房。


×    厨房面积小,利用率较低。


×    餐厅区域采光和通风不太理想。


"6686官方版app" 方案一

"6686官方版app" 舒适三房+多功能书房

御江壹品青山樽


思路解析


1    客厅与餐厅、阳台一体设计,增加餐厅区域的采光。


2    次卫采用干湿分离,提升卫生间的体验感。


3    客厅背后的次卧打造多功能书房,丰富生活场景,增加收纳。


4    更改主卧开门位置,形成一个步入式衣帽间,增加收纳和进门仪式感。


效果图展示


御江壹品青山樽


御江壹品青山樽


方案二

"6686官方版app" 步入式衣帽间,打造奢华套卧

御江壹品青山樽

思路解析


1    将一间次卧纳入主卧内部,打造步入式衣帽间。收纳开阔富足,提升生活品质。


2    客厅背后的次卧打造多功能书房,丰富生活场景,增加收纳。


3    客厅与餐厅、阳台一体设计,增加餐厅区域的采光。


效果图展示


御江壹品青山樽


御江壹品青山樽


御江壹品青山樽


6686官方版app - 196㎡户型解析


御江壹品青山樽


△原始结构图


户型优点


√    户型较方正,功能区域划分清晰。


√    有一个开阔明亮的大阳台。


户型缺点


×    客厅北向,采光有一定影响。


×    厨卫空间较小,实用性较弱。


方案

"6686官方版app" 联通客厅、餐厅、阳台和书房


御江壹品青山樽


思路解析


1    客餐厅阳台一体化设计,提升视觉空间,增加了互动场所。


2    开放式书房设计,与客餐厅连为一体,丰富了生活场景,最大程度打开互动空间。


3    主卫纳入主卧,形成私密、便捷的舒适套卧。


4    两间次卧,满足多人口家庭;增设储物间,满足收纳。


效果图展示


御江壹品青山樽


御江壹品青山樽


御江壹品青山樽


"6686官方版app" 270㎡户型解析

御江壹品青山樽


△原始结构图


户型优点


√    拥有开阔的大横厅。


√    客餐厅面积较大,活动舒展。


√    拥有开阔的观景大阳台。


户型缺点


×    过道空间较多,容易造成浪费。


6686官方版app - 方案一

去客厅化设计+豪华四房

御江壹品青山樽

思路解析


1    进门做玄关端景,增加入户仪式感。


2    去客厅化设计,沙发不靠墙,作为与餐厅的隔断,提升视觉空间的同时,增强了家人之间的生活互动。


3    餐厅做一排通顶收纳柜,增加收纳空间。


4    利用过道做收纳柜,不浪费空间。


5    主卫纳入主卧,形成私密、便捷的舒适套卧。


效果图展示


御江壹品青山樽


御江壹品青山樽


方案二

去客厅化设计+豪华四房

御江壹品青山樽


思路解析


1    进门做玄关端景,增加入户仪式感。


2    去客厅化设计,选择L型沙发,作为与餐厅的隔断,提升视觉空间的同时,增强了家人之间的生活互动。


3    餐厅做一排通顶收纳柜,增加收纳空间。


4    利用过道做收纳柜,不浪费空间。


5    主卫纳入主卧,形成私密、便捷的舒适套卧。


效果图展示


御江壹品青山樽


御江壹品青山樽


御江壹品青山樽


城投联投江南岸103㎡-170㎡户型全解析
三居室
"6686官方版app" 140m²
现代简约


小区:城投联投江南岸


户型:103㎡;110㎡;127㎡;140㎡;170㎡


城投联投江南岸


城投联投江南岸地处新二环滨江示范段,具备江景资源、交通、配套、规模等多重优势,集住宅、学校、酒店、商业等多样业态,外享60万方江滩公园,一线临江,大美6686平台尽收眼底!


为了给城投联投江南岸的业主带来更好的生活体验,澳华装饰的设计师全面解析建面103-170㎡的户型方案。从居住者出发,从场景入手,平衡视觉效果与居住功能,扩展生活秩序!


103㎡户型解析


城投联投江南岸


△原始结构图


户型优点


√    采光通风非常好。


√    户型功能区域划分清晰。


√    空间利用程度高。


户型缺点


×    厨房空间较小,难以满足当代人对于厨房电器的需求。


×    卧室尺寸不大。


×    入户位置局促。


方案

"6686官方版app" 舒适三房+客卫干湿分离


城投联投江南岸


思路解析


1    客厅与阳台联通,增大会客区域。


2    客卫干湿分离设计,空间开敞通透。


3    主卫纳入主卧,与家人互不干扰,提升生活质量。


4    保留三房,满足多人口居住。


效果图展示


城投联投江南岸


城投联投江南岸


110㎡户型解析


城投联投江南岸


△原始结构图


户型优点


√    采光通风非常好。


√    户型功能区域划分清晰。


√    拥有超级观景大阳台。


户型缺点


×    生活阳台功能不清晰。


×    厨房和餐厅空间较小。


×    大框架剪力墙结构固定,只能做小调整。


方案

舒适三房,满足多人口家庭


城投联投江南岸


思路解析


1    客厅与阳台联通,增大会客区域,提升大气视觉。


2    开放式厨房设计,解决餐厨空间较小的问题。


3    主卫纳入主卧,与家人互不干扰,提升生活质量。


4    保留三房,满足多人口居住。


效果图展示


城投联投江南岸


127㎡户型解析


城投联投江南岸


△原始结构图


户型优点


√    客厅功能区域空间较大,有利于舒适性的布置,增加使用性和趣味空间。


√    功能区域划分清楚。


户型缺点


×    厨房空间较小,难以满足当代人对于厨房电器的需求。


×    餐厅区域采光不太理想。


方案一

"6686官方版app" 豪华套卧,尊享品质生活

城投联投江南岸


思路解析


1    客厅与餐厅、阳台一体设计,增加餐厅区域的采光。


2    主卫和一间次卧都纳入主卧之中,打造了衣帽间,形成了一个独立、功能齐全而又私密的生活空间。


3    封闭式厨房+餐厅补充西厨柜,中西合璧,功能便捷。


效果图展示


城投联投江南岸


城投联投江南岸


方案二

舒适三房,满足多人口家庭

城投联投江南岸

思路解析


1    客厅与餐厅、阳台一体设计,增加餐厅区域的采光。


2    保留三房设计,满足多人口家庭居住。


3    将面积最小的次卧墙面向客卫推,扩大了次卧的面积。


4    封闭式厨房+餐厅补充西厨柜,中西合璧,功能便捷。


效果图展示


城投联投江南岸


城投联投江南岸


"6686官方版app" 140㎡户型解析

城投联投江南岸


△原始结构图


户型优点


√    户型较方正,功能区域划分清晰。


√    有一个开阔明亮的大阳台。


户型缺点


×    次卧面积较小,影响居住体验。


×    厨房空间较小,难以满足当代人对于厨房电器的需求。


方案一

实用四房+开放式厨房


城投联投江南岸


思路解析


1    客餐厅阳台一体化设计,提升视觉空间,增加了互动场所。


2    开放式厨房设计,解决了厨房面积较小,光线较暗的问题。


3    主卫纳入主卧,形成私密、便捷的舒适套卧。


4    保留三间次卧,满足多人口家庭;增设储物间,满足收纳。


效果图展示


城投联投江南岸


城投联投江南岸


方案二

两间卧室联通,形成舒适套卧

城投联投江南岸


思路解析


1    客餐厅阳台一体化设计,提升视觉空间,增加了互动场所。


2    开放式厨房设计,解决了厨房面积较小,光线较暗的问题。


3    两间次卧打通,形成一个衣帽间+主卧+主卫的舒适套卧,打造高品质私人生活。


效果图展示


城投联投江南岸


城投联投江南岸


城投联投江南岸


"6686官方版app" 170㎡户型解析

城投联投江南岸


△原始结构图


户型优点


√    客餐厅面积较大,活动舒展。


√    拥有开阔的观景大阳台。


√    房间多,适宜多人口家庭。


户型缺点


×    餐厅部分面积较小,采光受限。


方案一

三房+三卫,呵护品质生活 (6686官方版app)

城投联投江南岸


思路解析


1    入户靠墙做一排收纳柜,增加收纳。


2    客餐厅阳台都打通,空间开阔明亮。


3    餐厅借用书房面积,扩大餐厅使用面积,提供更大的互动空间。


4    书房纳入主卧,形成了一个集衣帽间、浴室、书房和睡眠区为一体的奢华套卧。


5    三间卫浴,家人使用可以互不干扰。


效果图展示


城投联投江南岸


城投联投江南岸


方案二

三房+三卫,呵护品质生活

城投联投江南岸


思路解析


1    进门做玄关端景和收纳柜,增加入户仪式感。


2    玄关旁边还专门做了一个小储物间,增加收纳。


3    餐厅借用书房面积,扩大餐厅使用面积,提供更大的互动空间。


4    书房纳入主卧,形成了一个集衣帽间、浴室、书房和睡眠区为一体的奢华套卧。


5    三间卫浴,家人使用可以互不干扰。


效果图展示


城投联投江南岸


城投联投江南岸


城投联投江南岸


福星惠誉·星誉国际92㎡-142㎡户型全解析
三居室 (6686官方版app)
142m²
现代简约


小区:福星惠誉星誉国际


户型:92㎡;114㎡;120㎡;131㎡;142㎡


福星惠誉星誉国际


福星惠誉星誉国际项目作为江岸区大盘,位于汉口内环与二环之间,建设大道与三眼桥路交汇处,交通便捷,配套齐全。


为了给福星惠誉星誉国际的业主带来更好的生活体验,澳华装饰的设计师全面解析建面92-142㎡的户型方案。从居住者出发,从场景入手,平衡视觉效果与居住功能,扩展生活秩序!


92㎡户型解析


福星惠誉星誉国际


△原始结构图


户型优点


√    采光通风都很不错


√    户型功能区域划分清晰


户型缺点


×    大框架剪力墙结构固定,只能做小调整


方案


优化动线+扩大视觉面积


福星惠誉星誉国际


思路解析


1    客餐厅与阳台联通,增大会客区域,提升大气视觉。


2    L型厨房设计,洗切炒动线合理简短。


意向图展示


福星惠誉星誉国际


114㎡户型解析


福星惠誉星誉国际


△原始结构图


户型优点


√    采光通风都很不错


√    户型功能区域划分清晰


√    观景大阳台


户型缺点


×    优化储物空间


方案


优化室内采光+超强收纳


福星惠誉星誉国际


思路解析


1    客厅、卧室与阳台联通,采光好,使用面积大。


2    定制家用柜,提升家的容积,家里不再乱糟糟。


意向图展示


福星惠誉星誉国际


120㎡户型解析


福星惠誉星誉国际


△原始结构图


户型优点


√    全房通透采光性好,通风好。


√    客厅功能区域空间较大,有利于舒适性的布置,增加使用性和趣味空间。


√    户型功能区域划分清晰。


户型缺点


×    需要对餐厅、厨房区域进行优化调整


×    全屋飘窗空间优化


方案


客餐厅一体设计+实用三房设计


福星惠誉星誉国际


思路解析


1    厨房和餐厅区域,规划半开放式用餐区域,增加舒适感。


2    优化飘窗设计,增加使用面积。


3    卫生间均使用干湿分离设计,更易清洁。


效果图展示


福星惠誉星誉国际


131㎡户型解析


福星惠誉星誉国际


△原始结构图


户型优点


√    房屋通透,采光好,通风好。


√    结构方正,可做拆改。


户型缺点


×    需要对餐厅区域进行优化调整


方案


合理规划空间,优化使用面积


福星惠誉星誉国际


思路解析


1    收纳空间合理,增加家的容积,日常收纳更方便。


2    合理利用墙面布局餐厅的位置,优化了使用空间。


3    通过砌墙做三房设计,合理了布局了两个飘窗。


意向图展示


福星惠誉星誉国际


福星惠誉星誉国际


142㎡户型解析


福星惠誉星誉国际


△原始结构图


户型优点


√    客厅空间充裕,有大的观景阳台。


√    空间动静分区明朗。


户型缺点


×    客厅空间浪费严重


×    缺乏休闲娱乐空间


方案


沙发背后储物+阅读书房


福星惠誉星誉国际


思路解析


1    客厅利用沙发背后做储物,增加了收纳的同时也使得客厅的空间更加美观。


2    阳台打开,保证通风和自然采光最大,也能做到真正意义上的观景。


3    规划阅读书房,还可以满足偶尔居家办公的需求。


福星惠誉星誉国际


正荣紫阙台110㎡-142㎡户型全解析
三居室
142m²
"6686官方版app" 现代简约


小区:正荣紫阙台


户型:110㎡;115㎡;125㎡;140㎡;142㎡



正荣紫阙台,正荣紫阙台户型图,正荣紫阙台户型解析


正荣·紫阙台,位于关山大道与南湖大道两条城市主干道之间,光谷发展主动脉的黄金点上。超13万方园林,真正住在公园里。


为了给正荣·紫阙台的业主带来更好的生活体验,澳华装饰的设计师全面解析建面110-142㎡的户型方案。从居住者出发,从场景入手,平衡视觉效果与居住功能,扩展生活秩序!


110㎡户型解析


正荣紫阙台,正荣紫阙台户型图,正荣紫阙台户型解析


△原始结构图


户型优点


√    方正空间南北通透


√    三面采光


户型缺点


×    厨房不规则,需要做优化


方案


开放式餐厨一体改造


正荣紫阙台,正荣紫阙台户型图,正荣紫阙台户型解析


思路解析


1    重点规划厨房与餐厅,采用开放式厨房设计,延长厨房操作台面。


2    客餐厅通透布局,全屋空间分布均匀。


效果图展示


正荣紫阙台,正荣紫阙台户型图,正荣紫阙台户型解析


正荣紫阙台,正荣紫阙台户型图,正荣紫阙台户型解析


115㎡户型解析


正荣紫阙台,正荣紫阙台户型图,正荣紫阙台户型解析


△原始结构图


户型优点


√    采光通风都很不错


√    户型功能区域划分清晰


√    观景大阳台


户型缺点


×    主卧空间与卫生间门的关系需要优化


方案一


客餐厅一体+舒适套房


正荣紫阙台,正荣紫阙台户型图,正荣紫阙台户型解析


思路解析


1    入户鞋柜设计相较于传统入户鞋柜更加新颖别致,有效避免空间推积和拥堵。


2    厨房空间较小,将次卧的一部分空间纳入厨房,厨房布局呈L型展开,实用方便。


3    客餐厅开放式的布局,客厅阳台一体化设计,视野更开阔,采光更好。


4    卧室采用L型衣柜设计,丰富了空间层次。储物面积也扩展不少。有衣帽间做隔断,主卫门也不对直接对着床,整个睡眠区都保持舒适惬意。


意向图展示


正荣紫阙台,正荣紫阙台户型图,正荣紫阙台户型解析


正荣紫阙台,正荣紫阙台户型图,正荣紫阙台户型解析


正荣紫阙台,正荣紫阙台户型图,正荣紫阙台户型解析


方案二


“去客厅化”设计


正荣紫阙台,正荣紫阙台户型图,正荣紫阙台户型解析


思路解析


1    “去客厅化”设计,打破固定的客厅装修模式,以居住者的生活方式为起点,舒适至上。客厅阳台打通后,摆上休闲沙发或茶桌,增加书柜,打造集茶室,书房一体的休闲阅览室,给家居添加阅读悠闲氛围。


2    扩大厨房空间,让烹饪者有充分的活动空间,U型橱柜也增加了制餐与备餐的功能性。


意向图展示


正荣紫阙台,正荣紫阙台户型图,正荣紫阙台户型解析


125㎡户型解析


正荣紫阙台,正荣紫阙台户型图,正荣紫阙台户型解析


△原始结构图


户型优点


√    户型比较方正,南北通透,还有一个超大的阳台


√    厨房空间比较大,动静分区明确


√    三房两卫,户型功能区域划分清晰


户型缺点


×    承重墙主要分布在房间以及厨房,限制比较大


×    主卧尺寸不够大


方案一


惬意大阳台+实用餐厅


正荣紫阙台,正荣紫阙台户型图,正荣紫阙台户型解析


思路解析


1    保留大阳台,既可以作为生活晾晒区,也可以作为生活休闲区。


2    L型超长橱柜,增加储物空间,改为双推门可以加大视觉通透性,嵌入式冰箱与餐边柜一体,充分利用空间。


意向图展示


正荣紫阙台,正荣紫阙台户型图,正荣紫阙台户型解析


正荣紫阙台,正荣紫阙台户型图,正荣紫阙台户型解析


正荣紫阙台,正荣紫阙台户型图,正荣紫阙台户型解析


方案二


阳光书房设计,享受阅读时光


正荣紫阙台,正荣紫阙台户型图,正荣紫阙台户型解析


思路解析


1    次卧打通到阳台,作为一个阳光书房的区域。


2    书房做榻榻米,增加储物的空间。


3    主卧L型衣柜,作为一个小的步入式衣帽间。


意向图展示


正荣紫阙台,正荣紫阙台户型图,正荣紫阙台户型解析


正荣紫阙台,正荣紫阙台户型图,正荣紫阙台户型解析


正荣紫阙台,正荣紫阙台户型图,正荣紫阙台户型解析


140㎡户型解析


正荣紫阙台,正荣紫阙台户型图,正荣紫阙台户型解析


△原始结构图


户型优点


√    户型比较方正,南北通透,动静分区明确


√    三房两卫,能够满足一家四口的居住需求


√    承重墙部分集中在卧室和卫生间区域,房间部分空间可以优化


户型缺点


×    厨房空间较小,难以满足当代人对于厨房电器的需求


×    客餐厅宽度尺寸受限


方案


餐厨一体设计+客厅与书房结合


正荣紫阙台,正荣紫阙台户型图,正荣紫阙台户型解析


思路解析


1    餐厨一体设计,增加了橱柜操作台面,半敞开式厨房,更符合现代年轻人的生活习惯。


2    客厅和书房一体,增加了客厅的空间感。


3    阳台融入客厅,让客厅更宽敞,视野更开阔;阳台洗衣烘干一体设计,更符合快节奏的生活。


意向图展示


正荣紫阙台,正荣紫阙台户型图,正荣紫阙台户型解析


正荣紫阙台,正荣紫阙台户型图,正荣紫阙台户型解析



142㎡户型解析


正荣紫阙台,正荣紫阙台户型图,正荣紫阙台户型解析


△原始结构图


户型优点


√    采光通风好,观景大阳台


√    户型功能区域划分清晰,空间动静分区明朗


户型缺点


×    北面房间位置不合适独立运用


×    大框架剪力墙结构固定,只能做小调整


方案一


空间魔法+实用收纳


正荣紫阙台,正荣紫阙台户型图,正荣紫阙台户型解析


思路解析


1    餐边柜做厨房一侧,厨房做梭门隐藏在餐边柜背后,尽可能让餐厅空间变得更大。


2    父母房做背靠背两组柜子,收纳功能增加一倍。做两扇梭门让空间变得更加灵动。


3    主卧室改变原始门洞,让床尾做一排衣柜,比原始的步入式衣帽间更能储存。


意向图展示


正荣紫阙台,正荣紫阙台户型图,正荣紫阙台户型解析


正荣紫阙台,正荣紫阙台户型图,正荣紫阙台户型解析


方案二


实用四房的小资生活


正荣紫阙台,正荣紫阙台户型图,正荣紫阙台户型解析


思路解析


1    客厅电视背景柜做满整面墙体,使空间显得更整体,再用岩板点缀,更有特色。


2    主卧室不动原墙体,做步入式衣帽间,用衣柜遮挡主卫对门的尴尬。


3    主卫可以使用浴缸,让生活变得更小资。


意向图展示


正荣紫阙台,正荣紫阙台户型图,正荣紫阙台户型解析


正荣紫阙台,正荣紫阙台户型图,正荣紫阙台户型解析


正荣紫阙台,正荣紫阙台户型图,正荣紫阙台户型解析


*部分图片来源于网络,侵权联系删除


中建福地星城 90㎡-140㎡户型全解析
三居室
140m² (6686官方版app)
现代简约 (6686官方版app)


小区:中建福地星城


户型:90㎡;108㎡;113㎡;121㎡;123㎡;140㎡


中建福地星城


中建福地星城周边环伺中南商圈、街道口商圈、南湖商圈三大商圈,吃喝玩乐购一站式尽享,步履间领享城市前沿潮流生活,赋予生活上乘享受。


为了给中建福地星城的业主带来更好的生活体验,澳华装饰的设计师全面解析建面90-140㎡的户型方案。从居住者出发,从场景入手,平衡视觉效果与居住功能,扩展生活秩序!


90㎡户型解析


中建福地星城


△原始结构图


户型优点


√    客厅采光好,通风好,空间明亮通透。


√    入户门厅宽敞,格局大方。


√    过道较少,空间利用率高。


户型缺点


×    客厅面积较小,活动范围有限。


×    次卧面积较小,收纳空间不足。


方案一


无玄关,保证空间通透性


中建福地星城


思路解析


1    门厅不设置玄关,从入户到阳台空间都联通。最大程度打开视觉,也增强了各个空间的互动性。


2    鞋柜酒柜做成连体通长,视觉延伸感好,显得空间大。


效果图展示


中建福地星城


中建福地星城


方案二


入户设置玄关,私密性好


中建福地星城


思路解析


1    门厅设置玄关,视线有遮挡,客厅私密性更好,空间层次也更丰富。


2    次卧做成多功能房,空间利用率高。


效果图展示


中建福地星城


中建福地星城


108㎡户型解析


中建福地星城


△原始结构图


户型优点


√    客厅及主次卧朝南,采光和通风都较好。


√    户型功能区域划分清楚。


户型缺点


×    餐厅面积较小。


×    两个次卧面积较小。


×    入户面积较小,收纳空间有限。


方案一


延伸客厅+保留三房


中建福地星城


思路解析


1    客厅与阳台联通,增大会客区域。


2    独立厨房,隔绝油烟。


3    保留三房,设置多功能房,满足多人口家庭需求。


4    主卧L型衣帽间,增加收纳空间。


效果图展示


中建福地星城


中建福地星城


中建福地星城


方案二


开放式厨房+轻奢套卧


中建福地星城


思路解析


1    客厅与阳台联通,增大会客区域。


2    开放式厨房,增加空间的互动性。


3    主卧套房,增加收纳,提升生活品质。


4    飘窗拆除,整体利用增加收纳。


效果图展示


中建福地星城


中建福地星城


中建福地星城


113㎡户型解析


中建福地星城


△原始结构图


户型优点


√    采光通风都很不错。


√    三房两厅,能够满足一家五口的居住需求。


√    户型功能区域划分清楚。


户型缺点


×    厨房面积较小。


×    次卧面积较小。


方案一


客厅阳台联通+保留三房


中建福地星城


思路解析


1    客厅与阳台打通,增大视觉空间以及亮度。


2    保留三房,满足多人口家庭的居住需求。


效果图展示


中建福地星城


中建福地星城


方案二


开放式厨房+独立书房


中建福地星城


思路解析


1    拆除部分墙体,玄关连接餐厨,做开放式厨房。


2    客厅打通阳台,南北通透两面采光。


3    主卧向书房外扩,扩大主卧空间。


效果图展示


中建福地星城


中建福地星城


121㎡户型解析


中建福地星城


△原始结构图


户型优点


√    客餐厅一体,形成一个大开间。


√    三房两厅,能够满足多人口家庭的居住需求。


√    公区视距宽阔,可塑性强。


户型缺点


×    卧室尺寸较小,收纳空间有限。


×    主卧室功能不齐全。


×    次卫生间分区不合理。


方案


联通公区,利用过道增设衣帽间


中建福地星城


思路解析


1    客厅阳台餐厅都联通,增大视觉空间及亮度。


2    主卧室增设衣帽间,强大储物。


3    小卧室定制尺寸,满足所有功能的需求。


4    隐蔽客卫生原有尴尬的开门方向。


5    用大板块材质一体化划分区域。


效果图展示


中建福地星城


中建福地星城


中建福地星城


123㎡户型解析


中建福地星城


△原始结构图


户型优点


√    采光和通风非常好,空间明亮通透。


√    户型功能区域划分清晰。


户型缺点


×    生活阳台不清晰。


×    卧室尺寸不大。


方案一


开阔公区+保留三房


中建福地星城


思路解析


1    客厅与餐厅、阳台联通,增大会客区域,拉伸视觉,增加透视感。


2    主卫纳入主卧,形成一个便捷舒适的套间。


3    次卫做干湿分离,方便多人同时使用。


4    保留三房,满足多人口家庭的居住需求。


效果图展示


中建福地星城


中建福地星城


方案二


主卫采用干湿分离


中建福地星城


思路解析


1    餐厅、客厅、阳台采用一体化设计,增大视觉空间,增加了互动性。


2    次卫采用干湿分离,提升卫生间的体验感。


3    一间次卧做多功能房,提升空间利用的多样性。


效果图展示


中建福地星城


中建福地星城


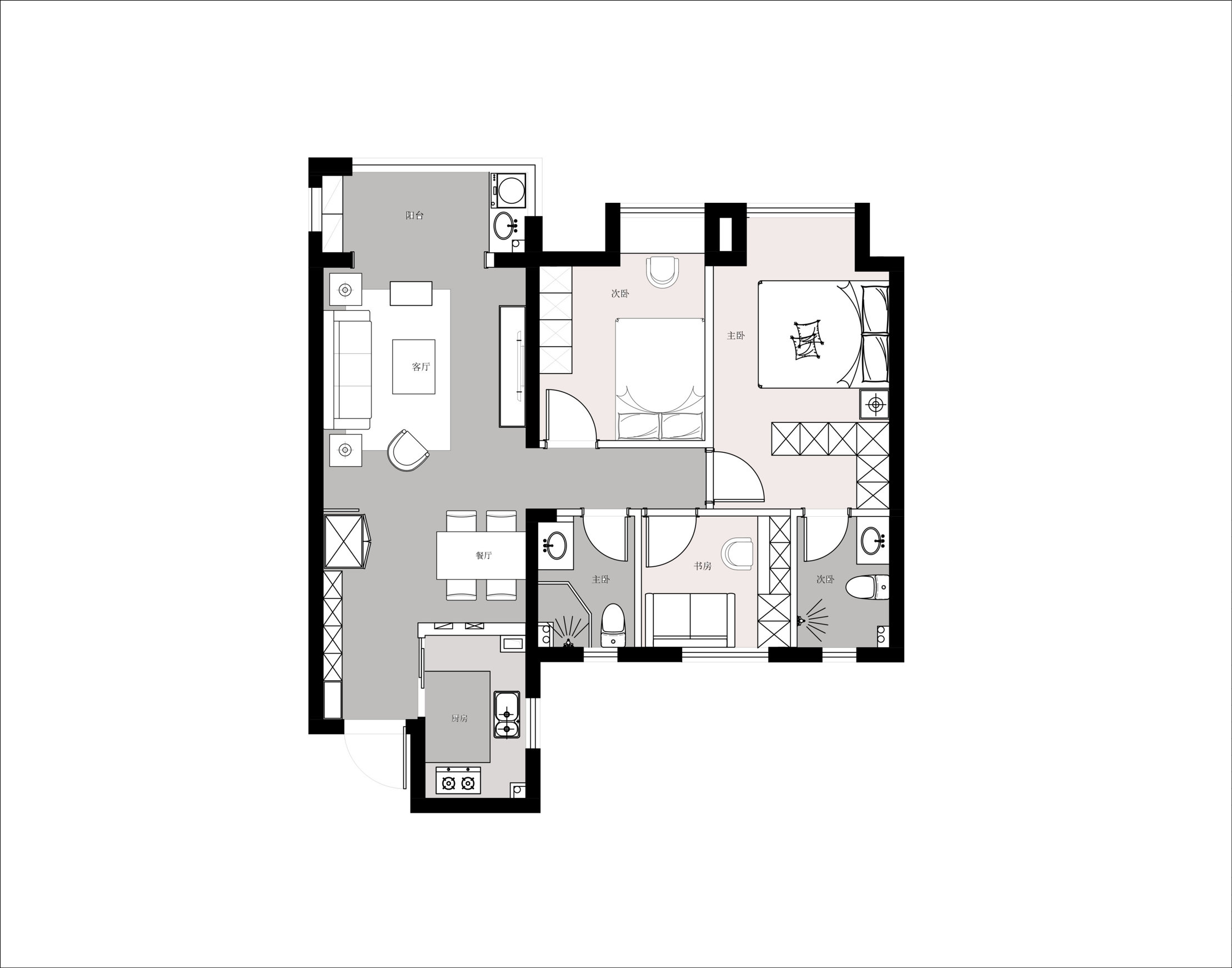
140㎡户型解析


中建福地星城


户型优点


√    边户四室两卫的房子,三面采光,南北通透。


√    户型较方正,动静分区明确,利用率最大。


√    飘窗可以拆除,增大室内空间面积。


户型缺点


×    承重墙较多。


×    客卧较小。


方案一


超大套卧+开阔公区


中建福地星城


思路解析


1    阳台并入客厅,增大视觉空间,增强了互动性。


2    一间次卧改为超大衣帽间,L型衣橱收纳强大。


3    衣帽间与主卫一起包进主卧,形成功能强大的套间。


4    次卫做干湿分离,提升生活便捷度。


效果图展示


中建福地星城


中建福地星城


方案二


实用四房,满足多人口需求


中建福地星城


思路解析


1    阳台并入客厅,增大视觉空间,增强了互动性。


2    三卧室+一书房设置,满足多人口家庭需求。


3    主卧借用次卧空间做步入式衣帽间,增加收纳。


4    次卫做干湿分离,提升生活便捷度。


效果图展示


中建福地星城


中建福地星城

"6686官方版app" 算一算我家装修需要多少钱
    • 张女士
      132****178
      200m²
    • 成先生
      134****4856
      83m²
    • 董先生
      137****2569
      95m²
    • 成先生
      133****7485
      130m²
    • 李先生
      150****4475
      220m²
    • 张先生
      139****5050
      187m²
    • 王女士
      178****4563
      168m²
    预约设计师
    姓名*
    楼盘*
    电话*
    *为了您的权益, 您的隐私将严格保密
    预约成功
    您已报名成功, 稍后会有客服人员联系您。 您的隐私将被严格保密。
    关注二维码了解6686体育装修知识
    联系我们
    装修咨询电话 : 027-82411111
    售后服务电话 : 027-82866788
    公司地址 : 6686平台市江岸区澳门路232号金冠大厦
    6686登录我们
    "6686官方版app" 友情链接 :
      66866686官方版app下载官方版-6686官方版app下载2025最新 页面版权所有 jingyu-design.cn

      686官方版app - 算一算,您家装修需要花多少钱?

      知精准报价 避装修深坑

      686官方版app - 01/03

      选择您喜欢的风格

      • 现代轻奢

      • 现代美式

      • 北欧

      • 新中式

      • 欧式

      • 其他

      算一算,您家装修要花多少钱?

      知精准报价 避装修深坑

      686官方版app - 02/03

      选择房屋面积区间

      • 80-100㎡
      • 100-140㎡
      • 140-200㎡
      • 200-300㎡
      • 300㎡以上

      03/03

      您的户型

      • 两居室

      • 三居室

      • 四居室

      • 五居室

      • 六居室

      "6686官方版app" 算一算,您家装修要花多少钱?

      知精准报价 避装修深坑

      0%

      稍等片刻,您的报价正在生中......

      "6686官方版app" 算一算,您家装修要花多少钱?

      知精准报价 避装修深坑

      您的完整报价已经生成

      报名成功享抢订优惠名额

      每日仅限前10名用户