6686官方版app - 24小时咨询电话
027-82411111
当前位置 : 首页 > 户型解析 > 福星惠誉·星誉国际92㎡-142㎡户型全解析
福星惠誉·星誉国际92㎡-142㎡户型全解析 (6686官方版app)
发布时间 : 2023-04-11 14:28
查看数 : (6686官方版app)


小区:福星惠誉星誉国际


户型:92㎡. 114㎡ 6686官方版app. 120㎡. 131㎡. 142㎡.


福星惠誉星誉国际


福星惠誉星誉国际项目作为江岸区大盘,位于汉口内环与二环之间,建设大道与三眼桥路交汇处,交通便捷,配套齐全 6686官方版app


为了给福星惠誉星誉国际的业主带来更好的生活体验 6686官方版app,澳华装饰的设计师全面解析建面92-142㎡的户型方案,从居住者出发,从场景入手,平衡视觉效果与居住功能,扩展生活秩序。


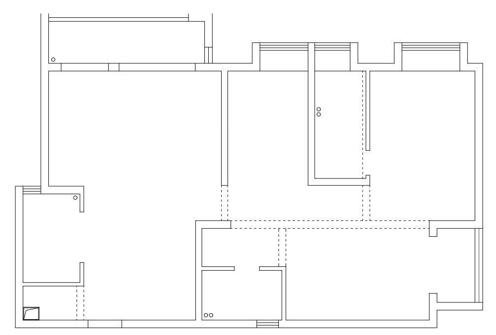
92㎡户型解析


福星惠誉星誉国际


△原始结构图


户型优点


√    采光通风都很不错


√    户型功能区域划分清晰


户型缺点


×    大框架剪力墙结构固定 6686官方版app,只能做小调整.


方案


优化动线+扩大视觉面积


福星惠誉星誉国际


思路解析


1    客餐厅与阳台联通,增大会客区域 6686官方版app,提升大气视觉。


2    L型厨房设计 6686官方版app,洗切炒动线合理简短。


意向图展示


福星惠誉星誉国际


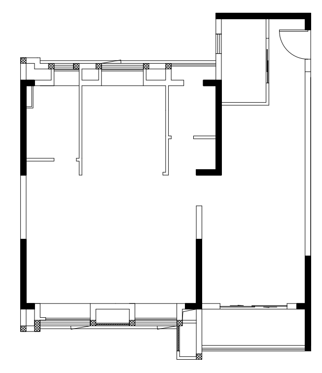
114㎡户型解析


福星惠誉星誉国际


△原始结构图


户型优点


√    采光通风都很不错


√    户型功能区域划分清晰


√    观景大阳台


户型缺点


×    优化储物空间


方案


优化室内采光+超强收纳


福星惠誉星誉国际


思路解析


1    客厅,卧室与阳台联通 6686官方版app,采光好,使用面积大。


2    定制家用柜 6686官方版app,提升家的容积,家里不再乱糟糟。


意向图展示


福星惠誉星誉国际


120㎡户型解析


福星惠誉星誉国际


△原始结构图


户型优点


√    全房通透采光性好,通风好 6686官方版app


√    客厅功能区域空间较大,有利于舒适性的布置 6686官方版app,增加使用性和趣味空间。


√    户型功能区域划分清晰。


户型缺点


×    需要对餐厅、厨房区域进行优化调整


×    全屋飘窗空间优化


方案


客餐厅一体设计+实用三房设计


福星惠誉星誉国际


思路解析


1    厨房和餐厅区域,规划半开放式用餐区域,增加舒适感。


2    优化飘窗设计,增加使用面积。


3    卫生间均使用干湿分离设计,更易清洁。


效果图展示


福星惠誉星誉国际


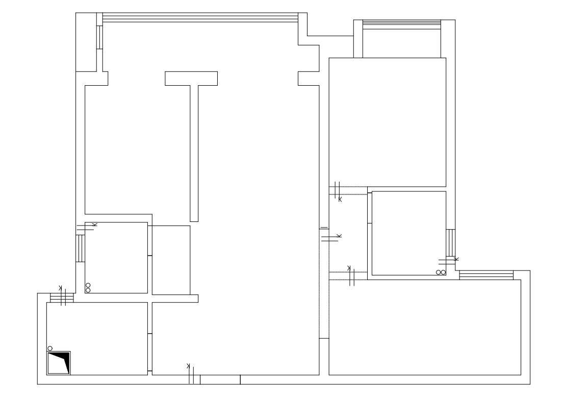
131㎡户型解析


福星惠誉星誉国际


△原始结构图


户型优点


√    房屋通透,采光好,通风好。


√    结构方正,可做拆改。


户型缺点


×    需要对餐厅区域进行优化调整


方案


合理规划空间,优化使用面积


福星惠誉星誉国际


思路解析


1    收纳空间合理,增加家的容积,日常收纳更方便。


2    合理利用墙面布局餐厅的位置,优化了使用空间。


3    通过砌墙做三房设计,合理了布局了两个飘窗。


意向图展示


福星惠誉星誉国际


福星惠誉星誉国际


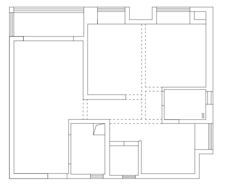
142㎡户型解析


福星惠誉星誉国际


△原始结构图


户型优点


√    客厅空间充裕,有大的观景阳台。


√    空间动静分区明朗。


户型缺点


×    客厅空间浪费严重


×    缺乏休闲娱乐空间


方案


沙发背后储物+阅读书房


福星惠誉星誉国际


思路解析


1    客厅利用沙发背后做储物,增加了收纳的同时也使得客厅的空间更加美观。


2    阳台打开,保证通风和自然采光最大,也能做到真正意义上的观景。


3    规划阅读书房,还可以满足偶尔居家办公的需求。


福星惠誉星誉国际


(6686官方版app)
"6686官方版app"
预约设计师
海量行家, 抢订6686注册设计服务
每日前20名申请用户, 获3D装修设计图
推荐相关案例
6686注册获取同款设计方案
姓名*
楼盘*
电话*
*为了您的权益, 您的隐私将严格保密
预约成功 (6686官方版app)
您已报名成功, 稍后会有客服人员联系您。 您的隐私将被严格保密。
关注二维码了解6686体育装修知识
联系我们
装修咨询电话 : 027-82411111 (6686官方版app)
售后服务电话 : 686官方版app - 027-82866788 (6686官方版app)
公司地址 : 6686平台市江岸区澳门路232号金冠大厦
6686登录我们
友情链接 :
    66866686官方版app下载官方版-6686官方版app下载2025最新 页面版权所有 jingyu-design.cn

    算一算,您家装修需要花多少钱?

    知精准报价 避装修深坑

    686官方版app - 01/03

    选择您喜欢的风格

    • 现代轻奢

    • 现代美式

    • 北欧

    • 新中式

    • 欧式

    • 其他

    686官方版app - 算一算,您家装修要花多少钱?

    知精准报价 避装修深坑

    02/03

    选择房屋面积区间 (6686官方版app)

    • 80-100㎡
    • 100-140㎡
    • 140-200㎡
    • 200-300㎡
    • 300㎡以上

    03/03 (6686官方版app)

    您的户型

    • 两居室

    • 三居室

    • 四居室

    • 五居室

    • 六居室

    686官方版app - 算一算,您家装修要花多少钱?

    知精准报价 避装修深坑

    0%

    稍等片刻,您的报价正在生中......

    6686官方版app - 算一算,您家装修要花多少钱?

    知精准报价 避装修深坑

    您的完整报价已经生成

    6686官方版app - 报名成功享抢订优惠名额

    每日仅限前10名用户