24小时咨询电话
027-82411111
当前位置 : 首页 > 户型解析 > 城投联投江南岸103㎡-170㎡户型全解析
"6686官方版app" 城投联投江南岸103㎡-170㎡户型全解析
发布时间 : 2023-07-01 10:02
查看数 :


小区:城投联投江南岸


户型:103㎡. 110㎡ 6686官方版app. 127㎡. 140㎡. 170㎡.


城投联投江南岸


城投联投江南岸地处新二环滨江示范段,具备江景资源,交通,配套,规模等多重优势,集住宅,学校 6686官方版app,酒店,商业等多样业态,外享60万方江滩公园,一线临江,大美6686平台尽收眼底.


为了给城投联投江南岸的业主带来更好的生活体验 6686官方版app,澳华装饰的设计师全面解析建面103-170㎡的户型方案,从居住者出发,从场景入手,平衡视觉效果与居住功能,扩展生活秩序。


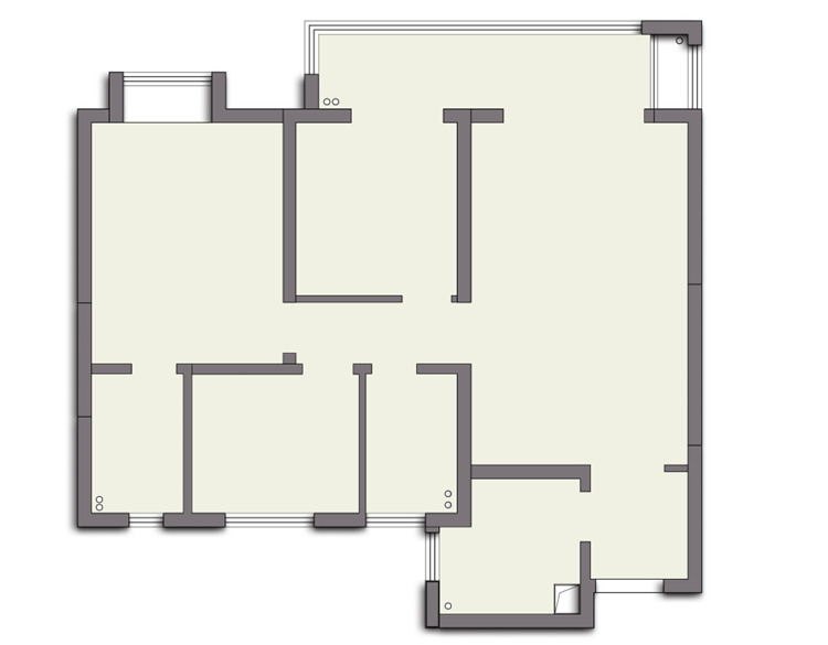
103㎡户型解析 (6686官方版app)


城投联投江南岸


△原始结构图


户型优点


√    采光通风非常好。


√    户型功能区域划分清晰。


√    空间利用程度高。


户型缺点


×    厨房空间较小,难以满足当代人对于厨房电器的需求 6686官方版app


×    卧室尺寸不大。


×    入户位置局促。


方案

舒适三房+客卫干湿分离


城投联投江南岸


思路解析


1    客厅与阳台联通,增大会客区域 6686官方版app


2    客卫干湿分离设计 6686官方版app,空间开敞通透。


3    主卫纳入主卧,与家人互不干扰 6686官方版app,提升生活质量。


4    保留三房,满足多人口居住 6686官方版app


效果图展示


城投联投江南岸


城投联投江南岸


110㎡户型解析


城投联投江南岸


△原始结构图


户型优点


√    采光通风非常好。


√    户型功能区域划分清晰。


√    拥有超级观景大阳台。


户型缺点


×    生活阳台功能不清晰。


×    厨房和餐厅空间较小。


×    大框架剪力墙结构固定,只能做小调整 6686官方版app


方案

舒适三房,满足多人口家庭


城投联投江南岸


思路解析


1    客厅与阳台联通 6686官方版app,增大会客区域,提升大气视觉。


2    开放式厨房设计,解决餐厨空间较小的问题。


3    主卫纳入主卧,与家人互不干扰,提升生活质量。


4    保留三房,满足多人口居住。


效果图展示


城投联投江南岸


6686官方版app - 127㎡户型解析


城投联投江南岸


△原始结构图


户型优点


√    客厅功能区域空间较大,有利于舒适性的布置,增加使用性和趣味空间。


√    功能区域划分清楚。


户型缺点


×    厨房空间较小,难以满足当代人对于厨房电器的需求。


×    餐厅区域采光不太理想。


方案一

豪华套卧,尊享品质生活

城投联投江南岸


思路解析


1    客厅与餐厅、阳台一体设计,增加餐厅区域的采光。


2    主卫和一间次卧都纳入主卧之中,打造了衣帽间,形成了一个独立、功能齐全而又私密的生活空间。


3    封闭式厨房+餐厅补充西厨柜,中西合璧,功能便捷。


效果图展示


城投联投江南岸


城投联投江南岸


方案二

舒适三房,满足多人口家庭

城投联投江南岸

思路解析


1    客厅与餐厅、阳台一体设计,增加餐厅区域的采光。


2    保留三房设计,满足多人口家庭居住。


3    将面积最小的次卧墙面向客卫推,扩大了次卧的面积。


4    封闭式厨房+餐厅补充西厨柜,中西合璧,功能便捷。


效果图展示


城投联投江南岸


城投联投江南岸


140㎡户型解析

城投联投江南岸


△原始结构图


户型优点


√    户型较方正,功能区域划分清晰。


√    有一个开阔明亮的大阳台。


户型缺点


×    次卧面积较小,影响居住体验。


×    厨房空间较小,难以满足当代人对于厨房电器的需求。


方案一

实用四房+开放式厨房


城投联投江南岸


思路解析


1    客餐厅阳台一体化设计,提升视觉空间,增加了互动场所。


2    开放式厨房设计,解决了厨房面积较小,光线较暗的问题。


3    主卫纳入主卧,形成私密、便捷的舒适套卧。


4    保留三间次卧,满足多人口家庭;增设储物间,满足收纳。


效果图展示


城投联投江南岸


城投联投江南岸


方案二

两间卧室联通,形成舒适套卧 (6686官方版app)

城投联投江南岸


思路解析


1    客餐厅阳台一体化设计,提升视觉空间,增加了互动场所。


2    开放式厨房设计,解决了厨房面积较小,光线较暗的问题。


3    两间次卧打通,形成一个衣帽间+主卧+主卫的舒适套卧,打造高品质私人生活。


效果图展示


城投联投江南岸


城投联投江南岸


城投联投江南岸


170㎡户型解析

城投联投江南岸


△原始结构图


户型优点


√    客餐厅面积较大,活动舒展。


√    拥有开阔的观景大阳台。


√    房间多,适宜多人口家庭。


户型缺点


×    餐厅部分面积较小,采光受限。


6686官方版app - 方案一

三房+三卫,呵护品质生活

城投联投江南岸


思路解析


1    入户靠墙做一排收纳柜,增加收纳。


2    客餐厅阳台都打通,空间开阔明亮。


3    餐厅借用书房面积,扩大餐厅使用面积,提供更大的互动空间。


4    书房纳入主卧,形成了一个集衣帽间、浴室、书房和睡眠区为一体的奢华套卧。


5    三间卫浴,家人使用可以互不干扰。


效果图展示


城投联投江南岸


城投联投江南岸


方案二

三房+三卫,呵护品质生活

城投联投江南岸


思路解析


1    进门做玄关端景和收纳柜,增加入户仪式感。


2    玄关旁边还专门做了一个小储物间,增加收纳。


3    餐厅借用书房面积,扩大餐厅使用面积,提供更大的互动空间。


4    书房纳入主卧,形成了一个集衣帽间、浴室、书房和睡眠区为一体的奢华套卧。


5    三间卫浴,家人使用可以互不干扰。


效果图展示


城投联投江南岸


城投联投江南岸


城投联投江南岸


(6686官方版app)
"6686官方版app"
"6686官方版app" 预约设计师
海量行家, 抢订6686注册设计服务
每日前20名申请用户, 获3D装修设计图
推荐相关案例
6686注册获取同款设计方案
姓名*
楼盘*
电话*
*为了您的权益, 您的隐私将严格保密
"6686官方版app" 预约成功
您已报名成功, 稍后会有客服人员联系您。 您的隐私将被严格保密。
关注二维码了解6686体育装修知识
"6686官方版app" 6686登录我们
澳华历程
官方微博 (6686官方版app)
联系我们
"6686官方版app" 装修咨询电话 : 027-82411111
售后服务电话 : 027-82866788
公司地址 : 6686平台市江岸区澳门路232号金冠大厦 (6686官方版app)
6686官方版app - 6686登录我们
友情链接 : (6686官方版app)
    66866686官方版app下载官方版-6686官方版app下载2025最新 页面版权所有 jingyu-design.cn

    686官方版app - 算一算,您家装修需要花多少钱?

    知精准报价 避装修深坑

    01/03 (6686官方版app)

    选择您喜欢的风格

    • 现代轻奢

    • 现代美式

    • 北欧

    • 新中式

    • 欧式

    • 其他

    6686官方版app - 算一算,您家装修要花多少钱?

    知精准报价 避装修深坑

    02/03

    选择房屋面积区间

    • 80-100㎡
    • 100-140㎡
    • 140-200㎡
    • 200-300㎡
    • 300㎡以上

    686官方版app - 03/03

    您的户型

    • 两居室

    • 三居室

    • 四居室

    • 五居室

    • 六居室

    "6686官方版app" 算一算,您家装修要花多少钱?

    知精准报价 避装修深坑

    0%

    稍等片刻,您的报价正在生中......

    算一算,您家装修要花多少钱?

    知精准报价 避装修深坑

    "6686官方版app" 您的完整报价已经生成

    6686官方版app - 报名成功享抢订优惠名额

    每日仅限前10名用户