24小时咨询电话
027-82411111
当前位置 : 首页 > 户型解析 > 正荣紫阙台110㎡-142㎡户型全解析
正荣紫阙台110㎡-142㎡户型全解析 (6686官方版app)
发布时间 : 2023-04-03 16:59
查看数 : 686官方版app -


小区:正荣紫阙台


户型:110㎡. 115㎡. 125㎡. 140㎡ 6686官方版app. 142㎡.



正荣紫阙台,正荣紫阙台户型图,正荣紫阙台户型解析


正荣·紫阙台,位于关山大道与南湖大道两条城市主干道之间,光谷发展主动脉的黄金点上 6686官方版app,超13万方园林,真正住在公园里。


为了给正荣·紫阙台的业主带来更好的生活体验,澳华装饰的设计师全面解析建面110-142㎡的户型方案,从居住者出发 6686官方版app,从场景入手,平衡视觉效果与居住功能,扩展生活秩序。


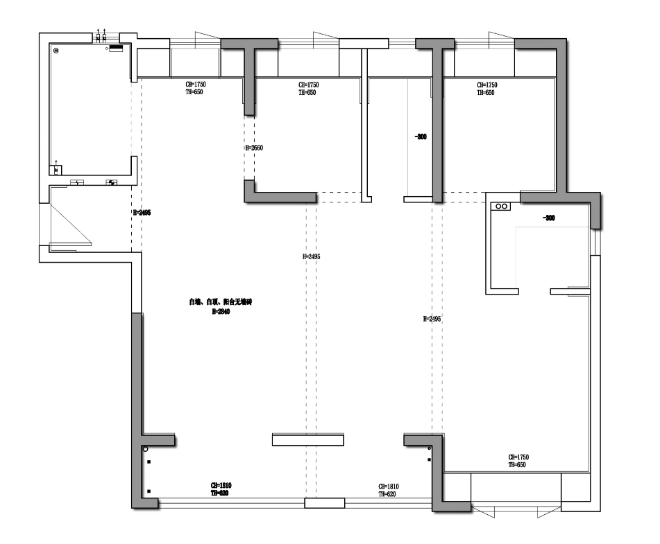
110㎡户型解析


正荣紫阙台,正荣紫阙台户型图,正荣紫阙台户型解析


△原始结构图


户型优点


√    方正空间南北通透


√    三面采光


户型缺点


×    厨房不规则 6686官方版app,需要做优化.


方案


开放式餐厨一体改造


正荣紫阙台,正荣紫阙台户型图,正荣紫阙台户型解析


思路解析


1    重点规划厨房与餐厅,采用开放式厨房设计 6686官方版app,延长厨房操作台面。


2    客餐厅通透布局,全屋空间分布均匀 6686官方版app


效果图展示


正荣紫阙台,正荣紫阙台户型图,正荣紫阙台户型解析


正荣紫阙台,正荣紫阙台户型图,正荣紫阙台户型解析


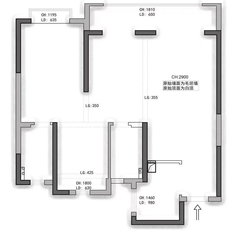
115㎡户型解析


正荣紫阙台,正荣紫阙台户型图,正荣紫阙台户型解析


△原始结构图


户型优点


√    采光通风都很不错


√    户型功能区域划分清晰


√    观景大阳台


户型缺点


×    主卧空间与卫生间门的关系需要优化


方案一


客餐厅一体+舒适套房


正荣紫阙台,正荣紫阙台户型图,正荣紫阙台户型解析


思路解析


1    入户鞋柜设计相较于传统入户鞋柜更加新颖别致,有效避免空间推积和拥堵 6686官方版app


2    厨房空间较小 6686官方版app,将次卧的一部分空间纳入厨房,厨房布局呈L型展开,实用方便。


3    客餐厅开放式的布局 6686官方版app,客厅阳台一体化设计,视野更开阔,采光更好。


4    卧室采用L型衣柜设计,丰富了空间层次,储物面积也扩展不少,有衣帽间做隔断 6686官方版app,主卫门也不对直接对着床,整个睡眠区都保持舒适惬意。


意向图展示


正荣紫阙台,正荣紫阙台户型图,正荣紫阙台户型解析


正荣紫阙台,正荣紫阙台户型图,正荣紫阙台户型解析


正荣紫阙台,正荣紫阙台户型图,正荣紫阙台户型解析


方案二


“去客厅化”设计


正荣紫阙台,正荣紫阙台户型图,正荣紫阙台户型解析


思路解析


1    “去客厅化”设计,打破固定的客厅装修模式,以居住者的生活方式为起点,舒适至上。客厅阳台打通后,摆上休闲沙发或茶桌,增加书柜,打造集茶室,书房一体的休闲阅览室,给家居添加阅读悠闲氛围。


2    扩大厨房空间,让烹饪者有充分的活动空间,U型橱柜也增加了制餐与备餐的功能性。


意向图展示


正荣紫阙台,正荣紫阙台户型图,正荣紫阙台户型解析


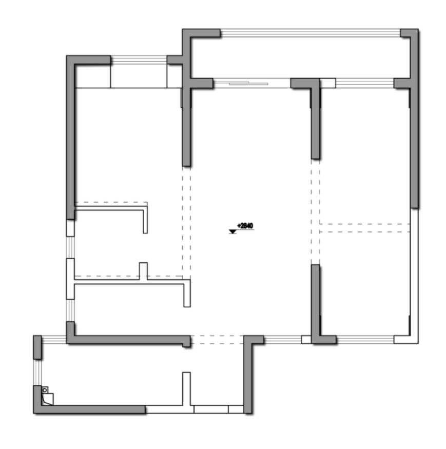
125㎡户型解析


正荣紫阙台,正荣紫阙台户型图,正荣紫阙台户型解析


△原始结构图


户型优点


√    户型比较方正,南北通透,还有一个超大的阳台


√    厨房空间比较大,动静分区明确


√    三房两卫,户型功能区域划分清晰


户型缺点


×    承重墙主要分布在房间以及厨房,限制比较大


×    主卧尺寸不够大


方案一


惬意大阳台+实用餐厅


正荣紫阙台,正荣紫阙台户型图,正荣紫阙台户型解析


思路解析


1    保留大阳台,既可以作为生活晾晒区,也可以作为生活休闲区。


2    L型超长橱柜,增加储物空间,改为双推门可以加大视觉通透性,嵌入式冰箱与餐边柜一体,充分利用空间。


意向图展示


正荣紫阙台,正荣紫阙台户型图,正荣紫阙台户型解析


正荣紫阙台,正荣紫阙台户型图,正荣紫阙台户型解析


正荣紫阙台,正荣紫阙台户型图,正荣紫阙台户型解析


方案二


阳光书房设计,享受阅读时光


正荣紫阙台,正荣紫阙台户型图,正荣紫阙台户型解析


思路解析


1    次卧打通到阳台,作为一个阳光书房的区域。


2    书房做榻榻米,增加储物的空间。


3    主卧L型衣柜,作为一个小的步入式衣帽间。


意向图展示


正荣紫阙台,正荣紫阙台户型图,正荣紫阙台户型解析


正荣紫阙台,正荣紫阙台户型图,正荣紫阙台户型解析


正荣紫阙台,正荣紫阙台户型图,正荣紫阙台户型解析


140㎡户型解析


正荣紫阙台,正荣紫阙台户型图,正荣紫阙台户型解析


△原始结构图


户型优点


√    户型比较方正,南北通透,动静分区明确


√    三房两卫,能够满足一家四口的居住需求


√    承重墙部分集中在卧室和卫生间区域,房间部分空间可以优化


户型缺点


×    厨房空间较小,难以满足当代人对于厨房电器的需求


×    客餐厅宽度尺寸受限


方案


餐厨一体设计+客厅与书房结合


正荣紫阙台,正荣紫阙台户型图,正荣紫阙台户型解析


思路解析


1    餐厨一体设计,增加了橱柜操作台面,半敞开式厨房,更符合现代年轻人的生活习惯。


2    客厅和书房一体,增加了客厅的空间感。


3    阳台融入客厅,让客厅更宽敞,视野更开阔;阳台洗衣烘干一体设计,更符合快节奏的生活。


意向图展示


正荣紫阙台,正荣紫阙台户型图,正荣紫阙台户型解析


正荣紫阙台,正荣紫阙台户型图,正荣紫阙台户型解析



142㎡户型解析


正荣紫阙台,正荣紫阙台户型图,正荣紫阙台户型解析


△原始结构图


户型优点


√    采光通风好,观景大阳台


√    户型功能区域划分清晰,空间动静分区明朗


户型缺点


×    北面房间位置不合适独立运用


×    大框架剪力墙结构固定,只能做小调整


方案一


空间魔法+实用收纳


正荣紫阙台,正荣紫阙台户型图,正荣紫阙台户型解析


思路解析


1    餐边柜做厨房一侧,厨房做梭门隐藏在餐边柜背后,尽可能让餐厅空间变得更大。


2    父母房做背靠背两组柜子,收纳功能增加一倍。做两扇梭门让空间变得更加灵动。


3    主卧室改变原始门洞,让床尾做一排衣柜,比原始的步入式衣帽间更能储存。


意向图展示


正荣紫阙台,正荣紫阙台户型图,正荣紫阙台户型解析


正荣紫阙台,正荣紫阙台户型图,正荣紫阙台户型解析


方案二


实用四房的小资生活


正荣紫阙台,正荣紫阙台户型图,正荣紫阙台户型解析


思路解析


1    客厅电视背景柜做满整面墙体,使空间显得更整体,再用岩板点缀,更有特色。


2    主卧室不动原墙体,做步入式衣帽间,用衣柜遮挡主卫对门的尴尬。


3    主卫可以使用浴缸,让生活变得更小资。


意向图展示


正荣紫阙台,正荣紫阙台户型图,正荣紫阙台户型解析


正荣紫阙台,正荣紫阙台户型图,正荣紫阙台户型解析


正荣紫阙台,正荣紫阙台户型图,正荣紫阙台户型解析


*部分图片来源于网络,侵权联系删除


(6686官方版app)
"6686官方版app" 预约设计师
海量行家, 抢订6686注册设计服务
每日前20名申请用户, 获3D装修设计图
推荐相关案例
6686注册获取同款设计方案
姓名*
楼盘*
电话*
*为了您的权益, 您的隐私将严格保密
预约成功
您已报名成功, 稍后会有客服人员联系您。 您的隐私将被严格保密。
关注二维码了解6686体育装修知识
联系我们
装修咨询电话 : 027-82411111
售后服务电话 : 027-82866788
"6686官方版app" 公司地址 : 6686平台市江岸区澳门路232号金冠大厦
"6686官方版app" 6686登录我们
友情链接 :
    66866686官方版app下载官方版-6686官方版app下载2025最新 页面版权所有 jingyu-design.cn

    算一算,您家装修需要花多少钱?

    知精准报价 避装修深坑

    01/03

    选择您喜欢的风格 (6686官方版app)

    • 现代轻奢

    • 现代美式

    • 北欧

    • 新中式

    • 欧式

    • 其他

    算一算,您家装修要花多少钱?

    知精准报价 避装修深坑

    02/03

    选择房屋面积区间

    • 80-100㎡
    • 100-140㎡
    • 140-200㎡
    • 200-300㎡
    • 300㎡以上

    03/03 (6686官方版app)

    您的户型

    • 两居室

    • 三居室

    • 四居室

    • 五居室

    • 六居室

    算一算,您家装修要花多少钱?

    知精准报价 避装修深坑

    0%

    稍等片刻,您的报价正在生中......

    算一算,您家装修要花多少钱? (6686官方版app)

    知精准报价 避装修深坑

    6686官方版app - 您的完整报价已经生成

    6686官方版app - 报名成功享抢订优惠名额

    每日仅限前10名用户