6686官方版app - 24小时咨询电话
027-82411111
当前位置 : 首页 > 户型解析
户型解析
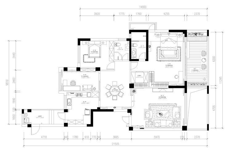
中兴泰富137㎡三居室浪漫美式住宅户型解析
三居室
"6686官方版app" 137m²
浪漫美式

    案例简介:


    本案例的设计侧重考虑空间的性能与装饰效果,业主偏爱明亮清新的氛围,因此设计师在进行空间设计的时候使用了较为清新素雅的配色,而装修风格上则选择了浪漫感十足的美式风,搭配以各类现代时尚元素,营造出一个带有现代气息的美式浪漫别院 6686官方版app,房屋中大量设置了入户式橱柜设计,让整体空间得到更加合理科学的利用,以满足多子家庭的使用需求。


    户型分析:


1.jpg


    这是中兴泰富一套137㎡的三居室住宅,户型结构设计上将客房与主卧,次卧房分开设计,有效保障了主人生活空间的私密性 6686官方版app,而主卧空间与次卧空间的部分过道则巧妙融入到主卧空间,以提升空间的利用率,餐厅区域与厨房区域使用软隔断进行分割,以保障整个空间不至于显得过于闭塞,呆板,客厅区域与餐厅则使用地毯则为软隔断,以整个空间是视觉感官更加开阔。


    客厅:


2.jpg


    大面积的白色搭配上淡蓝色的背景墙,营造出一种静谧柔和的氛围,枫叶造型的景色挂件艺术感十足,让整个客厅区域更显艺术美感 6686官方版app,色彩较为鲜艳的狄然,则让整个会客区域更加的明快光鲜。


    餐厅:


3.jpg


    就餐区域使用了简洁的白色作为主基调色,以从视觉上提升空间的宽敞度,镂空的入户式橱柜设计下半部门被巧妙的设计成迷你沙发椅,上半部分则可以收纳一些基本的就餐用品,有效的提升了空间的利用率 6686官方版app


    书房:


4.jpg


    一个简单的书桌就将客厅区域与书房区域分隔开来,且避免了墙面隔断占用较多的空间,客厅区域的淡蓝色背景墙被“借”入书房区域作为装饰点缀,有效提升了软装设计的利用率与观赏度 6686官方版app


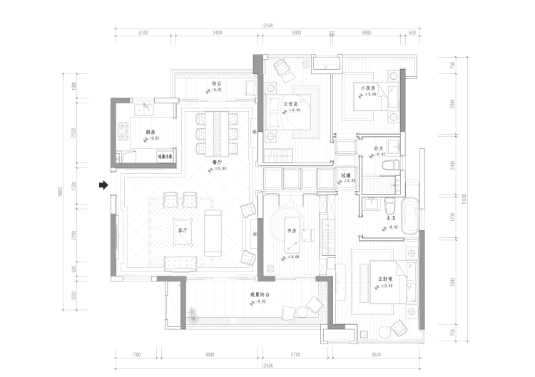
华润悦府210㎡四居室轻奢品质家居户型解析
"6686官方版app" 四居室
210m²
6686官方版app - 轻奢

    案例介绍


    业主对家的定义:家里有两个孩子,一个上四年级 6686官方版app,一个上初一,210㎡四房户型基本够我们使用,主卧的原始面积不够大,虽然自带卫浴间,但居住起来有些不够舒展,希望主卧能有一个更衣室,令空间看上去更开阔,另外,客厅有一些零碎的角落不知道如何调整,希望设计师利用这些角落,尽可能令房间变得更舒展,风格上,我们希望呈现出的是有品质,能凸显生活品味的设计方案。


    户型解析


1.jpg


    这是一套位于华润悦府的210m 6686官方版app,的四房户型,虽设有玄关,但进门能看到客厅,空间私密性不是很好,客厅空间零碎部分较多,功能衔接上不是很舒服,为了提高客厅利用率,玄关处增加了隔断,并将隔断设计为电视墙,提升了客厅的衔接感,零碎角落面积做了分割,以保证客厅空间的完整与舒适。业主提到的衣帽间也做出了独立设计,并与主卧进行衔接,令主卧生活更加舒适开阔。。


    玄关

2.jpg


    入户右边增加了定制玄关柜,中上部分设计为隐性柜面,下部置空并增设了灯带 6686官方版app,便于收纳展示装饰物品,中部增加了墙体隔断,细节处呈现出轻奢质感。


    客厅


3.jpg


    客厅空间以白色和灰色为主,无主灯的空间设计令视觉更为宽敞明亮,为提升空间收纳,左侧背景墙中设计了收纳柜,其中还增置了灯带,搭配灰色沙发 6686官方版app,整个空间更为优雅。


    卧室


4.jpg


    米色与白色护墙板相互碰撞,在灯光的映射下营造出舒适温馨的视觉观感,褐色衣柜立面干净 6686官方版app,并作为半隔断存在,增添了卧室空间的层次感。


橡树湾160㎡四居室欧式古典住宅户型解析
"6686官方版app" 四居室
160m²
欧式风

    案例介绍


    业主对家的定义:作为多子家庭,孩子的生活品质是自己极为关注的部分,在风格的选择上,奢华而不奢靡的欧式风格能为孩子带来6686体育优质的视觉感受,而欧式家具的细腻质感能带来品质的生活体验,符合家庭对家的期待。业主希望孩子在空间中有用6686体育活动面积,精致布置之余不失童趣与温馨感。


    户型解析


1.jpg



    这是橡树湾中一套160㎡的四居室,户型面积中等,采光条件好,但内部分区较多,休憩区分区杂乱,需要设计出有逻辑的行动走线,这样整体空间才具有设计感和时尚感。将餐厅与客厅中的非承重墙拆除,将两个功能区合二为一,扩大了公共区域面积,使日常走动更为方便,以过道为中心,南北各分布两个休憩区,日常生活变得更为舒适。


    玄关


2.jpg


3.jpg


    玄关为进门见厅的格局,过道并不长,墙面装饰简单。


    客厅


4.jpg


5.jpg


    餐厅与客厅一体化布局,白色基调下给人一种雍容典雅的视觉观感,欧式皮质沙发自带质感与颜值,搭配方形欧式茶几和深灰色地毯,演绎出优雅、上档次的欧式风尚,在整个空间中,家具多以兽腿造型呈现,符合欧式风格特色。


    卧室


6.jpg


    卧室空间邂逅浪漫紫色,时尚高雅的软包设计不仅增添了隔音效果,也散发出优雅古典的欧式气息,电视机的融入凸显出主人对高品质生活的追求,传递出舒适智能的欧式生活品质。


    其他


QQ截图20220127173636.jpg


    儿童房以米色调为背景,搭配白色欧式双人床,传递出静谧柔和的家居氛围,卡通元素的融入令空间洋溢着青春鲜活的气息。


南湖半岛400㎡复式轻奢别墅户型解析
别墅
400m²
"6686官方版app" 轻奢风

    案例简介:


    生活的美在于拥有一个心灵的栖息之所,而家正承担着这样的作用。对于家庭成员较多的我们来说,在对这栋别墅进行设计构思的时候,首先考虑的就是满足各位家庭成员的审美与使用需求。而在装修风格的选择上,我们更青睐现代感十足的轻奢风,希望能够通过合理的利用空间划分与元素的合理利用,打造出一所格调与时尚兼具的别墅空间。


    户型解析:


1.jpg


    南湖半岛的这套400㎡复式别墅,虽然面积相对于大多数房屋而言为大户型、大空间,但是在大多数的别墅中,这栋别墅其实并不算大。再者该空间的犄角相对比较多,如何将这些犄角合理利用,甚至将犄角打造成为空间特色就成为了该别墅的设计难题。为了让整个别墅空间得到合理利用,且更彰显华贵之美,空间使用了较多的大理石等质感较强的材质,而空间划分上则多以通透的软隔断为主。


    客厅:


2.jpg


    大面积的白色搭配上原木色,强调简约格调之美;大面积的暗纹大理石背景墙低调而又不失典雅气息,搭配上柔软的灰色沙发,轻奢之感呼之欲出。二层客厅处则使用了黑色围栏,将一层空间与二层空间明显隔断开来,而又不显得突兀。


    餐厅:


3.jpg


    深灰色的暗纹大理石地板搭配上设计感十足的几何灯饰,现代时尚气息显露无疑。大面积的落地窗为就餐区域增添了明亮大气美。灰色与亮橘色搭配的餐椅,则为整个空间注入了一抹清新的律动美。


    卧室:





    卧室区域使用了简单的淡色系色彩装饰空间,灰色的沙发、床头背景墙搭配上藕粉色的窗帘,强调一种柔和温馨感;黑色的台灯搭配上艺术感十足的挂画,则为空间增添了一抹现代时尚气息。


东湖天下180㎡四居室美式大宅户型解析
686官方版app - 大平层 (6686官方版app)
180m²
美式

     案例简介:


    该户型空间以简约的暖黄色、白色为主色调,局部则贯穿以蓝色,整体清新典雅浪漫而又不失温馨美。质感温润的木质材料与坚硬水泥墙面的碰撞,让空间多一抹温暖如玉的气质美与格调感。半透明的玻璃门设计,让各个可能空间层次结构分明的同时,不会显得过于生硬,让空间更具通透柔韵味美。


    户型分析:

1.jpg


    这是一套位于东湖天下的180㎡四居室房屋,空间面积做大且户型结构相对没有太多瑕疵,因此在设计时无需在户型空间的改造上做过多“纠缠”,以业主及其家人的使用需求为主即可。以不同材质的地面材料为空间隔断,能够让整个房屋更显紧凑合理。为让各个功能空间更具衔接感与一直性,不同的功能空间使用了相似的元素或者色彩进行装饰,以从视觉上保障整个房屋空间的和谐美。


    客厅:


2.jpg


    客厅区域使用白色与原木色作为主基调色,白色的墙面搭配上带有自然纹理的木质地板,一种自然清新之美呼之欲出。蓝色的窗帘则为空间增添了一抹活泼之美,让整个客厅空间看起来不会过于呆板无趣,增添了浪漫韵味。


    餐厅:


3.jpg


    餐厅区域同样适用了白色与木色作为主基调色,以保障就餐区域与客厅区域的一致性与和谐美。带有淡蓝色印花布艺处理的餐椅让就餐区域多了一抹田园浪漫气息。


百瑞景180㎡四居室欧式风住宅户型解析
大平层
6686官方版app - 180m²
欧式风

  案例简介:


  对于多子家庭来说,如何在满足各个家庭成员起居使用需求,及做到各个空间相对独立又共享就成为了设计难题。180㎡的房屋虽然看似空间面积足够大,但是对于孩子较多的家庭而言,其实设计难度不小,再者该房屋户型零碎角落相对比较多,如何将零碎的空间进行合理的规划设计可以说是空间最大的设计难点。


  户型解析:



1.jpg



1.jpg


  这是一套位于百瑞景的180㎡大户四居室房屋,房屋面积虽然不小,但是由于家庭成员较多,因此在进行规划设计时就需要充分考虑起居使用需求,在满足各家庭成员使用需求的前提下再追求美观度。为了提升空间的利用率,厨房区域、就餐区域、客厅设置于同一直线上,且餐厅与客厅没有做明显的硬隔断,让空间尽显自由舒展格调。


  玄关:


2.jpg


  由于房屋需满足多位家庭成员的起居需求,因此玄关面积可谓是“抓襟见肘”。一个拐角搭配上艺术范十足的挂画,即可保障空间的私密感与结构感,还不会占用较多的空间面积,一举两得。


  客厅:


3.jpg


  黑色虽然是相对比较常用且百搭的色彩,但是大面积的黑色却容易造成空间的压抑。而该空间则是巧妙的利用白色纹理来“化解”黑色所带来的压抑感,通过大面积的黑色、沙发来提升空间个性感的同时,利用白色镶边处理提升了空间的精致度与清新感。


  餐厅:


4.jpg

  餐厅区域沿用了与客厅空间相同的配色与用材,不同的是设计感十足的吊灯与清新感十足的花鸟挂画,让就餐区域多了一抹温馨靓丽气息。


  卧室:


5.jpg


  卧室作为休憩的功能空间,该区域的配色不宜过于压抑沉重。大面积的亮白色搭配上淡蓝色床具,温馨静谧之感呼之欲出。


算一算我家装修需要多少钱
    • 张女士
      132****178
      200m²
    • 成先生
      134****4856
      83m²
    • 董先生
      137****2569
      95m²
    • 成先生
      133****7485
      130m²
    • 李先生
      150****4475
      220m²
    • 张先生
      139****5050
      187m²
    • 王女士
      178****4563
      168m²
    预约设计师 (6686官方版app)
    姓名*
    楼盘*
    电话*
    *为了您的权益, 您的隐私将严格保密
    6686官方版app - 预约成功
    您已报名成功, 稍后会有客服人员联系您。 您的隐私将被严格保密。
    关注二维码了解6686体育装修知识
    "6686官方版app" 6686登录我们
    澳华历程
    官方微博
    联系我们 (6686官方版app)
    装修咨询电话 : 027-82411111 (6686官方版app)
    "6686官方版app" 售后服务电话 : 027-82866788
    "6686官方版app" 公司地址 : 6686平台市江岸区澳门路232号金冠大厦
    6686官方版app - 6686登录我们
    友情链接 :
      66866686官方版app下载官方版-6686官方版app下载2025最新 页面版权所有 jingyu-design.cn

      "6686官方版app" 算一算,您家装修需要花多少钱?

      知精准报价 避装修深坑

      01/03

      选择您喜欢的风格

      • 现代轻奢

      • 现代美式

      • 北欧

      • 新中式

      • 欧式

      • 其他

      686官方版app - 算一算,您家装修要花多少钱?

      知精准报价 避装修深坑 (6686官方版app)

      "6686官方版app" 02/03

      选择房屋面积区间

      • 80-100㎡
      • 100-140㎡
      • 140-200㎡
      • 200-300㎡
      • 300㎡以上

      03/03

      您的户型

      • 两居室

      • 三居室

      • 四居室

      • 五居室

      • 六居室

      6686官方版app - 算一算,您家装修要花多少钱?

      知精准报价 避装修深坑

      0%

      稍等片刻,您的报价正在生中......

      6686官方版app - 算一算,您家装修要花多少钱?

      知精准报价 避装修深坑

      您的完整报价已经生成

      6686官方版app - 报名成功享抢订优惠名额

      每日仅限前10名用户