24小时咨询电话 (6686官方版app)
027-82411111
当前位置 : 首页 > 户型解析 > 华润悦府210㎡四居室轻奢品质家居户型解析
6686官方版app - 华润悦府210㎡四居室轻奢品质家居户型解析
"6686官方版app" 发布时间 : 2022-02-28 09:38
"6686官方版app" 查看数 :

    案例介绍


    业主对家的定义:家里有两个孩子,一个上四年级,一个上初一,210㎡四房户型基本够我们使用,主卧的原始面积不够大,虽然自带卫浴间,但居住起来有些不够舒展,希望主卧能有一个更衣室,令空间看上去更开阔,另外 6686官方版app,客厅有一些零碎的角落不知道如何调整,希望设计师利用这些角落,尽可能令房间变得更舒展,风格上,我们希望呈现出的是有品质,能凸显生活品味的设计方案。


    户型解析


1.jpg


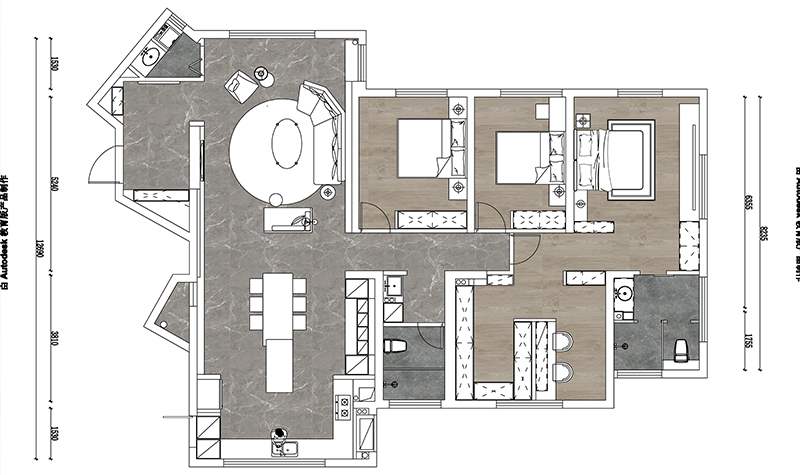
    这是一套位于华润悦府的210m,的四房户型,虽设有玄关,但进门能看到客厅,空间私密性不是很好,客厅空间零碎部分较多,功能衔接上不是很舒服,为了提高客厅利用率,玄关处增加了隔断,并将隔断设计为电视墙,提升了客厅的衔接感,零碎角落面积做了分割,以保证客厅空间的完整与舒适。业主提到的衣帽间也做出了独立设计,并与主卧进行衔接,令主卧生活更加舒适开阔。 6686官方版app


    玄关

2.jpg


    入户右边增加了定制玄关柜,中上部分设计为隐性柜面,下部置空并增设了灯带 6686官方版app,便于收纳展示装饰物品,中部增加了墙体隔断,细节处呈现出轻奢质感。


    客厅


3.jpg


    客厅空间以白色和灰色为主,无主灯的空间设计令视觉更为宽敞明亮,为提升空间收纳,左侧背景墙中设计了收纳柜,其中还增置了灯带,搭配灰色沙发 6686官方版app,整个空间更为优雅。


    卧室


4.jpg


    米色与白色护墙板相互碰撞 6686官方版app,在灯光的映射下营造出舒适温馨的视觉观感,褐色衣柜立面干净,并作为半隔断存在,增添了卧室空间的层次感。


6686官方版app - 预约设计师
海量行家, 抢订6686注册设计服务
每日前20名申请用户, 获3D装修设计图
推荐相关案例
"6686官方版app" 6686注册获取同款设计方案
姓名*
楼盘*
电话*
*为了您的权益, 您的隐私将严格保密
6686官方版app - 预约成功
您已报名成功, 稍后会有客服人员联系您。 您的隐私将被严格保密。
关注二维码了解6686体育装修知识
联系我们 (6686官方版app)
装修咨询电话 : 027-82411111
售后服务电话 : 027-82866788
公司地址 : 6686平台市江岸区澳门路232号金冠大厦
6686登录我们 (6686官方版app)
友情链接 :
    66866686官方版app下载官方版-6686官方版app下载2025最新 页面版权所有 jingyu-design.cn

    "6686官方版app" 686官方版app - 算一算,您家装修需要花多少钱?

    知精准报价 避装修深坑

    01/03

    选择您喜欢的风格

    • 现代轻奢

    • 现代美式

    • 北欧

    • 新中式

    • 欧式

    • 其他

    算一算,您家装修要花多少钱?

    知精准报价 避装修深坑

    686官方版app - 02/03

    选择房屋面积区间 (6686官方版app)

    • 80-100㎡
    • 100-140㎡
    • 140-200㎡
    • 200-300㎡
    • 300㎡以上

    "6686官方版app" 03/03

    您的户型

    • 两居室

    • 三居室

    • 四居室

    • 五居室

    • 六居室

    算一算,您家装修要花多少钱?

    知精准报价 避装修深坑

    0%

    稍等片刻,您的报价正在生中......

    算一算,您家装修要花多少钱?

    知精准报价 避装修深坑

    您的完整报价已经生成

    报名成功享抢订优惠名额 (6686官方版app)

    每日仅限前10名用户