24小时咨询电话
027-82411111
当前位置 : 首页 > 户型解析 > 橡树湾160㎡四居室欧式古典住宅户型解析
橡树湾160㎡四居室欧式古典住宅户型解析 (6686官方版app)
发布时间 : 2022-02-28 09:28 (6686官方版app)
查看数 : (6686官方版app)

    案例介绍


    业主对家的定义:作为多子家庭,孩子的生活品质是自己极为关注的部分,在风格的选择上,奢华而不奢靡的欧式风格能为孩子带来6686体育优质的视觉感受,而欧式家具的细腻质感能带来品质的生活体验 6686官方版app,符合家庭对家的期待,业主希望孩子在空间中有用6686体育活动面积,精致布置之余不失童趣与温馨感。


    户型解析


1.jpg



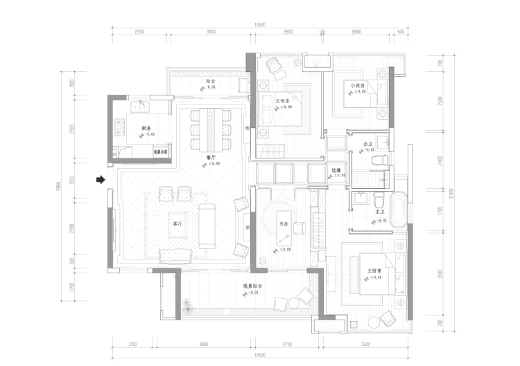
    这是橡树湾中一套160㎡的四居室,户型面积中等,采光条件好,但内部分区较多,休憩区分区杂乱,需要设计出有逻辑的行动走线,这样整体空间才具有设计感和时尚感 6686官方版app,将餐厅与客厅中的非承重墙拆除,将两个功能区合二为一,扩大了公共区域面积,使日常走动更为方便,以过道为中心,南北各分布两个休憩区,日常生活变得更为舒适。


    玄关


2.jpg


3.jpg


    玄关为进门见厅的格局,过道并不长 6686官方版app,墙面装饰简单。


    客厅


4.jpg


5.jpg


    餐厅与客厅一体化布局,白色基调下给人一种雍容典雅的视觉观感,欧式皮质沙发自带质感与颜值,搭配方形欧式茶几和深灰色地毯,演绎出优雅,上档次的欧式风尚,在整个空间中 6686官方版app,家具多以兽腿造型呈现,符合欧式风格特色。


    卧室


6.jpg


    卧室空间邂逅浪漫紫色,时尚高雅的软包设计不仅增添了隔音效果 6686官方版app,也散发出优雅古典的欧式气息,电视机的融入凸显出主人对高品质生活的追求,传递出舒适智能的欧式生活品质。


    其他


QQ截图20220127173636.jpg


    儿童房以米色调为背景 6686官方版app,搭配白色欧式双人床,传递出静谧柔和的家居氛围,卡通元素的融入令空间洋溢着青春鲜活的气息。


"6686官方版app" 预约设计师
海量行家, 抢订6686注册设计服务
每日前20名申请用户, 获3D装修设计图
推荐相关案例
6686官方版app - 6686注册获取同款设计方案
姓名*
楼盘*
电话*
*为了您的权益, 您的隐私将严格保密
预约成功
您已报名成功, 稍后会有客服人员联系您。 您的隐私将被严格保密。
关注二维码了解6686体育装修知识
"6686官方版app" 联系我们
装修咨询电话 : 027-82411111 (6686官方版app)
"6686官方版app" 售后服务电话 : 027-82866788
公司地址 : 6686平台市江岸区澳门路232号金冠大厦 (6686官方版app)
6686官方版app - 6686登录我们
友情链接 :
    66866686官方版app下载官方版-6686官方版app下载2025最新 页面版权所有 jingyu-design.cn

    "6686官方版app" 算一算,您家装修需要花多少钱?

    知精准报价 避装修深坑

    01/03

    选择您喜欢的风格

    • 现代轻奢

    • 现代美式

    • 北欧

    • 新中式

    • 欧式

    • 其他

    "6686官方版app" 算一算,您家装修要花多少钱?

    知精准报价 避装修深坑

    "6686官方版app" 02/03

    选择房屋面积区间

    • 80-100㎡
    • 100-140㎡
    • 140-200㎡
    • 200-300㎡
    • 300㎡以上

    "6686官方版app" 03/03

    您的户型

    • 两居室

    • 三居室

    • 四居室

    • 五居室

    • 六居室

    "6686官方版app" 686官方版app - 算一算,您家装修要花多少钱?

    知精准报价 避装修深坑

    0%

    稍等片刻,您的报价正在生中......

    算一算,您家装修要花多少钱?

    知精准报价 避装修深坑

    您的完整报价已经生成

    报名成功享抢订优惠名额

    每日仅限前10名用户