"6686官方版app" 24小时咨询电话
027-82411111
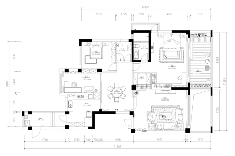
当前位置 : 首页 > 户型解析 > 东湖天下180㎡四居室美式大宅户型解析
东湖天下180㎡四居室美式大宅户型解析
发布时间 : 2022-02-28 09:16 (6686官方版app)
查看数 :

     案例简介:


    该户型空间以简约的暖黄色,白色为主色调,局部则贯穿以蓝色,整体清新典雅浪漫而又不失温馨美,质感温润的木质材料与坚硬水泥墙面的碰撞,让空间多一抹温暖如玉的气质美与格调感,半透明的玻璃门设计,让各个可能空间层次结构分明的同时 6686官方版app,不会显得过于生硬,让空间更具通透柔韵味美。


    户型分析:

1.jpg


    这是一套位于东湖天下的180㎡四居室房屋,空间面积做大且户型结构相对没有太多瑕疵,因此在设计时无需在户型空间的改造上做过多“纠缠”,以业主及其家人的使用需求为主即可,以不同材质的地面材料为空间隔断,能够让整个房屋更显紧凑合理 6686官方版app,为让各个功能空间更具衔接感与一直性,不同的功能空间使用了相似的元素或者色彩进行装饰,以从视觉上保障整个房屋空间的和谐美。


    客厅:


2.jpg


    客厅区域使用白色与原木色作为主基调色,白色的墙面搭配上带有自然纹理的木质地板,一种自然清新之美呼之欲出,蓝色的窗帘则为空间增添了一抹活泼之美 6686官方版app,让整个客厅空间看起来不会过于呆板无趣,增添了浪漫韵味。


    餐厅:


3.jpg


    餐厅区域同样适用了白色与木色作为主基调色 6686官方版app,以保障就餐区域与客厅区域的一致性与和谐美,带有淡蓝色印花布艺处理的餐椅让就餐区域多了一抹田园浪漫气息。


6686官方版app - 预约设计师
海量行家, 抢订6686注册设计服务
每日前20名申请用户, 获3D装修设计图
推荐相关案例
6686注册获取同款设计方案
姓名*
楼盘*
电话*
*为了您的权益, 您的隐私将严格保密
6686官方版app - 预约成功
您已报名成功, 稍后会有客服人员联系您。 您的隐私将被严格保密。
关注二维码了解6686体育装修知识
"6686官方版app" 6686登录我们
"6686官方版app" 澳华历程
官方微博
"6686官方版app" 联系我们
"6686官方版app" 装修咨询电话 : 027-82411111
"6686官方版app" 售后服务电话 : 027-82866788
公司地址 : 6686平台市江岸区澳门路232号金冠大厦 (6686官方版app)
6686登录我们
友情链接 :
    66866686官方版app下载官方版-6686官方版app下载2025最新 页面版权所有 jingyu-design.cn

    算一算,您家装修需要花多少钱?

    知精准报价 避装修深坑

    "6686官方版app" 686官方版app - 01/03

    选择您喜欢的风格

    • 现代轻奢

    • 现代美式

    • 北欧

    • 新中式

    • 欧式

    • 其他

    算一算,您家装修要花多少钱?

    知精准报价 避装修深坑

    02/03

    选择房屋面积区间

    • 80-100㎡
    • 100-140㎡
    • 140-200㎡
    • 200-300㎡
    • 300㎡以上

    03/03

    您的户型

    • 两居室

    • 三居室

    • 四居室

    • 五居室

    • 六居室

    6686官方版app - 算一算,您家装修要花多少钱?

    知精准报价 避装修深坑

    0%

    稍等片刻,您的报价正在生中......

    "6686官方版app" 算一算,您家装修要花多少钱?

    知精准报价 避装修深坑

    您的完整报价已经生成

    报名成功享抢订优惠名额

    每日仅限前10名用户