24小时咨询电话
027-82411111
当前位置 : 首页 > 6686官网网页版 > 韩雯雯
找TA设计
做事认真
DESIGNER
686官方版app - 韩雯雯 主任设计师
从业时间 : 2005 "6686官方版app" 作品数量 :13套
司 : 华中超级旗舰店
业主评价 :
    • 满足功能需求
    • 装修有质感
    • 设计非常满意
    • 考虑全面
    • 服务到位
    • 沟通轻松
    现代简约,中古风,意式风,奶油风,北欧
    • 个人简介
    • 设计理念
    • 经典楼盘

    • 中国装饰协会高级会员

      中国装饰协会住宅装饰装修行业资深设计师

      6686平台建筑装饰协会住宅装饰装修行业优秀设计师


      2012年度室内设计大赛“亿堂杯”设计师银奖

      2015年度筑巢杯全国优秀作品奖

      2018年度楚才十佳设计师奖

      2020年度红鼎奖优秀作品

      2023年度中国室内设计年度评选设计优秀奖


    • 设计没有风格,设计是对生活的一种诠释 6686官方版app,一切以人为本,一个好的设计一定是关注人,关注空间本质,关注细节的,认真倾听业主的生活习惯和对家的需求,定制最适合的居家空间。

    • 广电光谷家,华侨城欢乐天际 6686官方版app,百瑞景,华润琨瑜府,华润昆仑御,中建御景新城,融侨滨江天域,招商汉口1872.

    相关案例
    户型解析
    在施工地
    其他案例推荐
    (6686官方版app)
    6686官方版app - 相关案例
    6686官方版app - 户型解析
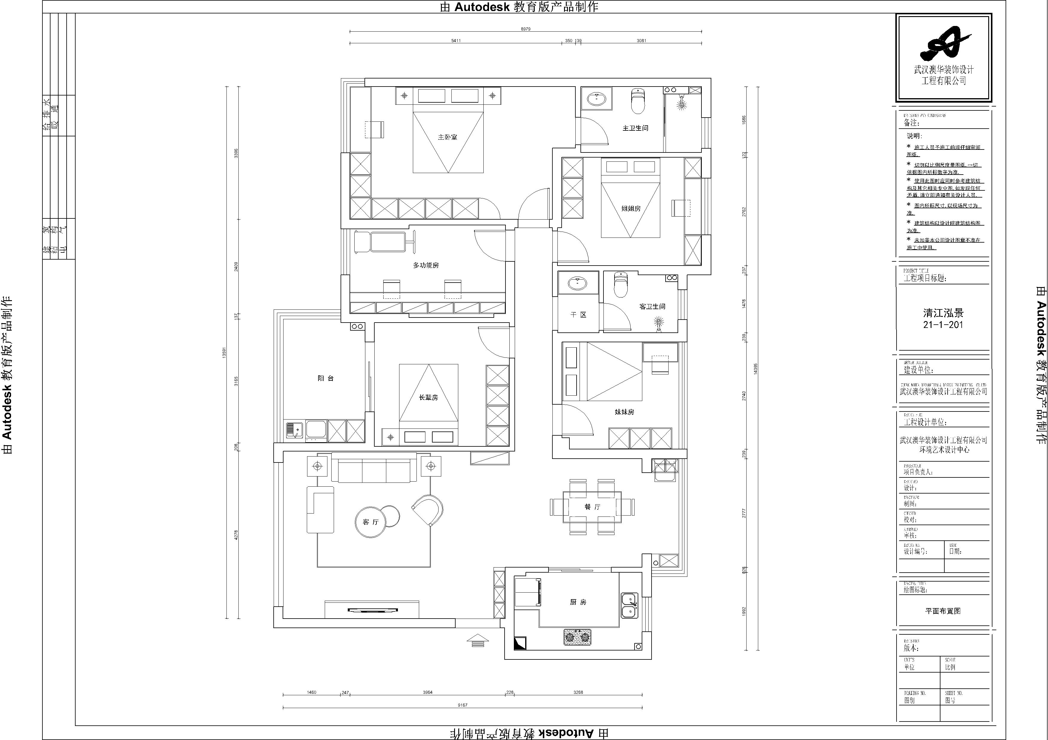
    清江鸿景138㎡五居室现代简约豪宅户型解析
    686官方版app - 大平层
    138m²
    现代简约

        案例简介:作为多家庭成员,本案例的业主希望设计师在进行规划设计的时候能够考虑到不同家庭成员的生活习惯与审美,因此设计师在进行空间设计之前与业主及家人进行了一定的交流,在了解各位家庭成员的需求后对不同的功能空间进行选择性的装饰设计,而整体则选用符合大众审美的现代简约风进行软装,以兼顾不同年龄段家庭成员的审美 6686官方版app


        户型解析:



        位于清江鸿景的这套五居室住宅的占地面积约为138㎡,原有的房屋户型结构存在着较多的细小角落,有的过道过于狭窄,对日常起居生活会造成一定不便利影响,因此设计师在进行规划设计的时候,将户型结构进行了一定的修改,将部分墙体去除,以提升整个空间的宽敞度,而为满足不同家庭成员使用需求,则有针对性的对不同空间进行装饰,强调个性感与舒适感 6686官方版app


        客厅:




        客厅整体用色素雅洁净 6686官方版app,强调柔和温馨感,大面积的落地窗则确保阳光能够更好的进入会客区域,提升生活品质。


        主卧室:


    10主卧室.jpg

        白色墙面搭配上简单挂画,简约而又不过于单调,蓝色的窗帘为客厅同款,有效保证了各个空间的一致性 6686官方版app


        长辈房:


    11长辈房.jpg

        由于业主家中老人偏爱寂静的环境,因此老年人选择了以黑白的经典搭配,点缀以清新山水画,营造温馨静谧感 6686官方版app


        儿童房:



     

       儿童房的设计则从孩子的审美考虑出发,选择了相对比较柔和明快的色彩进行装饰,搭配以童真挂画,甜美而又温馨 6686官方版app


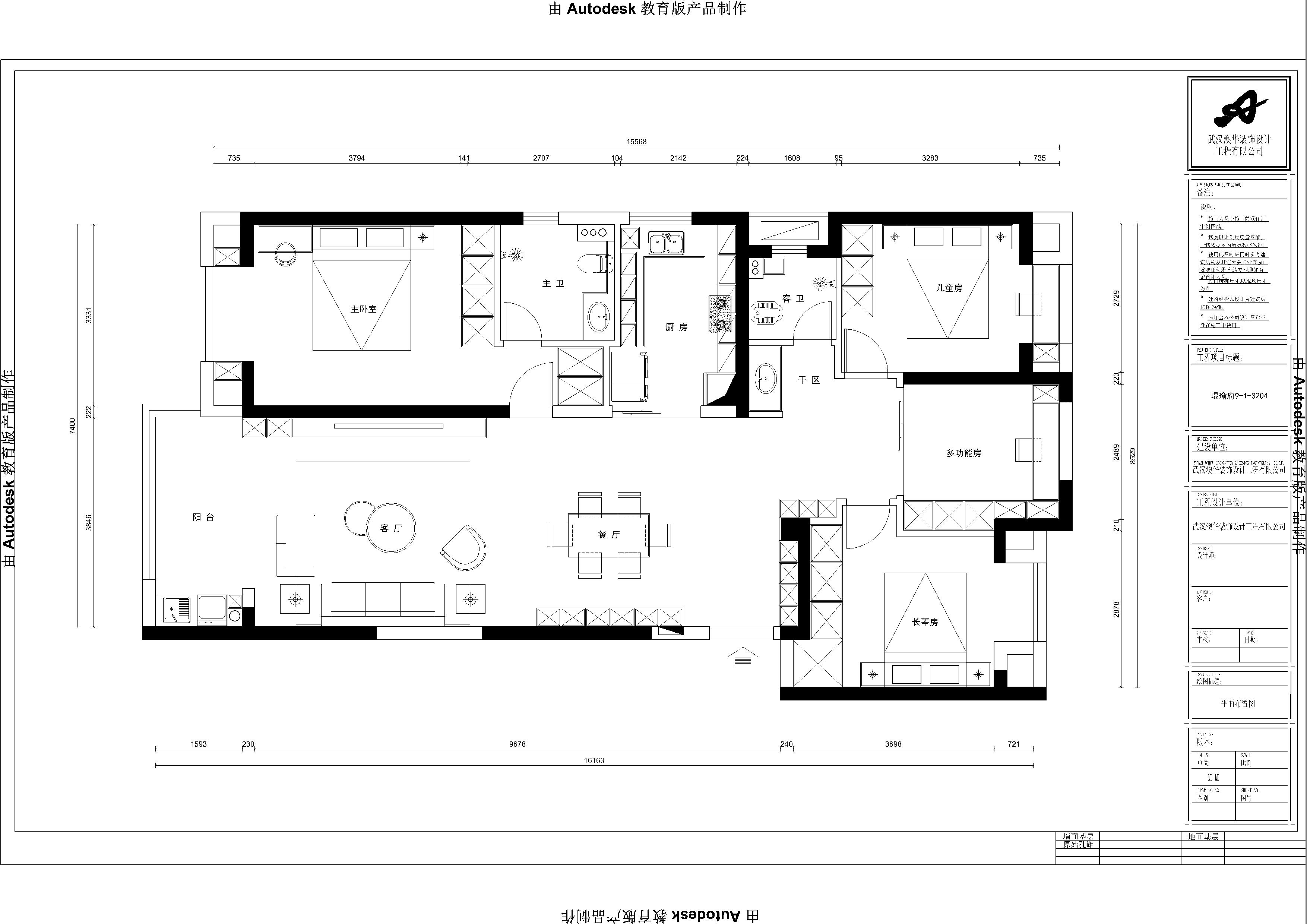
    琨瑜府158㎡四居室轻奢住宅户型解析
    四居室 (6686官方版app)
    158m²
    轻奢风

        案例简介:本案例的家庭为幸福的五口之家,除了业主夫妻二人外还有业主的父母与孩子,因此业主希望设计师能够根据不同家庭成员的需求对空间进行合理的规划与设计 6686官方版app,以提升起居幸福感,而在与所有家庭成员进行一定交流沟通后,设计师折中选择了认可度比较高的现代轻奢风作为空间主装修基调,而色彩的选择上则以简洁素雅为主,这样相对比较耐看且易于打扫。


        户型解析:




        这套位于琨瑜府的四居室面积誉为158㎡ 6686官方版app,整体的户型结构相对比较平整合理,且不存在各种犄角区域,因此设计师在进行空间规划时沿用了原来的空间格局,同时借助各种不同的隔断进行空间划分,以提升整个家居空间的丰富感,而针对不同家庭成员的生活习惯与审美,不同卧室空间则有针对性的进行了个性化装饰。


        客厅:




        嵌入式的照明灯具既可以满足日常使用需求,又易于打理。圆形大理石茶几简约清新而又不失高级艺术感。


        长辈房:


    14长辈房.jpg

        灰色墙面搭配上深灰色床体,简约而又舒适,很好满足老年群体审美需求,且能够营造一个静谧的氛围,有助于提升睡眠质量。


        主卧


    12主卧室.jpg

        墙面借助木材与水泥材质两种不同的材料进行空间装饰,简约而又赋予空间结构变化美。


        儿童房:


    13儿童房.jpg


        大面积的灰色搭配上小区域的原木色,简约清新而又耐看。一体式收纳柜既可以满足物件归置需求,又能满足孩子学习使用需求。


    岱家山庄78㎡二居室现代风个性住宅户型解析
    二居室
    "6686官方版app" 78m²
    现代风

        案例简介:本房屋的业主喜欢简洁实用的装修风格,不喜欢过度装修。再者由于装修预算有限,因此业主希望设计师能够尽可能的使用一些实用性元素进行空间设计。于是设计师利用最简约的元素与色彩进行空间的装饰点缀,在简单而又不失质感的设计中帮助业主寻得适合生活的温度平衡,提升家居生活品质。


        户型解析:






        岱家山庄这套78㎡的二居室房屋原有结构就已经进行了一定的功能分区,为了帮助业主节约装修花销,设计师在原有的户型结构基础上进行再设计,同时将狭小的过道进行一定的色彩点缀,以提升空间的宽敞度。整体装修则选用简约感十足而又不失时尚氛围的现代风进行装饰,以满足业主审美需求。


        过道:


    6过道.jpg

        过道增加无灯具的采光设计,在增强采光的同时提升空间明亮度与视觉宽敞度。


        客厅:




        由于客厅区域宽度不够,因此设计师选用了相对比较素雅的色彩进行客厅装饰,沙发则选用了带有丝绒材质的长条形沙发,优雅耐看的同时从视觉上拉伸客厅宽度。


        餐厅:


    1餐厅.jpg

        就餐区域设置在拐角处,同时借助简单的餐桌椅与吊灯完成软装,强调实用性。


        卧室:


    7主卧.jpg


        藕粉色墙面搭配上白色简洁的橱柜,优雅又耐看。小清新感十足的植物挂画则增添了空间在自然风情。


    6686官方版app - 在施工地
    • 开工
    • 前期
    • 中期
    • 后期
    • 竣工
    "6686官方版app" 预约设计师
    海量行家, 抢订6686注册设计服务
    每日前20名申请用户, 获3D装修设计图
    6686官方版app - 预约设计师
    姓名*
    楼盘*
    电话*
    *为了您的权益, 您的隐私将严格保密
    推荐相关案例
    6686注册获取同款设计方案
    姓名*
    楼盘*
    电话*
    *为了您的权益, 您的隐私将严格保密
    预约成功
    您已报名成功, 稍后会有客服人员联系您。 您的隐私将被严格保密。
    关注二维码了解6686体育装修知识
    6686官方版app - 客户服务
    在线预约
    滴滴专车
    售后服务
    联系我们
    "6686官方版app" 装修咨询电话 : 027-82411111
    售后服务电话 : 686官方版app - 027-82866788
    "6686官方版app" 公司地址 : 6686平台市江岸区澳门路232号金冠大厦
    6686登录我们
    "6686官方版app" 友情链接 :
      66866686官方版app下载官方版-6686官方版app下载2025最新 页面版权所有 jingyu-design.cn

      算一算,您家装修需要花多少钱?

      知精准报价 避装修深坑

      "6686官方版app" 01/03

      选择您喜欢的风格

      • 现代轻奢

      • 现代美式

      • 北欧

      • 新中式

      • 欧式

      • 其他

      算一算,您家装修要花多少钱?

      知精准报价 避装修深坑

      "6686官方版app" 02/03

      选择房屋面积区间

      • 80-100㎡
      • 100-140㎡
      • 140-200㎡
      • 200-300㎡
      • 300㎡以上

      03/03

      您的户型

      • 两居室

      • 三居室

      • 四居室

      • 五居室

      • 六居室

      "6686官方版app" 算一算,您家装修要花多少钱?

      知精准报价 避装修深坑

      0%

      稍等片刻,您的报价正在生中......

      686官方版app - 算一算,您家装修要花多少钱?

      知精准报价 避装修深坑

      您的完整报价已经生成

      报名成功享抢订优惠名额

      每日仅限前10名用户