24小时咨询电话
027-82411111
当前位置 : 首页 > 户型解析 > 清江鸿景138㎡五居室现代简约豪宅户型解析
清江鸿景138㎡五居室现代简约豪宅户型解析
发布时间 : 2022-03-08 10:26
查看数 :

    案例简介:作为多家庭成员,本案例的业主希望设计师在进行规划设计的时候能够考虑到不同家庭成员的生活习惯与审美,因此设计师在进行空间设计之前与业主及家人进行了一定的交流,在了解各位家庭成员的需求后对不同的功能空间进行选择性的装饰设计,而整体则选用符合大众审美的现代简约风进行软装,以兼顾不同年龄段家庭成员的审美 6686官方版app


    户型解析:



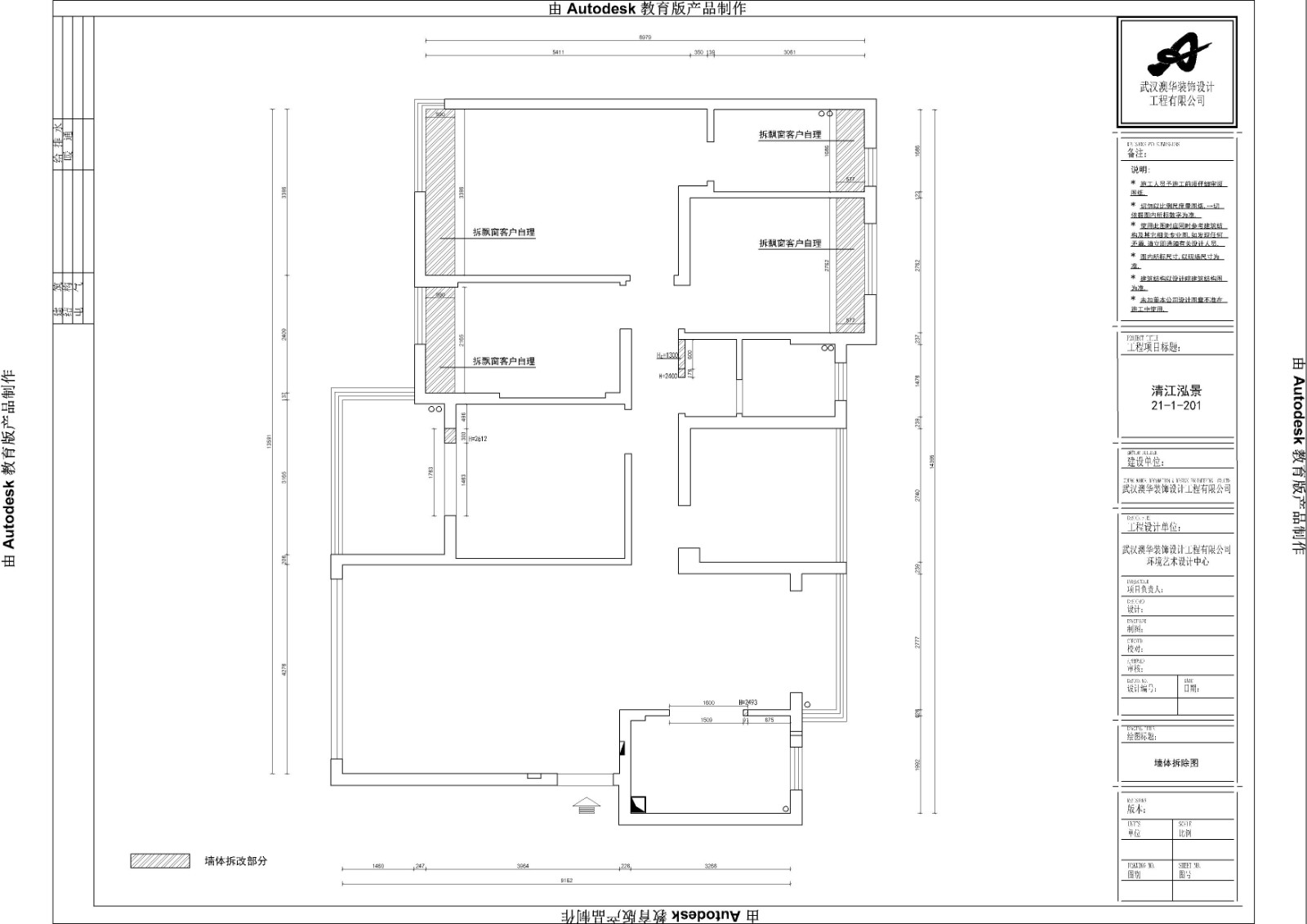
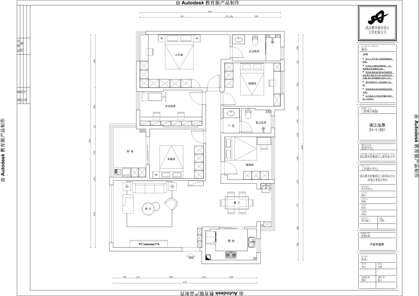
    位于清江鸿景的这套五居室住宅的占地面积约为138㎡,原有的房屋户型结构存在着较多的细小角落,有的过道过于狭窄,对日常起居生活会造成一定不便利影响,因此设计师在进行规划设计的时候,将户型结构进行了一定的修改,将部分墙体去除,以提升整个空间的宽敞度,而为满足不同家庭成员使用需求 6686官方版app,则有针对性的对不同空间进行装饰,强调个性感与舒适感。


    客厅:




    客厅整体用色素雅洁净,强调柔和温馨感,大面积的落地窗则确保阳光能够更好的进入会客区域,提升生活品质 6686官方版app


    主卧室:


10主卧室.jpg

    白色墙面搭配上简单挂画,简约而又不过于单调 6686官方版app,蓝色的窗帘为客厅同款,有效保证了各个空间的一致性。


    长辈房:


11长辈房.jpg

    由于业主家中老人偏爱寂静的环境,因此老年人选择了以黑白的经典搭配 6686官方版app,点缀以清新山水画,营造温馨静谧感。


    儿童房:



 

   儿童房的设计则从孩子的审美考虑出发,选择了相对比较柔和明快的色彩进行装饰,搭配以童真挂画 6686官方版app,甜美而又温馨。


"6686官方版app"
6686官方版app - 预约设计师
海量行家, 抢订6686注册设计服务
每日前20名申请用户, 获3D装修设计图
推荐相关案例
6686注册获取同款设计方案
姓名*
楼盘*
电话*
*为了您的权益, 您的隐私将严格保密
预约成功
您已报名成功, 稍后会有客服人员联系您。 您的隐私将被严格保密。
关注二维码了解6686体育装修知识
联系我们
"6686官方版app" 装修咨询电话 : 027-82411111
售后服务电话 : 027-82866788
公司地址 : 6686平台市江岸区澳门路232号金冠大厦 (6686官方版app)
6686登录我们
友情链接 :
    66866686官方版app下载官方版-6686官方版app下载2025最新 页面版权所有 jingyu-design.cn

    686官方版app - 算一算,您家装修需要花多少钱?

    知精准报价 避装修深坑

    01/03

    选择您喜欢的风格

    • 现代轻奢

    • 现代美式

    • 北欧

    • 新中式

    • 欧式

    • 其他

    686官方版app - 算一算,您家装修要花多少钱?

    知精准报价 避装修深坑

    02/03

    选择房屋面积区间

    • 80-100㎡
    • 100-140㎡
    • 140-200㎡
    • 200-300㎡
    • 300㎡以上

    03/03

    您的户型

    • 两居室

    • 三居室

    • 四居室

    • 五居室

    • 六居室

    算一算,您家装修要花多少钱?

    知精准报价 避装修深坑

    0%

    稍等片刻,您的报价正在生中......

    算一算,您家装修要花多少钱?

    知精准报价 避装修深坑

    您的完整报价已经生成

    报名成功享抢订优惠名额

    每日仅限前10名用户