24小时咨询电话 (6686官方版app)
027-82411111
当前位置 : 首页 > 户型解析 > 荷景苑 128 ㎡四居室现代轻奢住宅户型解析
6686官方版app - 荷景苑 128 ㎡四居室现代轻奢住宅户型解析
发布时间 : 2022-03-08 10:20
查看数 : (6686官方版app)

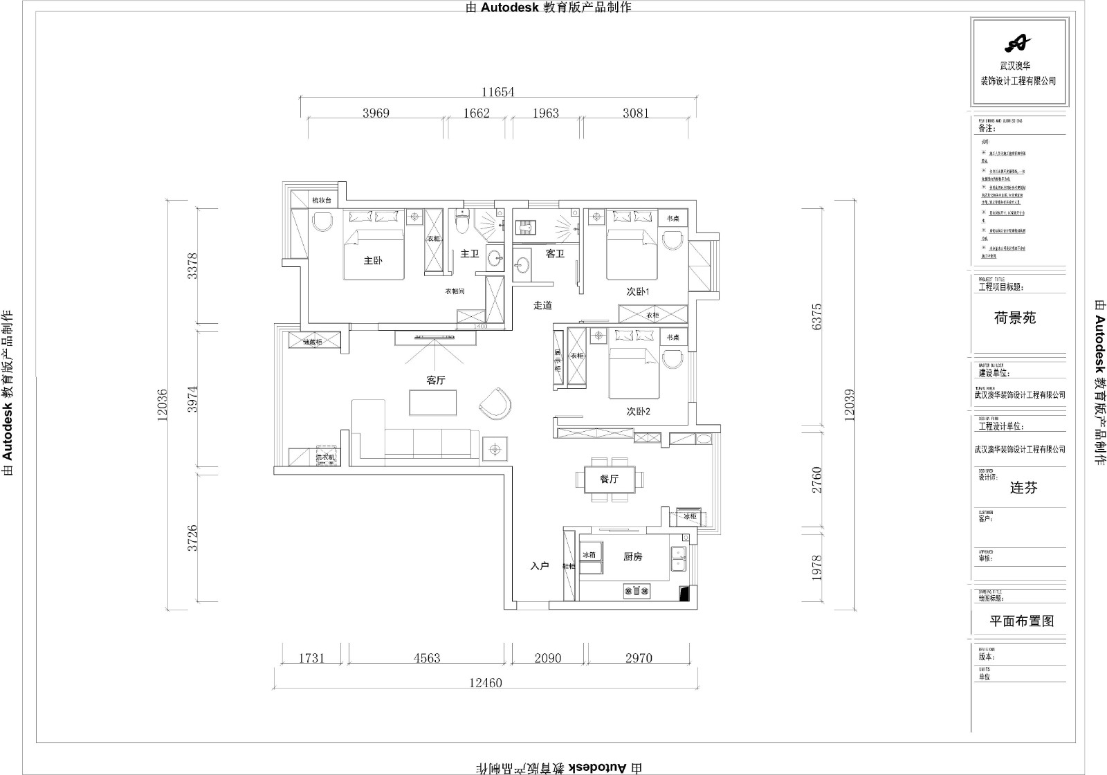
    案例简介:本案例的业主是一对即将退休的夫妇,其中男主人偏爱品酒 6686官方版app,且平时也会收藏一些好酒,因此在装修设计这块希望能够预留出自己的小天地,而女主人公平常负责家务比较多,因此装修设计这块更看重的是整体的耐看性与是否便于打理,综合两位业主的需求,设计师对空间进行了再分割,同时在室内融入酒柜设计,以满足男主人的需求。


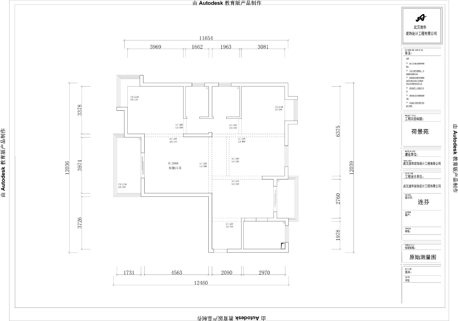
    户型解析:




    荷景苑这套128㎡的四居室住宅整体户型四平八稳,而空间结构上,入户处的面积相对比较宽敞,如果仅仅用来做玄关相对比较浪费,因此设计师将该空间分隔成两个区域,其中一块设计为厨房 6686官方版app,以提升空间的利用率,主卧区域则与其中一个卫生间空间进行衔接融合,提升主人起居生活的便利度。


    玄关:


入户.jpg

    玄关处借用远处墙面的艺术画作为点缀,同时侧面由白色橱柜进行装饰,强调实用性 6686官方版app


    客厅:




    由木质与大理石材质打造的电视背景墙清新而又不失理性 6686官方版app,镂空的设计则让空间的通透感更加强烈。


    餐厅:




    嵌入式木质酒柜满足男主人收藏酒的需求,白色与原木色的搭配组合,则让空间整体清新自然 6686官方版app


(6686官方版app)
"6686官方版app"
预约设计师 (6686官方版app)
海量行家, 抢订6686注册设计服务
每日前20名申请用户, 获3D装修设计图
686官方版app - 推荐相关案例
6686注册获取同款设计方案 (6686官方版app)
姓名*
楼盘*
电话*
*为了您的权益, 您的隐私将严格保密
"6686官方版app" 预约成功
您已报名成功, 稍后会有客服人员联系您。 您的隐私将被严格保密。
关注二维码了解6686体育装修知识
"6686官方版app" 6686登录我们
澳华历程
官方微博
联系我们
"6686官方版app" 装修咨询电话 : 686官方版app - 027-82411111
"6686官方版app" 售后服务电话 : 027-82866788
公司地址 : 6686平台市江岸区澳门路232号金冠大厦 (6686官方版app)
6686登录我们
6686官方版app - 友情链接 :
    66866686官方版app下载官方版-6686官方版app下载2025最新 页面版权所有 jingyu-design.cn

    算一算,您家装修需要花多少钱?

    知精准报价 避装修深坑 (6686官方版app)

    01/03

    选择您喜欢的风格

    • 现代轻奢

    • 现代美式

    • 北欧

    • 新中式

    • 欧式

    • 其他

    "6686官方版app" 算一算,您家装修要花多少钱?

    知精准报价 避装修深坑

    02/03

    选择房屋面积区间

    • 80-100㎡
    • 100-140㎡
    • 140-200㎡
    • 200-300㎡
    • 300㎡以上

    03/03

    您的户型

    • 两居室

    • 三居室

    • 四居室

    • 五居室

    • 六居室

    算一算,您家装修要花多少钱?

    知精准报价 避装修深坑

    0%

    稍等片刻,您的报价正在生中......

    算一算,您家装修要花多少钱? (6686官方版app)

    知精准报价 避装修深坑

    "6686官方版app" 您的完整报价已经生成

    报名成功享抢订优惠名额

    每日仅限前10名用户