24小时咨询电话
027-82411111
当前位置 : 首页 > 户型解析 > 百瑞景六期 162平米美式轻奢四居户型解析
百瑞景六期 162平米美式轻奢四居户型解析
发布时间 : 2022-03-08 10:15
查看数 :

    案例简介:作为一个即将迎来二胎的家庭,业主希望能够将空间中预留出足够的亲子互动空间与学习空间,再者由于业主夫妇两人工作性质的原因,用于起居打扫的时间也相对比较有限,因此希望设计师能够从简洁的角度出发进行规划设计 6686官方版app,同时也需要展示一定的时尚感与品质感,因此设计师选择了相对比较简洁耐看而又自带贵族气息的现代轻奢风,搭配以各种质感元素进行装饰。


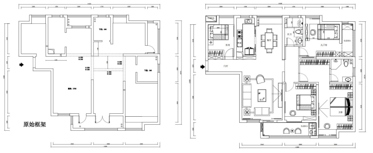
    户型解析:


1.jpg


    荷景苑这套162平方米的四居室住宅可利用设计面积较广,原有的户型结构也基本能够满足现有家庭成员起居需求,不过业主提出,未来还会迎接一个宝宝,因此设计师在进行空间设计的时候预留出一个足够的空间 6686官方版app,确保两个孩子都能够拥有自己的独立空间,而整体软装上,设计师则为业主们选择了相对比较经典耐看的轻奢风,确保整个室内空间易于打扫。


    客厅:




    带有天然清冷气息的大理石材质搭配上造型简单的吊灯,简约而又耐看 6686官方版app,日常打理也相对比较容易。


    餐厅:


餐厅.jpg

    大面积的灰色大理石搭配上白色餐座椅,简约中透露着一股高级格调韵味,由简约挂画打造的背景墙清新而又艺术感十足 6686官方版app


预约设计师
海量行家, 抢订6686注册设计服务
每日前20名申请用户, 获3D装修设计图
"6686官方版app" 推荐相关案例
6686官方版app - 6686注册获取同款设计方案
姓名*
楼盘*
电话*
*为了您的权益, 您的隐私将严格保密
6686官方版app - 预约成功
您已报名成功, 稍后会有客服人员联系您。 您的隐私将被严格保密。
关注二维码了解6686体育装修知识
"6686官方版app" 6686登录我们
澳华历程
官方微博
联系我们
装修咨询电话 : 027-82411111
售后服务电话 : 027-82866788
公司地址 : 6686平台市江岸区澳门路232号金冠大厦
6686登录我们
"6686官方版app" 友情链接 :
    66866686官方版app下载官方版-6686官方版app下载2025最新 页面版权所有 jingyu-design.cn

    算一算,您家装修需要花多少钱? (6686官方版app)

    知精准报价 避装修深坑

    01/03

    选择您喜欢的风格

    • 现代轻奢

    • 现代美式

    • 北欧

    • 新中式

    • 欧式

    • 其他

    算一算,您家装修要花多少钱?

    知精准报价 避装修深坑

    02/03

    选择房屋面积区间 (6686官方版app)

    • 80-100㎡
    • 100-140㎡
    • 140-200㎡
    • 200-300㎡
    • 300㎡以上

    686官方版app - 03/03

    您的户型

    • 两居室

    • 三居室

    • 四居室

    • 五居室

    • 六居室

    "6686官方版app" 算一算,您家装修要花多少钱?

    知精准报价 避装修深坑

    0%

    稍等片刻,您的报价正在生中......

    算一算,您家装修要花多少钱?

    知精准报价 避装修深坑

    您的完整报价已经生成 (6686官方版app)

    报名成功享抢订优惠名额

    每日仅限前10名用户