24小时咨询电话
027-82411111
当前位置 : 首页 > 户型解析 > 琨瑜府158㎡四居室轻奢住宅户型解析
"6686官方版app" 琨瑜府158㎡四居室轻奢住宅户型解析
发布时间 : 2022-03-07 10:48
查看数 : 686官方版app -

    案例简介:本案例的家庭为幸福的五口之家,除了业主夫妻二人外还有业主的父母与孩子,因此业主希望设计师能够根据不同家庭成员的需求对空间进行合理的规划与设计,以提升起居幸福感,而在与所有家庭成员进行一定交流沟通后,设计师折中选择了认可度比较高的现代轻奢风作为空间主装修基调 6686官方版app,而色彩的选择上则以简洁素雅为主,这样相对比较耐看且易于打扫。


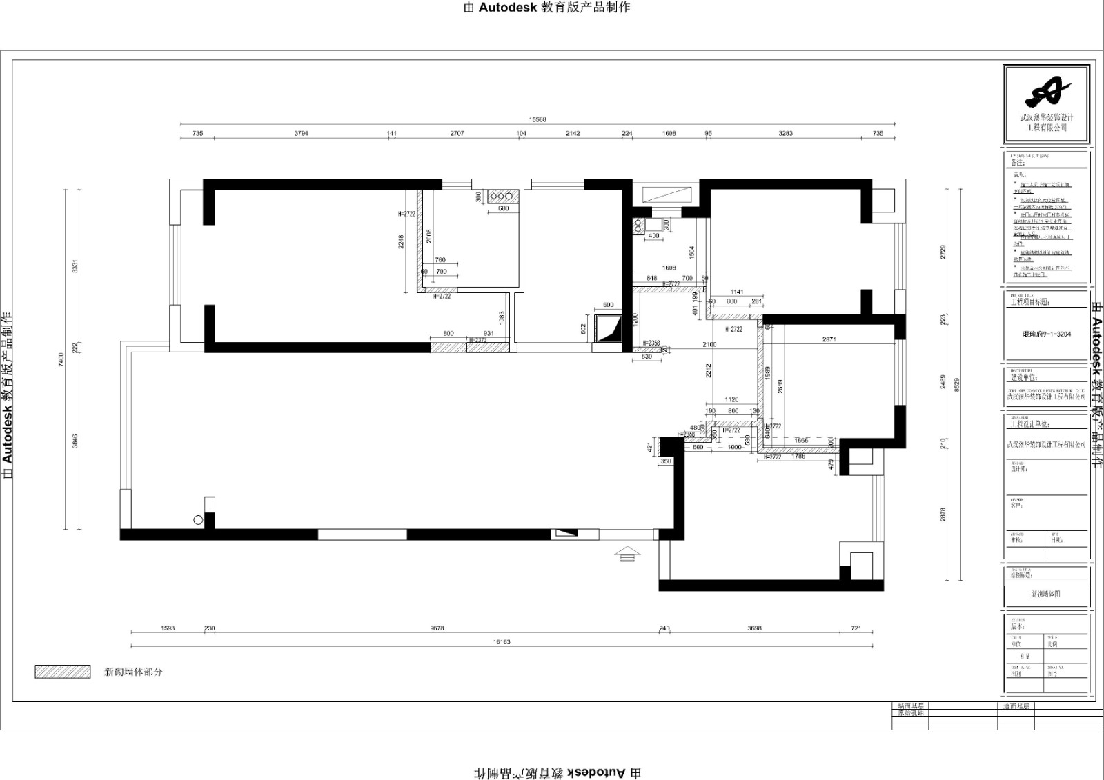
    户型解析:




    这套位于琨瑜府的四居室面积誉为158㎡,整体的户型结构相对比较平整合理,且不存在各种犄角区域,因此设计师在进行空间规划时沿用了原来的空间格局 6686官方版app,同时借助各种不同的隔断进行空间划分,以提升整个家居空间的丰富感,而针对不同家庭成员的生活习惯与审美,不同卧室空间则有针对性的进行了个性化装饰。


    客厅:




    嵌入式的照明灯具既可以满足日常使用需求,又易于打理,圆形大理石茶几简约清新而又不失高级艺术感 6686官方版app


    长辈房:


14长辈房.jpg

    灰色墙面搭配上深灰色床体,简约而又舒适,很好满足老年群体审美需求,且能够营造一个静谧的氛围 6686官方版app,有助于提升睡眠质量。


    主卧


12主卧室.jpg

    墙面借助木材与水泥材质两种不同的材料进行空间装饰,简约而又赋予空间结构变化美 6686官方版app


    儿童房:


13儿童房.jpg


    大面积的灰色搭配上小区域的原木色,简约清新而又耐看 6686官方版app,一体式收纳柜既可以满足物件归置需求,又能满足孩子学习使用需求。


"6686官方版app"
"6686官方版app"
预约设计师
海量行家, 抢订6686注册设计服务
每日前20名申请用户, 获3D装修设计图
6686注册获取同款设计方案
姓名*
楼盘*
电话*
*为了您的权益, 您的隐私将严格保密
"6686官方版app" 预约成功
您已报名成功, 稍后会有客服人员联系您。 您的隐私将被严格保密。
关注二维码了解6686体育装修知识
6686登录我们 (6686官方版app)
澳华历程
官方微博
联系我们 (6686官方版app)
装修咨询电话 : 027-82411111
售后服务电话 : 686官方版app - 027-82866788
6686官方版app - 公司地址 : 6686平台市江岸区澳门路232号金冠大厦
"6686官方版app" 6686登录我们
友情链接 : (6686官方版app)
    66866686官方版app下载官方版-6686官方版app下载2025最新 页面版权所有 jingyu-design.cn

    686官方版app - 算一算,您家装修需要花多少钱?

    知精准报价 避装修深坑

    "6686官方版app" 01/03

    选择您喜欢的风格

    • 现代轻奢

    • 现代美式

    • 北欧

    • 新中式

    • 欧式

    • 其他

    6686官方版app - 算一算,您家装修要花多少钱?

    知精准报价 避装修深坑

    "6686官方版app" 02/03

    选择房屋面积区间

    • 80-100㎡
    • 100-140㎡
    • 140-200㎡
    • 200-300㎡
    • 300㎡以上

    03/03 (6686官方版app)

    您的户型

    • 两居室

    • 三居室

    • 四居室

    • 五居室

    • 六居室

    算一算,您家装修要花多少钱?

    知精准报价 避装修深坑

    0%

    稍等片刻,您的报价正在生中......

    算一算,您家装修要花多少钱?

    知精准报价 避装修深坑

    您的完整报价已经生成

    "6686官方版app" 报名成功享抢订优惠名额

    每日仅限前10名用户