24小时咨询电话
027-82411111
当前位置 : 首页 > 户型解析 > 岱家山庄78㎡二居室现代风个性住宅户型解析
岱家山庄78㎡二居室现代风个性住宅户型解析
686官方版app - 发布时间 : 2022-03-07 10:25
查看数 :

    案例简介:本房屋的业主喜欢简洁实用的装修风格,不喜欢过度装修,再者由于装修预算有限 6686官方版app,因此业主希望设计师能够尽可能的使用一些实用性元素进行空间设计,于是设计师利用最简约的元素与色彩进行空间的装饰点缀,在简单而又不失质感的设计中帮助业主寻得适合生活的温度平衡,提升家居生活品质。


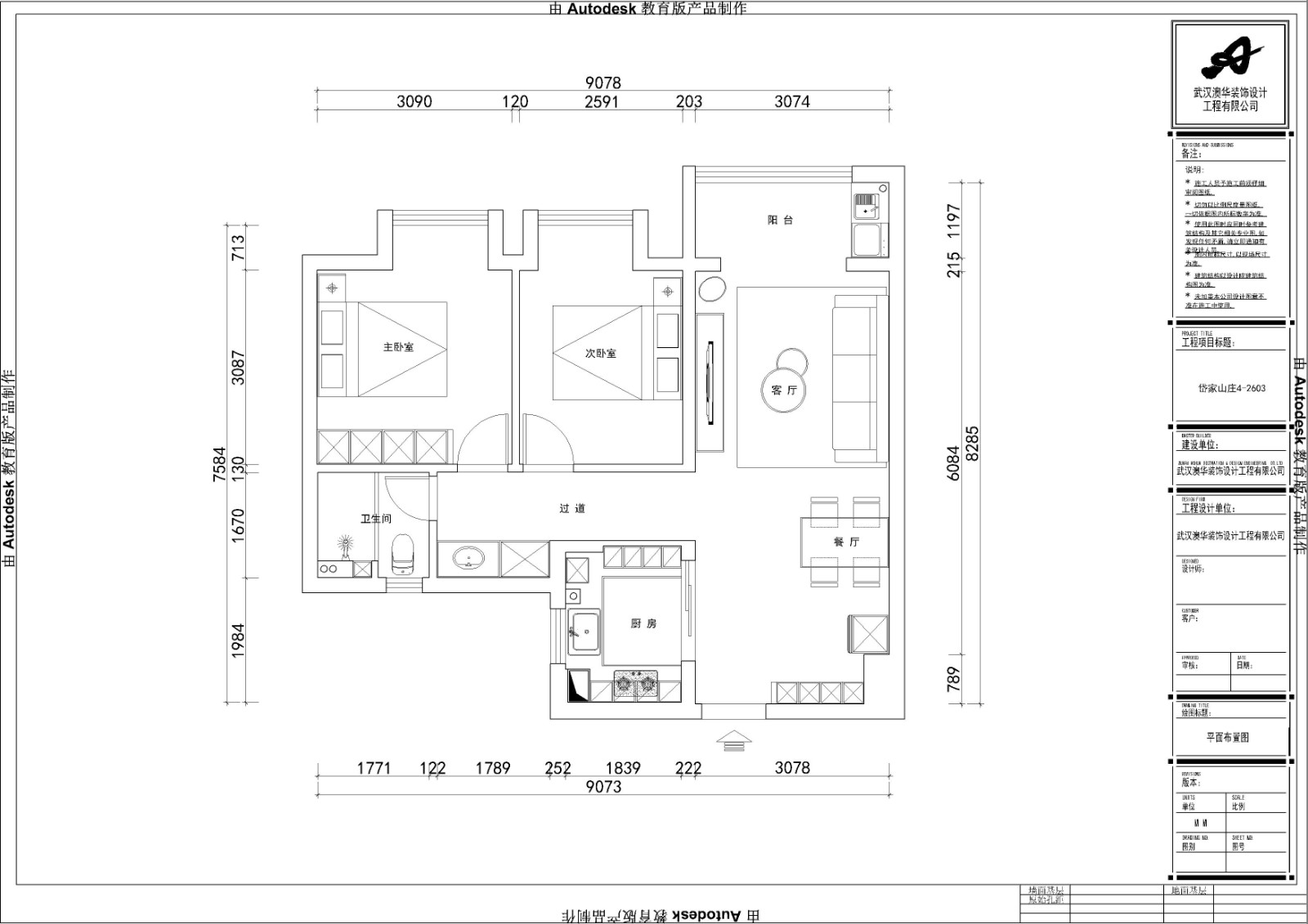
    户型解析:






    岱家山庄这套78㎡的二居室房屋原有结构就已经进行了一定的功能分区 6686官方版app,为了帮助业主节约装修花销,设计师在原有的户型结构基础上进行再设计,同时将狭小的过道进行一定的色彩点缀,以提升空间的宽敞度,整体装修则选用简约感十足而又不失时尚氛围的现代风进行装饰,以满足业主审美需求。


    过道:


6过道.jpg

    过道增加无灯具的采光设计,在增强采光的同时提升空间明亮度与视觉宽敞度 6686官方版app


    客厅:




    由于客厅区域宽度不够 6686官方版app,因此设计师选用了相对比较素雅的色彩进行客厅装饰,沙发则选用了带有丝绒材质的长条形沙发,优雅耐看的同时从视觉上拉伸客厅宽度。


    餐厅:


1餐厅.jpg

    就餐区域设置在拐角处,同时借助简单的餐桌椅与吊灯完成软装 6686官方版app,强调实用性。


    卧室:


7主卧.jpg


    藕粉色墙面搭配上白色简洁的橱柜,优雅又耐看,小清新感十足的植物挂画则增添了空间在自然风情 6686官方版app


"6686官方版app"
"6686官方版app" 预约设计师
海量行家, 抢订6686注册设计服务
每日前20名申请用户, 获3D装修设计图
推荐相关案例
6686官方版app - 6686注册获取同款设计方案
姓名*
楼盘*
电话*
*为了您的权益, 您的隐私将严格保密
预约成功
您已报名成功, 稍后会有客服人员联系您。 您的隐私将被严格保密。
关注二维码了解6686体育装修知识
"6686官方版app" 6686登录我们
澳华历程
"6686官方版app" 官方微博
联系我们
装修咨询电话 : 027-82411111 (6686官方版app)
售后服务电话 : 027-82866788 (6686官方版app)
"6686官方版app" 公司地址 : 6686平台市江岸区澳门路232号金冠大厦
6686登录我们
"6686官方版app" 友情链接 :
    66866686官方版app下载官方版-6686官方版app下载2025最新 页面版权所有 jingyu-design.cn

    算一算,您家装修需要花多少钱?

    知精准报价 避装修深坑

    "6686官方版app" 01/03

    选择您喜欢的风格

    • 现代轻奢

    • 现代美式

    • 北欧

    • 新中式

    • 欧式

    • 其他

    算一算,您家装修要花多少钱?

    知精准报价 避装修深坑

    02/03

    选择房屋面积区间 (6686官方版app)

    • 80-100㎡
    • 100-140㎡
    • 140-200㎡
    • 200-300㎡
    • 300㎡以上

    03/03

    您的户型

    • 两居室

    • 三居室

    • 四居室

    • 五居室

    • 六居室

    "6686官方版app" 算一算,您家装修要花多少钱?

    知精准报价 避装修深坑

    0%

    稍等片刻,您的报价正在生中......

    "6686官方版app" 算一算,您家装修要花多少钱?

    知精准报价 避装修深坑

    您的完整报价已经生成

    报名成功享抢订优惠名额

    每日仅限前10名用户