"6686官方版app" 24小时咨询电话
027-82411111
首页 > 找设计师 > 鄢炜设计师户型解析
户型解析
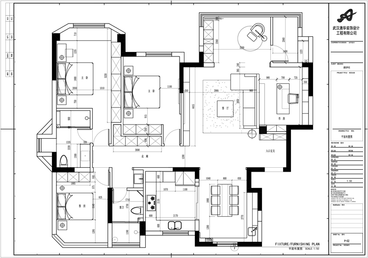
金科城 126㎡三居室轻奢浪漫住宅户型解析
三居室
126m² (6686官方版app)
轻奢风

    案例简介:对于空间气质的表达是一门艺术,一个优秀的设计师往往能够借助简单的色彩组合来营造不同的氛围感,再借助一些合理的装饰点缀,打造出一所带有独特气息的家居空间,本案例的设计师借助简约的灰白配色来营造空间的个性与气质,同时借助不同材料的质感装饰空间 6686官方版app,让整个家居空间呈现简约而又不简单的视觉效果。


    户型解析:


1.jpg


    金科城这套126㎡的三居室住宅虽然面积相对较大,且南北通透,采光好,但是由于原有的空间结构划分并不够合理,存在着一些细节不足,因此需要设计师合理的化解空间劣势,为了降低大面积客厅带来的空旷感 6686官方版app,设计师将阳台区域向内进行扩大,并改造成一个大的休憩,观赏区域,同时将客厅内部区域借助软隔断改造成就餐区域,满足使用需求的同时降低客厅过大带来的单调氛围。


    客厅:



    大面积的白色背景墙搭配上嵌入式的电视柜设计 6686官方版app,整体给人简约清新而又前卫的独特气息。


    卧室:



    做旧处理的灰色背景墙个性感十足 6686官方版app,柔软的灰色地毯,整体给人以不加修饰的天然清新美感。


军运村300㎡复式轻奢高雅别墅院落户型解析
"6686官方版app" 大平层
6686官方版app - 300m²
轻奢风

    案例简介:本案例的业主对于生活品质有着比较高的追求,因此希望所打造出来的别墅空间能够具有高级的品质感,业主提出,自己不喜欢各种华丽造型打造的别墅空间,这不仅仅容易造成视觉压迫感,整个还给人张扬感,因此,设计师为业主选择了现代轻奢风进行软装 6686官方版app,整体呈现高级品质感而又不显得刻意且张扬,在无形中展示主人的高雅品味。


    户型解析:


1.jpg


    军运村这套300㎡的复式别墅空间十分宽敞,且南北通透,带有南向大阳台,整体户型优势较为明显,因此设计师在进行规划设计的时候,充分利用了空间的优势,借助各种大面积窗户的设计,提升室内采光,为了扩大阳台空间,提升家居品质 6686官方版app,设计师将客厅的阳台与卧室阳台直接打通,将整个阳台空间改造成视角极佳的观赏区,便于业主与家人观赏室外美景。


    客厅:



    客厅区域借助莫兰迪色系进行装饰,强调一种朦胧的优雅氛围 6686官方版app


    厨房:


5.jpg


    简约的黑白配色耐看又经典 6686官方版app,大理石瓷砖铺设的地板则在无形中提升空间档次感。


    卧室:



    不同深度的蓝色组合让卧室区域的结构感更加明显 6686官方版app,阅读外面与衣柜的衔接处理则让空间融合感更加强烈。


正荣紫阙台 160㎡四居室轻奢婚房设计户型解析
四居室
160m²
轻奢风

    案例简介:对于空间气质的表达是一门艺术,本案例的餐厅呈现暗色系的现代感官,这里没有喋喋不休 宁静有增长心灵的力量,似乎能让人感知优雅的存在,整个家居空间则以原木色与白色为主体 6686官方版app,拾取饱和度较低的灰黑色系点缀,让整个空间在舒适简单中隐隐散发高级的质感。


    户型解析:


1.jpg


    藕色墙面搭配上细线条处理,给人精致的优雅感。弧线形的沙发搭配上圆形茶几,营造柔和的自然舒适感。


    客厅:



    由灰色与藕粉色打造的餐椅给人简约又柔和的视觉效果,搭配上白色背景墙,营造清新自然美感。


    餐厅:


4.jpg


    由灰色与藕粉色打造的餐椅给人简约又柔和的视觉效果,搭配上白色背景墙,营造清新自然美感。


    卧室:

5.jpg


    通过不同深度色彩打造的背景墙结构感十足,同时在色彩较浓的背景墙区域设置梳妆台,起到视觉分隔作用。


东城华府148㎡三居室轻奢优雅住宅户型解析
三居室
"6686官方版app" 148m²
"6686官方版app" 轻奢风

    案例简介:本案例的客户是三口之家,忙于工作的男主人希望家居空间足够温馨柔和,并且有足够的亲子互动空间。而作为家庭主妇的女主人对于家的要求则是要耐看且易于打理,不希望空间出现过多华而不实的设计。设计师在结合两位业主的需求之后,选择以现代轻奢风进行整体的软装,使用尽可能易于打理的材料装饰空间,以满足女主人的需求。同时,降低空间的尖锐设计,所有的台面及拐角均使用圆弧设计,避免孩子出现磕碰。


    户型解析:


1.jpg


    东城华府这套三居室住宅的占地面积约为148㎡,整体的面积相对比较宽敞且户型结构较为合理,设计师在进行规划的时候尽可能保留房屋原有的户型结构,以降低装修成本。为了满足主人的使用需求,设计师还在主卧区域融入卫浴设计,提升主人生活的私密性与品质感。而厨房与就餐区域则借助一个简单的玻璃门进行隔断,避免由于厨房空间面积较小而带来的压迫感。


    客厅:



    大理石地板高级优雅且易于打理,嵌入式电视墙设计则强调现代时尚氛围。


    餐厅:


4.jpg


    符合人体功能学的桌椅强调起居舒适性,黑白色构成的置物台简约而又清新耐看。


    卧室:




    卧室区域借助大量的线条完成装饰点缀,强调简约大气美。直线型的灯饰既可以满足照明需求,又能营造空间艺术氛围。


鄢炜
设计总监
从业年限 : 2001
擅长风格 : 轻奢,法式,中古风,北欧
设计案例 : 金科城、正荣紫阙台、东城华府、军运村、航空路壹号、汉口印、金科城
预约数量 : 136
找TA设计
686官方版app - 算一算我家装修需要多少钱
    • 张女士
      132****178
      200m²
    • 成先生
      134****4856
      83m²
    • 董先生
      137****2569
      95m²
    • 成先生
      133****7485
      130m²
    • 李先生
      150****4475
      220m²
    • 张先生
      139****5050
      187m²
    • 王女士
      178****4563
      168m²
    预约设计师
    姓名*
    楼盘*
    电话*
    *为了您的权益, 您的隐私将严格保密
    预约成功
    您已报名成功, 稍后会有客服人员联系您。 您的隐私将被严格保密。
    关注二维码了解6686体育装修知识
    客户服务 (6686官方版app)
    在线预约
    滴滴专车
    售后服务
    联系我们
    装修咨询电话 : 027-82411111
    售后服务电话 : 027-82866788
    "6686官方版app" 公司地址 : 6686平台市江岸区澳门路232号金冠大厦
    6686登录我们
    6686官方版app - 友情链接 :
      66866686官方版app下载官方版-6686官方版app下载2025最新 页面版权所有 jingyu-design.cn

      算一算,您家装修需要花多少钱?

      知精准报价 避装修深坑

      "6686官方版app" 01/03

      选择您喜欢的风格

      • 现代轻奢

      • 现代美式

      • 北欧

      • 新中式

      • 欧式

      • 其他

      算一算,您家装修要花多少钱?

      知精准报价 避装修深坑

      02/03

      选择房屋面积区间

      • 80-100㎡
      • 100-140㎡
      • 140-200㎡
      • 200-300㎡
      • 300㎡以上

      03/03

      您的户型 (6686官方版app)

      • 两居室

      • 三居室

      • 四居室

      • 五居室

      • 六居室

      "6686官方版app" 算一算,您家装修要花多少钱?

      知精准报价 避装修深坑

      0%

      稍等片刻,您的报价正在生中......

      686官方版app - 686官方版app - 算一算,您家装修要花多少钱?

      知精准报价 避装修深坑

      您的完整报价已经生成

      报名成功享抢订优惠名额

      每日仅限前10名用户