24小时咨询电话
027-82411111
当前位置 : 首页 > 户型解析 > 军运村300㎡复式轻奢高雅别墅院落户型解析
军运村300㎡复式轻奢高雅别墅院落户型解析
发布时间 : 2022-03-14 12:36 (6686官方版app)
查看数 :

    案例简介:本案例的业主对于生活品质有着比较高的追求,因此希望所打造出来的别墅空间能够具有高级的品质感,业主提出,自己不喜欢各种华丽造型打造的别墅空间,这不仅仅容易造成视觉压迫感,整个还给人张扬感,因此,设计师为业主选择了现代轻奢风进行软装,整体呈现高级品质感而又不显得刻意且张扬 6686官方版app,在无形中展示主人的高雅品味。


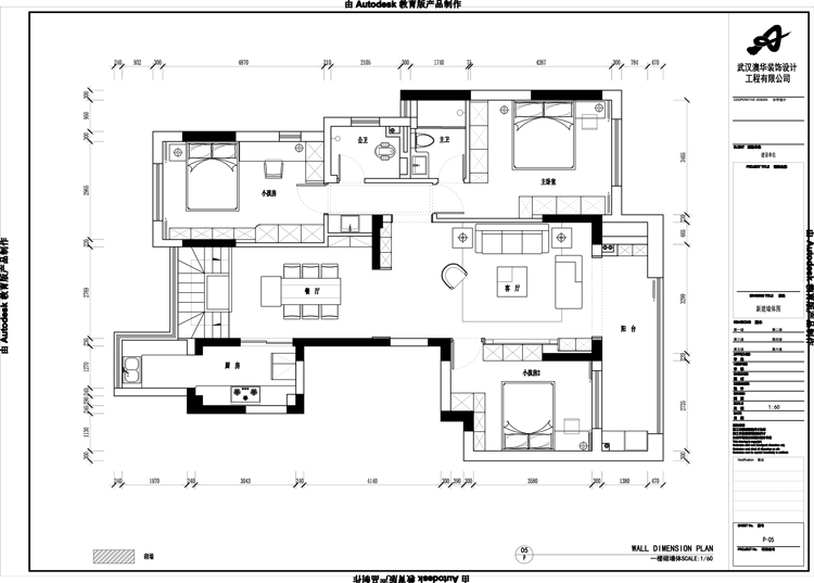
    户型解析:


1.jpg


    军运村这套300㎡的复式别墅空间十分宽敞,且南北通透,带有南向大阳台,整体户型优势较为明显,因此设计师在进行规划设计的时候 6686官方版app,充分利用了空间的优势,借助各种大面积窗户的设计,提升室内采光,为了扩大阳台空间,提升家居品质,设计师将客厅的阳台与卧室阳台直接打通,将整个阳台空间改造成视角极佳的观赏区,便于业主与家人观赏室外美景。


    客厅:



    客厅区域借助莫兰迪色系进行装饰 6686官方版app,强调一种朦胧的优雅氛围。


    厨房:


5.jpg


    简约的黑白配色耐看又经典,大理石瓷砖铺设的地板则在无形中提升空间档次感 6686官方版app


    卧室:



    不同深度的蓝色组合让卧室区域的结构感更加明显 6686官方版app,阅读外面与衣柜的衔接处理则让空间融合感更加强烈。


"6686官方版app"
预约设计师 (6686官方版app)
海量行家, 抢订6686注册设计服务
每日前20名申请用户, 获3D装修设计图
推荐相关案例
"6686官方版app" 6686注册获取同款设计方案
姓名*
楼盘*
电话*
*为了您的权益, 您的隐私将严格保密
预约成功
您已报名成功, 稍后会有客服人员联系您。 您的隐私将被严格保密。
关注二维码了解6686体育装修知识
6686官方版app - 6686登录我们
6686官方版app - 澳华历程
官方微博
"6686官方版app" 联系我们
"6686官方版app" 装修咨询电话 : 027-82411111
"6686官方版app" 售后服务电话 : 027-82866788
公司地址 : 6686平台市江岸区澳门路232号金冠大厦
"6686官方版app" 6686登录我们
友情链接 :
    66866686官方版app下载官方版-6686官方版app下载2025最新 页面版权所有 jingyu-design.cn

    算一算,您家装修需要花多少钱?

    知精准报价 避装修深坑

    "6686官方版app" 01/03

    选择您喜欢的风格

    • 现代轻奢

    • 现代美式

    • 北欧

    • 新中式

    • 欧式

    • 其他

    算一算,您家装修要花多少钱?

    知精准报价 避装修深坑

    02/03 (6686官方版app)

    选择房屋面积区间

    • 80-100㎡
    • 100-140㎡
    • 140-200㎡
    • 200-300㎡
    • 300㎡以上

    03/03

    您的户型

    • 两居室

    • 三居室

    • 四居室

    • 五居室

    • 六居室

    "6686官方版app" 算一算,您家装修要花多少钱?

    知精准报价 避装修深坑

    0%

    稍等片刻,您的报价正在生中......

    算一算,您家装修要花多少钱?

    知精准报价 避装修深坑

    您的完整报价已经生成

    6686官方版app - 报名成功享抢订优惠名额

    每日仅限前10名用户