6686官方版app - 24小时咨询电话
027-82411111
当前位置 : 首页 > 户型解析 > 东城华府148㎡三居室轻奢优雅住宅户型解析
"6686官方版app" 东城华府148㎡三居室轻奢优雅住宅户型解析
"6686官方版app" 发布时间 : 2022-03-14 11:30
"6686官方版app" 查看数 :

    案例简介:本案例的客户是三口之家,忙于工作的男主人希望家居空间足够温馨柔和,并且有足够的亲子互动空间,而作为家庭主妇的女主人对于家的要求则是要耐看且易于打理,不希望空间出现过多华而不实的设计,设计师在结合两位业主的需求之后,选择以现代轻奢风进行整体的软装,使用尽可能易于打理的材料装饰空间,以满足女主人的需求,同时 6686官方版app,降低空间的尖锐设计,所有的台面及拐角均使用圆弧设计,避免孩子出现磕碰。


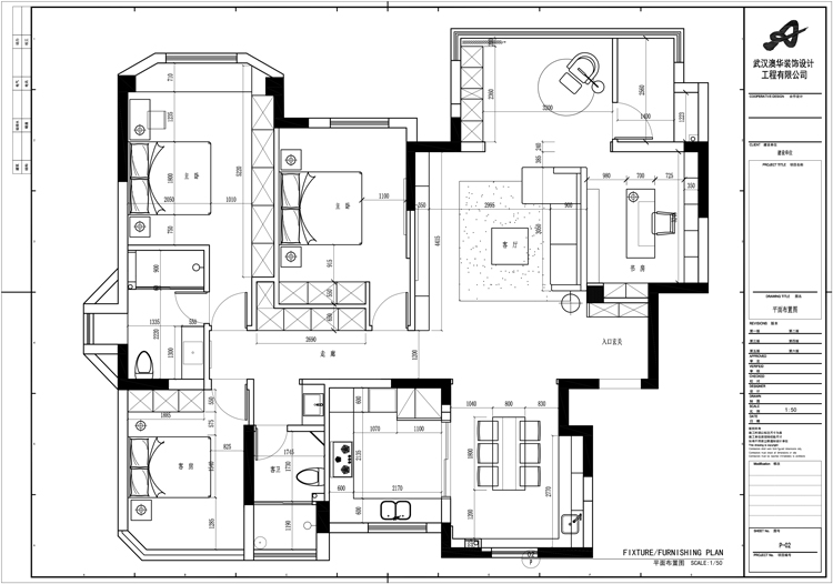
    户型解析:


1.jpg


    东城华府这套三居室住宅的占地面积约为148㎡,整体的面积相对比较宽敞且户型结构较为合理,设计师在进行规划的时候尽可能保留房屋原有的户型结构,以降低装修成本,为了满足主人的使用需求,设计师还在主卧区域融入卫浴设计,提升主人生活的私密性与品质感,而厨房与就餐区域则借助一个简单的玻璃门进行隔断 6686官方版app,避免由于厨房空间面积较小而带来的压迫感。


    客厅:



    大理石地板高级优雅且易于打理,嵌入式电视墙设计则强调现代时尚氛围 6686官方版app


    餐厅:


4.jpg


    符合人体功能学的桌椅强调起居舒适性 6686官方版app,黑白色构成的置物台简约而又清新耐看。


    卧室:




    卧室区域借助大量的线条完成装饰点缀 6686官方版app,强调简约大气美,直线型的灯饰既可以满足照明需求,又能营造空间艺术氛围。


"6686官方版app"
预约设计师
海量行家, 抢订6686注册设计服务
每日前20名申请用户, 获3D装修设计图
推荐相关案例
6686注册获取同款设计方案 (6686官方版app)
姓名*
楼盘*
电话*
*为了您的权益, 您的隐私将严格保密
"6686官方版app" 预约成功
您已报名成功, 稍后会有客服人员联系您。 您的隐私将被严格保密。
关注二维码了解6686体育装修知识
联系我们
装修咨询电话 : 027-82411111
售后服务电话 : 027-82866788
公司地址 : 6686平台市江岸区澳门路232号金冠大厦
6686登录我们 (6686官方版app)
友情链接 :
    66866686官方版app下载官方版-6686官方版app下载2025最新 页面版权所有 jingyu-design.cn

    686官方版app - 算一算,您家装修需要花多少钱?

    知精准报价 避装修深坑 (6686官方版app)

    686官方版app - 01/03

    选择您喜欢的风格 (6686官方版app)

    • 现代轻奢

    • 现代美式

    • 北欧

    • 新中式

    • 欧式

    • 其他

    算一算,您家装修要花多少钱? (6686官方版app)

    知精准报价 避装修深坑

    02/03

    选择房屋面积区间 (6686官方版app)

    • 80-100㎡
    • 100-140㎡
    • 140-200㎡
    • 200-300㎡
    • 300㎡以上

    03/03

    您的户型

    • 两居室

    • 三居室

    • 四居室

    • 五居室

    • 六居室

    686官方版app - 算一算,您家装修要花多少钱?

    知精准报价 避装修深坑 (6686官方版app)

    0%

    稍等片刻,您的报价正在生中......

    算一算,您家装修要花多少钱?

    知精准报价 避装修深坑

    您的完整报价已经生成

    报名成功享抢订优惠名额

    每日仅限前10名用户