<kbd date-time="kilOyuZR"></kbd><del id="GJC6T"></del>
24小时咨询电话
027-82411111
当前位置 : 首页 > 户型解析 > ​汉口1872 106㎡-137㎡户型解析
​汉口1872 106㎡-137㎡户型解析
发布时间 : 2023-08-08 10:12
查看数 : (6686官方版app)


小区:汉口1872


户型:106㎡. 107㎡ 6686官方版app. 110㎡. 122㎡. 137㎡.


汉口1872


汉口1872项目由两大央企招商蛇口与中国铁建地产集团,承时代发展大势,联袂携手,落位解放大道硚口宗关 6686官方版app,约6000㎡保留文化建筑,以历史为底色,描绘硚口百年的文明记忆,形成完整且具活力的生活社区,打造6686平台人居迭代新作--汉口1872,开启6686平台生活新浪潮。


为了给汉口1872的业主带来更好的生活体验,澳华装饰的设计师全面解析建面106㎡-137㎡户型的户型方案,从居住者出发,从场景入手,平衡视觉效果与居住功能,扩展生活秩序 6686官方版app


106㎡户型解析


汉口1872


△原始结构图


户型优点


✔    户型方正,活动区域开阔 6686官方版app


✔    拥有观景大阳台。


户型缺点


✘    厨房相对比较小,活动受限 6686官方版app


方案一

开放式厨房,打造开阔互动公区


汉口1872


思路解析


1    开放式厨房设计,同时利用岛台连接餐桌,制造了一个现代感十足的餐厨空间 6686官方版app


2    冰箱移到餐厅区域,释放厨房空间 6686官方版app


3    阳台设置洗衣区,将晾晒与休闲结合 6686官方版app


4    主卫纳入主卧 6686官方版app,形成便捷套卧,利用L型衣橱打造衣帽间,增加收纳。


5    保留三房,满足多人口家庭居住需求 6686官方版app


效果图展示


汉口1872


汉口1872


方案二

封闭式厨房+舒适三房


汉口1872


思路解析


1    封闭式中餐厨房,利用可开可合的玻璃移门,隔绝油烟不隔绝采光。


2    玄关到客厅设置一整墙背景柜,视觉大气纯净,同时增加收纳空间。


3    次卫做干湿分离,方便多人同时使用。


4    主卫纳入主卧,形成便捷套卧;利用L型衣橱打造衣帽间,增加收纳。


5    保留三房,满足多人口家庭居住需求。


效果图展示


汉口1872


汉口1872


方案三

开放式格局,打造开阔互动公区


汉口1872


思路解析


1    开放式厨房设计,同时利用岛台连接餐桌,制造了一个现代感十足的餐厨空间。


2    餐厅与客厅打通,制造开阔互动的公共区域。


3    阳台设置洗衣区,将晾晒与休闲结合。


4    主卫纳入主卧,形成便捷套卧;利用L型衣橱打造衣帽间,增加收纳。


5    保留三房,满足多人口家庭居住需求。


效果图展示


汉口1872


汉口1872


107㎡户型解析


汉口1872


△原始结构图


户型优点


✔    客餐厅的连贯性比较好。


✔    客厅的阳台比较大,可以让空间更明亮。


✔    主卧空间的空间比较宽敞。


户型缺点


✘    作为小三房户型,第三个房间比较小,如果放床整个空间都塞满了。


✘    房子的承重墙体比较多,可变性不大,在空间分割上有很多局限性。


✘    厨房空间比较小。


方案一

开放式设计,增设社交厨房


汉口1872


思路解析


1    开放式厨房设计,利用吧台连接西厨,扩大使用面积。


2    餐厅与客厅之间采用可开可合的玻璃门隔断,合上时隔绝油烟,打开时空间互联。


3    阳台一半纳入客厅,一半纳入卧室,扩展了卧室空间。


4    主卫纳入主卧,形成便捷套卧;利用L型衣橱打造衣帽间,增加收纳。


5    保留三房,满足多人口家庭居住需求。


效果图展示


汉口1872


汉口1872


方案二

观景大阳台+舒适三房


汉口1872


思路解析


1    开放式厨房设计,利用吧台连接西厨,扩大使用面积。


2    餐厅与客厅之间采用可开可合的玻璃门隔断,合上时隔绝油烟,打开时空间互联。


3    客厅和卧室的阳台联通,构建开阔的观景大阳台。


4    主卫纳入主卧,形成便捷套卧;利用L型衣橱打造衣帽间,增加收纳。


5    保留三房,满足多人口家庭居住需求。


效果图展示


汉口1872


汉口1872


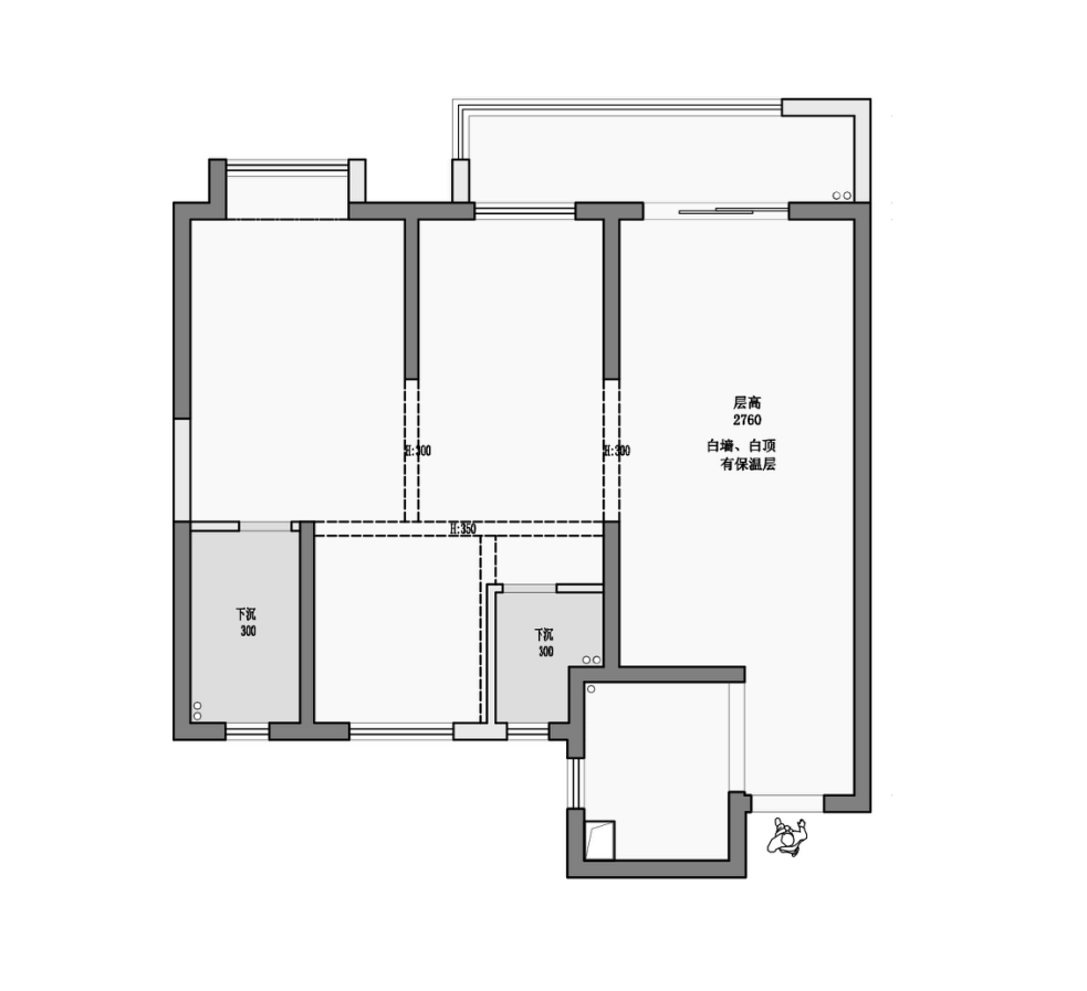
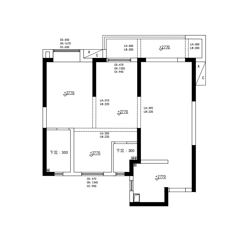
110㎡户型分析


汉口1872


△原始结构图


户型优点


✔    南北通透,大阳台,采光通风良好。


✔    户型功能区域划分清晰。


户型缺点


✘    北面卧室空间较小。


✘    阳台利用率不高。


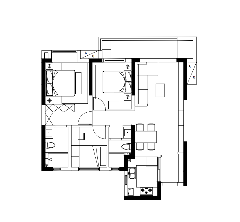
方案一

舒适三房,满足多人口家庭


汉口1872


思路解析


1    入户加长鞋柜分区设置换鞋挂衣区,增加储物收纳实用性。


2    餐厅餐桌靠墙摆放,家居动线合理开阔,餐边酒柜美观实用。


3    儿童房与阳台连通,有独立的学习空间。


4    次卧床位靠墙摆放,让出大部空间活动。


效果图展示


汉口1872


汉口1872


方案二

奢华套卧+开阔公区


汉口1872


思路解析


1    入户加长鞋柜分区设置换鞋挂衣区,增加储物收纳实用性。


2    餐厅餐桌靠墙摆放,家居动线合理开阔,餐边酒柜美观实用。


3    儿童房与阳台连通,有独立的学习空间。


4    一间面积较小的次卧作为衣帽间纳入主卧,形成一个套间,收纳更全面。


效果图展示


汉口1872


汉口1872



方案三

独立书房,丰富生活场景


26.png


思路解析


1    入户加长鞋柜分区设置换鞋挂衣区,增加储物收纳实用性。


2    餐厅餐桌靠墙摆放,家居动线合理开阔,餐边酒柜美观实用。


3    独立书房兼客房,实用性强。


效果图展示


汉口1872


汉口1872


122㎡户型分析


汉口1872


△原始结构图


户型优点


✔    南北通透,采光通风好。


✔    双阳台,明亮宽敞,6686体育可能性。


户型缺点


✘    餐厅略显紧凑。


✘    厨房空间有限。


方案一

舒适三房+增设阳台办公区


汉口1872


思路解析


1    通阳台一分为二,让南边次卧功能更加齐全。


2    过道处的酒柜(储物柜)可以一柜被餐厅、客厅两个空间所用。


3    厨房三联动移门,使出入口最大化。


效果图展示


汉口1872


汉口1872


方案二

开阔双阳台+舒适三房


汉口1872


思路解析


1    保留了双阳台的开阔性,让阳台有6686体育的可能性。


2    主卧室开放式的衣帽间让女主人拥有更美好的仪式感。


3    厨房三联动门,使厨房和餐厅之间隔而不断,有着更好的联系。


效果图展示


汉口1872


汉口1872


137㎡户型解析


汉口1872


△原始结构图


户型优点


✔    南北通透,大阳台,采光通风良好。


✔    户型功能区域划分清晰。


户型缺点


✘    北面房间小,飘窗利用率不高。


方案一

去客厅化设计+开放式书房


汉口1872


思路解析


1    客厅与阳台拉通,大横厅落地窗,采光视线绝佳。


2    沙发背后做开放式书房,可以有多种打开方式,工作、品茗...


3    次卧扩充卫生间及飘窗空间,尺度合理。


4    儿童房安置高低床。


效果图展示


汉口1872


汉口1872


汉口1872


方案二

去客厅化设计+舒适三房


汉口1872


思路解析


1    客厅与阳台拉通,大横厅落地窗,采光视线绝佳。


2    餐厅设置操作柜,提升利用率,满足各种厨电的摆放。


3    次卧扩充卫生间及飘窗空间,尺度合理。


效果图展示


汉口1872


汉口1872


(6686官方版app)
预约设计师
海量行家, 抢订6686注册设计服务
每日前20名申请用户, 获3D装修设计图
6686注册获取同款设计方案 (6686官方版app)
姓名*
楼盘*
电话*
*为了您的权益, 您的隐私将严格保密
6686官方版app - 预约成功
您已报名成功, 稍后会有客服人员联系您。 您的隐私将被严格保密。
关注二维码了解6686体育装修知识
6686官方版app - 联系我们
装修咨询电话 : 027-82411111 (6686官方版app)
售后服务电话 : 027-82866788
公司地址 : 6686平台市江岸区澳门路232号金冠大厦
6686登录我们
"6686官方版app" 友情链接 :
    66866686官方版app下载官方版-6686官方版app下载2025最新 页面版权所有 jingyu-design.cn

    "6686官方版app" 算一算,您家装修需要花多少钱?

    知精准报价 避装修深坑

    686官方版app - 01/03

    选择您喜欢的风格

    • 现代轻奢

    • 现代美式

    • 北欧

    • 新中式

    • 欧式

    • 其他

    算一算,您家装修要花多少钱? (6686官方版app)

    知精准报价 避装修深坑

    02/03 (6686官方版app)

    选择房屋面积区间

    • 80-100㎡
    • 100-140㎡
    • 140-200㎡
    • 200-300㎡
    • 300㎡以上

    03/03 (6686官方版app)

    您的户型

    • 两居室

    • 三居室

    • 四居室

    • 五居室

    • 六居室

    算一算,您家装修要花多少钱?

    知精准报价 避装修深坑

    0%

    稍等片刻,您的报价正在生中......

    算一算,您家装修要花多少钱?

    知精准报价 避装修深坑

    6686官方版app - 您的完整报价已经生成

    报名成功享抢订优惠名额

    每日仅限前10名用户