"6686官方版app" 24小时咨询电话
027-82411111
当前位置 : 首页 > 户型解析 > 融侨滨江城美域111㎡-130㎡户型解析
"6686官方版app" 融侨滨江城美域111㎡-130㎡户型解析
发布时间 : 2023-08-08 09:30
"6686官方版app" 查看数 :


小区:融侨滨江城美域


户型:4#楼A1户型111㎡. 5#楼A1户型111㎡. 3#楼C1户型128㎡. C2户型130㎡ 6686官方版app.


融侨滨江城美域


6686平台融侨滨江城项目周边与徐东,奥山,众圆 6686官方版app,积玉桥商圈咫尺之遥,近揽34家幼儿园,12所小学,4所中学,以及1所211高校,多所二甲医院和同济,协和为健康保驾护航,周边优质配套资源丰富,美好生活触手可及。


为了给融侨滨江城美域的业主带来更好的生活体验,澳华装饰的设计师全面解析建面111㎡-130㎡户型的户型方案 6686官方版app,从居住者出发,从场景入手,平衡视觉效果与居住功能,扩展生活秩序。


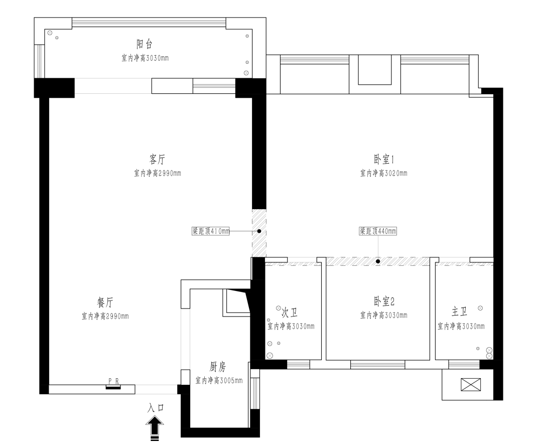
4#楼A1户型111㎡


融侨滨江城美域111㎡


△原始结构图


户型优点


✔    户型方正,活动区域开阔 6686官方版app


✔    拥有观景大阳台。


户型缺点


✘    部分采光有遮挡。


✘    有部分浪费面积。


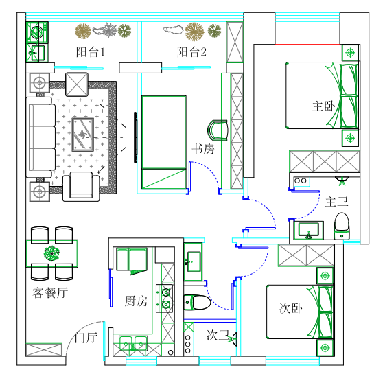
方案一

通透的开放式公区+舒适套卧


融侨滨江城美域111㎡


思路解析


1    联通整个阳台 6686官方版app,形成一个开阔明亮的观景区域。


2    一间次卧利用移门与阳台联通,增加采光,扩大了使用空间 6686官方版app


3    将主卫包进主卧 6686官方版app,提高生活品质,利用入墙柜增加收纳。


4    面积较小的次卧做多功能书房,打造了一个舒适静谧的办公区域 6686官方版app


5    次卫做干湿分离,方便多人同时使用 6686官方版app


效果图展示


融侨滨江城美域111㎡


融侨滨江城美域111㎡


方案二

观景双阳台+舒适套卧


融侨滨江城美域111㎡


思路解析


1    封闭式中餐厨房,利用可开可合的玻璃移门 6686官方版app,隔绝油烟不隔绝采光。


2    客厅的阳台与卧室的阳台分隔开来,利用移门与阳台联通,增加采光,扩大了使用空间。


3    将主卫包进主卧,提高生活品质;利用入墙柜增加收纳。


4    一间次卧做多功能书房,打造了一个舒适静谧的办公区域。


5    次卫做干湿分离,方便多人同时使用。


效果图展示


融侨滨江城美域111㎡


融侨滨江城美域111㎡


5#楼A1户型111㎡


融侨滨江城美域111㎡


△原始结构图


户型优点


✔    采光通风都很不错。


✔    户型功能区域划分清晰。


✔    拥有观景大阳台。


户型缺点


✘    一间卧室面积较小。


方案一

开阔空间,打开社交场景


融侨滨江城美域111㎡


思路解析


1    餐厅、客厅、阳台采用一体化设计,增大视觉空间,增加了互动性。


2    次卫采用干湿分离,提升卫生间的体验感。


3    一间面积较小的次卧纳入主卧,做步入式衣帽间,形成一个豪华套卧。


4    次卧连接阳台,在阳台做书桌和吊柜,打造学习办公区域。


效果图展示


融侨滨江城美域111㎡


融侨滨江城美域111㎡


融侨滨江城美域111㎡


方案二

实用三房,满足多人口家庭


融侨滨江城美域111㎡


思路解析


1    餐厅、客厅、阳台采用一体化设计,增大视觉空间,增加了互动性。


2    次卫采用干湿分离,提升卫生间的体验感。


3    主卧靠墙做一整排通顶柜,增加收纳;主卫包进主卧,形成便捷的套间。


4    次卧连接阳台,在阳台做书桌和吊柜,打造学习办公区域。


5    保留三房,满足多人口家庭居住需求。


效果图展示


融侨滨江城美域111㎡


融侨滨江城美域111㎡


3#楼C1户型128㎡


融侨滨江城美域128㎡


△原始结构图


户型优点


✔    每个空间通风采光较好。


✔    客厅功能区域空间较大,有利于舒适性的布置,增加使用性和趣味空间。


户型缺点


✘    布局不合理。


方案

打造社交化客厅+舒适套卧


融侨滨江城美域128㎡


思路解析


1    客厅与餐厅、阳台一体设计,提升视觉空间,增加了互动场所。封闭式中餐厨房,隔绝油烟。


2    主卧打造L型衣橱构建衣帽间,增加收纳的同时还划分了功能区。主卫纳入主卧,打造功能齐全的舒适套房。


3    一间次卧打造多功能书房,增设独立的学习、办公区域。


效果图展示


融侨滨江城美域128㎡


融侨滨江城美域128㎡


C2户型130㎡


融侨滨江城美域130㎡


△原始结构图


户型优点


✔    户型方正,采光通风都很不错。


✔    户型功能区域划分清晰,动静分离。


✔    拥有开阔的观景大阳台。


户型缺点


✘    过道狭长,有部分空间浪费。


✘    卫生间面积较小。


方案一

开阔互动公区+舒适三房


融侨滨江城美域130㎡


思路解析


1    客厅、餐厅与阳台联通,增大会客区域,提升大气视觉。


2    客厅整墙电视柜制造充足储存空间,视觉整洁大气。


3    主卫纳入主卧,利用入墙柜补充收纳。


4    次卧连接阳台,在阳台做书桌和吊柜,打造学习办公区域。


效果图展示


融侨滨江城美域130㎡

融侨滨江城美域130㎡


方案二

舒适三房,满足多人口家庭


融侨滨江城美域130㎡


思路解析


1    客厅、餐厅与阳台联通,增大会客区域,提升大气视觉。


2    客厅整墙电视柜制造充足储存空间,视觉整洁大气。


3    主卧面积向外借,两个卫生间合并为一间,增加主卧的使用面积,也解决单个卫生间较小的问题。


4    次卧连接阳台,在阳台做书桌和吊柜,打造学习办公区域。


效果图展示


融侨滨江城美域130㎡

融侨滨江城美域130㎡


6686官方版app -
"6686官方版app"
"6686官方版app" 预约设计师
海量行家, 抢订6686注册设计服务
每日前20名申请用户, 获3D装修设计图
推荐相关案例
6686注册获取同款设计方案
姓名*
楼盘*
电话*
*为了您的权益, 您的隐私将严格保密
6686官方版app - 预约成功
您已报名成功, 稍后会有客服人员联系您。 您的隐私将被严格保密。
关注二维码了解6686体育装修知识
联系我们
装修咨询电话 : 027-82411111
售后服务电话 : 027-82866788
公司地址 : 6686平台市江岸区澳门路232号金冠大厦
6686登录我们
友情链接 :
    66866686官方版app下载官方版-6686官方版app下载2025最新 页面版权所有 jingyu-design.cn

    算一算,您家装修需要花多少钱?

    知精准报价 避装修深坑 (6686官方版app)

    01/03

    选择您喜欢的风格

    • 现代轻奢

    • 现代美式

    • 北欧

    • 新中式

    • 欧式

    • 其他

    686官方版app - 算一算,您家装修要花多少钱?

    知精准报价 避装修深坑

    02/03

    选择房屋面积区间

    • 80-100㎡
    • 100-140㎡
    • 140-200㎡
    • 200-300㎡
    • 300㎡以上

    03/03 (6686官方版app)

    您的户型

    • 两居室

    • 三居室

    • 四居室

    • 五居室

    • 六居室

    算一算,您家装修要花多少钱?

    知精准报价 避装修深坑

    0%

    稍等片刻,您的报价正在生中......

    算一算,您家装修要花多少钱?

    知精准报价 避装修深坑

    您的完整报价已经生成

    报名成功享抢订优惠名额

    每日仅限前10名用户