24小时咨询电话
027-82411111
当前位置 : 首页 > 户型解析 > 融创临江府 98㎡-136㎡户型解析
融创临江府 98㎡-136㎡户型解析
"6686官方版app" 发布时间 : 2023-07-28 13:43
查看数 :


小区:融创临江府


户型:98㎡ 6686官方版app. 108㎡. 119㎡. 125㎡. 136㎡.


融创临江府


融创临江府拥有6686平台滨江土地上珍贵的生态资源——临江公园,和平公园,武九铁路公园(规划中)将项目三面环抱 6686官方版app,舒适宜居,同时项目周边以武商众圆广场,红坊里,吾行里等商业体组成的青山核心商圈,能够满足业主所有的生活起居和休闲娱乐的需求。


为了给融创临江府的业主带来更好的生活体验,澳华装饰的设计师全面解析建面98㎡-136㎡的户型方案,从居住者出发,从场景入手,平衡视觉效果与居住功能,扩展生活秩序 6686官方版app


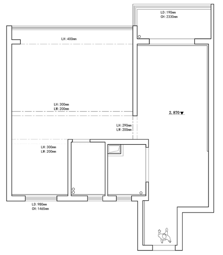
98㎡户型解析


融创临江府98㎡


△原始结构图


户型优点


✔    采光通风好。


✔    户型功能区域划分清晰。


✔    承重墙较少 6686官方版app,利于更改区域。


户型缺点


✘    飘窗区域较大 6686官方版app,空间容易造成浪费。


✘    卧室面积较小,缺少储物空间 6686官方版app


方案

通透的开放式公区+奢享套卧


融创临江府98㎡


思路解析


1    客厅与阳台联通,增大会客区域,提升大气视觉 6686官方版app,提高整体的流动性。


2    拆除飘窗,使主卧,书房空间增大 6686官方版app


3    一间次卧做衣帽间 6686官方版app,并将主卧和衣帽间联通,使室内光线明亮使用流动性更足。


4    卫生间及衣帽间利用z型墙体解决洗手盆放置问题。


效果图展示


融创临江府98㎡


融创临江府98㎡


108㎡户型解析


融创临江府108㎡


△原始结构图


户型优点


✔    采光通风都很不错。


✔    户型功能区域划分清晰。


✔    拥有观景大阳台。


户型缺点


✘    卫生间面积较小,活动受限 6686官方版app


方案

开阔通透空间,打开社交场景


融创临江府108㎡


思路解析


1    客厅与餐厅、阳台一体设计,打通了阳台和客厅的移门使空间更加的通透。


2    主卧打造L型衣帽间,增加收纳;浴室纳入主卧,打造功能齐全的舒适套房。


3    中餐封闭厨房,隔绝油烟;西厨区域操作空间很大,橱柜都做了封闭式收纳,处理食材空间及收纳空间都十分足够。


效果图展示


融创临江府108㎡


融创临江府108㎡


融创临江府108㎡


119㎡户型解析


融创临江府119㎡


△原始结构图


户型优点


✔    南北通透采光性好,通风好。


✔    客厅功能区域空间较大,有利于舒适性的布置,增加使用性和趣味空间。


✔    局部拆改较少,不影响房间结构。


✔    该户型结构方正,功能区域划分清晰。


户型缺点


✘    两个卧室需要重新划分,原结果柜子都比较少。


方案

舒适三房,满足三代同堂家庭


融创临江府119㎡


思路解析


1    客厅与餐厅、阳台一体设计,提升视觉空间,增加了互动场所。封闭式中餐厨房,隔绝油烟。


2    改动原始主卧衣柜嵌入式格局,增加两房衣柜的同时,扩大使用空间。


3    每个房间都有一组衣柜满足了收纳需求。


4    浴室纳入主卧,打造功能齐全的舒适套房。


效果图展示



融创临江府119㎡


融创临江府119㎡


融创临江府119㎡



125㎡户型解析


融创临江府125㎡


△原始结构图


户型优点


✔    户型方正,采光通风都很不错。


✔    户型功能区域划分清晰,动静分离。


✔    拥有开阔的观景大阳台。


户型缺点


✘    厨房狭长,活动受限。


✘    卫生间面积较小。


方案

豪华套卧+舒适三房


融创临江府125㎡


思路解析


1    客厅与阳台联通,增大会客区域,提升大气视觉。


2    客餐厨一体化设计,提升视觉空间的同时,考虑充足储存空间,增设整排入墙式餐边柜。


3    主卫纳入主卧,利用柜子打造L型衣帽间,形成私密、便捷的舒适套卧。


4    次卧做干湿分离,增加使用率;保留三间卧室,满足多人口家庭居住。


效果图展示


融创临江府125㎡


融创临江府125㎡


136㎡户型解析


融创临江府136㎡


△原始结构图


户型优点


✔    户型方正,采光通风都很不错。


✔    户型功能区域划分清晰,动静分离。


✔    拥有开阔的观景大阳台。


户型缺点


✘    厨房面积较小,活动受限。


方案

舒适三房+独立开阔书房


融创临江府136㎡


思路解析


1    客厅与阳台联通,增大会客区域,提升大气视觉。


2    客厅餐厅一体化设计,提升视觉空间的同时,打造多元生活场景,增加互动。


3    西厨区域操作空间很大,橱柜都做了封闭式收纳,处理食材空间及收纳空间都十分足够。


4    卫生间干湿分离,可以多人同时使用,防潮性好,并增加了收纳空间。


5    一间次卧做超开阔书房,增加储物,同时满足两人同时办公需求。


效果图展示



融创临江府136㎡


融创临江府136㎡


"6686官方版app"
"6686官方版app" 预约设计师
海量行家, 抢订6686注册设计服务
每日前20名申请用户, 获3D装修设计图
6686注册获取同款设计方案
姓名*
楼盘*
电话*
*为了您的权益, 您的隐私将严格保密
预约成功
您已报名成功, 稍后会有客服人员联系您。 您的隐私将被严格保密。
关注二维码了解6686体育装修知识
"6686官方版app" 联系我们
装修咨询电话 : 686官方版app - 027-82411111
"6686官方版app" 售后服务电话 : 027-82866788
公司地址 : 6686平台市江岸区澳门路232号金冠大厦
6686登录我们
友情链接 :
    66866686官方版app下载官方版-6686官方版app下载2025最新 页面版权所有 jingyu-design.cn

    算一算,您家装修需要花多少钱?

    知精准报价 避装修深坑 (6686官方版app)

    01/03

    选择您喜欢的风格

    • 现代轻奢

    • 现代美式

    • 北欧

    • 新中式

    • 欧式

    • 其他

    6686官方版app - 算一算,您家装修要花多少钱?

    知精准报价 避装修深坑

    "6686官方版app" 02/03

    选择房屋面积区间

    • 80-100㎡
    • 100-140㎡
    • 140-200㎡
    • 200-300㎡
    • 300㎡以上

    "6686官方版app" 03/03

    您的户型

    • 两居室

    • 三居室

    • 四居室

    • 五居室

    • 六居室

    6686官方版app - 算一算,您家装修要花多少钱?

    知精准报价 避装修深坑

    0%

    稍等片刻,您的报价正在生中......

    算一算,您家装修要花多少钱?

    知精准报价 避装修深坑

    您的完整报价已经生成 (6686官方版app)

    报名成功享抢订优惠名额

    每日仅限前10名用户