6686官方版app - 24小时咨询电话
027-82411111
当前位置 : 首页 > 户型解析 > 城投联投江南岸110㎡-235㎡户型解析
"6686官方版app" 城投联投江南岸110㎡-235㎡户型解析
发布时间 : 2023-07-22 11:40
查看数 :


小区:城投联投江南岸


户型:110㎡漫江月. 140㎡楚江开. 140㎡云栖处 6686官方版app. 140㎡千山外. 170㎡平野阔. 235㎡大江流.


城投联投江南岸


城投联投江南岸地处新二环滨江示范段,具备江景资源,交通,配套,规模等多重优势,集住宅,学校,酒店,商业等多样业态,外享60万方江滩公园,一线临江 6686官方版app,大美6686平台尽收眼底.


为了给城投联投江南岸的业主带来更好的生活体验 6686官方版app,澳华装饰的设计师全面解析建面110-235㎡的户型方案,从居住者出发,从场景入手,平衡视觉效果与居住功能,扩展生活秩序。


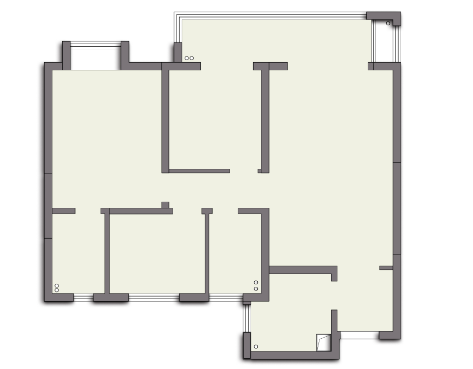
110㎡漫江月


城投联投江南岸110㎡


△原始结构图


户型优点


√    采光通风非常好。


√    户型功能区域划分清晰。


√    拥有超级观景大阳台。


户型缺点


×    生活阳台功能不清晰。


×    厨房和餐厅空间较小。


×    大框架剪力墙结构固定 6686官方版app,只能做小调整。


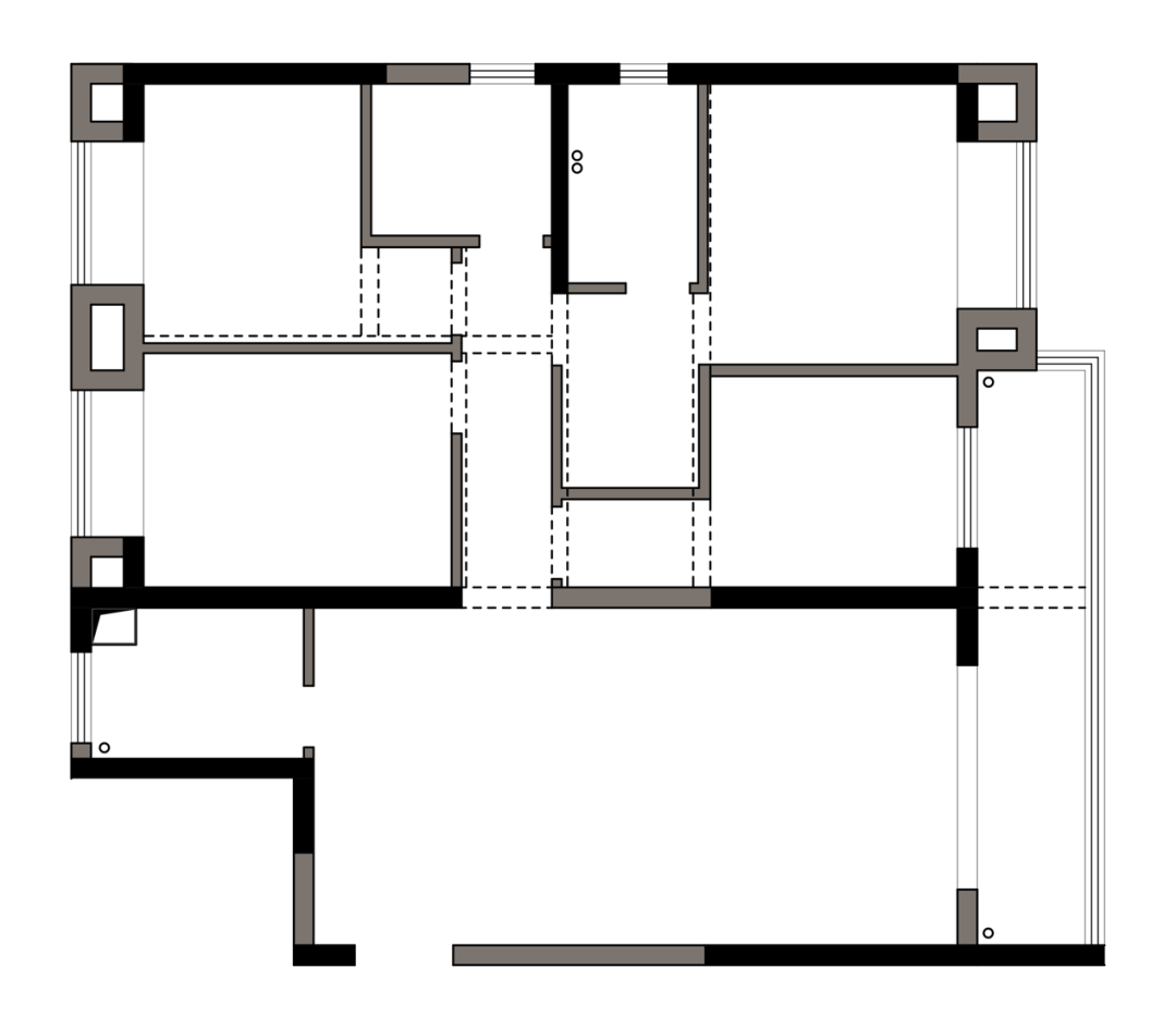
方案

舒适三房,满足多人口家庭


城投联投江南岸110㎡


思路解析


1    客厅与阳台联通,增大会客区域,提升大气视觉 6686官方版app


2    开放式厨房设计 6686官方版app,解决餐厨空间较小的问题。


3    主卫纳入主卧,与家人互不干扰 6686官方版app,提升生活质量。


4    保留三房 6686官方版app,满足多人口居住。


效果图展示


城投联投江南岸110㎡


140㎡楚江开


城投联投江南岸140㎡


△原始结构图


户型优点


√    户型整体采光 6686官方版app,通风都不错。


√    每个单独空间相对比较方正。


户型缺点


×    卧室整体面积偏小,缺少储物空间 6686官方版app


×    主卫面积偏大,会造成一定的空间浪费。


方案

舒适三房,满足多人口家庭


城投联投江南岸140㎡


思路解析


1    保留3个房间的设计布局,满足不同家庭成员的需求,留有一个房间做成多功能室或书房。


2    过道部分增加一组储物柜,缓解狭长过道的呆板,增加层次感。


3    保留长阳台的布局,方便区分生活和休闲的不同形式的需求。


效果图展示


城投联投江南岸140㎡


城投联投江南岸140㎡


140㎡千山外


城投联投江南岸140㎡


△原始结构图


户型优点


√    户型较方正,功能区域划分清晰。


√    有一个开阔明亮的大阳台。


户型缺点


×    次卧面积较小,影响居住体验。


×    厨房空间较小,难以满足当代人对于厨房电器的需求。


方案一

实用四房+开放式厨房


城投联投江南岸140㎡


思路解析


1    客餐厅阳台一体化设计,提升视觉空间,增加了互动场所。


2    开放式厨房设计,解决了厨房面积较小,光线较暗的问题。


3    主卫纳入主卧,形成私密、便捷的舒适套卧。


4    保留三间次卧,满足多人口家庭;增设储物间,满足收纳。


效果图展示


城投联投江南岸140㎡


城投联投江南岸140㎡


方案二

两间卧室联通,形成舒适套卧


城投联投江南岸140㎡


思路解析


1    客餐厅阳台一体化设计,提升视觉空间,增加了互动场所。


2    开放式厨房设计,解决了厨房面积较小,光线较暗的问题。


3    两间次卧打通,形成一个衣帽间+主卧+主卫的舒适套卧,打造高品质私人生活。


效果图展示


城投联投江南岸140㎡


城投联投江南岸140㎡


城投联投江南岸140㎡


140㎡云栖处


17.png


△原始结构图


户型优点


√    采光通风非常好。


√    户型功能区域划分清晰。


√    拥有观景大阳台。


户型缺点


×    厨房空间较小,难以满足当代人对于厨房电器的需求。


×    卧室尺寸不大。


方案一

舒适套卧,呵护高品质生活


城投联投江南岸140㎡


思路解析


1    打通阳台,使视野更开阔,增加空间的通透性。


2    优化储物空间,大的鞋柜与餐边柜以及衣柜大大满足日常储物所需。


3    长餐桌满足多口之家用餐需求。


4    做斜主卫墙体,保证主卧进出的开阔性。


效果图展示


城投联投江南岸140㎡

城投联投江南岸140㎡


方案二

舒适四房,满足多人口家庭


城投联投江南岸140㎡


思路解析


1    打通阳台,使视野更开阔,增加空间的通透性。


2    优化次卧室的使用空间,利用入墙柜增加收纳。


3    靠边放餐桌,保证动线的流畅度。


效果图展示


城投联投江南岸140㎡


城投联投江南岸140㎡


170㎡平野阔


城投联投江南岸170㎡


△原始结构图


户型优点


√    客餐厅面积较大,活动舒展。


√    拥有开阔的观景大阳台。


√    房间多,适宜多人口家庭。


户型缺点


×    餐厅部分面积较小,采光受限。


方案一

三房+三卫,呵护品质生活


城投联投江南岸170㎡


思路解析


1    入户靠墙做一排收纳柜,增加收纳。


2    客餐厅阳台都打通,空间开阔明亮。


3    餐厅借用书房面积,扩大餐厅使用面积,提供更大的互动空间。


4    书房纳入主卧,形成了一个集衣帽间、浴室、书房和睡眠区为一体的奢华套卧。


5    三间卫浴,家人使用可以互不干扰。


效果图展示


城投联投江南岸170㎡


城投联投江南岸170㎡


方案二

舒适三房+多功能空间


城投联投江南岸170㎡


思路解析


1    进门做玄关端景和收纳柜,增加入户仪式感。


2    玄关旁边还专门做了一个小储物间,增加收纳。


3    餐厅借用书房面积,扩大餐厅使用面积,提供更大的互动空间。


4    书房纳入主卧,形成了一个集衣帽间、浴室、书房和睡眠区为一体的奢华套卧。


5    三间卫浴,家人使用可以互不干扰。


效果图展示


城投联投江南岸170㎡


城投联投江南岸170㎡


235㎡大江流


城投联投江南岸235㎡


△原始结构图


户型优点


√    采光通风非常好。


√    户型功能区域划分清晰。


√    空间利用程度高。


户型缺点


×    生活阳台不清晰。


方案

去客厅化设计+开放式书房


城投联投江南岸235㎡


思路解析


1    客厅、餐厅采用一体化设计,增大视觉空间,增加了互动性。


2    沙发不靠墙,利用沙发做隔断做开放式书房,利用墙面打造整墙书柜。


3    各个空间都增设了储物空间,强化了收纳的功能。


效果图展示


城投联投江南岸235㎡


城投联投江南岸235㎡


(6686官方版app)
预约设计师
海量行家, 抢订6686注册设计服务
每日前20名申请用户, 获3D装修设计图
推荐相关案例
6686注册获取同款设计方案
姓名*
楼盘*
电话*
*为了您的权益, 您的隐私将严格保密
预约成功
您已报名成功, 稍后会有客服人员联系您。 您的隐私将被严格保密。
关注二维码了解6686体育装修知识
联系我们
装修咨询电话 : 027-82411111 (6686官方版app)
售后服务电话 : 027-82866788
6686官方版app - 公司地址 : 6686平台市江岸区澳门路232号金冠大厦
6686官方版app - 6686登录我们
友情链接 :
    66866686官方版app下载官方版-6686官方版app下载2025最新 页面版权所有 jingyu-design.cn

    "6686官方版app" 算一算,您家装修需要花多少钱?

    知精准报价 避装修深坑

    01/03

    选择您喜欢的风格

    • 现代轻奢

    • 现代美式

    • 北欧

    • 新中式

    • 欧式

    • 其他

    686官方版app - 算一算,您家装修要花多少钱?

    知精准报价 避装修深坑

    "6686官方版app" 686官方版app - 02/03

    选择房屋面积区间

    • 80-100㎡
    • 100-140㎡
    • 140-200㎡
    • 200-300㎡
    • 300㎡以上

    03/03

    您的户型 (6686官方版app)

    • 两居室

    • 三居室

    • 四居室

    • 五居室

    • 六居室

    算一算,您家装修要花多少钱?

    知精准报价 避装修深坑

    0%

    稍等片刻,您的报价正在生中......

    算一算,您家装修要花多少钱?

    知精准报价 避装修深坑

    您的完整报价已经生成 (6686官方版app)

    报名成功享抢订优惠名额

    每日仅限前10名用户