24小时咨询电话
027-82411111
当前位置 : 首页 > 户型解析 > ​城建信达后湖里85㎡-122㎡户型解析
​城建信达后湖里85㎡-122㎡户型解析
发布时间 : 2023-07-04 16:34
查看数 :


小区:城建信达后湖里


户型:85㎡. 104㎡ 6686官方版app. 106㎡. 120㎡. 122㎡.


城建信达后湖里


6686平台城建信达后湖里项目自带约3 6686官方版app,3万方商业,满足三代便捷生活体验。周边环境宜居,附近有梦湖公园、姑嫂树游园、星悦公园等多个公园,日常闲暇还可以随时陪同家人散步、游玩,闲适惬意。。


为了给城建信达后湖里的业主带来更好的生活体验,澳华装饰的设计师全面解析建面85㎡-122㎡的户型方案,从居住者出发,从场景入手,平衡视觉效果与居住功能,扩展生活秩序 6686官方版app


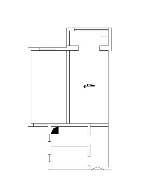
85㎡户型解析

城建信达后湖里85㎡


△原始结构图


户型优点


√    户型功能区域划分清晰。


√    拥有观景阳台。


户型缺点


×    入户过道狭长,空间容易造成浪费 6686官方版app


×    餐厅采光和通透性一般。


×    卧室面积较小 6686官方版app,缺少储物空间。


方案

舒适两房,满足三口之家居住 (6686官方版app)

城建信达后湖里85㎡


思路解析


1    入户处做一整排鞋柜,合理利用狭长的走道同时解决了一部分收纳问题 6686官方版app


2    客厅与餐厅一体设计,空间更加开阔通透,解决餐厅采光问题 6686官方版app


3    保留原始结构 6686官方版app,舒适两房满足三口之家居住。


效果图展示


城建信达后湖里85㎡


城建信达后湖里85㎡


104㎡户型解析


城建信达后湖里104㎡


△原始结构图


户型优点


√    采光通风都很不错。


√    户型功能区域划分清晰。


√    拥有观景大阳台。


户型缺点


×    卫生间位置需谨慎运用。


×    大框架剪力墙结构固定 6686官方版app,只能做小调整。


方案

舒适三房,满足多人口家庭 (6686官方版app)


城建信达后湖里104㎡


思路解析


1    客厅与餐厅,阳台一体设计,提升视觉空间,增加了互动场所,封闭式中餐厨房 6686官方版app,隔绝油烟。


2    主卧打造L型衣帽间,增加收纳;浴室纳入主卧,打造功能齐全的舒适套房。


3    次卫做干湿分离,方便多人同时使用。


4    保留三房,满足多人口家庭居住需求。


效果图展示


城建信达后湖里104㎡


城建信达后湖里104㎡


106㎡户型解析

城建信达后湖里106㎡


△原始结构图


户型优点


√    采光通风都很不错。


√    户型功能区域划分清晰。


√    拥有观景大阳台。


户型缺点


×    卫生间位置需谨慎运用。


×    大框架剪力墙结构固定,只能做小调整。


方案一

开放式布局+独立衣帽间


城建信达后湖里106㎡


思路解析


1    客厅与餐厅、阳台一体设计,提升视觉空间,增加了互动场所。封闭式中餐厨房,隔绝油烟。


2    将一间面积较小的次卧打造成衣帽间,做双一次型衣橱+悬浮化妆台。


3    次卫做干湿分离,方便多人同时使用。


4    浴室纳入主卧,打造功能齐全的舒适套房。


效果图展示


城建信达后湖里106㎡


城建信达后湖里106㎡


方案二

独立衣帽间+卧室对窗吧台


城建信达后湖里106㎡


思路解析


1    客厅与餐厅、阳台一体设计,提升视觉空间,增加了互动场所。封闭式中餐厨房,隔绝油烟。


2    将一间面积较小的次卧打造成衣帽间,做双一次型衣橱+悬浮化妆台。


3    次卫做干湿分离,方便多人同时使用。


4    浴室纳入主卧,打造功能齐全的舒适套房。


5    浴室纳入主卧,打造功能齐全的舒适套房。次卧利用开阔的阳台做窗边悬浮吧台,丰富生活场景。


效果图展示


城建信达后湖里106㎡


城建信达后湖里106㎡


120㎡户型解析 (6686官方版app)


城建信达后湖里120㎡


△原始结构图


户型优点


√    户型方正,采光通风都很不错。


√    户型功能区域划分清晰,动静分离。


√    拥有开阔的观景大阳台。


户型缺点


×    厨房较小,活动受限。


方案一

开放式布局+舒适套卧


城建信达后湖里120㎡


思路解析


1    客厅与阳台联通,增大会客区域,提升大气视觉。


2    客餐厅一体化设计,提升视觉空间的同时,考虑充足储存空间,增设整排入墙式餐边柜。


3    主卫纳入主卧,增设一字型衣帽间+梳妆台,形成私密、便捷的舒适套卧。


4    保留三间卧室,满足多人口家庭居住。


效果图展示


城建信达后湖里120㎡


城建信达后湖里120㎡


方案二

舒适三房,满足多人口家庭 (6686官方版app)


城建信达后湖里120㎡


思路解析


1    客厅与阳台联通,增大会客区域,提升大气视觉。


2    客餐厅一体化设计,提升视觉空间的同时,考虑充足储存空间,增设整排入墙式餐边柜。


3    更改厨房开门方位,使与餐厅的动线更加连贯。


4    主卫纳入主卧,增设一字型衣帽间+梳妆台,形成私密、便捷的舒适套卧。


5    保留三间卧室,满足多人口家庭居住。


效果图展示


城建信达后湖里120㎡

城建信达后湖里120㎡


122㎡户型解析

城建信达后湖里122㎡


△原始结构图


户型优点


√    户型方正,采光通风都很不错。


√    户型功能区域划分清晰,动静分离。


√    拥有开阔的观景大阳台。


户型缺点


×    厨房较小,活动受限。


6686官方版app - 方案一

超强储物+开放式布局 (6686官方版app)


城建信达后湖里122㎡


思路解析


1    客厅与阳台联通,增大会客区域,提升大气视觉。


2    客厅餐厅一体化设计,提升视觉空间的同时,考虑充足存储空间,一整排电视柜连接餐边柜,超强储物功能丰富多彩。


3    主卧套间设计,并利用柜体做L型衣帽间;主卫做干湿分离,提升使用体验。


4    次卫做干湿分离,方便多人同时使用。


5    一间次卧利用阳台做办公区,丰富卧室功能。


效果图展示


城建信达后湖里122㎡


城建信达后湖里122㎡


方案二

超开阔观景阳台+奢华套卧


城建信达后湖里122㎡


思路解析


1    客厅与阳台联通,增大会客区域,提升大气视觉。


2    客厅餐厅一体化设计,提升视觉空间的同时,考虑充足存储空间,一整排电视柜连接餐边柜,超强储物,功能丰富多彩。


3    主卧套间设计,并利用柜体做L型衣帽间;主卫做干湿分离,提升使用体验。


4    次卫做干湿分离,方便多人同时使用。


5    联通观景大阳台,增加空间的采光和通风,提升观景体验。


效果图展示


城建信达后湖里122㎡


城建信达后湖里122㎡


(6686官方版app)
6686官方版app - 预约设计师
海量行家, 抢订6686注册设计服务
每日前20名申请用户, 获3D装修设计图
推荐相关案例
6686注册获取同款设计方案
姓名*
楼盘*
电话*
*为了您的权益, 您的隐私将严格保密
预约成功 (6686官方版app)
您已报名成功, 稍后会有客服人员联系您。 您的隐私将被严格保密。
关注二维码了解6686体育装修知识
联系我们
装修咨询电话 : 027-82411111
售后服务电话 : 027-82866788 (6686官方版app)
"6686官方版app" 公司地址 : 6686平台市江岸区澳门路232号金冠大厦
6686登录我们
友情链接 :
    66866686官方版app下载官方版-6686官方版app下载2025最新 页面版权所有 jingyu-design.cn

    686官方版app - 算一算,您家装修需要花多少钱?

    知精准报价 避装修深坑

    01/03

    选择您喜欢的风格

    • 现代轻奢

    • 现代美式

    • 北欧

    • 新中式

    • 欧式

    • 其他

    算一算,您家装修要花多少钱? (6686官方版app)

    知精准报价 避装修深坑

    02/03

    选择房屋面积区间

    • 80-100㎡
    • 100-140㎡
    • 140-200㎡
    • 200-300㎡
    • 300㎡以上

    "6686官方版app" 03/03

    您的户型

    • 两居室

    • 三居室

    • 四居室

    • 五居室

    • 六居室

    算一算,您家装修要花多少钱?

    知精准报价 避装修深坑 (6686官方版app)

    0%

    稍等片刻,您的报价正在生中......

    算一算,您家装修要花多少钱?

    知精准报价 避装修深坑

    您的完整报价已经生成

    报名成功享抢订优惠名额

    每日仅限前10名用户