24小时咨询电话
027-82411111
当前位置 : 首页 > 户型解析 > 融创和平中心89㎡-125㎡户型解析
融创和平中心89㎡-125㎡户型解析
发布时间 : 2023-10-06 11:39
查看数 :


小区:融创和平中心


户型:89㎡. 102㎡. 106㎡. 118㎡. 124㎡. 125㎡ 6686官方版app.


融创和平中心


————————


融创和平中心占据青山核心段 6686官方版app,位于和平大道主轴上,项目紧邻印象城,出行便捷,更享受周边资源聚合带来的强劲势能,同时,该项目毗邻和平公园,让你不必奔赴远方,在家门口即可揽尽四季风华。


为了给融创和平中心的业主带来更好的生活体验,澳华装饰的设计师全面解析建面89㎡-125㎡的户型方案,从居住者出发,从场景入手 6686官方版app,平衡视觉效果与居住功能,扩展生活秩序。


————————


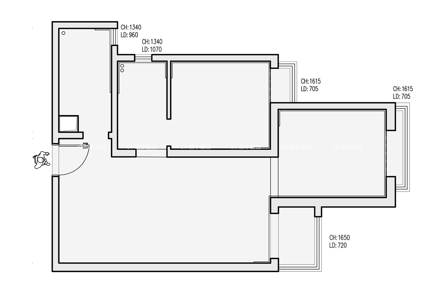
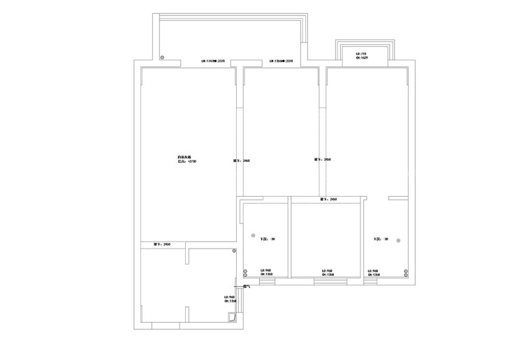
89㎡户型解析


融创和平中心89㎡


户型优点:


1、户型方正,南北通透


2、南向卧室,采光优越


3、客餐厅相连,视野更佳


户型缺点:


1,厨房相对较小 6686官方版app,冰箱太占空间,操作受限.


2,阳台太小 6686官方版app,影响室内采光,空间利用率不高.


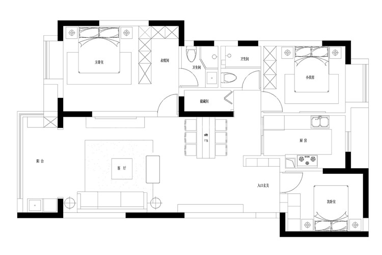
方案一

开阔通透公区+舒适双房


融创和平中心89㎡


思路解析


1,客厅与阳台联通,提升室内采光,同时将晾晒与休闲结合 6686官方版app.


2,厨房L型布局,将冰箱外置 6686官方版app,使操作台面更充足,烹饪更舒心.


3,卫生间做三分离设计,各功能区互不干扰 6686官方版app,实用性更强.


4、保留两间卧室,满足基本休憩需求


效果图展示


融创和平中心89㎡


融创和平中心89㎡


方案二

开阔通透公区+多功能次卧


融创和平中心89㎡


思路解析


1 6686官方版app,客厅与阳台联通,提升室内采光,同时将晾晒与休闲结合.


2 6686官方版app,厨房L型布局,将冰箱外置,使操作台面更充足,烹饪更舒心.


3、卫生间三分离设计,各功能区互不干扰,实用性更强


4、次卧变换床的布置方式,兼顾休憩、收纳与学习功能


效果图展示


融创和平中心89㎡


融创和平中心89㎡



————————


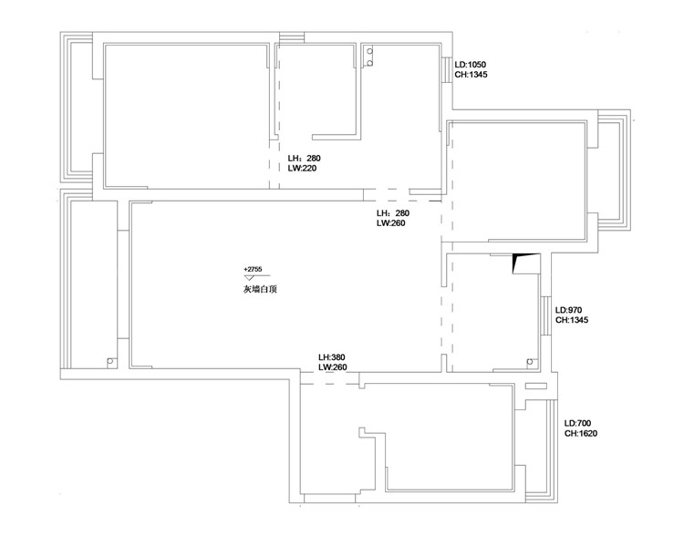
102㎡户型解析


融创和平中心102㎡


户型优点:


1、南北通透,采光甚佳


2、动静分离,功能区域划分清晰


3、南向开间约5.2m阔境观景大阳台


户型缺点:


1、收纳空间不多


方案

开阔通透公区+舒适三房


融创和平中心102㎡


思路解析


1、客厅与阳台联通,扩大公区面积,同时将晾晒与休闲结合


2、入户定制玄关柜衔接餐边柜、电视背景墙、储物柜,兼顾美观与实用


3、公共卫生间三分离设计,各功能区互不干扰,实用性更强


4、主卧套房设计,预留独立卫浴、衣帽间空间,尊享品质生活


5、保留三间卧室,满足多人口家庭居住需求


效果图展示


融创和平中心102㎡


融创和平中心102㎡


融创和平中心102㎡


————————


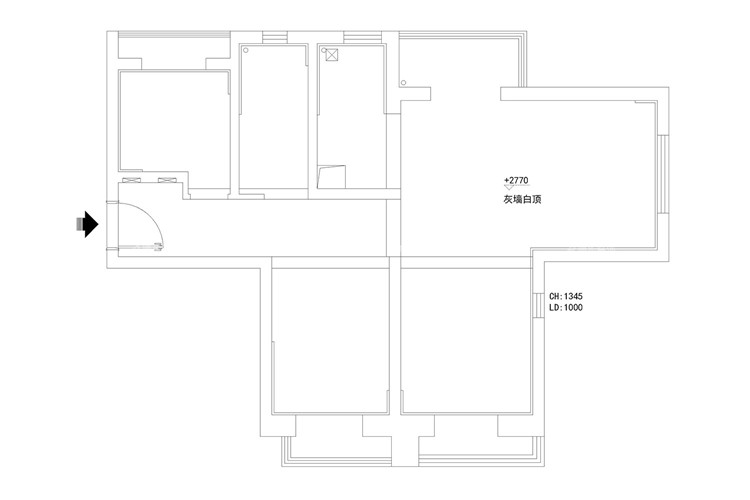
106㎡户型解析


融创和平中心106㎡


户型优点:


1、格局方正,动静分离


2、约6.3m横厅,尺度开阔


3、南向双卧室,采光优越


户型缺点:


1、卫生间较大,空间有些许浪费


2、厨房空间小,放不下双开门冰箱


方案

开放式格局,打造开阔互动公区


融创和平中心106㎡


思路解析


1、卫生间干湿分离,提前预留洗衣机位置,空间利用率更高


2、开放式厨房,打造客餐厨一体,冰箱置于阳台,以奢阔空间尺度,加强功能实用性


3、南向卧室一间作为主卧,一间作为儿童房,儿童房增设书柜、书桌,兼顾学习功能


4、预留一间多功能房,飘窗拆除定制悬浮书桌,沿着墙体定制两组储物柜,增加收纳


效果图展示


融创和平中心106㎡


融创和平中心106㎡


————————


118㎡户型解析


融创和平中心118㎡


户型优点:


1、格局通透,采光极佳


2、户型功能区域划分清晰


3、南北卧室动线互不打扰


户型缺点:


1、餐厨空间相对较小


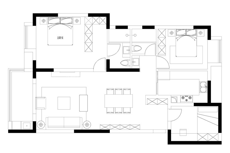
方案一

舒适三房,满足多人口家庭


融创和平中心118㎡


思路解析


1、客厅与阳台联通,提升室内采光,同时将晾晒与休闲结合


2、U型厨房设计,连接餐厅、客厅,营造流畅的生活动线


3、餐厅采用抽拉式餐桌,可开可合,增加空间的通透性


4、南向主卧套房,配备独立卫浴,还能透过宽幕飘窗,欣赏绿意美景


5、保留三间卧室,满足多人口家庭居住需求


效果图展示


融创和平中心118㎡


融创和平中心118㎡


融创和平中心118㎡



方案二

去客厅化,解锁家居生活新模式


融创和平中心118㎡


思路解析


1、打破传统客厅设计,打造集就餐、休闲、办公等功能于一体的复合型公区


2、设计开放式厨房,进一步扩大公区;定制整墙餐边柜,有效提升整体收纳


3、主卫拆除并入主卧,实现空间最大化;增设衣柜+梳妆台,尊享品质生活


4、公卫三分离设计,将洗手台外置,各功能区互不干扰,使用更便捷


5、保留两房,预留一间多功能房,满足家庭不同阶段的生活需求


效果图展示


融创和平中心118㎡


融创和平中心118㎡


————————


124㎡户型解析


融创和平中心124㎡


户型优点:


1、南北通透,生活尺度收放自如


2、开间约4.5m阔景阳台,宽境客厅采光无限


3、南北卧室动线互不打扰,三卧室均带飘窗


户型缺点:


1、厨房空间较小,活动受限


2、主卫面积大,空间有所浪费


3、次卧空间小,收纳稍显不足


方案

舒适三房+超强收纳


融创和平中心124㎡


思路解析


1、阳台独立,边侧打造洗衣区,晾晒休闲两不误


2、厨房U型布局,冰箱内嵌,科学动线助力高效烹饪


3、餐岛一体设计,补充厨房功能,满足多元生活需求


4、主卫一分为二,部分改造成杂物间,提升整体收纳


5、女儿房借用部分书房空间,于床尾增设嵌入式衣柜


效果图展示


融创和平中心124㎡


融创和平中心124㎡



————————


125㎡户型解析


融创和平中心125㎡


户型优点:


1、南北通透,功能区域划分清晰


2、南向奢阔主卧,阔境观景大阳台


3、三个房间完全独立分开,私密性好


户型缺点:


1、主卫面积较大,空间有些许浪费


方案一

舒适三房,满足多人口家庭


融创和平中心125㎡


思路解析


1、入户打造玄关落尘区,阻隔灰尘带入室内


2、阳台独立,边侧打造洗衣区,晾晒休闲两不误


3、全功能主卧,配备独立卫浴、独立衣帽间


4、次卧兼顾收纳、学习、休憩功能,满足多元生活需求


效果图展示


融创和平中心125㎡


融创和平中心125㎡



方案二

舒适三房+超强收纳


融创和平中心125㎡


思路解析


1、入户打造玄关落尘区,借用次卧空间增设一组鞋柜


2、客厅与阳台联通,扩大公区,将晾晒与休闲功能结合


3、全功能主卧,配备独立卫浴、衣帽间,尊享品质生活


4、缩减卫生间空间,规划独立储物间,提升整体收纳


效果图展示


融创和平中心125㎡


融创和平中心125㎡




方案三

舒适两房+多功能房


融创和平中心125㎡


思路解析


1、入户打造玄关落尘区,借用书房空间增设一组鞋柜


2、客厅与阳台联通,扩大公区,将晾晒与休闲功能结合


3、全功能主卧,配备独立卫浴、衣帽间,尊享品质生活


4、缩减卫生间空间,规划独立储物间,提升整体收纳


5、预留一间多功能房,兼顾办公、学习、收纳等多种需求


效果图展示


融创和平中心125㎡


融创和平中心125㎡


融创和平中心125㎡

(6686官方版app)
预约设计师
海量行家, 抢订6686注册设计服务
每日前20名申请用户, 获3D装修设计图
推荐相关案例
6686注册获取同款设计方案
姓名*
楼盘*
电话*
*为了您的权益, 您的隐私将严格保密
预约成功
您已报名成功, 稍后会有客服人员联系您。 您的隐私将被严格保密。
关注二维码了解6686体育装修知识
"6686官方版app" 联系我们
装修咨询电话 : 027-82411111
"6686官方版app" 售后服务电话 : 027-82866788
"6686官方版app" 公司地址 : 6686平台市江岸区澳门路232号金冠大厦
6686登录我们
友情链接 :
    66866686官方版app下载官方版-6686官方版app下载2025最新 页面版权所有 jingyu-design.cn

    算一算,您家装修需要花多少钱?

    知精准报价 避装修深坑

    01/03

    选择您喜欢的风格

    • 现代轻奢

    • 现代美式

    • 北欧

    • 新中式

    • 欧式

    • 其他

    算一算,您家装修要花多少钱?

    知精准报价 避装修深坑

    "6686官方版app" 02/03

    选择房屋面积区间

    • 80-100㎡
    • 100-140㎡
    • 140-200㎡
    • 200-300㎡
    • 300㎡以上

    03/03 (6686官方版app)

    您的户型

    • 两居室

    • 三居室

    • 四居室

    • 五居室

    • 六居室

    算一算,您家装修要花多少钱?

    知精准报价 避装修深坑

    0%

    稍等片刻,您的报价正在生中......

    算一算,您家装修要花多少钱?

    知精准报价 避装修深坑

    "6686官方版app" 您的完整报价已经生成

    报名成功享抢订优惠名额

    每日仅限前10名用户