24小时咨询电话
027-82411111
当前位置 : 首页 > 户型解析 > 华发中城荟中央首府105㎡-168㎡户型全解析
华发中城荟中央首府105㎡-168㎡户型全解析
发布时间 : 2023-03-11 10:02
查看数 :


小区:华发中城荟中央首府


户型:105㎡. 120㎡. 138㎡. 142㎡ 6686官方版app. 168㎡.



111010020995.jpg


华发中城荟二期中央首府采用商住分离的城市综合体规划布局,既能便捷享受综合体配套高端商业,又很好的规避了商业人流的干扰 6686官方版app,形成了集居住,办公,商业,休闲为一体的最具活力和最高价值的城市新地标。


为了给华发中央首府的业主带来更好的生活体验,澳华装饰的设计师全面解析建面105-168㎡的户型方案,从居住者出发,从场景入手,平衡视觉效果与居住功能,扩展生活秩序 6686官方版app


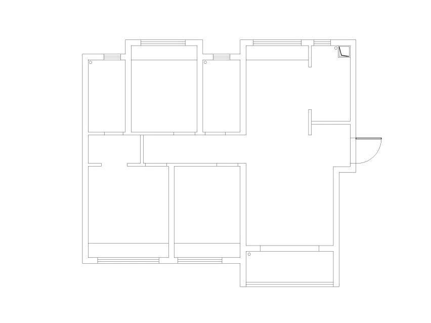
105㎡户型解析


111009320447.png


△原始结构图


户型优点


√    客厅采光好,通风好,空间明亮通透 6686官方版app


√    客厅和主卧面积较大 6686官方版app,空间开阔。


√    过道较少 6686官方版app,空间利用率高。


户型缺点


×    厨房和餐厅面积较小,活动范围有限 6686官方版app


×    一间次卧面积较小,收纳空间不足 6686官方版app


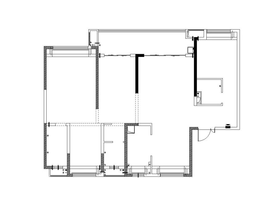
方案


开放式厨房+岛台,释放空间


111011310124.jpg


思路解析


1    门厅设置玄关,很好的阻挡了入户视线,靠墙设置玄关柜 6686官方版app,增加收纳。


2    阳台与客厅打通,增大视觉空间以及亮度 6686官方版app


3    开放式厨房设计,释放空间。


4    餐厅设置岛台+水槽,布局新颖,功能便捷。


5    主卫和最小的房间纳入主卧做衣帽间,形成舒适套卧,增加收纳,极大提高生活品质。


效果图展示


111012030929.jpg


111012030604.jpg


120㎡户型解析


111013090289.jpg


△原始结构图


户型优点


√    户型方正,采光和通风都较好。


√    功能区域划分清楚。


√    三间卧室面积大小均匀。


√    客厅和餐厅面积较大,空间开阔。


户型缺点


×    厨房面积较小,活动受限。


方案


开放式厨餐厅+舒适三房


111014140628.png


思路解析


1    开放式厨房设计,释放空间,解决厨房较小的问题。


2    厨房与餐厅处在一个空间,动线便捷,操作方便。


3    保留三房,满足多人口家庭需求。


4    主卫和杂物间纳入主卧,形成一个小型衣帽间,增加收纳空间。


效果图展示


111014450806.jpg


111014450825.jpg


138㎡户型解析


111015400081.png


△原始结构图


户型优点


√    户型方正,采光通风都很不错。


√    四房两厅,能够满足一家五口的居住需求。


√    户型功能区域划分清楚。


户型缺点


×    厨房面积较小,活动受限。


×    次卧面积较小。


方案


餐厨一体+独立衣帽间


111016590597.png


思路解析


1    客厅与阳台打通,增大视觉空间以及亮度。


2    厨房与餐厅打通,优化后的两个空间形成环形动线,空间相互借用形成餐厨一体。让原来无法实现的岛台,电器高柜,超大的餐厨储物量得以实现。


3    单独把北面最小的房间拿出来做衣帽间,实现收纳便捷。


4    儿童房利用了原有的飘窗的位子,设置睡眠区、学习区和储物区。从小让宝宝有个独立的空间,教会他尊重与被尊重。


效果图展示


111017410988.jpg


111017410591.jpg


142㎡户型解析


111018230684.jpg


△原始结构图


户型优点


√    采光通风都很不错。


√    户型功能区域划分清晰。


√    拥有开阔的观景大阳台。


√    四房两厅,能够满足多人口家庭的居住需求。


户型缺点


×    北面房间位置不合适独立运用。


×    大框架剪力墙结构固定,只能做小调整。


方案


餐厨一体+多动能房


111019180071.jpg


思路解析


1    客厅与阳台联通,增大会客区域,提升大气视觉。


2    餐厅厨房一体化设计,提升视觉空间的同时,考虑充足存储空间,并且打造了岛台及对窗吧台,功能丰富多彩。


3    北面卧室独立分区,改造一个功能型书房,加一个小孩房或者客卧营造豪华舒适的实用空间。


效果图展示


111020000027.png


111020000022.png


111020000035.jpg


111020000040.jpg


168㎡户型解析


111021070425.jpg


△原始结构图


户型优点


√    采光和通风非常好,空间明亮通透。


√    户型功能区域划分清晰。


√    拥有开阔的大阳台。


户型缺点


×    厨房区域空间太小,活动受限。


×    其中一个卫生间无采光。


×    卧室区域的收纳分配不合理。


×    公共区域划分不合理。


方案


主卧套房+开放式阳台


111022070523.jpg


思路解析


1    主卧做了套房,放大整个主卧的空间,尽享舒适便捷的私人空间。


2    保留两间次卧,满足多人口家庭需求。


3    开放式的阳台与客厅的组合方式,增加了室内外的空间的互动。


效果图展示


111022540162.jpg


111022540898.jpg

"6686官方版app"
"6686官方版app" 预约设计师
海量行家, 抢订6686注册设计服务
每日前20名申请用户, 获3D装修设计图
686官方版app - 推荐相关案例
6686注册获取同款设计方案
姓名*
楼盘*
电话*
*为了您的权益, 您的隐私将严格保密
6686官方版app - 预约成功
您已报名成功, 稍后会有客服人员联系您。 您的隐私将被严格保密。
关注二维码了解6686体育装修知识
6686官方版app - 联系我们
装修咨询电话 : 027-82411111
售后服务电话 : 027-82866788
公司地址 : 6686平台市江岸区澳门路232号金冠大厦
6686登录我们
"6686官方版app" 友情链接 :
    66866686官方版app下载官方版-6686官方版app下载2025最新 页面版权所有 jingyu-design.cn

    686官方版app - 算一算,您家装修需要花多少钱?

    知精准报价 避装修深坑

    01/03 (6686官方版app)

    选择您喜欢的风格

    • 现代轻奢

    • 现代美式

    • 北欧

    • 新中式

    • 欧式

    • 其他

    算一算,您家装修要花多少钱?

    知精准报价 避装修深坑

    686官方版app - 02/03

    选择房屋面积区间

    • 80-100㎡
    • 100-140㎡
    • 140-200㎡
    • 200-300㎡
    • 300㎡以上

    "6686官方版app" 03/03

    您的户型

    • 两居室

    • 三居室

    • 四居室

    • 五居室

    • 六居室

    算一算,您家装修要花多少钱?

    知精准报价 避装修深坑

    0%

    稍等片刻,您的报价正在生中......

    6686官方版app - 算一算,您家装修要花多少钱?

    知精准报价 避装修深坑

    您的完整报价已经生成

    报名成功享抢订优惠名额

    每日仅限前10名用户