24小时咨询电话
027-82411111
当前位置 : 首页 > 户型解析 > 融侨滨江城天域118㎡-181㎡户型全解析
融侨滨江城天域118㎡-181㎡户型全解析
发布时间 : 2023-03-10 16:29
查看数 :


小区:融侨滨江城天域


户型:118㎡. 128㎡. 133㎡. 138㎡. 181㎡ 6686官方版app.


融侨滨江城天域,6686平台装修,6686官方版app,6686平台室内设计


融侨滨江城天域雄踞武昌滨江商务区,长江主轴黄金地段,是集高端住宅,5A甲级写字楼,购物中心,星级酒店等多种业态为一体的都会封面之作 6686官方版app


为了给融侨滨江城天域的业主带来更好的生活体验,澳华装饰的设计师全面解析建面118-181㎡的户型方案,从居住者出发,从场景入手,平衡视觉效果与居住功能,扩展生活秩序 6686官方版app


118㎡户型解析


融侨滨江城天域,6686平台装修,6686官方版app,6686平台室内设计

△原始结构图


户型优点


√    采光通风都很不错。


√    功能区划分清晰 6686官方版app,动线合理。


√    超大阳台可分区域设计。


户型缺点


×    厨房较小 6686官方版app,难以满足当代人对于厨房功能的需求。


×    一间次卧面积较小。


方案


专设健身区,享健康品质生活


融侨滨江城天域,6686平台装修,6686官方版app,6686平台室内设计


思路解析


1    客厅阳台做了联通 6686官方版app,视野采光好。


2    餐厅厨房半开放式,增设西厨,提升视觉空间的同时 6686官方版app,创造了充足存储空间。


3    将其中一间次卧的非承重墙推掉,打造一间开阔 6686官方版app,通透的健身区域。


4    扩大卫生间面积,做干湿分离,提高生活品质,取消掉另外的一个卫生间,补充多功能房的空间 6686官方版app


效果图展示


融侨滨江城天域,6686平台装修,6686官方版app,6686平台室内设计


融侨滨江城天域,6686平台装修,6686官方版app,6686平台室内设计


融侨滨江城天域,6686平台装修,6686官方版app,6686平台室内设计


128㎡户型解析


融侨滨江城天域,6686平台装修,6686官方版app,6686平台室内设计


△原始结构图


户型优点


√    大阳台采光通风好。


√    户型功能区域划分清晰。


√    空间利用程度高。


户型缺点


×    餐厅空间小,活动比较局限 6686官方版app


×    主卧面积较小,收纳不充足。


方案一


独立书房+舒适套卧


融侨滨江城天域,6686平台装修,6686官方版app,6686平台室内设计


思路解析


1    客厅与阳台联通,增大会客区域。


2    独立厨房设计,符合中式做饭环境,隔绝油烟。


3    设置独立书房,享舒适静谧的办公空间。


4    主卧设L型衣柜,形成一个精巧的衣帽间。另外将主卫包进主卧,提高生活便捷程度。


效果图展示


融侨滨江城天域,6686平台装修,6686官方版app,6686平台室内设计


融侨滨江城天域,6686平台装修,6686官方版app,6686平台室内设计


方案二


舒适三房,多人口家庭优选


融侨滨江城天域,6686平台装修,6686官方版app,6686平台室内设计


思路解析


1    客厅与阳台联通,增大会客区域。


2    独立厨房设计,符合中式做饭环境,隔绝油烟。


3    设置榻榻米房,增加收纳,满足多人口家庭需求。


4    主卧设L型衣柜,形成一个精巧的衣帽间。另外将主卫包进主卧,提高生活便捷程度。


效果图展示


融侨滨江城天域,6686平台装修,6686官方版app,6686平台室内设计


融侨滨江城天域,6686平台装修,6686官方版app,6686平台室内设计


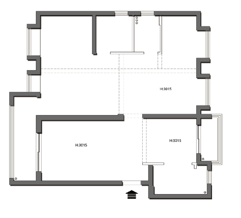
133㎡户型解析


融侨滨江城天域,6686平台装修,6686官方版app,6686平台室内设计


△原始结构图


户型优点


√    采光通风非常好。


√    户型功能区域划分清晰。


√    拥有超级观景大阳台。


户型缺点


×    生活阳台不清晰。


×    大框架剪力墙结构固定,只能做小调整。


方案


奢华套卧+U字形开放式厨房


融侨滨江城天域,6686平台装修,6686官方版app,6686平台室内设计


思路解析


1    客厅阳台打通,增大视觉空间。


2    厨放与餐厅开放式一体设计,岛台的加入形成了一个U字形的操作空间,增加一家人的亲密互动。


3    一间次卧和主卫纳入主卧,并利用柜体隔出一个步入式衣帽间和一间书房,形成了一个功能强大、空间开阔的主卧套房。


效果图展示


融侨滨江城天域,6686平台装修,6686官方版app,6686平台室内设计


融侨滨江城天域,6686平台装修,6686官方版app,6686平台室内设计


138㎡户型解析


融侨滨江城天域,6686平台装修,6686官方版app,6686平台室内设计


△原始结构图


户型优点


√    客厅、餐厅采光好,通风好,空间明亮通透。


√    四房两卫,户型功能区域划分清晰。


√    方正空间南北通透。


户型缺点


×    北面房间空间较小。


×    入户面积较小,收纳空间有限


方案


实用四房+大气开阔的公区


融侨滨江城天域,6686平台装修,6686官方版app,6686平台室内设计


思路解析


1    餐厅与阳台联通,增加用餐空间,提升大气视觉。


2    阳台融入客厅,让空间更宽敞,视野更开阔。


3    保留四房,满足多人口家庭的居住需求。


4    主卫纳入主卧,形成一个便携舒适的套间。


效果图展示


融侨滨江城天域,6686平台装修,6686官方版app,6686平台室内设计


融侨滨江城天域,6686平台装修,6686官方版app,6686平台室内设计


181㎡户型解析


融侨滨江城天域,6686平台装修,6686官方版app,6686平台室内设计


△原始结构图


户型优点


√    南北通透采光性好,通风好。


√    客餐厅功能区域空间较大,有利于舒适性的布置,增加使用率和趣味空间。


√    室内墙体较少,布局灵活。


√    户型功能区域划分清晰。


户型缺点


×    小阳台作用不大,易空间浪费。


方案一


奢华套卧+双人办公区


融侨滨江城天域,6686平台装修,6686官方版app,6686平台室内设计


思路解析


1    部分阳台与客餐厅联通,增大会客区域,提升大气视觉。


2    利用空间布局使得主卧门不再正对过道,解决风水难题。


3    主卧设L型衣柜,形成一个精巧的衣帽间。另外将主卫包进主卧,放置浴缸,提高生活品质。


4    面积较小的次卧做书房,打造了一个舒适静谧的双人办公区域。


5    一间次卧将部分阳台面积纳入,扩大了使用空间。


效果图展示


融侨滨江城天域,6686平台装修,6686官方版app,6686平台室内设计


融侨滨江城天域,6686平台装修,6686官方版app,6686平台室内设计


融侨滨江城天域,6686平台装修,6686官方版app,6686平台室内设计


方案二


奢华套卧+独立书房


融侨滨江城天域,6686平台装修,6686官方版app,6686平台室内设计


思路解析


1    部分阳台与客餐厅联通,增大会客区域,提升大气视觉。


2    利用空间布局使得主卧门不再正对过道,解决风水难题。


3    主卧设L型衣柜,形成一个精巧的衣帽间。另外将主卫包进主卧,放置浴缸,提高生活品质。


4    面积较小的次卧做书房,打造了一个舒适静谧的双人办公区域。


效果图展示


融侨滨江城天域,6686平台装修,6686官方版app,6686平台室内设计


融侨滨江城天域,6686平台装修,6686官方版app,6686平台室内设计

"6686官方版app"
预约设计师 (6686官方版app)
海量行家, 抢订6686注册设计服务
每日前20名申请用户, 获3D装修设计图
推荐相关案例
6686注册获取同款设计方案
姓名*
楼盘*
电话*
*为了您的权益, 您的隐私将严格保密
"6686官方版app" 预约成功
您已报名成功, 稍后会有客服人员联系您。 您的隐私将被严格保密。
关注二维码了解6686体育装修知识
6686登录我们 (6686官方版app)
澳华历程
官方微博
联系我们
装修咨询电话 : 686官方版app - 027-82411111
售后服务电话 : 027-82866788
公司地址 : 6686平台市江岸区澳门路232号金冠大厦 (6686官方版app)
6686登录我们
友情链接 :
    66866686官方版app下载官方版-6686官方版app下载2025最新 页面版权所有 jingyu-design.cn

    "6686官方版app" 算一算,您家装修需要花多少钱?

    知精准报价 避装修深坑

    "6686官方版app" 01/03

    选择您喜欢的风格

    • 现代轻奢

    • 现代美式

    • 北欧

    • 新中式

    • 欧式

    • 其他

    686官方版app - 算一算,您家装修要花多少钱?

    知精准报价 避装修深坑

    "6686官方版app" 02/03

    选择房屋面积区间

    • 80-100㎡
    • 100-140㎡
    • 140-200㎡
    • 200-300㎡
    • 300㎡以上

    03/03

    您的户型

    • 两居室

    • 三居室

    • 四居室

    • 五居室

    • 六居室

    686官方版app - 算一算,您家装修要花多少钱?

    知精准报价 避装修深坑

    0%

    稍等片刻,您的报价正在生中......

    算一算,您家装修要花多少钱?

    知精准报价 避装修深坑

    6686官方版app - 您的完整报价已经生成

    报名成功享抢订优惠名额

    每日仅限前10名用户