24小时咨询电话
027-82411111
当前位置 : 首页 > 户型解析 > ​华侨城欢乐天际106㎡-140㎡户型全解析
"6686官方版app" ​华侨城欢乐天际106㎡-140㎡户型全解析
发布时间 : 2023-03-07 10:57 (6686官方版app)
查看数 :

小区:华侨城欢乐天际


户型:106㎡ 6686官方版app. 116㎡. 122㎡. 130㎡. 140㎡.



华侨城欢乐天际,6686平台装修,6686平台室内设计,6686官方版app


欢乐天际 6686官方版app,是华侨城在华中投资规模最大的新型商业商务综合体,以全新城市模型展开设想,打造集生态,居住,商业,教育,休闲,商务等为一体的齐全之城,承载了人们对于城市理想生活的无限期许。


为了给华侨城欢乐天际的业主带来更好的生活体验,澳华装饰的设计师全面解析建面106-140㎡的户型方案,从居住者出发 6686官方版app,从场景入手,平衡视觉效果与居住功能,扩展生活秩序。


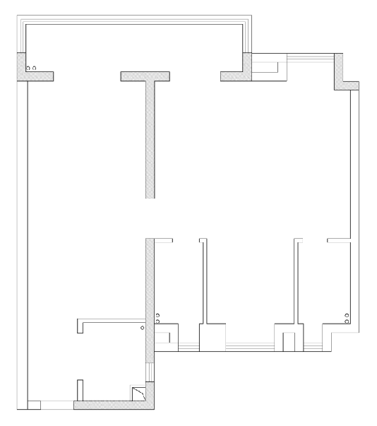
106㎡户型解析


华侨城欢乐天际,6686平台装修,6686平台室内设计,6686官方版app


△原始结构图


户型优点


√ 户型采光通风俱佳。


√ 功能区划分清晰,动线合理。


户型缺点


× 厨房较小,难以满足当代人对于厨房功能的需求 6686官方版app


× 餐厅部分比较局促,活动受限 6686官方版app


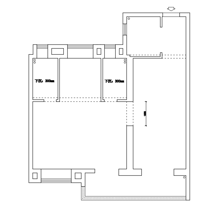
方案一


增加收纳,书房做多功能房


华侨城欢乐天际,6686平台装修,6686平台室内设计,6686官方版app


思路解析


1    利用可利用的空间做收纳柜,最大限度扩大储藏空间 6686官方版app


2    增设多功能房 6686官方版app,可书房可客卧,可活动增加可变性.


3    卧室做L型衣柜 6686官方版app,增加储藏。


效果图展示


华侨城欢乐天际,6686平台装修,6686平台室内设计,6686官方版app


华侨城欢乐天际,6686平台装修,6686平台室内设计,6686官方版app


华侨城欢乐天际,6686平台装修,6686平台室内设计,6686官方版app


方案二


餐岛一体设计+功能性套卧


华侨城欢乐天际,6686平台装修,6686平台室内设计,6686官方版app


思路解析


1    餐厅在提升视觉空间的同时,考虑充足存储空间 6686官方版app,并且打造了岛台,功能丰富多彩。


2    把阳台和次卧打通,增加次卧使用面积 6686官方版app,原来阳台也够三口之家使用。


3    主卧和书房打通,形成了一个功能齐全、开阔舒适的套卧,书房也囊括了步入式衣帽间的功能。


效果图展示


华侨城欢乐天际,6686平台装修,6686平台室内设计,6686官方版app


华侨城欢乐天际,6686平台装修,6686平台室内设计,6686官方版app


华侨城欢乐天际,6686平台装修,6686平台室内设计,6686官方版app


116㎡户型解析


华侨城欢乐天际,6686平台装修,6686平台室内设计,6686官方版app


△原始结构图


户型优点


√ 采光通风好。


√ 户型功能区域划分清晰。


√ 空间利用程度高。


户型缺点


× 厨房空间较小,难以满足当代人对于厨房功能的需求。


× 卧室尺寸较小,收纳不充足。


× 餐厅位置局促,活动受限。


方案


多功能衣帽间+奢华套卧


华侨城欢乐天际,6686平台装修,6686平台室内设计,6686官方版app


思路解析


1    客厅与阳台联通,增大会客区域。。


2    开放式厨房,提升视觉空间同时提高存储能力。


3    北面次卧改造成一个集书房与衣帽间为一体的多功能房,纳入主卧,形成一个开阔舒适的大套间,极大程度提高生活品质。


效果图展示


华侨城欢乐天际,6686平台装修,6686平台室内设计,6686官方版app


华侨城欢乐天际,6686平台装修,6686平台室内设计,6686官方版app


122㎡户型解析


华侨城欢乐天际,6686平台装修,6686平台室内设计,6686官方版app


△原始结构图


户型优点


√ 户型比较方正,南北通透,采光通风俱佳。


√ 动静区划分清晰,动线合理。


√ 承重墙较少,可改动地方较大。


户型缺点


× 厨房较小,难以满足当代人对于厨房功能的需求。


× 餐厅如果按常规的酒柜或餐边柜设计,会导致动线拥挤。


方案一


独立厨房+西厨台增加收纳


华侨城欢乐天际,6686平台装修,6686平台室内设计,6686官方版app


思路解析


1    客厅阳台打通,增大视觉空间。


2    厨房外部增设西厨台,增加厨房电器的收纳。


3    扩大主卧空间,做一排衣柜,增加主卧收藏空间。


4    卫生间做成干湿分离的设计,提升卫浴体验感。


效果图展示


华侨城欢乐天际,6686平台装修,6686平台室内设计,6686官方版app


华侨城欢乐天际,6686平台装修,6686平台室内设计,6686官方版app


华侨城欢乐天际,6686平台装修,6686平台室内设计,6686官方版app


方案二


开放式厨房+多功能书房


华侨城欢乐天际,6686平台装修,6686平台室内设计,6686官方版app


思路解析


1    一间次卧做多功能房间,可以做客房也可以做书房。


2    卫生间做三分离布局,单独面盆,马桶与淋浴间做玻璃移门。


3    厨房做开放式设计,增加厨房操作台面。


效果图展示


华侨城欢乐天际,6686平台装修,6686平台室内设计,6686官方版app


华侨城欢乐天际,6686平台装修,6686平台室内设计,6686官方版app


130㎡户型解析


华侨城欢乐天际,6686平台装修,6686平台室内设计,6686官方版app


△原始结构图


户型优点


√ 大阳台采光通风好。


√ 动静分区功能区域划分清晰。


√ 空间利用程度高。


户型缺点


× 厨房空间小,难以满足当代人对于厨房的功能需求。


× 入户较窄,活动受限。


× 次卧较小,收纳不足。


方案一


开阔的LDK+阳台一体设计


华侨城欢乐天际,6686平台装修,6686平台室内设计,6686官方版app


思路解析


1    客厅与阳台联通,增加会客区域,提升大气视觉。


2    重点规划厨房与餐厅,采用开放式厨房设计,延长厨房操作台面。


3    两房打通,设置衣帽间。


效果图展示


华侨城欢乐天际,6686平台装修,6686平台室内设计,6686官方版app


华侨城欢乐天际,6686平台装修,6686平台室内设计,6686官方版app


华侨城欢乐天际,6686平台装修,6686平台室内设计,6686官方版app


方案二


舒适三房,适合多人口家庭


华侨城欢乐天际,6686平台装修,6686平台室内设计,6686官方版app


思路解析


1    客厅与阳台联通,增加会客区域,提升大气视觉。


2    主卧衣柜L型衣柜,增加储藏空间。


3    独立厨房设计,隔绝油烟,符合中式做饭环境。


效果图展示


华侨城欢乐天际,6686平台装修,6686平台室内设计,6686官方版app


华侨城欢乐天际,6686平台装修,6686平台室内设计,6686官方版app


140㎡户型解析


华侨城欢乐天际,6686平台装修,6686平台室内设计,6686官方版app


△原始结构图


户型优点


√ 南北通透,采光和通风好。


√ 户型功能区域划分清晰。


户型缺点


× 厨房面积较小,操作不便。


× 餐厅面积较小,活动空间受限。


方案


时髦餐岛+去客厅化设计


华侨城欢乐天际,6686平台装修,6686平台室内设计,6686官方版app


思路解析


1    通体背景柜处理,解决储物量和储物分类。


2    餐桌连接岛台一体设计,实用也潮流。


3    厨房双向联动门,可开放可封闭,防油烟也可拓展空间视觉。


4    书房客厅一体,外加连体阳台,更广阔的家庭互动空间。


效果图展示


华侨城欢乐天际,6686平台装修,6686平台室内设计,6686官方版app


华侨城欢乐天际,6686平台装修,6686平台室内设计,6686官方版app


华侨城欢乐天际,6686平台装修,6686平台室内设计,6686官方版app

"6686官方版app"
"6686官方版app" 预约设计师
海量行家, 抢订6686注册设计服务
每日前20名申请用户, 获3D装修设计图
推荐相关案例
6686注册获取同款设计方案
姓名*
楼盘*
电话*
*为了您的权益, 您的隐私将严格保密
预约成功 (6686官方版app)
您已报名成功, 稍后会有客服人员联系您。 您的隐私将被严格保密。
关注二维码了解6686体育装修知识
6686官方版app - 6686登录我们
澳华历程
6686官方版app - 官方微博
"6686官方版app" 联系我们
装修咨询电话 : 686官方版app - 027-82411111
售后服务电话 : 686官方版app - 027-82866788
公司地址 : 6686平台市江岸区澳门路232号金冠大厦 (6686官方版app)
6686登录我们
友情链接 :
    66866686官方版app下载官方版-6686官方版app下载2025最新 页面版权所有 jingyu-design.cn

    6686官方版app - 算一算,您家装修需要花多少钱?

    知精准报价 避装修深坑

    "6686官方版app" 01/03

    选择您喜欢的风格

    • 现代轻奢

    • 现代美式

    • 北欧

    • 新中式

    • 欧式

    • 其他

    算一算,您家装修要花多少钱?

    知精准报价 避装修深坑

    02/03

    选择房屋面积区间

    • 80-100㎡
    • 100-140㎡
    • 140-200㎡
    • 200-300㎡
    • 300㎡以上

    03/03

    您的户型

    • 两居室

    • 三居室

    • 四居室

    • 五居室

    • 六居室

    "6686官方版app" 算一算,您家装修要花多少钱?

    知精准报价 避装修深坑

    0%

    稍等片刻,您的报价正在生中......

    算一算,您家装修要花多少钱?

    知精准报价 避装修深坑

    您的完整报价已经生成

    报名成功享抢订优惠名额

    每日仅限前10名用户