24小时咨询电话
027-82411111
当前位置 : 首页 > 户型解析 > 中建御景星城86㎡-127㎡户型全解析
中建御景星城86㎡-127㎡户型全解析
686官方版app - 发布时间 : 2023-03-14 16:49
查看数 :


小区:中建御景星城


户型:86㎡. 97㎡ 6686官方版app. 122㎡. 125㎡. 127㎡.


中建御景星城,中建御景星城户型,中建御景星城户型图,6686平台装修


中建御景星城位于6686平台市硚口宗关,由6686平台中建三局江北房地产开发有限公司建成。中建御景星城自带大体量商业,并配有1,8万方超级生态公园,配套齐全。 6686官方版app


为了给中建御景星城的业主带来更好的生活体验,澳华装饰的设计师全面解析建面86-127㎡的户型方案,从居住者出发,从场景入手 6686官方版app,平衡视觉效果与居住功能,扩展生活秩序。


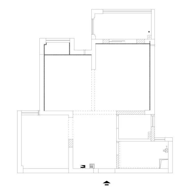
86㎡户型解析


中建御景星城,中建御景星城户型,中建御景星城户型图,6686平台装修


△原始结构图


户型优点


√    户型功能区域划分清晰。


√    各个区域大小均匀,户型方正 6686官方版app


√    过道较少 6686官方版app,空间利用率高。


户型缺点


×    次卧面积较小 6686官方版app,采光较弱。


×    餐厅面积较小,采光较弱 6686官方版app


×    只有一个卫生间。


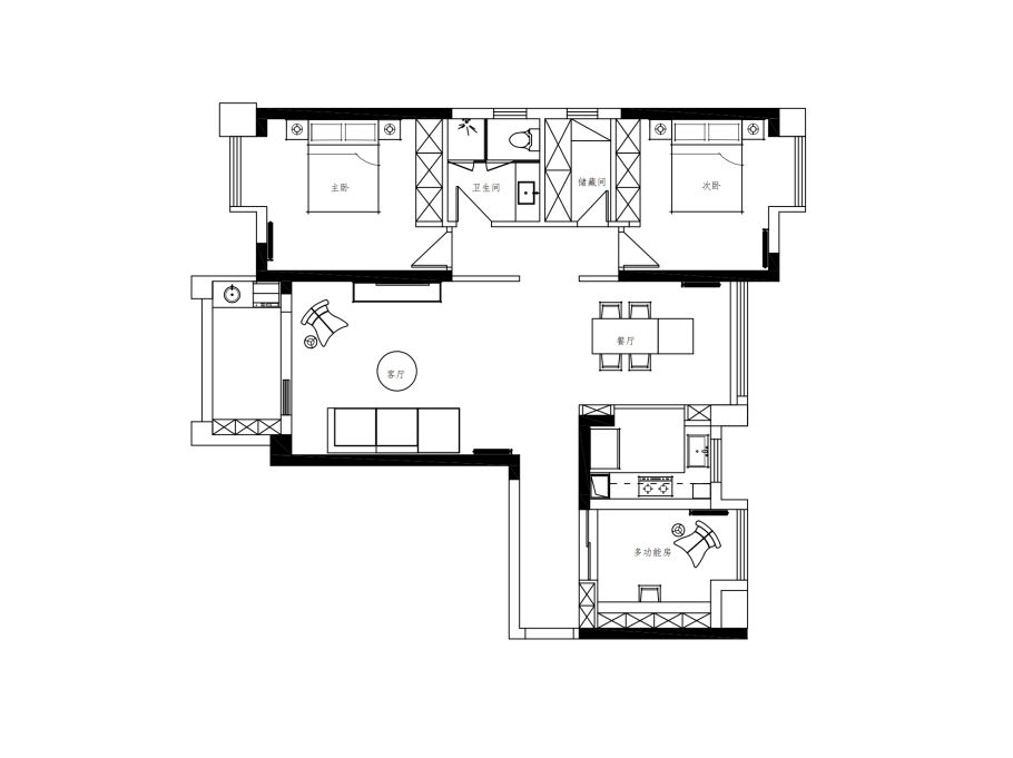
方案


无玄关,保证空间通透性


中建御景星城,中建御景星城户型,中建御景星城户型图,6686平台装修


思路解析


1    门厅不设置玄关,从入户到客厅间都联通,改善了餐厅光线 6686官方版app


2    两间卧室做入墙式收纳柜 6686官方版app,增加收纳,释放空间。


3    独立厨房 6686官方版app,隔绝油烟。


效果图展示


中建御景星城,中建御景星城户型,中建御景星城户型图,6686平台装修


中建御景星城,中建御景星城户型,中建御景星城户型图,6686平台装修


97㎡户型解析


中建御景星城,中建御景星城户型,中建御景星城户型图,6686平台装修


△原始结构图


户型优点


√    户型功能区域划分清晰。


√    客厅采光和通风较好。


户型缺点


×    三间房间面积都较小,收纳面积有限。


×    餐厅面积较小,采光较弱。


×    只有一个卫生间。


方案


舒适套卧+一体式衣帽间


中建御景星城,中建御景星城户型,中建御景星城户型图,6686平台装修


思路解析


1    客厅与阳台联通,增大会客区域。


2    独立厨房,隔绝油烟。


3    将书房与主卧打通,形成一个U型衣帽间,补充收纳。


4    卫生间做干湿分离,便于多人同时使用。


效果图展示


中建御景星城,中建御景星城户型,中建御景星城户型图,6686平台装修


中建御景星城,中建御景星城户型,中建御景星城户型图,6686平台装修


122㎡户型解析


中建御景星城,中建御景星城户型,中建御景星城户型图,6686平台装修


△原始结构图


户型优点


√    南北通透,采光通风都不错。


√    户型功能分布合理。


√    三房两厅,能够满足一家五口的居住需求。


户型缺点


×    厨房面积较小。


×    过道长、窄,浪费面积。


×    卧室面积较小,缺少储物空间。


方案


南北通透、阳光明媚的舒适公区


中建御景星城,中建御景星城户型,中建御景星城户型图,6686平台装修


思路解析


1    增加过道丰富性,弱化狭长缺点。


2    打通阳台,连接客餐厅,构建一个南北通透的舒适公共区域。


3    重点规划主卧室、主卫和小孩房,增强功能与舒适性。


效果图展示


中建御景星城,中建御景星城户型,中建御景星城户型图,6686平台装修


中建御景星城,中建御景星城户型,中建御景星城户型图,6686平台装修


中建御景星城,中建御景星城户型,中建御景星城户型图,6686平台装修


125㎡户型解析


中建御景星城,中建御景星城户型,中建御景星城户型图,6686平台装修


△原始结构图


户型优点


√    采光通风都很不错。


√    户型功能区域划分清晰。


√    观景大阳台,双阳台设计。


户型缺点


×    入户玄关过道较长,鞋柜不好放置。


×    入户大门正对了主卧门,存在风水问题。


×    厨房没有窗户,采光较差。


方案


联通公区,利用过道增设鞋帽间


中建御景星城,中建御景星城户型,中建御景星城户型图,6686平台装修


思路解析


1    客厅与阳台联通,整体更加通透敞亮,提升大气视觉。


2    餐厅位置把阳台纳入进来,增设西厨区。


3    打通厨房,连接餐厅,做开放式厨房设计。中西厨结合,改善了原始厨房没有窗户的问题。


4    入户玄关位置增设鞋帽间,使过长的玄关通透明亮,不压抑,也满足了功能需求。


5    靠外面的卧室设计成多功能房,既能用作办公,也能当作卧室,两全其美。


6    餐厅岛台设计了绿植景观,既解决了入户玄关没有玄关墙一眼看到底的尴尬,又解决了入户大门正对卧室门的风水问题。


效果图展示


中建御景星城,中建御景星城户型,中建御景星城户型图,6686平台装修


中建御景星城,中建御景星城户型,中建御景星城户型图,6686平台装修


中建御景星城,中建御景星城户型,中建御景星城户型图,6686平台装修


127㎡户型解析


中建御景星城,中建御景星城户型,中建御景星城户型图,6686平台装修


△原始结构图


户型优点


√    南北通透,采光和通风好。


√    户型功能区域划分清晰。


户型缺点


×    餐厅面积较小,活动空间受限。


×    卫生间利用率较低,没有储物空间。


方案


开阔公区+多功能书房


中建御景星城,中建御景星城户型,中建御景星城户型图,6686平台装修


思路解析


1    卫生间采用三分离,增加利用率。


2    次卧改成储物间,增加收纳。


3    一间次卧做多功能房,增加生活方式的多样性。


4    独立厨房,隔绝油烟。


效果图展示


中建御景星城,中建御景星城户型,中建御景星城户型图,6686平台装修


中建御景星城,中建御景星城户型,中建御景星城户型图,6686平台装修


中建御景星城,中建御景星城户型,中建御景星城户型图,6686平台装修


中建御景星城,中建御景星城户型,中建御景星城户型图,6686平台装修


"6686官方版app"
预约设计师
海量行家, 抢订6686注册设计服务
每日前20名申请用户, 获3D装修设计图
推荐相关案例
"6686官方版app" 6686注册获取同款设计方案
姓名*
楼盘*
电话*
*为了您的权益, 您的隐私将严格保密
预约成功
您已报名成功, 稍后会有客服人员联系您。 您的隐私将被严格保密。
关注二维码了解6686体育装修知识
联系我们
"6686官方版app" 装修咨询电话 : 027-82411111
"6686官方版app" 售后服务电话 : 027-82866788
6686官方版app - 公司地址 : 6686平台市江岸区澳门路232号金冠大厦
6686登录我们 (6686官方版app)
友情链接 :
    66866686官方版app下载官方版-6686官方版app下载2025最新 页面版权所有 jingyu-design.cn

    算一算,您家装修需要花多少钱?

    知精准报价 避装修深坑

    01/03

    选择您喜欢的风格

    • 现代轻奢

    • 现代美式

    • 北欧

    • 新中式

    • 欧式

    • 其他

    686官方版app - 算一算,您家装修要花多少钱?

    知精准报价 避装修深坑

    686官方版app - 02/03

    选择房屋面积区间

    • 80-100㎡
    • 100-140㎡
    • 140-200㎡
    • 200-300㎡
    • 300㎡以上

    03/03

    您的户型

    • 两居室

    • 三居室

    • 四居室

    • 五居室

    • 六居室

    算一算,您家装修要花多少钱?

    知精准报价 避装修深坑

    0%

    稍等片刻,您的报价正在生中......

    算一算,您家装修要花多少钱?

    知精准报价 避装修深坑

    "6686官方版app" 您的完整报价已经生成

    报名成功享抢订优惠名额

    每日仅限前10名用户