<noscript lang="vhqHaV"></noscript><ins id="z5BSCmul"></ins>
6686官方版app - 24小时咨询电话
027-82411111
当前位置 : 首页 > 户型解析 > 御江苑2期 130㎡三居室欧式轻奢住宅户型解析
6686官方版app - 御江苑2期 130㎡三居室欧式轻奢住宅户型解析
"6686官方版app" 发布时间 : 2022-03-05 17:55
查看数 : 686官方版app -

    案例简介:业主是一对新婚夫妻,偏爱欧洲文化,但是又不喜欢过于繁琐的设计,希望能够加入一些现代简约元素,同时,为了节约装修成本,业主提出尽量不要破坏原有的功能结构 6686官方版app,为了满足业主的使用需求,设计师借用色彩来营造欧式风情,同时点缀以现代化元素,强调空间的时尚氛围感。


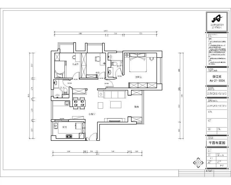
    户型解析:



    这套位于御江苑2期的130㎡三居室住宅空间的原有结构功能分区相对比较清晰合理,且能够满足业主的使用需求,因此设计师没有对户型进行再调整,为提升空间的私密度与起居舒适度 6686官方版app,设计师将活动区域与休憩区域进行有效分隔,以保障休憩区域足够静谧,进而提升整体生活品质。


    客厅:




    客厅区域主要通过各类色彩来营造空间的精致感与温馨氛围,丝绒材质的藕粉色沙发与蓝色几何图形地毯之间的碰撞高级而又耐看,墙面的金色镶边处理,则让空间的欧式贵族风情得到展露 6686官方版app


    餐厅:


餐厅1.jpg


    素色墙面搭配上简单植物挂画,简约而又不失小清新田园格调 6686官方版app


    儿童房:

儿童房.jpg

    蓝底印花的自然风壁纸为整个空间增添了自然浪漫氛围 6686官方版app,而双层式收纳床体的设计则能够满足多个孩子的起居使用需求。


    厨房:

厨房1.jpg


    淡蓝色的橱柜搭配上白色瓷砖,整体给人简约洁净的舒适感,黑色抽油烟机既可以基本使用需求,又为空间增添沉稳气息 6686官方版app


"6686官方版app"
(6686官方版app)
"6686官方版app" 预约设计师
海量行家, 抢订6686注册设计服务
每日前20名申请用户, 获3D装修设计图
686官方版app - 推荐相关案例
6686注册获取同款设计方案 (6686官方版app)
姓名*
楼盘*
电话*
*为了您的权益, 您的隐私将严格保密
"6686官方版app" 预约成功
您已报名成功, 稍后会有客服人员联系您。 您的隐私将被严格保密。
关注二维码了解6686体育装修知识
联系我们
装修咨询电话 : 027-82411111
售后服务电话 : 027-82866788
公司地址 : 6686平台市江岸区澳门路232号金冠大厦
"6686官方版app" 6686登录我们
6686官方版app - 友情链接 :
    66866686官方版app下载官方版-6686官方版app下载2025最新 页面版权所有 jingyu-design.cn

    算一算,您家装修需要花多少钱?

    知精准报价 避装修深坑

    "6686官方版app" 01/03

    选择您喜欢的风格

    • 现代轻奢

    • 现代美式

    • 北欧

    • 新中式

    • 欧式

    • 其他

    算一算,您家装修要花多少钱?

    知精准报价 避装修深坑

    02/03

    选择房屋面积区间

    • 80-100㎡
    • 100-140㎡
    • 140-200㎡
    • 200-300㎡
    • 300㎡以上

    "6686官方版app" 686官方版app - 03/03

    您的户型

    • 两居室

    • 三居室

    • 四居室

    • 五居室

    • 六居室

    "6686官方版app" 算一算,您家装修要花多少钱?

    知精准报价 避装修深坑

    0%

    稍等片刻,您的报价正在生中......

    "6686官方版app" 算一算,您家装修要花多少钱?

    知精准报价 避装修深坑

    您的完整报价已经生成

    报名成功享抢订优惠名额

    每日仅限前10名用户